КАК ОРГАНИЗОВАТЬ ХИМЧИСТКУ. Проектирование химчистки
| Статья размещена на портале при поддержке компании ТЕКСКЕПРО: |
Редакция журнала «Все для химчистки и прачечной» продолжает цикл статей Галины Алексеевны Логачевой об открытии бизнеса в сфере химчистки. В предыдущей статье мы определились с моделью химчистки, нашли подходящее помещение. Пора переходить к этапу проектирования цеха и подбору оборудования.
Рассмотрим основные требования нормативной базы к составу и площади производственных помещений, расстановке оборудования, которые необходимо учесть при проектировании производства.
Основное требование, которое необходимо соблюдать – это поточность технологического процесса. Он начинается с приема грязных вещей от заказчиков, которые накапливаются в специальных тележках, затем вещи уходят в цех на сортировку, предварительную пятновыводку и зачистку.
Нормативные документы требуют, чтобы потоки грязных и чистых изделий не пересекались. Кроме санитарно-гигиенических задач этот норматив позволяет сделать работу персонала эргономичной, минимизировав их технологические маршруты.
Существуют следующие нормы минимальных площадей производственных помещений: объем производственных площадей на одного работающего должен составлять не менее 15 м3, а площадь — не менее 4,5 м2 без учета технологического оборудования. При расстановке оборудования необходимо предусмотреть технологические проходы, чтобы обеспечить доступ для его обслуживания, ремонта и уборки помещений.
Для хранения химических реактивов и препаратов необходимо выделить склад со стойкой отделкой типа кафельной плитки и вентиляцией. Обычно здесь же устанавливается компрессор для подачи сжатого воздуха на оборудование. На рабочем месте допускается хранить химикаты в ограниченном количестве (не более суточной нормы).
Должны быть предусмотрены следующие санитарно-бытовые помещения: санузел, гардеробная, душевая, комната для приема пищи. Их особенности:
— комната для приема пищи организуется из расчета 1 м2 на одного работника в смену и оснащается оборудованием для хранения и разогрева пищи и раковиной;
— гардеробная оборудуется индивидуальными шкафчиками с 2-мя отделениями для уличной и рабочей одежды;
— душевые делаются из расчета 1 сетка на 7 сотрудников в смене.
Основные строительные требования:
— для отделки производственных помещений необходимо использовать материалы устойчивые к воздействию влаги, температуры, моющих средств;
— при заливке полов необходимо обеспечивать стяжку не менее 15 см для крепления оборудования к полу анкерными болтами из-за большой динамической и вибрационной нагрузки;
— оборудование должно монтироваться на строго горизонтальных поверхностях, но в помещениях, где возможны проливы моющих, чистящих средств и воды полы должны иметь достаточный уклон для стока жидкости в сторону дренажных колодцев в зонах, свободных от оборудования;
— необходимо получить от поставщика оборудования техническое задание на параметры коммуникаций, необходимых для работы оборудования: электричеству, канализации, водоснабжению, принудительной вентиляции и сжатому воздуху, сделать проекты вентиляции и электроснабжения в специализированных организациях.
Для каждой из рассмотренных нами моделей химчистки есть свои особенности по составу производственных помещений и подбору оборудования. Рассмотрим их.
1. Химчистка в торговом комплексе площадью примерно 50 м2
Помните, что в этом формате вы будете бороться за рациональное использование каждого метра пространства. Как правило, это единое помещение с выделенными зонами, которые отделены друг от друга или оборудованием, или легкими перегородками. В таком формате химчистки допускается один вход-выход. Место приема пищи выделяется легкой перегородкой, здесь же располагаются шкафчики для одежды. Сотрудники пользуются общими санузлами и душевыми, предназначенными для персонала торгового центра. Зона хранения химикатов занимает примерно 2 м
Рассмотрим особенности планирования выделенных зон и рекомендации по подбору оборудования.
Зона посетителей должна обеспечивать комфорт для ожидающих посетителей на минимальной площади. Здесь же необходимо поместить всю необходимую информацию для клиентов.
Зона приема-выдачи заказов отделяется от зоны посетителей прилавком достаточной длины, чтобы можно было разделить участок приема и участок выдачи заказов. Для развешивания готовых заказов на вешалках устанавливается система хранения из дюралюминиевых труб с разной высотой, для хранения заказов в пакетах необходимо предусмотреть стеллаж. Не рекомендуем покупать для такого формата химчистки автоматический конвейер для одежды, так как он громоздкий, рассчитан на конкретное количество единиц хранения, и нерационально использует и так небольшое помещение химчистки. В этой же зоне, как правило, устанавливают упаковщик готовых заказов в полиэтилен. Они бывают напольные и настенные. По качеству они не отличаются, но настенные более компактны и дешевы, зато напольные могут легко менять место расположения.
Фронтально к посетителям за спиной приемщицы обычно располагают машину химчистки. Такое размещение имеет несколько положительных сторон: во-первых, машина химчистки красиво смотрится и является декоративным оформлением цеха; во-вторых, работающая сложная машина химчистки повышает доверие к качеству услуги, в-третьих, у клиента создается впечатление, что весь процесс чистки у него на виду и вы ничего от него не скрываете, в-четвертых машина х/ч является естественной перегородкой для отделения непривлекательных зон таких как зона сортировки, зачистки или хранения химикатов и материалов.
Несколько советов по выбору машины химчистки:
— оптимально покупать машину с загрузкой 12-15 кг, что позволит вам оперативно формировать партии товаров, сокращать время выполнения заказов и предлагать клиентам экспресс-чистку вещей, да и сэкономить деньги на покупку оборудования;
— для вашего формата химчистки достаточно два бака для растворителя в машине;
— для работы в торговом центре вам понадобится оснащение машины шламовым насосом и системой автоматической очистки дистиллятора для сбора шлама в закрытые емкости, что позволит сэкономить пространство вокруг машины и снизить концентрацию вредных веществ в воздухе.
Кроме этого полезными могут быть следующие дополнительные опции, предлагаемые поставщиками оборудования:
— автоматический контроль сушки, позволяющий уменьшить риски при обработке изделий;
— автоматический дозатор химических препаратов, обеспечивает стандартное качество и высвобождает рабочее время аппаратчика;
— вакуумирование зоны люка значительно снижает попадание паров растворителя в воздух, т.е. позволяет выполнить санитарные нормы по ПДК, убирает неприятный запах в помещении химчистки, что очень важно для цеха, расположенного в торговом комплексе.
Для работы машины химчистки и другого оборудования вам потребуется сжатый воздух, подаваемый компрессором. Для нашего формата очень важно выбирать бесшумный компрессор, который можно расположить за машиной х/ч.
За машину химчистки имеет смысл убрать от взгляда клиента зону сортировки, зачистки и пятновыводки.
В зоне визуальной доступности клиента рядом с машиной химчистки имеет смысл разместить машину аквачистки. Это оборудование позволяет значительно расширить ассортимент принимаемых в химчистку изделий, для которых запрещена обработка в органических растворителях, таких как пуховики, искусственные дубленки, дублированные материалы и т.
Рядом с машиной аквачистки необходимо установить сушильную машину соответствующей загрузки с обязательной функцией реверса барабана, регулирования температуры сушки и, желательно, с контролем остаточной влажности.
Если вам хватает места и электрических мощностей, имеет смысл установить оборудование для индивидуальной стирки белья. Это, как правило, стиральные машины загрузкой 5-6 кг с упрощенной системой управления.
Поставщики оборудования предлагают вариант, когда сушильная машина соответствующей загрузки устанавливается на стиральную машину, таким образом, значительно экономится производственная площадь.
Белье после индивидуальной стирки гладится или вручную на паровом столе, или, при достаточных объемах, на гладильном катке с длиной вала 160 см (в данном варианте покупать каландер не имеет смысла).
Далее в соответствии с технологическим маршрутом чистые вещи поступают в зону окончательной отделки вещей для глаженья и отпаривания. Это оборудование выглядит привлекательно и не имеет смысла прятать его от клиентов. Качество финишной отделки во многом определяет уровень вашей услуги и влияет на ее оценку клиентом, поэтому очень важно правильно подобрать отделочное оборудование.
В минимальный комплект оборудования входят:
— паровой гладильный стол. Очень важные функции, на которых не стоить экономить это — подача пара, вакуума и наддува на гладильную поверхность; дополнительная малая гладильная поверхность для глаженья рукавов; подвес для утюга, облегчающий работу гладильщицы, дополнительное локальное освещение;
— паровой манекен для отпаривания верхней одежды. Обратите внимание, чтобы высота куклы позволяла отпаривать длинную одежду (пальто, плащи) а не только рубашки и пиджаки. Сложное управление с возможностью программировать режимы отпаривания удорожает модель манекена, но слабо влияет на скорость обработки и ее качество.
Если вам позволяют средства, площадь и электрические мощности, то имеет смысл установить брючный манекен. Это очень эффективное оборудование, которое значительно сокращает время отпаривания брюк и качество отделки по сравнению с отпариванием на паровом столе. Минусом является его высокая цена, поэтому целесообразно устанавливать брючный манекен в цехах с большой загрузкой.
Можно рассмотреть вариант установки комбинированного манекена, который позволяет отпаривать как верхнюю одежду, так и брюки с помощью поворачивающихся кукол.
Финишное оборудование поставляется как в варианте со встроенным парогенератором, так и без него с подведением пара от внешнего парогенератора. В каждом конкретном случае надо смотреть, что вам выгоднее: покупать оборудование со встроенным парогенератором или подавать пар от общего парогенератора соответствующей мощности.
Таким образом, весь технологический цикл пройден и чистые отпаренные вещи поступают на упаковку и выдачу клиентам.
При организации химчистки в торговом комплексе часто встает вопрос нехватки электрических мощностей для работы оборудования и вентиляции.
Во избежание недопустимых пиковых нагрузок можно оптимизировать единовременно потребляемую мощность за счет построения рационального графика работы оборудования.
Максимальные мощности потребляются при нагреве воды стиральными машинами, при работе сушильных машин, гладильных катков, парогенераторов и дистилляции растворителя в машине химчистки. Можно значительно увеличить подключенную мощность оборудования по сравнению с выделенными мощностями, если грамотно выстроить технологический процесс и использовать оборудование в определенной очередности.
2. Элитная химчистка с полным набором услуг
Напомним, что площадь такой химчистки от 120 м2, потребляемая мощность 100 — 150 кВт. Общие принципы проектирования производства сохраняются, но вам потребуется большее количество помещений специального назначения.
Санитарно-бытовые помещения проектируются с учетом санитарных норм. Выделяются отдельные помещения для переодевания персонала с персональными шкафчиками; комната приема пищи с необходимым набором техники для хранения и разогрева еды и раковиной; санузел и душевая.
Необходимо обустроить кабинет для работы администратора (директора) и бухгалтера.
Оборудование помещений для хранения химикатов и отходов должны соответствовать нормативным требованиям. В этом помещении можно разместить компрессор для обеспечения производства сжатым воздухом и тогда не требуется покупать бесшумную модель.
По требованию пожарной безопасности у химчистки должен быть второй выход, который также используется для загрузки – разгрузки бочек с растворителем, шлама, химикатов и моющих средств, оптовых заказов и т.п. С учетом движения потоков вещей необходимо выделить помещения для хранения грязных заказов по химчистке и стирке, которые не поступили немедленно в работу, ждут своей очереди, а также зону для формирования и хранения корпоративных заказов перед их транспортировкой.
Особого внимания требует оформление зоны приема-выдачи заказов. Она должна быть комфортной для клиентов и говорить о респектабельности и высоком уровне услуги. Постарайтесь найти свой стиль в оформлении и предусмотрите возможность воспользоваться WI-FI или телевизором, которые скрасят ожидание клиента.
Об уровне химчистки говорит наличие автоматического конвейера для выдачи готовых заказов. Кроме того, что он облегчает труд приемщицы, это выглядит очень солидно и повышает степень доверия к вам.
В такой модели химчистки расширяется набор оборудования и требования к нему.
Имеет смысл подумать о двух машинах химчистки, одна из которых с меньшей загрузкой от 12 до 16 кг для выполнения срочных и экспресс заказов, вторая загрузкой от 24 кг для чистки обычного ассортимента, крупных вещей, изделий из замши, кожи и меха. Такая машина должна быть с 3-мя баками для растворителя. В настоящее время достаточно большое количество элитных вещей нельзя чистить ни в перхлорэтилене в машине химчистки, ни в машине аквачистки, и химчистка вынуждена отказывать клиентам. Для решения этой проблемы за последние годы появились машины, работающие на альтернативных растворителях, таких как силикон, КВЛ, модифицированные спирты. Наличие такой машины делает вашу химчистку по-настоящему элитной и уникальной, так как вы выполняете заказы, от которых вынуждены отказываться другие химчистки.
Недостатком таких растворителей является более низкая по сравнению с перхлорэтиленом моющая способность, поэтому полностью отказаться от традиционной технологии невозможно из-за высокой степени загрязненности основной массы наших заказов.
Более мощным должно быть оборудование для аквачистки. Имеет смысл покупать машину загрузкой от 16 кг. Сушильная машина тоже, соответственно, должна быть большей загрузки.
Список оборудования для финишной отделки также расширяется за счет парового манекена для отпаривания брюк, которое значительно повышает качество услуги и производительность труда.
Обязательным становится участок индивидуальной стирки белья, который может обслуживать как индивидуальных клиентов, так и мелкие рестораны и гостиницы. Для его организации потребуется не менее двух пар вертикальных стоек стиральная машина/сушильная машина на 5-6 кг. При увеличении объемов вы всегда можете докупить оборудование, а места для его установки потребуется совсем мало. Хорошего катка с шириной вала 190 см и простенькой паровой доски будет достаточно для глаженья белья на этом участке.
Для повышения качества услуги вам потребуется упаковщик белья, который запаивает каждый заказ в индивидуальный пакет.
Обязательной услугой для элитной химчистки является чистка кожи, замши, меха. Это потребует дополнительного оборудования и помещений, а именно:
— помещение для подкрашивания и жирования таких изделий площадью около 6м2 оборудуется лабораторией для подбора красителей, раковиной из нержавейки, сжатым воздухом и аэрографами с разным диаметром сопел, манекеном, на который вешается обрабатываемое изделие (очень удобен специальный манекен для покраски с раздувающейся куклой и растяжками для рукавов). За ним необходимо расположить мощную фронтальную вентиляцию. Оборудовать такое помещение гораздо дешевле, а эксплуатировать его удобнее, чем использовать красильные камеры, предлагаемые производителями.
— помещение для ворсования и прессования изделий из замши и кожи. В этом помещении также необходимо сделать хорошую вентиляцию, так как при ворсовании образуется много пыли.
Самой удобной мы считаем вертикальную ворсовальную машину, состоящую их стола и сменных ворсовальных щеток с электрическим приводом. Пресс для кожи необходим для придания прекрасного товарного вида изделиям из кожи после подкрашивания. При небольших объемах его можно заменить глаженьем изделия через тефлоновую бумагу, хотя такого же уровня качества при ручной обработке добиться не удается.
Обязательной дополнительной услугой для элитной химчистки является мелкий ремонт одежды. Он необходим для устранения мелких дефектов, появляющихся на одежде после химчистки, пришивания пуговиц и т.п. Мелкий ремонт может быть и отдельной дополнительной услугой для клиентов, когда необходимо поменять подкладку, подшить или ушить вещь, поменять молнию. Для этого необходимо в зоне приема вещей установить примерочную кабину, а в химчистке выделить зону мелкого ремонта, оборудованную швейной машиной, оверлоком и закроечным столом.
Дополнительными услугами могут быть:
— ремонт обуви и ее профессиональная чистка;
— озонирование вещей, т.
е. их дезинфицирование и бактериологическая очистка, позволяющая удалять запахи, споры плесени, грибков на вещах, которые невозможно почистить в машине, такие как обувь, спортивные шлемы, перчатки, амуницию, детские игрушки и т.д.;
— изготовление ключей, гравировка и ремонт бижутерии;
— продажа сопутствующих товаров по хранению и уходу за одеждой и обувью;
— чистка ковров на аутсорсинге.
Для всего этого вам понадобится специальное профессиональное оборудование и выделенные площади или места для хранения.
3. Цех химчистки и сеть приемных пунктов.
Цех, организованный на территории промышленного предприятия, как правило, не ограничен в площадях из-за их относительной дешевизны и в электрических мощностях. В таком формате имеет смысл делать химчистку с полноправным участком стирки белья, рассчитанным не только на индивидуальных клиентов, но в основном на обслуживание организаций и предприятий. Это позволит вам сгладить сезонные спады, которые в прачечной и химчистке не совпадают, кроме, пожалуй, неизбежного февральского спада.
Прачечный участок необходимо оборудовать машинами разной загрузки в зависимости от потоков однородного белья. Вам понадобятся машины и на 5-6 кг для индивидуальной стирки и машины от 12 до 35 кг для стирки спецодежды, заказов отелей, железнодорожного и водного транспорта и т.п. Имеет смысл наращивать парк оборудования по мере привлечения новых клиентов и заключения конкретных договоров. В таком формате большое значение приобретает глаженье белья, поэтому кроме гладильного катка целесообразно установить каландер, который позволяет гладить влажное белье, а значит экономить время и электроэнергию при сушке и, к тому же, обеспечивает более высокое качество глаженья. Этот участок должен иметь достаточные помещения для хранения грязного и чистого белья, так как в сутки может обрабатываться от 300 до 1000 кг и более.
Химчистка, как правило, оборудуется как минимум двумя машинами химчистки загрузкой от 16 и от 25 кг. Целесообразно рассматривать комплектацию покупаемой машины химчистки в соответствии с теми предполагаемыми задачами, которые она будет решать, например, чистка спецодежды для организаций или чистка кожи, замши, меха не только для своих клиентов, но и по договору для других химчисток.
При установке машины с альтернативным растворителем вы также можете оказывать эту услугу другим химчисткам, чтобы загрузить дорогостоящее оборудование.
Наличие больших площадей позволяет вам организовать чистку ковров. В настоящее время предлагается большой выбор оборудования как для ручной, так и для машинной чистки ковров. Машины химчистки и аквачистки с большой загрузкой позволят вам чистить такие крупные заказы как шторы, занавеси, чехлы для мебели и машин. Большим спросом пользуется услуга по снятию штор и их развешиванием после чистки в загородных домах и коттеджах, чистка ковров и мебели на дому.
Для загрузки оборудования целесообразно открывать не только свои приемные пункты, но и заключать договоры на обслуживание со смежными организациями бытового обслуживания, такими как ателье по ремонту одежды, ателье по ремонту обуви, мини домами быта.
Приемный пункт химчистки целесообразно открывать не в отдельном помещении, а ставить павильон в торговых центрах, сетевых гипермаркетах и т.
п. Самым выгодным местом является предкассовая зона супермаркета, обеспечивающая постоянный трафик клиентов. Приемный пункт занимает площадь около 6 м2, оборудован прилавком длиной около 3 метров, чтобы разделить зоны чистых и грязных вещей и системой хранения для готовых заказов. В последнее время все более широкое распространение получают автоматические пункты приема-выдачи заказов химчистки типа телепорт. Они устанавливаются в подъездах элитных жилых домов, современных жилых массивов. Вы экономите на аренде, на зарплате сотрудников, но эта услуга доступна только тем химчисткам, которые пошли по пути автоматизации своих производственных процессов. О таких системах автоматизации мы поговорим в следующей статье, которая будет посвящена финансовым затратам на организацию химчистки, экономическим расчетам ее эффективности, проблемам учета и автоматизации.
Продолжение следует.
ТЕКСКЕПРО — мир правильных решений» для химчистки, стирки и аквачистки
контакты компании
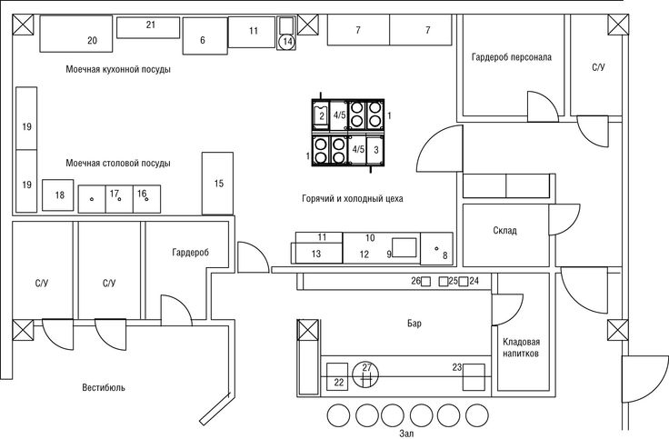
Проект кафе и ресторана — основые требования к помещениям.

Чтобы избежать проверок и штрафов от контролирующих органов, должны быть соблюдены все
основные требования нормативной документации, касающейся предприятий общественного питания.
Для проекта кафе и ресторана важно учитывать основные из них: СанПиН 2.3.6.1079-01 «Санитарно-эпидемиологические требования к организации общественного питания, изготовлению и оборотоспособности в них пищевых продуктов и продовольственного сырья», СНиП 31-06-2009 «Общественные здания и сооружения», МГСН 4 14-98 «Предприятия общественного питания», Пособие к СНиП 2.08.02-89 «Проектирование предприятий общественного питания» и др.
Согласно СанПиН 2.3.6.1079-01, организации могут размещаться как в отдельно стоящем здании, так и в пристроенном к жилым и общественным зданиям, в нежилых этажах жилых зданий, в общественных зданиях, а также на территории промышленных и иных объектов для обслуживания работающего персонала. При этом не должны ухудшаться условия проживания, отдыха, лечения, труда людей.
Если Ваше заведение расположено в жилом доме, то разгрузку нельзя осуществлять со стороны окон и входов в квартиры, а сети бытовой и производственной канализации не объединяются с хозяйственно-фекальной канализацией этого дома. Также во всех производственных цехах, моечных, загрузочных необходимы сливные трапы, про которые часто забывают.
Все основные функциональные группы помещений в структуре предприятия (здания) должны иметь четкое зонирование и удобную функционально-технологическую взаимосвязь по средствам производственных коридоров, исключая пересечение людо- и грузопотоков.
Ширина коридоров зависит от типа помещений и количества мест в зале. Так например ширина производственных коридоров при заведении на 100 мест составляет 1,3м.
Еще при планировании заведения необходимо предусматривать последовательность (поточность) технологических процессов, исключающих встречные потоки сырья, сырых полуфабрикатов и готовой продукции, использованной и чистой посуды, а также встречного движения посетителей и персонала.
Также важна расстановка оборудования по ходу технологического процесса, что предполагает размещение каждой позиции оборудования в соответствии с выполняемой технологической операцией основываясь на их последовательности, чтобы минимизировать затраты времени и сил на перемещение персонала.
Не менее важно соблюдать расстояние между оборудованием, чтобы избежать травм и исключить нерациональное перемещение персонала. Так, расcтояние между нейтральным оборудованием (столы, ванны, стеллажи и др.) и оборудованием выделяющим тепло (плиты, печи, пароконвектоматы и др.) должно быть не менее 1,3м, между стеной и нейтральным видом оборудования 1 метр.
Минимальная площадь производственных помещений составляет 5 кв.м. Исходя из практики проектирования предприятий общественного питания в соответствие с соблюдением требований нормативной документации такая площадь достаточна только для овощного цеха, при расстановке в нем минимального количества оборудования, для остальных же цехов фактические площади обычно составляют 8 кв.
м и выше при соблюдение расстояния между оборудованием в нем и минимальном его количестве.
Основываясь на пособии к СНиП 2.08.02-89 «Проектирование предприятий общественного питания» площадь производственной группы помещений ресторана на 100 мест, работающем на сырье, составляет 211 кв.м, столовой на 100 мест — 126 кв. м, для кафе и закусочных на 100 мест, работающих на полуфабрикатах при обслуживании официантами — 39 кв. м. В производственных помещениях, в помещениях приема и хранения продуктов, площадью до 10 м2 двери проектируются шириной не менее 0,9 м, площадью более 10 м2 — не менее 1,2 м; двери для тележек с поддонами следует принимать шириной 1,8 м.
Производственные помещения размещаются в единой функциональной зоне для сохранения единого производственного процесса. Размещение производственных цехов происходит в отдельных помещениях, которые не должны быть проходными. Исключение могут составлять отделения цехов, связанные последовательными технологическими процессами.
В предприятии до 50 мест допускается объединение горячего и холодного цехов, а свыше 50 мест допускается при соблюдении заданных температурных режимов в них и желательно разделить их барьером высотой не менее 1,5м.
Что касается систем вентиляции и кондиционирование, то еще на начальном этапе желательно выяснить данные по отоплению, кондиционированию и воздухоотведению рассматриваемого помещения. Необходимо продумать расположение воздухоотводов и вентиляционных систем. Устройство и оборудование выбросов систем местной вытяжной вентиляции не должны ухудшать качество жизни людей, проживающих рядом.
Система вытяжной вентиляции предприятия питания, расположенного в зданиях иного назначения, оборудуется отдельно от системы вентиляции этих зданий. Шахты вытяжной вентиляции выступают над коньком крыши или поверхностью плоской кровли на высоту не менее 1 метра.
Что касается отделки, то стены производственных помещений на высоту не менее 1,7 м отделываются облицовочной плиткой или другими материалами, выдерживающими влажную уборку и дезинфекцию.
Потолки оштукатуриваются и белятся или отделываются другими материалами. Полы выполняются из ударопрочных материалов, исключающих скольжение, и имеют уклоны к сливным трапам. Устройство порогов на путях перемещения продуктов, готовых блюд и использованной посуды не допускается.
Стены и потолки складских помещений оштукатуриваются и белятся. Стены на высоту не менее 1,7 м окрашиваются влагостойкими красками для внутренней отделки. Высота помещений предприятия питания до низа выступающих конструкций и подвесных потолков должна быть не менее 2,7 м. При этом рекомендуется для производственных помещений принимать: 2,7 м — в предприятиях до 150 мест; 3 м — в предприятиях от 150 до 300 мест; 3,6 м — в предприятиях от 300 мест и более. Высоту до низа выступающих вентблоков в производственных, складских и бытовых помещениях допускается принимать 2,5 м.
У будущего владельца еще на стадии выбора помещения и проектирования ресторана или кафе возникает множество вопросов на которые могут ответить только специалисты.
Наша компания на основании плана БТИ поможет оценить возможность правильной планировки вашего будущего заведения и соответствия всем нормам и требованиям.
Как организовать кухонную технику
То, как вы расположите кухонную технику, зависит от того, какой вы повар. То, как вы храните эти приборы в кухонных шкафах, будет зависеть от того, какие из них вы используете чаще всего. Если вы любитель сыроедения, ваш блендер будет в центре внимания. Веганы всегда будут иметь под рукой скороварку, а у мясоедов всегда под рукой мультиварка и гриль. Независимо от того, какой вы повар, процесс состоит из четырех этапов:
- Группировка по назначению
- Разборка бытовой техники
- Удаление беспорядка в шкафу
- Содержание в порядке
Вот подробности о том, как организовать, убрать и хранить все ваши кухонные приборы.
01 из 07
Сократите свои бытовые приборы
Ель / Фиона Кэмпбелл
Первый шаг к расхламлению и организации вашей кухонной техники — это сгруппировать ее по назначению: часто используемую, редко используемую и никогда не использовавшуюся.
Если у вас ограниченное пространство для хранения на кухне, важно разумно распределить его, приобретя технику, которая может использоваться многократно. Внимательно изучите свои приборы, чтобы убедиться, что они используются надежно, а не на одну ноту.Например, подумайте о покупке высококачественного блендера, который можно использовать как кухонный комбайн. Вам действительно нужен пресс для панини, когда у вас уже есть вафельница? Кастрюля может произвести партию идеально приготовленного риса. На самом деле нет необходимости в рисоварке, если вы не используете ее ежедневно.
Подсказка
Хорошее эмпирическое правило — иметь очень мало одноразовых предметов (если, конечно, вы не используете их часто).
02 из 07
Избавьтесь от неиспользуемых приборов
Ель / Фиона Кэмпбелл
Это простой, но часто самый трудный шаг для людей. Если вы не пользуетесь прибором, как бы вам ни хотелось его использовать, пришло время от него отказаться.
Подумайте о рисоварках, соковыжималках и устройствах для приготовления яиц. Если вы используете эти приборы, отлично. Держать их. Но если вы никогда не варили яйцо-пашот или не готовили себе зеленый сок, скорее всего, вы не собираетесь этого делать и в будущем. Используйте место для хранения кухонного шкафа для техники, которой вы действительно пользуетесь.Совет
Если вам трудно расстаться с вещью, возьмите на себя обязательство хранить ее в течение 30 дней. Использование такого прибора, как соковыжималка, — это изменение образа жизни, поэтому переместите его на столешницу. Если вы начнете пользоваться соковыжималкой и это войдет в привычку, сохраните ее.
03 из 07
Пожертвуйте или утилизируйте бытовые приборы, которыми вы никогда не пользуетесь
Ель / Фиона Кэмпбелл
Неиспользуемая кухонная техника может легко найти новый дом через пожертвование, комиссию или продажу через Интернет. Пожертвование — это фантастический способ навести порядок и передать свои инструменты в чужие руки (либо томиться в их кухонном шкафу, либо, надеюсь, быть использованными).
Найдите местную благотворительную организацию для пожертвований, например Habitat for Humanity, местную благотворительную организацию Goodwill, местную церковь или молитвенный дом. Вы также можете продать их на eBay или устроить гаражную распродажу.Если прибор больше не находится в рабочем состоянии, его можно утилизировать. Узнайте в местных центрах утилизации, принимают ли они кухонную технику. Вы также можете пожертвовать их компании Freecycle, чтобы они переработали устройство для вас.
Если вы не уверены, стоит ли вам избавляться от прибора или нет, попробуйте метод коробки. Положите его в коробку и храните вне поля зрения. Если через месяц вам понадобится прибор, то оставьте его себе. Если вы никогда об этом не думаете, то пришло время пожертвовать, переработать или продать это.
04 из 07
Беспорядок в шкафу
Ель / Фиона Кэмпбелл
Теперь, когда вы урезали, важно сделать ваши шкафы как можно более организованными и удобными для навигации.

Советы
- Потратьте время, чтобы обернуть шнур вокруг устройства, прежде чем убрать его в шкаф. Это устраняет беспорядок и выглядит более организованным.
- Купите табурет-стремянку для хранения техники на верхних полках.
- Добавляйте руководства к устройствам в закладки онлайн или сохраняйте их в Google Docs — больше не нужно хранить ненужный бумажный беспорядок.
- Храните надоедливые мелкие детали (подумайте обо всех этих насадках для кухонного комбайна) в пакетах с застежкой-молнией и соответствующим образом маркируйте их.
- Проведите субботнее утро и наведите порядок в кухонных шкафах.
05 из 07
Перемещение редко используемых кухонных приборов на хранение
Ель / Фиона Кэмпбелл
Это кухонный прибор, которым вы пользуетесь раз в три-четыре месяца. Подумайте: блендер (если вы не любитель приготовления смузи), кухонный комбайн, вафельница, мороженица, мультиварка — вы поняли.
Храните эти редко используемые приборы на более высокой полке. Если вы не используете что-то часто, оно не должно занимать ценное место на столешнице или в низком шкафу.Совет
Они могут меняться в зависимости от сезона, например, медленноварка может стать предметом частого использования осенью/зимой, а мороженица может выйти из верхней полки весной/летом.
06 из 07
Храните приборы, которыми вы постоянно пользуетесь
Ель / Фиона Кэмпбелл
Не существует единственно правильного способа хранения кухонной техники. Ваша схема организации и хранения будет зависеть от того, какой тип повара вы, какие бытовые приборы вы используете регулярно, и размер места для хранения вашего кухонного шкафа.
Итак, теперь у вас осталась техника, регулярно используемая на вашей кухне. Вы должны хранить их там, где вы их используете.
Три эмпирических правила заключаются в том, чтобы размещать часто используемые приборы на столешнице или на самой нижней полке верхнего шкафа, чтобы их было легко достать; редко используемая техника должна уходить в верхнюю часть шкафов; и никогда не используемые предметы должны быть проданы или пожертвованы.

Чистая и прозрачная кухонная столешница — это благородная цель, но не бойтесь хранить некоторые из часто используемых вами приборов — кофеварку, блендер, тостер — спереди и по центру столешницы. Организация кухни заключается в том, чтобы сделать ваши шкафы, кладовую, холодильник и бытовую технику функциональными.
Совет
Помимо бытовой техники, пять предметов, которые всегда должны быть под рукой, это ваш лучший нож, дуршлаг, разделочная доска, сотейник и кастрюля.
07 из 07
Обслуживание и обновление
Ель / Фиона Кэмпбелл
Чем чаще вы будете организовывать свою кухонную технику, тем меньше времени будет занимать каждый сезон. Старайтесь перебирать свои шкафы не реже двух раз в год. Если вы действительно хотите уточнить это, попробуйте пометить дверцы шкафа.
Организация кухонной техники может показаться сложной задачей, но она того стоит, чтобы создать обтекаемую и функциональную кухню.
Как только техника окажется на своем месте — даже если для этого придется пожертвовать соковыжималку, которой вы никогда не пользовались, — добраться до тостера утром или пожарить курицу на ужин станет еще проще.
Как чистить 7 небольших кухонных приборов
10 уникальных идей для организации инструментов
От
Лорен Томанн
Лорен Томанн
Лорен Томанн увлечена рукоделием и обустройством дома своими руками и пишет на обе темы. Самостоятельно ремонтируя свое бунгало 1916 года, она делится уроками, полученными в своих статьях «Сделай сам» и обустройстве дома.
Узнайте больше о The Spruce’s Редакционный процесс
Обновлено 19.07.22
Рассмотрено
Кэтрин Пикотт
Рассмотрено Кэтрин Пикотт
Кэтрин — профессиональный домашний организатор, сертифицированный консультант KonMari и член Наблюдательного совета The Spruce по уборке и организации.
Летом 2020 года она запустила свой собственный профессиональный организующий бизнес Tidy Milso, чтобы помочь переориентировать тех, кто чувствует себя подавленным беспорядком и неорганизованностью в своих домах.
Узнайте больше о The Spruce’s Наблюдательный совет
Ель / Ана Кадена
Не существует волшебной формулы того, как организовать инструменты. Организация инструментов может быть очень личным проектом, потому что это зависит от вашего конкретного пространства и потребностей. Вы столяр, ремонтник дома или любитель по выходным? Возможно, вам потребуются небольшие решения для хранения или вам может потребоваться масштабирование для доступного размещения электроинструмента. Независимо от вашей ниши, у каждого удобного домовладельца есть инструменты, которые нужно сортировать, и есть несколько умных способов выполнить эту работу.
Вот 10 советов по организации инструментов, которые помогут вам навести порядок в мастерской.
01 из 10
Создание зон для различных инструментов
Популярная Деревообработка
Первым шагом к организации инструментов является тщательная инвентаризация.
Как только вы получите общее представление об имеющихся инструментах, рассортируйте их по категориям. Сгруппируйте все электроинструменты, небольшие ручные инструменты и так далее. Затем создайте зоны и используйте шкафы, чтобы хранить одинаковые предметы вместе.Например, вот самодельный шкаф для хранения, предназначенный для настольной пилы. При планировании планировки мастерской этот шкаф будет подвешен в непосредственной близости от настольной пилы. Такие детали на первый взгляд могут показаться тривиальными, но они улучшат эргономику пространства.
Шкаф для хранения настольной пилы от Popular Woodworking
02 из 10
Сборка шкафа для инструментов с основанием из перфорированной панели
Ремоделоголик
Лучший способ упорядочить инструменты — настроить предметы для хранения в соответствии с пространством. Например, покупка верстака не так эффективна, как его создание с определенными местами для хранения инструментов, которыми вы владеете.

Создание шкафа для инструментов — это разумный способ максимально использовать вертикальное пространство, которое у вас есть. Используйте перфорированную доску в качестве подложки и на дверцах шкафа, чтобы у вас было достаточно места для подвешивания инструментов.
Организованный шкаф для инструментов Pegboard и простой верстак от Remodelaholic
03 из 10
Настенная панель с контейнерами и корзинами
Красивый беспорядок
Многие люди предпочитают открытое хранение в своих мастерских. Вместо того, чтобы хранить инструменты и предметы первой необходимости в шкафах, домовладельцы предпочитают держать эти предметы на открытом воздухе.
Если у вас глухая стена, установите большую решетчатую стеновую систему, подобную той, что вы можете увидеть в розничном магазине. Вы можете использовать крючки, чтобы повесить инструменты. Кроме того, рассмотрите возможность хранения подобных предметов в корзинах и прозрачных пластиковых контейнерах.
Таким образом, вы сможете упаковать больше предметов на каждый квадратный метр.Организация мастерской из A Beautiful Mess
04 из 10
Разные инструменты для подвешивания к настенным полосам или крючкам
Шанти 2 Шик
Опять же, один из самых эффективных способов сохранить рабочую поверхность чистой — это иметь достаточно места для вертикального хранения. Инструменты, спрятанные в инструментальных ящиках и ящиках, могут быть забыты или потеряны. Так что чем больше вы сможете визуально увидеть на стенах, тем лучше.
Есть много способов повесить инструменты на стену, включая рейки и колышки. Еще один популярный вариант – использование вертикальных планок и анкерных крюков на планке. Для небольших инструментов рассмотрите магнитную полосу.
Шкафы DIY от Shanty 2 Chic
05 из 10
Организуйте часто используемые инструменты на мобильном верстаке
Девушка из опилок
Многим людям трудно организовать часто используемые электроинструменты, особенно когда они заняты крупным проектом.
Если вы занимаетесь ремонтом дома и изо всех сил пытаетесь содержать свои инструменты в порядке, рассмотрите возможность добавления мобильного верстака.Планы для этого верстака включают достаточное подвесное хранилище для электроинструментов и место для хранения более крупных инструментов, таких как воздушные компрессоры. Постарайтесь встроить как можно больше места для хранения, чтобы верхняя часть оставалась чистой рабочей поверхностью.
Мобильный верстак для хранения инструментов от Saw Dust Girl
06 из 10
Используйте пустое пространство на торцах шкафов
Свежая давка
Конец шкафа или верстака — идеальное место для дополнительного хранения инструментов. Прежде чем пойти и купить древесину для этого проекта, проверьте, есть ли у вас обрезки, которые вы могли бы использовать вместо них.
Помните, что это место идеально подходит для часто используемых инструментов, таких как отвертки, если оно находится недалеко от вашей рабочей зоны.
Если шкаф находится в другом конце мастерской, рассмотрите возможность хранения чего-то еще, к чему вы не будете так часто обращаться в этом месте.Хранение отверток DIY от Fresh Crush
07 из 10
Храните неудобные инструменты в сумках с этикетками
Привет сахарная слива
Некоторые инструменты не имеют смысла на стене из перфорированной доски, или, может быть, они просто не поместятся в пространстве. Храните предметы нестандартного размера, такие как малярные валики и тюбики с мелом, в прозрачных пластиковых контейнерах. И хранить сумки на открытом стеллаже.
Несмотря на то, что контейнеры чистые, полезно потратить время на маркировку каждого контейнера. Этот шаг повысит вероятность того, что вы и другие члены вашей семьи вернете инструменты на место.
Организованный гараж, краска и инструменты от Hi Sugarplum
08 из 10
Храните гайки и болты в прозрачных банках Mason
Роберт Дейли / Getty ImagesНекоторые рабочие любят сохранять каждый запасной винт, а некоторые нет.
Если вы один из первых, убедитесь, что у вас есть система для сортировки всех этих разных предметов.Прозрачные стеклянные банки хорошо подходят для организации мелких деталей, но вы должны иметь возможность поставить эти банки в такое место, где они не будут загромождать место на прилавке. Подумайте о том, чтобы сделать открытые полки, на которых они могли бы сидеть. Вы даже можете привинтить крышки к нижней части полки и подвесить банки к крышкам.
09 из 10
Установка станции подзарядки аккумуляторов
Ее пояс для инструментов
Аккумуляторные электроинструменты прекрасны, если вы не теряете их аккумуляторы и зарядные устройства. Создайте собственную зарядную станцию для ваших наиболее часто используемых электроинструментов и не забудьте добавить розетку, чтобы место для хранения было функциональным.
Этот настенный блок хорошо подходит для небольшой коллекции электроинструментов. Но вам может потребоваться что-то более существенное, если у вас значительно больше беспроводных инструментов, чем это.


Если у вас ограниченное пространство для хранения на кухне, важно разумно распределить его, приобретя технику, которая может использоваться многократно. Внимательно изучите свои приборы, чтобы убедиться, что они используются надежно, а не на одну ноту.
Подумайте о рисоварках, соковыжималках и устройствах для приготовления яиц. Если вы используете эти приборы, отлично. Держать их. Но если вы никогда не варили яйцо-пашот или не готовили себе зеленый сок, скорее всего, вы не собираетесь этого делать и в будущем. Используйте место для хранения кухонного шкафа для техники, которой вы действительно пользуетесь.
Найдите местную благотворительную организацию для пожертвований, например Habitat for Humanity, местную благотворительную организацию Goodwill, местную церковь или молитвенный дом. Вы также можете продать их на eBay или устроить гаражную распродажу.
Храните эти редко используемые приборы на более высокой полке. Если вы не используете что-то часто, оно не должно занимать ценное место на столешнице или в низком шкафу.
Как только вы получите общее представление об имеющихся инструментах, рассортируйте их по категориям. Сгруппируйте все электроинструменты, небольшие ручные инструменты и так далее. Затем создайте зоны и используйте шкафы, чтобы хранить одинаковые предметы вместе.
Таким образом, вы сможете упаковать больше предметов на каждый квадратный метр.
Если вы занимаетесь ремонтом дома и изо всех сил пытаетесь содержать свои инструменты в порядке, рассмотрите возможность добавления мобильного верстака.
Если шкаф находится в другом конце мастерской, рассмотрите возможность хранения чего-то еще, к чему вы не будете так часто обращаться в этом месте.
Если вы один из первых, убедитесь, что у вас есть система для сортировки всех этих разных предметов.