Правила оформления генплана на чертеже
В правила оформления генплана входит:
- Основы оформления генплана.
- Организация транспортного и пешеходного движения.
- Благоустройство территории.
- Озеленение территории.
- Привязка зданий на генплане.
ОСНОВЫ ОФОРМЛЕНИЯ ГЕНПЛАНА
Генеральный план в составе архитектурно-конструктивного проекта здания представляет собой чертеж горизонтальной планировки с решением вопросов благоустройства и озеленения участка проектируемого здания, располагаемого в системе жилой застройки микрорайона или квартала селитебной территории города.
Для разработки генерального плана проектируемого здания размер земельного участка для него и окружающей застройки следует определять:
Для жилых зданий земельный участок (включая площадь застройки), выделяемый около жилых домов, следует принимать из расчета не более 150 м2 на одну квартиру в многоэтажных блокированных домах, а в крупных городах IV климатического района эта площадь уменьшается, но должна составлять не менее 40 м2 на одну квартиру.
Для общественных зданий:
1. Детские сады-ясли, из расчета на одно место:
— в яслях-садах на 90 мест 40 м2;
— в яслях-садах на 140-320 мест 35 м2;
— в комплексах садов-яслей на 560-640 мест 30 м2 .
2. Средние учебные заведения, в зависимости от вместимости (на 1000 учащихся):
— на 480 учащихся 6,0 га;
— на 960 учащихся 4,0 га;
— на 1200 учащихся 3,6 га;
— на 1440 учащихся 3,2 га;
— на 1920 учащихся 3,0 га.
3. Учреждения культуры и искусства, в расчете на 1000 человек:
— клуб 0,6 га;
— библиотека 0,3 га;
— кинотеатр 5,0 м2 на одно место;
— дом культуры 0,5 -1,0 га
4. Предприятия торговли, общественного питания, бытового обслуживания, связи и коммунального хозяйства:
— торговый центр 0,5 — 0,8 га;
— магазин торговой площадью, м2 :
250 — 650 0,1 — 0,3 га;
1000 — 2000 0,3 — 0,5 га;
2500 — 4500 0,6 — 1,0 га;2500 — 4500 0,6 — 1,0 га;
5. Предприятия общественного питания с количеством мест в зале (на одно посадочное место в зале):
— до 50 включительно 28 м2;
— до 100 — « — 23 м2;
— до 200 — « — 14 м2;
— до 300 — « — 10 м2;
— до 500 — « — 9 м2;
— до 1000 — « — 7 м2;
6. Приемные прачечных, химчисток 0,1 га
7. Бани 0,2 га;
8. Дома быта 0,6 га;
9. Предприятия связи 0,5 га;
10. ЖЭК 0,4 га.
ОРГАНИЗАЦИЯ ТРАНСПОРТНОГО И ПЕШЕХОДНОГО ДВИЖЕНИЯ
При разработке чертежа горизонтальной планировки большое внимание следует уделять
организации транспортного и пешеходного движения. Учитывая правила оформления генплана в пределах микрорайона допускается
передвижение только местного автомобильного транспорта для подвоза грузов к жилым и
общественным зданиям.
Внутримикрорайонные проезды по своему назначению делят на три категории:
I — проезды с двусторонним движением;
III — тупиковые проезды для подъездов к отдельным зданиям.
Для подъезда к группам жилых зданий, крупным учреждениям и предприятиям
обслуживания, торговым центрам следует предусматривать основные проезды, а к отдельно
стоящим зданиям – второстепенные проезды, размеры которых следует принимать в
соответствии с таблицей 3.
Микрорайоны и кварталы с застройкой 5 этажей и выше, как правило, обслуживаются
двухполосными, а с застройкой до 5 этажей – однополосными проездами. На однополосных
проездах следует предусматривать разъездные площадки шириной 6 м и длиной 15 м на
расстоянии не более 75 м одна от другой. В пределах фасадов зданий, имеющих входы,
проезды устраивают шириной 5,5 м.

Тупиковые проезды проектируют длиной, не превышающей 150 м и с поворотными
площадками, обеспечивающими возможность разворота мусоровозных, уборочных и
Тротуары и велосипедные дорожки следует устраивать приподнятыми на 15 см над
уровнем проездов. Пересечения тротуаров и велосипедных дорожек с второстепенными
проездами, а также с основными проездами и на подходах к школам и детским дошкольным
учреждениям следует предусматривать в одном уровне с рампой, какую устраивают длиной
соответственно 1,5 и 3 м.
Расстояния от края основной проезжей части улиц, местных или боковых проездов до
линии застройки необходимо принимать не более 25 м. В случаях превышения указанного
расстояния следует предусматривать на расстоянии не ближе 5 м от линии застройки полосу
шириной 6 м, пригодную для проезда пожарных машин.
В конце проезжих частей тупиковых улиц и дорог следует устраивать площадки с
островками диаметром не менее 16 м для разворота автомобилей и не менее 30 м при
организации конечного пункта для разворота средств общественного пассажирского
На магистральных улицах регулируемого движения допускается предусматривать
велосипедные дорожки, выделенные разделительными полосами.
В зонах массового отдыха и на других озелененных территориях следует предусматривать велосипедные дорожки, изолированные от улиц, дорог и зон пешеходного движения.
Велосипедные дорожки могут устраиваться с односторонним и двусторонним
движением при наименьшем расстоянии безопасности от края дорожки:
— до проезжей части, опор и деревьев — 0,75 м;
— до тротуаров — 0,5 м;
— до стоянок автомобилей и остановок общественного транспорта — 1,5 м.
Правила оформления генплана допускают устраивать велосипедные полосы по краю проезжей части улиц и дорог с
выделением их маркировкой двойной линией. Ширина полосы должна быть не менее 1,2 м
при движении в направлении транспортного потока и не менее 1,5 м при встречном
движении. Ширина велосипедной полосы, устраиваемой вдоль тротуара, должна быть не
менее 1,0 м.
Радиусы закругления проезжей части улиц и дорог по кромке тротуара и разделительной
полосы следует принимать не менее:
— для магистральных улиц и дорог регулированного движения — 8 м;
— для улиц местного значения — 5 м;
— на транспортных площадях — 12 м.
К отдельно стоящим зданиям высотой не более 9 этажей, а также к объектам
посещаемым инвалидами, допускается устройство проездов, совмещенных с тротуарами при
протяженности их не более 150 м, шириной не менее 4,2 м, а в малоэтажной застройке (2-3
этажа) шириной не менее 3,5 м.
БЛАГОУСТРОЙСТВО ТЕРРИТОРИИ
Немаловажное значение, учитывая правила оформления генплана, при решении вопросов благоустройства территории имеет
правильное размещение площадок различного назначения (отдыха, спортивных, детских,
хозяйственных), а также малых архитектурных форм, это является одной из основ правила оформления генплана.
Размеры площадок различного назначения и расстояния от них до жилых и
Примечания:
1. Расстояния от площадок для занятий физкультурой устанавливаются в зависимости от их шумовых
характеристик; расстояния от площадок для сушки белья не нормируются, расстояния от площадок для
мусоросборников до физкультурных площадок, площадок для игр детей и отдыха взрослых следует принимать
не менее 20 м, а от площадок для хозяйственных целей до наиболее удаленного входа в жилое здание — не
более 100 м.
2. Допускается уменьшать, но не более чем на 50% удельные размеры площадок: для игр детей, отдыха
взрослого населения и занятий физкультурой в климатических подрайонах IА, IБ, IГ, IД, IIА и IVА, IVГ, в
районах с пыльными бурями при условии создания закрытых сооружений, для хозяйственных целей при
застройке жилыми зданиями 9 этажей и выше; для занятий физкультурой при формировании единого
физкультурно-оздоровительного комплекса микрорайона для школьников и населения.

Примечания:
1. *Расстояния определяются по согласованию с органами Государственного санитарно-
эпидемиологического надзора.
2. Расстояния от секционных жилых домов до открытых площадок вместимостью 101-300 машин,
размещаемых вдоль продольных фасадов, следует принимать не менее 50 м.
3.Расстояния пешеходных подходов от стоянок для временного хранения легковых автомобилей до входов
в жилые дома должны быть не более 100 м.
Открытые стоянки для временного хранения легковых автомобилей следует
предусматривать из расчета не менее чем для 70% расчетного парка индивидуальных
легковых автомобилей, в том числе, %:
— жилые районы 25;
— промышленные и коммунально-складские районы 25;
— общегородские и специализированные центры 5;
— зоны массового кратковременного отдыха 15.
ОЗЕЛЕНЕНИЕ ТЕРРИТОРИИ
Площадь озеленения территории для проектируемых зданий назначается из расчета 6 м2
Озеленение территории осуществляется за счет рядовой и групповой посадок деревьев,
кустарника, разбивки газонов и цветников.
Расстояния между стволами деревьев не должны быть менее 5 м. Минимальные
расстояния от зданий и сооружений до деревьев и кустарников принимают по таблице 6.

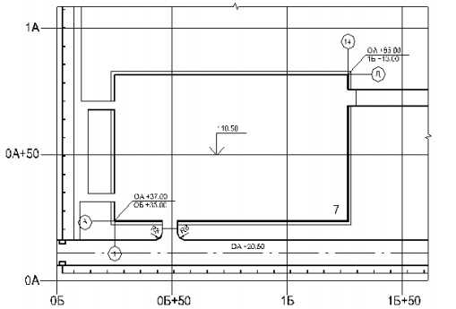
ПРИВЯЗКА ЗДАНИЙ НА ГЕНПЛАНЕ
Привязка зданий и их точное местоположение осуществляется на генплане системой
координат. Оси координат принимаются параллельно осям генерального плана, а начало –
ниже и левее чертежа, обеспечивая положительные значения координат зданий. Такую
систему координат называют строительной. В отличие от геодезической системы координат
оси строительной сетки обозначаются буквами и могут иметь любые направления по
странам света в соответствии с принятой ориентацией здания на участке.
На чертеже генерального плана, а также в натуре строительную координатную сетку
разбивают, как правило, через 100 м. Разбивочные оси строительной сетки обозначают
условными наименованиями: горизонтальные – 0А, 1А, 2А…, вертикальные – 0Б, 1Б, 2Б … и
т.д. Соответственно, на чертежах, выполняемых в масштабе 1:500, оси строительной сетки
обозначают: 0А, 0А+50, 1А, 1А+50; 0Б, 0Б+50, 1Б, 1Б+50 и т.д. Допускается, при
необходимости, применение отрицательных значений осей строительной сетки: 0А, 0А-50, —
1А, -1А-50; 0Б, 0Б-50, -1Б, -1Б-50 и т.д.
Для увязки с государственной системой геодезических координат, принимая правила оформления генплана, в которой производится топографическая съемка местности и переноса проекта в натуру, на генплане
должны быть определены геодезические координаты начала принятой системы
строительных координат (точки пересечения начальных осей строительной сетки: 0А и 0Б) и
направление осей. Последнее может быть задано координатами двух точек базиса. Здания,
двух противоположных углов, а сложной конфигурации – по точкам всех углов во избежание
ошибочного разворота здания в натуре.
Строительную координатную сетку не наносят в том случае, если есть возможность
привязать проектируемое здание к существующим зданиям или сооружениям.
Пример оформления разбивочного плана производственного предприятия с
координатной привязкой приведен на рис. 1.
Рис. 1. Фрагмент разбивочного чертежа производственного здания с координатной привязкой. Оформленный по одному из Правила оформления генплана.
Рельеф территории проектируемого здания в учебных проектах задается условно
спокойным. Горизонтали назначают через 0,5 м.
Пример чертежа смотрите здесь.
chertegik.ru
Проектирование временных дорог
Для доставки на строительную площадку строительных грузов необходимо сооружение временных внутрипостроечных дорог. Временные дороги сооружаются после окончания вертикальной планировки территории, устройства дренажей, водостоков и инженерных коммуникаций, кроме временных. Строительство временных дорог должно быть закончено до начала работ по сооружению подземной части зданий.
Виды дорог. На строительных площадках используются в основном автомобильные дороги. Железнодорожные дороги используется в основном при сооружении крупных промышленных блоков.
Проектирование дорог. При проектировании внутрипостроечных дорог решаются следующие задачи:
1) разрабатывается схема движения транспорта и расположение дорог в плане;
2) устанавливаются параметры дорог и опасных зон;
3) назначаются конструкции дорог, рассчитываются объемы работ и необходимые ресурсы.
Схема движения и расположение дорог в плане должны обеспечивать подъезд в зону действия монтажных кранов, к площадкам укрупнительной сборки, к складам, мастерским, к бытовым помещения и т.д. Трассу временных дорог необходимо проектировать максимально по трасам будущих постоянных дорог. Как правило, построечные дороги должны быть кольцевыми, а на тупиковых дорогах устраиваются разъездные и разворотные площадки.
При трассировке дорог должны соблюдаться следующие минимальные расстояния:
– между дорогой и складской площадкой – ≥ 0,5 …1,0 м;
– между дорогой и подкрановыми путями – ≥ 6,5 … 12,5 м;
– между дорогой и осью железнодорожных путей – ≥ 3,75 м;
– между дорогой и забором строительной площадки – более 1,5 м;
– между дорогой и бровкой траншеи – более 1,5 м.
На СГП должны быть отмечены въезды и выезды, направления движения, развороты, разъезды, стоянки при разгрузке, а также указаны расположение знаков безопасности движения.
Параметрами временных дорог являются:
– число полос движения;
– радиус закругления дорог;
– величина расчетной видимости.
На временных дорогах движение бывает в одну и две полосы.
Ширина проезжей части принимается при:
– однополосном движении – 3.5 м;
– двухполосном движении – 6 м.
Если для доставки грузов используются автомашины 25 и более тонн (Маз, Белаз и др.), то ширина проезжей части увеличивается до 8 метров.
На дорогах с однополосным движением в пределах видимости, но не менее чем через 100 м, необходимо устраивать площадки уширения шириной 6 метров и длиной 12 или 18 метров. Такие же площадки устраиваются в местах разгрузки материалов при любой схеме движения автотранспорта
В местах пересечения железных дорог устраивается сплошной настил, ограждения и освещение. Ширина проезжей части на пересечениях железной дороги должна быть не менее 4,5 м. Переезды организовываются под углом 60 – 90 градусов, оборудуются звуковой и световой сигнализацией. Если интенсивное движение, устраиваются шлагбаумы.
Радиусы закругления дорог определяются исходя из маневровых свойств автомашин и автопоездов. Минимальный радиус закругления для строительных поездов – 12 м. В местах закруглений ширина однополосной дороги должна быть увеличена до 5 м.
Расчётная видимость по направлению движения для однополосных дорог должна быть не менее 50 м, а боковая (на перекрестке) – не менее 35 м.
Временные дороги, которые проходят в зоне монтажа, на СГП обозначаются штриховкой.
Сквозной проезд через опасные зоны запрещен.
Конструкции временных дорог необходимо проектировать согласно нагрузкам, возникающим при движении большегрузного автотранспорта.
Постоянные дороги для использования в период строительства нужно выполнять в две очереди. Вначале делают дороги и укладывают один слой асфальтобетонного покрытия. К концу строительства производят ремонт нижнего слоя и устраивают новый верхний слой.
Конструкции временных дорог зависят от конкретных условий эксплуатации и могут быть следующих типов:
– естественные грунтовые профилированные;
– грунтовые улучшенной конструкции;
– с твердым покрытием;
– из сборных железобетонных инвентарных плит.
Грунтовые дороги устраиваются при небольшой интенсивности движения транспорта (до 3-4 автомашины в час) в одном направлении. Если дороги испытывают большие нагрузки, то они укрепляются гравием, шлаком, песчано-гравийно-глинистой смесью и др. Отсыпку гравия производят с устройством корыта и без устройства корыта 1-2 слоями с уплотнением.
Построечные дороги под нагрузку 12 т лучше всего осуществлять из сборных железобетонных плит. Плиты укладываются на песчаную постель 10-20 см. Хорошо зарекомендовали себя дорожные плиты с предварительным напряжением.
Организация приобъектных складов
Приобъектные склады организуются для временного хранения материалов, конструкций, изделий и оборудования в процессе строительства. Объемы складирования должны быть сведены к минимуму.
При проектировании приобъектных складов решаются следующие задачи:
1) определение объёмов запасов материалов, конструкций и изделий, подлежащих хранению;
2) расчет площади складов для основных видов материальных ресурсов;
3) выбор рациональных типов складов и размещение их на строительной площадке.
studfiles.net
| На главную | База 1 | База 2 | База 3 |
| Поиск по реквизитамПоиск по номеру документаПоиск по названию документаПоиск по тексту документа |
| Искать все виды документовДокументы неопределённого видаISOАвиационные правилаАльбомАпелляционное определениеАТКАТК-РЭАТПЭАТРВИВМРВМУВНВНиРВНКРВНМДВНПВНПБВНТМ/МЧМ СССРВНТПВНТП/МПСВНЭВОМВПНРМВППБВРДВРДСВременное положениеВременное руководствоВременные методические рекомендацииВременные нормативыВременные рекомендацииВременные указанияВременный порядокВрТЕРВрТЕРрВрТЭСНВрТЭСНрВСНВСН АСВСН ВКВСН-АПКВСПВСТПВТУВТУ МММПВТУ НКММПВУП СНЭВУППВУТПВыпускГКИНПГКИНП (ОНТА)ГНГОСТГОСТ CEN/TRГОСТ CISPRГОСТ ENГОСТ EN ISOГОСТ EN/TSГОСТ IECГОСТ IEC/PASГОСТ IEC/TRГОСТ IEC/TSГОСТ ISOГОСТ ISO GuideГОСТ ISO/DISГОСТ ISO/HL7ГОСТ ISO/IECГОСТ ISO/IEC GuideГОСТ ISO/TRГОСТ ISO/TSГОСТ OIML RГОСТ ЕНГОСТ ИСОГОСТ ИСО/МЭКГОСТ ИСО/ТОГОСТ ИСО/ТСГОСТ МЭКГОСТ РГОСТ Р ЕНГОСТ Р ЕН ИСОГОСТ Р ИСОГОСТ Р ИСО/HL7ГОСТ Р ИСО/АСТМГОСТ Р ИСО/МЭКГОСТ Р ИСО/МЭК МФСГОСТ Р ИСО/МЭК ТОГОСТ Р ИСО/ТОГОСТ Р ИСО/ТСГОСТ Р ИСО/ТУГОСТ Р МЭКГОСТ Р МЭК/ТОГОСТ Р МЭК/ТСГОСТ ЭД1ГСНГСНрГСССДГЭСНГЭСНмГЭСНмрГЭСНмтГЭСНпГЭСНПиТЕРГЭСНПиТЕРрГЭСНрГЭСНсДИДиОРДирективное письмоДоговорДополнение к ВСНДополнение к РНиПДСЕКЕНВиРЕНВиР-ПЕНиРЕСДЗемЕТКСЖНМЗаключениеЗаконЗаконопроектЗональный типовой проектИИБТВИДИКИМИНИнструктивное письмоИнструкцияИнструкция НСАМИнформационно-методическое письмоИнформационно-технический сборникИнформационное письмоИнформацияИОТИРИСОИСО/TRИТНИТОсИТПИТСИЭСНИЭСНиЕР Республика КарелияККарта трудового процессаКарта-нарядКаталогКаталог-справочникККТКОКодексКОТКПОКСИКТКТПММ-МВИМВИМВНМВРМГСНМДМДКМДСМеждународные стандартыМетодикаМетодика НСАММетодические рекомендацииМетодические рекомендации к СПМетодические указанияМетодический документМетодическое пособиеМетодическое руководствоМИМИ БГЕИМИ УЯВИМИГКМММНМОДНМонтажные чертежиМос МУМосМРМосСанПинМППБМРМРДСМРОМРРМРТУМСанПиНМСНМСПМТМУМУ ОТ РММУКМЭКННАС ГАНБ ЖТНВННГЭАНДНДПНиТУНКНормыНормы времениНПНПБНПРМНРНРБНСПНТПНТП АПКНТП ЭППНТПДНТПСНТСНЦКРНЦСОДМОДНОЕРЖОЕРЖкрОЕРЖмОЕРЖмрОЕРЖпОЕРЖрОКОМТРМОНОНДОНКОНТПОПВОПКП АЭСОПНРМСОРДОСГиСППиНОСНОСН-АПКОСПОССПЖОССЦЖОСТОСТ 1ОСТ 2ОСТ 34ОСТ 4ОСТ 5ОСТ ВКСОСТ КЗ СНКОСТ НКЗагОСТ НКЛесОСТ НКМОСТ НКММПОСТ НКППОСТ НКПП и НКВТОСТ НКСМОСТ НКТПОСТ5ОСТНОСЭМЖОТРОТТПП ССФЖТПБПБПРВПБЭ НППБЯПВ НППВКМПВСРПГВУПереченьПиН АЭПисьмоПМГПНАЭПНД ФПНД Ф СБПНД Ф ТПНСТПОПоложениеПорядокПособиеПособие в развитие СНиППособие к ВНТППособие к ВСНПособие к МГСНПособие к МРПособие к РДПособие к РТМПособие к СНПособие к СНиППособие к СППособие к СТОПособие по применению СППостановлениеПОТ РПОЭСНрППБППБ-АСППБ-СППБВППБОППРПРПР РСКПР СМНПравилаПрактическое пособие к СППРБ АСПрейскурантПриказПротоколПСРр Калининградской областиПТБПТЭПУГПУЭПЦСНПЭУРР ГазпромР НОПРИЗР НОСТРОЙР НОСТРОЙ/НОПР РСКР СМНР-НП СРО ССКРазъяснениеРаспоряжениеРАФРБРГРДРД БГЕИРД БТРД ГМРД НИИКраностроенияРД РОСЭКРД РСКРД РТМРД СМАРД СМНРД ЭОРД-АПКРДИРДМРДМУРДПРДСРДТПРегламентРекомендацииРекомендацияРешениеРешение коллегииРКРМРМГРМДРМКРНДРНиПРПРРТОП ТЭРС ГАРСНРСТ РСФСРРСТ РСФСР ЭД1РТРТМРТПРУРуководствоРУЭСТОП ГАРЭГА РФРЭСНрСАСанитарные нормыСанитарные правилаСанПиНСборникСборник НТД к СНиПСборники ПВРСборники РСН МОСборники РСН ПНРСборники РСН ССРСборники ценСБЦПСДАСДАЭСДОССерияСЗКСНСН-РФСНиПСНиРСНККСНОРСНПСОСоглашениеСПСП АССП АЭССправочникСправочное пособие к ВСНСправочное пособие к СНиПСправочное пособие к СПСправочное пособие к ТЕРСправочное пособие к ТЕРрСРПССНССЦСТ ССФЖТСТ СЭВСТ ЦКБАСТ-НП СРОСТАСТКСТМСТНСТН ЦЭСТОСТО 030 НОСТРОЙСТО АСЧМСТО БДПСТО ВНИИСТСТО ГазпромСТО Газпром РДСТО ГГИСТО ГУ ГГИСТО ДД ХМАОСТО ДОКТОР БЕТОНСТО МАДИСТО МВИСТО МИСТО НААГСТО НАКССТО НКССТО НОПСТО НОСТРОЙСТО НОСТРОЙ/НОПСТО РЖДСТО РосГеоСТО РОСТЕХЭКСПЕРТИЗАСТО САСТО СМКСТО ФЦССТО ЦКТИСТО-ГК «Трансстрой»СТО-НСОПБСТПСТП ВНИИГСТП НИИЭССтП РМПСУПСССУРСУСНСЦНПРТВТЕТелеграммаТелетайпограммаТематическая подборкаТЕРТЕР Алтайский крайТЕР Белгородская областьТЕР Калининградской областиТЕР Карачаево-Черкесская РеспубликаТЕР Краснодарского краяТЕР Мурманская областьТЕР Новосибирской областиТЕР Орловской областиТЕР Республика ДагестанТЕР Республика КарелияТЕР Ростовской областиТЕР Самарской областиТЕР Смоленской обл.ТЕР Ямало-Ненецкий автономный округТЕР Ярославской областиТЕРмТЕРм Алтайский крайТЕРм Белгородская областьТЕРм Воронежской областиТЕРм Калининградской областиТЕРм Карачаево-Черкесская РеспубликаТЕРм Мурманская областьТЕРм Республика ДагестанТЕРм Республика КарелияТЕРм Ямало-Ненецкий автономный округТЕРмрТЕРмр Алтайский крайТЕРмр Белгородская областьТЕРмр Карачаево-Черкесская РеспубликаТЕРмр Краснодарского краяТЕРмр Республика ДагестанТЕРмр Республика КарелияТЕРмр Ямало-Ненецкий автономный округТЕРпТЕРп Алтайский крайТЕРп Белгородская областьТЕРп Калининградской областиТЕРп Карачаево-Черкесская РеспубликаТЕРп Краснодарского краяТЕРп Республика КарелияТЕРп Ямало-Ненецкий автономный округТЕРп Ярославской областиТЕРрТЕРр Алтайский крайТЕРр Белгородская областьТЕРр Калининградской областиТЕРр Карачаево-Черкесская РеспубликаТЕРр Краснодарского краяТЕРр Новосибирской областиТЕРр Омской областиТЕРр Орловской областиТЕРр Республика ДагестанТЕРр Республика КарелияТЕРр Ростовской областиТЕРр Рязанской областиТЕРр Самарской областиТЕРр Смоленской областиТЕРр Удмуртской РеспубликиТЕРр Ульяновской областиТЕРр Ямало-Ненецкий автономный округТЕРррТЕРрр Ямало-Ненецкий автономный округТЕРс Ямало-Ненецкий автономный округТЕРтр Ямало-Ненецкий автономный округТехнический каталогТехнический регламентТехнический регламент Таможенного союзаТехнический циркулярТехнологическая инструкцияТехнологическая картаТехнологические картыТехнологический регламентТИТИ РТИ РОТиповая инструкцияТиповая технологическая инструкцияТиповое положениеТиповой проектТиповые конструкцииТиповые материалы для проектированияТиповые проектные решенияТКТКБЯТМД Санкт-ПетербургТНПБТОИТОИ-РДТПТПРТРТР АВОКТР ЕАЭСТР ТСТРДТСНТСН МУТСН ПМСТСН РКТСН ЭКТСН ЭОТСНэ и ТЕРэТССЦТССЦ Алтайский крайТССЦ Белгородская областьТССЦ Воронежской областиТССЦ Карачаево-Черкесская РеспубликаТССЦ Ямало-Ненецкий автономный округТССЦпгТССЦпг Белгородская областьТСЦТСЦ Белгородская областьТСЦ Краснодарского краяТСЦ Орловской областиТСЦ Республика ДагестанТСЦ Республика КарелияТСЦ Ростовской областиТСЦ Ульяновской областиТСЦмТСЦО Ямало-Ненецкий автономный округТСЦп Калининградской областиТСЦПГ Ямало-Ненецкий автономный округТСЦэ Калининградской областиТСЭМТСЭМ Алтайский крайТСЭМ Белгородская областьТСЭМ Карачаево-Черкесская РеспубликаТСЭМ Ямало-Ненецкий автономный округТТТТКТТПТУТУ-газТУКТЭСНиЕР Воронежской областиТЭСНиЕРм Воронежской областиТЭСНиЕРрТЭСНиТЕРэУУ-СТУказУказаниеУказанияУКНУНУОУРврУРкрУРррУРСНУСНУТП БГЕИФАПФедеральный законФедеральный стандарт оценкиФЕРФЕРмФЕРмрФЕРпФЕРрФормаФорма ИГАСНФРФСНФССЦФССЦпгФСЭМФТС ЖТЦВЦенникЦИРВЦиркулярЦПИШифрЭксплуатационный циркулярЭРД |
| Показать все найденныеПоказать действующиеПоказать частично действующиеПоказать не действующиеПоказать проектыПоказать документы с неизвестным статусом |
| Упорядочить по номеру документаУпорядочить по дате введения |
files.stroyinf.ru
Минимальные радиусы разворота автотранспорта и пожарной техники. Транспортное обслуживание жилых кварталов и микрорайонов
Постановление Правительства РФ от 10 сентября 2009 г. N 720 «Об утверждении технического регламента о безопасности колесных транспортных средств»:
«1.1. Максимальная длина не должна превышать:
одиночного транспортного средства категорий N и О (прицепа) — 12 м;
одиночного двухосного транспортного средства категории * — 13,5 м;
одиночного транспортного средства категории * с числом осей более двух —
15 м;
автопоезда в составе автомобиля-тягача категории N и полуприцепа — 16,5
м;
автопоезда в составе автомобиля-тягача категории М или N и прицепа
категории О, а также сочлененного транспортного средства категории * —
18,75 м
1.2. Максимальная ширина транспортного
средства категорий M3, N3, O не должна превышать 2,55 м. Для
изотермических кузовов транспортных средств допускается максимальная
ширина 2,6 м.
1.3. Максимальная высота транспортного средства категорий M3, N3, O не
должна превышать 4 м.».
СНиП II-97-76 «Генеральные планы
сельскохозяйственных предприятий»
4.14. К зданиям и сооружениям по всей их длине должен быть обеспечен
свободный подъезд пожарных автомобилей: с одной стороны здания или
сооружения — при ширине их до 18 м и с двух сторон — при ширине более 18
м.
Расстояние от края проезжей части дорог или спланированной поверхности,
обеспечивающей подъезд пожарных машин, до зданий или сооружений должно
быть не более 25 м.
СНиП II-89-80* «Генеральные планы промышленных предприятий»
3.46*. К зданиям и сооружениям по всей их
длине должен быть обеспечен подъезд пожарных автомобилей: с одной
стороны — при ширине здания или сооружения до 18 м и с двух сторон — при
ширине более 18 м, а также при устройстве замкнутых и полузамкнутых
дворов.
К зданиям с площадью застройки более 10 га или шириной более 100 м
подъезд пожарных автомобилей должен быть обеспечен со всех сторон.
В случаях, когда по производственным условиям не требуется устройства
дорог, подъезд пожарных автомобилей допускается предусматривать по
спланированной поверхности, укрепленной по ширине 3,5 м в местах проезда
при глинистых и песчаных (пылеватых) грунтах различными местными
материалами с созданием уклонов, обеспечивающих естественный отвод
поверхностных вод.
Расстояние от края проезжей части или спланированной поверхности,
обеспечивающей проезд пожарных машин, до стен зданий высотой до 12 м
должно быть не более 25 м, при высоте зданий свыше 12 до 28 м — не более
8 м, при высоте зданий свыше 28 м — не более 10 м.
В необходимых случаях расстояние от края проезжей части автодороги до
крайней оси производственных зданий и сооружений допускается увеличивать
до 60 м при условии устройства к зданиям и сооружениям тупиковых дорог с
площадками для разворота пожарных машин и устройством на этих площадках
пожарных гидрантов, при этом расстояние от зданий и сооружений до
площадок для разворота пожарных машин должно быть не менее 5 и не более
15 м, расстояние между тупиковыми дорогами не должно превышать 100 м.
СП 4.13130.2013
Проходы, проезды и подъезды к зданиям и сооружениям
8.1. Подъезд пожарных автомобилей должен быть обеспечен:
— с двух продольных сторон — к зданиям и сооружениям класса
функциональной пожарной опасности Ф1.3 высотой 28 и более метров,
классов функциональной пожарной опасности Ф1.2, Ф2.1, Ф2.2, Ф3, Ф4.2,
Ф4.3, Ф.4.4 высотой 18 и более метров;
— со всех сторон — к зданиям и сооружениям классов функциональной
пожарной опасности Ф1.1, Ф4.1.
8.2. К зданиям и сооружениям производственных объектов по всей их длине
должен быть обеспечен подъезд пожарных автомобилей:
— с одной стороны — при ширине здания или сооружения не более 18 метров;
— с двух сторон — при ширине здания или сооружения более 18 метров, а
также при устройстве замкнутых и полузамкнутых дворов.
8.3. Допускается предусматривать подъезд пожарных автомобилей только с
одной стороны к зданиям и сооружениям в случаях:
— меньшей высоты, чем указано в пункте 8.1;
— двусторонней ориентации квартир или помещений;
— устройства наружных открытых лестниц, связывающих лоджии и балконы
смежных этажей между собой, или лестниц 3-го типа при коридорной
планировке зданий.
8.4. К зданиям с площадью застройки более 10 000 квадратных метров или
шириной более 100 метров подъезд пожарных автомобилей должен быть
обеспечен со всех сторон.
8.5. Допускается увеличивать расстояние от края проезжей части
автомобильной дороги до ближней стены производственных зданий и
сооружений до 60 метров при условии устройства тупиковых дорог к этим
зданиям и сооружениям с площадками для разворота пожарной техники и
устройством на этих площадках пожарных гидрантов. При этом расстояние от
производственных зданий и сооружений до площадок для разворота пожарной
техники должно быть не менее 5, но не более 15 метров, а расстояние
между тупиковыми дорогами должно быть не более 100 метров.
8.6. Ширина проездов для пожарной техники в зависимости от высоты зданий
или сооружений должна составлять не менее:
— 3,5 метров — при высоте зданий или сооружения до 13,0 метров
включительно;
— 4,2 метра — при высоте здания от 13,0 метров до 46,0 метров
включительно;
— 6,0 метров — при высоте здания более 46 метров.
8.7. В общую ширину противопожарного проезда, совмещенного с основным
подъездом к зданию и сооружению, допускается включать тротуар,
примыкающий к проезду.
8.8. Расстояние от внутреннего края проезда до стены здания или
сооружения должно быть:
для зданий высотой до 28 метров включительно — 5 — 8 метров;
для зданий высотой более 28 метров — 8 — 10 метров.
8.9. Конструкция дорожной одежды проездов для пожарной техники должна
быть рассчитана на нагрузку от пожарных автомобилей.
8.10. В замкнутых и полузамкнутых дворах необходимо предусматривать
проезды для пожарных автомобилей.
8.11. Сквозные проезды (арки) в зданиях и сооружениях должны быть
шириной не менее 3,5 метра, высотой не менее 4,5 метра и располагаться
не более чем через каждые 300 метров, а в реконструируемых районах при
застройке по периметру — не более чем через 180 метров.
8.12. В исторической застройке поселений допускается сохранять
существующие размеры сквозных проездов (арок).
8.13. Тупиковые проезды должны заканчиваться площадками для разворота
пожарной техники размером не менее чем 15 x 15 метров. Максимальная
протяженность тупикового проезда не должна превышать 150 метров.
8.14. Сквозные проходы через лестничные клетки в зданиях и сооружениях
располагаются на расстоянии не более 100 метров один от другого. При
примыкании зданий и сооружений под углом друг к другу в расчет
принимается расстояние по периметру со стороны наружного водопровода с
пожарными гидрантами.
8.15. При использовании кровли стилобата для подъезда пожарной техники
конструкции стилобата должны быть рассчитаны на нагрузку от пожарных
автомобилей не менее 16 тонн на ось.
8.16. К рекам и водоемам должна быть предусмотрена возможность подъезда
для забора воды пожарной техникой в соответствии с требованиями
нормативных документов по пожарной безопасности.
8.17. Планировочное решение малоэтажной жилой застройки (до 3 этажей
включительно) должно обеспечивать подъезд пожарной техники к зданиям и
сооружениям на расстояние не более 50 метров.
8.18. На территории садоводческого, огороднического и дачного
некоммерческого объединения граждан должен обеспечиваться подъезд
пожарной техники ко всем садовым участкам, объединенным в группы, и
объектам общего пользования. На территории садоводческого,
огороднического и дачного некоммерческого объединения граждан ширина
проезжей части улиц должна быть не менее 7 метров, проездов — не менее
3,5 метра.
На заметку
Согласно действующим
европейским нормам любое транспортное средство должно при
движении по окружности укладываться в габарит:
при наружном 12,5 метров — внутренний 5,3 метра;
коридор вписывания 7,2 метра;
минимальный возможный наружный радиус не может быть более 12,5 метров.
СНиП 2.07.01-89* «Градостроительство. Планировка и застройка городских и сельских поселений»
6.20. В конце проезжих частей тупиковых улиц и дорог следует устраивать площадки с островками диаметром не менее 16 м для разворота а
starer.ru
Ищем идеальные радиусы поворота для городских улиц

Хочу посоветоваться, какие радиусы поворота (закругления бордюрного камня по кромке тротуара или раздлительного островка) правильнее делать в городах. Понятно, что чем больше радиус, тем выше скорость поворота личного транспорта и длиннее (читай опаснее) пешеходный переход, особенно при совмещении транспортной и пешеходной фазы. Также понятно, что на разных пересечениях разных типов улиц и при наличии движения ОТ радиусы должны быть разными.
Из СП Градостроительства:
«11.8 Радиусы закругления проезжей части улиц и дорог по кромке тротуаров и разделительных полос следует принимать не менее, м:
— для магистральных улиц и дорог регулируемого движения — 8
— местного значения — 5
— на транспортных площадях — 12
В стесненных условиях и при реконструкции радиусы закругления магистральных улиц и дорог регулируемого движения допускается уменьшать, но принимать не менее 6 м, на транспортных площадях — 8 м.
При отсутствии бордюрного ограждения, а также в случае применения минимальных радиусов закругления ширину проезжей части улиц и дорог следует увеличивать на 1 м на каждую полосу движения за счет боковых разделительных полос или уширения с внешней стороны.
Примечание — Для общественного транспорта (трамвай, троллейбус, автобус) радиусы закругления устанавливаются в соответствии с техническими требованиями эксплуатации этих видов транспорта.»
Предварительно видятся следующие вводные по радиусам:
— на улицах общегородского значения — 6-8 метров,
— на улицах районного значения — 4-5 метров,
— на улицах местного значения, проездах и на поворотах к прилегающей территории с улиц районного значения — 3-3,5 метров,
— в отсутствии движения транспорта — 1-3 метра,
— при движения ОТ — 12-15 метров.
А что говорит ваш опыт проектирования? И как в иностранных нормативах?
monteklever
vdovinea.livejournal.com
6. Сеть улиц и дорог
6.17. Улично-дорожную сеть населенных пунктов следует проектировать в виде непрерывной системы с учетом функционального назначения улиц и дорог, интенсивности транспортного, велосипедного и пешеходного движения, архитектурно-планировочной организации территории и характера застройки. В составе улично-дорожной сети следует выделять улицы и дороги магистрального и местного значения, а также главные улицы. Категории улиц и дорог городов следует назначать в соответствии с классификацией, приведенной в табл.7.
6.18*. Расчетные параметры улиц и дорог городов следует принимать по табл.8*, сельских поселений — по табл.9.
6.19. Расстояние от края основной проезжей части магистральных дорог до линии регулирования жилой застройки следует принимать не менее 50 м, а при условии применения шумозащитных устройств, обеспечивающих требования СНиП II-12-77, не менее 25 м.
Расстояние от края основной проезжей части улиц, местных или боковых проездов до линии застройки следует принимать не более 25 м. В случаях превышения указанного расстояния следует предусматривать на расстоянии не ближе 5 м от линии застройки полосу шириной 6 м, пригодную для проезда пожарных машин.
6.20. В конце проезжих частей тупиковых улиц и дорог следует устраивать площадки с островками диаметром не менее 16 м для разворота автомобилей и не менее 30 м при организации конечного пункта для разворота средств общественного пассажирского транспорта. Использование поворотных площадок для стоянки автомобилей не допускается.
6.21*. На магистральных улицах регулируемого движения допускается предусматривать велосипедные дорожки, выделенные разделительными полосами. В зонах массового отдыха населения и на других озелененных территориях следует предусматривать велосипедные дорожки, изолированные от улиц, дорог и пешеходного движения. Велосипедные дорожки могут устраиваться одностороннего и двустороннего движения при наименьшем расстоянии безопасности от края велодорожки, м:
до проезжей части, опор, деревьев ………………………. 0,75;
до тротуаров ………………………………………….. 0,5;
до стоянок автомобилей и остановок общественного транспорта … 1,5.
Примечание. Допускается устраивать велосипедные полосы по краю проезжей части улиц и дорог с выделением их маркировкой двойной линией. Ширина полосы должна быть не менее 1,2 м при движении в направлении транспортного потока и не менее 1,5 м при встречном движении. Ширина велосипедной полосы, устраиваемой вдоль тротуара, должна быть не менее 1 м.
6.22*. Радиусы закругления проезжей части улиц и дорог по кромке тротуаров и разделительных полос следует принимать не менее, м:
для магистральных улиц и дорог регулируемого движения ………… 8
местного значения ………………………………………… 5
на транспортных площадях …………………………………. 12
В стесненных условиях и при реконструкции радиусы закругления магистральных улиц и дорог регулируемого движения допускается уменьшать, но принимать не менее 6 м, на транспортных площадях — 8 м. При отсутствии бордюрного ограждения, а также в случае применения минимальных радиусов закругления ширину проезжей части улиц и дорог следует увеличивать на 1 м на каждую полосу движения за счет боковых разделительных полос или уширения с внешней стороны.
Примечание. Для общественного транспорта (трамвай, троллейбус, автобус) радиусы закругления устанавливаются в соответствии с техническими требованиями эксплуатации этих видов транспорта.
6.23*. На нерегулируемых перекрестках и примыканиях улиц и дорог, а также пешеходных переходах необходимо предусматривать треугольники видимости. Размеры сторон равнобедренного треугольника для условий «транспорт — транспорт» при скорости движения 40 и 60 км/ч должны быть соответственно не менее, м: 25 и 40. Для условий «пешеход — транспорт» размеры прямоугольного треугольника видимости должны быть при скорости движения транспорта 25 и 40 км/ч соответственно 8 х 40 и 10 х 50 м.
В пределах треугольников видимости не допускается размещение зданий, сооружений, передвижных предметов (киосков, фургонов, реклам, малых архитектурных форм и др.), деревьев и кустарников высотой более 0,5 м. Примечание. В условиях сложившейся капитальной застройки, не позволяющей организовать необходимые треугольники видимости, безопасное движение транспорта и пешеходов следует обеспечивать средствами регулирования и специального технического оборудования.
6.24. В селитебных районах, в местах размещения домов для престарелых и инвалидов, учреждений здравоохранения и других учреждений массового посещения населением следует предусматривать пешеходные пути с возможностью проезда механических инвалидных колясок. При этом высота вертикальных препятствий (бортовые камни, поребрики) на пути следования не должна превышать 5 см; не допускаются крутые (более ) короткие рампы, а также продольные уклоны тротуаров и пешеходных дорог более . На путях с уклонами 30 — необходимо не реже чем через 100 м устраивать горизонтальные участки длиной не менее 5 м.
Таблица 7

Таблица 8*

Таблица 9

6.25. На магистральных улицах и дорогах регулируемого движения в пределах застроенной территории следует предусматривать пешеходные переходы в одном уровне с интервалом 200 — 300 м.
Пешеходные переходы в разных уровнях, оборудованные лестницами и пандусами, следует предусматривать с интервалом:
400 — 800 м на дорогах скоростного движения, линиях скоростного трамвая и железных дорогах;
300 — 400 м на магистральных улицах непрерывного движения.
Примечания:
1. Допускается устройство пешеходных переходов в разных уровнях на магистральных улицах регулируемого движения при пешеходном потоке через проезжую часть более 3000 чел/ч.
2. Пешеходные пути (тротуары, площадки, лестницы) у административных и торговых центров, гостиниц, театров, выставок и рынков следует проектировать из условий обеспечения плотности пешеходных потоков в час «пик» не более 0,3 чел/м2; на предзаводских площадях, у спортивно-зрелищных учреждений, кинотеатров, вокзалов — 0,8 чел/м2.
www.rusconstructor.ru
Ищем идеальные радиусы поворота для городских улиц: monteklever — LiveJournal

Хочу посоветоваться, какие радиусы поворота (закругления бордюрного камня по кромке тротуара или раздлительного островка) правильнее делать в городах. Понятно, что чем больше радиус, тем выше скорость поворота личного транспорта и длиннее (читай опаснее) пешеходный переход, особенно при совмещении транспортной и пешеходной фазы. Также понятно, что на разных пересечениях разных типов улиц и при наличии движения ОТ радиусы должны быть разными.
Из СП Градостроительства:
«11.8 Радиусы закругления проезжей части улиц и дорог по кромке тротуаров и разделительных полос следует принимать не менее, м:
— для магистральных улиц и дорог регулируемого движения — 8
— местного значения — 5
— на транспортных площадях — 12
В стесненных условиях и при реконструкции радиусы закругления магистральных улиц и дорог регулируемого движения допускается уменьшать, но принимать не менее 6 м, на транспортных площадях — 8 м.
При отсутствии бордюрного ограждения, а также в случае применения минимальных радиусов закругления ширину проезжей части улиц и дорог следует увеличивать на 1 м на каждую полосу движения за счет боковых разделительных полос или уширения с внешней стороны.
Примечание — Для общественного транспорта (трамвай, троллейбус, автобус) радиусы закругления устанавливаются в соответствии с техническими требованиями эксплуатации этих видов транспорта.»
Предварительно видятся следующие вводные по радиусам:
— на улицах общегородского значения — 6-8 метров,
— на улицах районного значения — 4-5 метров,
— на улицах местного значения, проездах и на поворотах к прилегающей территории с улиц районного значения — 3-3,5 метров,
— в отсутствии движения транспорта — 1-3 метра,
— при движения ОТ — 12-15 метров.
А что говорит ваш опыт проектирования? И как в иностранных нормативах?
monteklever.livejournal.com
