3.3.3. Медницко-радиаторный участок
Назначение. Участок предназначен для ремонта водяных и масляных радиаторов, топливных баков, топливо- и маслопроводов, перезаливки втулок распределительного вала и шайб упорных подшипников коленчатого вала.
Схема технологического процесса. Радиаторы, топливные баки, топливо- и маслопроводы, снятые с автомобиля на участке разборки, поступают на медницко-радиаторный участок. Здесь их моют и очищают, а затем дефектуют и испытывают.
На этом участке выполняют следующие работы: очистку деталей от загрязнений и накипи, устранение течи, вмятин, погнутости и перекосов, заделывание пробоин и трещин сваркой и пайкой, развальцовывание топливопроводов, испытание на герметичность, перезаливку деталей антифрикционными сплавами и прочие паяльные работы.
Топливные баки и радиаторы ремонтируют на специализированных постах.
Изделия,
проверенные и принятые ОТК, поступают
на участки комплектования, сборки
двигателей или на линию сборки автомобилей.
Подбор оборудования. Оборудование подбирают для укомплектования рабочих мест согласно требованиям технологии. При этом следует иметь в виду, что трудоемкость ремонта радиаторов составляет примерно 70 % общей трудоемкости работ на этом участке.
Перечень основного оборудования приведен в табл. 8.
Таблица 8
Наименование | Модель, тип | Характеристика | Установленная мощность, кВт | Габаритные размеры в плане, мм | Занимаемая площадь пола, м2 |
1 | 2 | 3 | 4 | 5 | 6 |
Установка для развальцовки трубок | – | Усилие на пуансоне 100000 Н | – | 900600 | 0,54 |
132 (АКТБ) | С
пневматическим подъемником. | – | 15701060 | 1,7 | |
Стенд для ремонта радиаторов | Р-209 | С манипулятором | 2,0 | 30001250 | 3,75 |
Окончание табл. 8
1 | 2 | 3 | 4 | 5 | 6 |
Стол с тремя тиглями для заливочных работ | Р-505 | Емкость тигля 1,75 л | 10,5 | 2000800. | 1,6 |
Ванна для испытания топливных баков | 5008 | Емкость 600 л. Давление воздуха 0,05…0,1 МПа | 16101075 | 1,73 | |
Установка для очистки радиаторов от накипи | 2024 | Емкость 250 л | 1,0 | 15961064 | 1,7 |
Стенд для распайки и протравливания радиаторов | – | С местным отсосом вредных паров | – | 1280925 | 1,18 |
Муфельная печь для нагрева паяльников | – | – | 1,6 | 435445 | 0,19 |
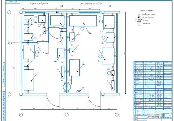
На рис. 15
показана планировка медницко-радиаторного
участка авторемонтного завода с годовой
производственной программой 6000
капитальных ремонтов грузовых автомобилей
ГАЗ-3307 и 6000 капитальных ремонтов
двигателей ЗМЗ-510.Рис. 15. Планировка медницко-радиаторного участка авторемонтного завода: 1 – слесарный верстак; 2 – установка для развальцовки трубок; 3 – стенд для ремонта и испытания радиаторов; 4 – стеллаж для радиаторов и топливных баков; 5 – полочный стеллаж; 6 – стол с тремя тиглями для заливочных работ; 7 – стеллаж для деталей; 8 – ванна для испытания топливных баков; 9 – стол для газосварочных работ; 10 – установка для очистки радиаторов от накипи |
Изделия,
требующие ремонта, поступают на стеллажи 4.
Радиаторы после очистки от накипи в
установке 10 ремонтируют и испытывают на стендах 3,
а затем укладывают на стеллажи 4,
выделенные для отремонтированных
изделий. Окраска радиаторов и топливных
баков предусмотрена на малярном участке
или в другом помещении, предназначенном
для этого.
Курсовая работа Организация работ медницко-радиаторного участка
Содержание:
- Технологический расчет автотранспортного предприятия
- Организация выполнения работ по обслуживанию и хранению подвижного состава
- Выбор, как организовать услуги с ATP
- Организация работы производственного подразделения
- Выбор технического оборудования
- Блок-схема ремонта радиатора системы охлаждения
- Заключение
| Предмет: | Экономика |
| Тип работы: | Курсовая |
| Язык: | Русский |
| Дата добавления: | 24. 03.2020 |
- Данный тип работы не является научным трудом, не является готовой выпускной квалификационной работой!
- Данный тип работы представляет собой готовый результат обработки, структурирования и форматирования собранной информации, предназначенной для использования в качестве источника материала для самостоятельной подготовки учебной работы.
Если вам тяжело разобраться в данной теме напишите мне в whatsapp разберём вашу тему, согласуем сроки и я вам помогу!
По этой ссылке вы узнаете как найти источники для курсовой работы:
| Как найти источники для курсовой работы |
Посмотрите похожие темы возможно они вам могут быть полезны:
| Приватизационные процессы в России |
| Дифференциация доходов населения РФ |
| Основные формы и виды собственности и хозяйствования |
| Конвертация валют и национальные деньги |
Введение:
Сегодня роль автомобильного транспорта в Японии и во всем мире возрастает, а также перевозка грузов и населения, которые требуют эффективного использования и повышения производительности транспортных средств.
Капитальный ремонт должен обеспечить исправность и срок службы автомобиля или агрегата для того, чтобы отремонтировать или заменить все сборочные узлы и детали, включая базовый блок.Во время длительной эксплуатации автомобиля работа деталей, коррозия и усталость материалов постепенно снижают их рабочие характеристики, делая ремонт в условиях ATP механически невозможным или экономически непригодным. В этом случае они отправляются в Авторемонтную компанию (АРП).
Основной причиной экономической эффективности капитального ремонта автомобилей является использование остаточных ресурсов деталей. Приблизительно 70-75% автозапчастей, полученных для капитального ремонта, могут быть повторно использованы без ремонта или с небольшим воздействием.
Части, которые полностью исчерпали ресурсы, составляют 25-30%. Износ находится в допустимых пределах, а количество деталей, которые можно использовать без ремонта, составляет 30-35%. Оставшиеся 40-45% деталей могут быть использованы только после ремонта (восстановления). К ним относятся большинство самых дорогих и сложных металлических деталей. Стоимость восстановления этих деталей не превышает 10-50% стоимости изготовления.
В связи с изменением социально-экономических условий в нашей экономике возникла уникальная система ремонта и ремонта автомобилей, а также отраслевые и независимые ARP. Эти системы имеют большие специализированные ARP с деталями, узлами и сборками для ремонта и ремонта и используют высококачественные методы ремонта и оборудование для достижения качественного ремонта.
Технологический расчет автотранспортного предприятия
Изменить стандартные значения
Целью корректировки является приведение стандартных значений к конкретным условиям эксплуатации автомобиля и автотранспортной компании.
Модификации выполняются для операций категории III следующим образом: Операции проводятся в районах с асфальтовым покрытием. Рельеф ровный до 200 м над уровнем моря. Операция проходит в городе Ижевске.
Правильный пробег до капитального ремонта выполняется по следующей формуле:
Lcr = LcrnK1 ∙ K2 ∙ K3, км;
Где Lcrn-стандартный пробег до капитального ремонта, Lcrn (км)
K1 — Стандартный поправочный коэффициент для категории условий эксплуатации.
K2-Стандартный поправочный коэффициент для смены транспортных средств и организации работ.
K3-Стандартный поправочный коэффициент для природных и климатических условий.
Регулировка частоты ТО-1.
Коррекция выполняется согласно следующему уравнению.
L1 = L1nK1K3, км;
Где: Нормативная частота L1n-TO-1.
| Коэффициент К1 учитывает категорию условий эксплуатации. |
Коэффициент К3 с учетом климатических условий.
L1 = 5000, 0,8, 0,9 = 3600 км
Скорректируйте частоту TO-1 кратности к среднему пробегу в день.
n1 = L1 / lcc
n1 = 3600/194 = 18,556
Расчетная частота ТО-1
L1p = 1ccn1 км
L1p = 19419 = 3700 км
Отрегулируйте частоту ТО-2.
Коррекция выполняется согласно следующему уравнению.
L2 = L2nK1K3, км;
Здесь стандартная частота L2n-TO-2.
L2 = 20 000; 0,8; 0,9 = 14 400 км
Регулировка периодичности ТО-2 по кратности частот:
К-1.
n2 = L2 / L1р
n2 = 14400/3700 = 4
Расчетная частота ТО-2.
L2р = L1р ・ n2, км
L2p = 3700 * 4 = 14800, км
Исправление сложности ежедневного обслуживания.
teo = teon, K2, K5, человек
Где: сложность регулирования teon-SW.
Коэффициенты K2, которые принимают во внимание изменения транспортных средств и организацию их работы.
Коэффициент п / состава с учетом размера К5-АТФ и количества технически совместимых групп
teo = 0,30 ・ 1,1 ・ 1,15 = 0,345, человек
Исправление сложности ТО-1.
Коррекция выполняется согласно следующему уравнению.
t1 = t1n ・ K2 ・ K5, мужчина
Где т1н-стандарт трудоемкости ТО-1.
Коэффициенты K2, которые принимают во внимание изменения транспортных средств и организацию их работы.
Коэффициент учитывает количество п / состав группы, которая технически соответствует размеру К5-АТФ.
t1 = 2,3 ・ 1,1 ・ 1,15 = 2,645, чел. Исправление сложности ТО-2
Коррекция выполняется согласно следующему уравнению.
t2 = t2n ・ K2 ・ K5, мужчина
Где т2н-стандарт трудоемкости ТО-2
Коэффициент К2, учитывающий изменение транспортного средства и состав работ
Коэффициент п / состава с учетом размера К5-АТФ и количества технически совместимых групп
t2 = 92.1.1.15 = 10,58, чел.
Исправить общую диагностическую сложность. Коррекция выполняется согласно следующему уравнению:
td1 = td1n ・ K2 ・ K5, человек
Где: td1n-нормативная сложность D-1
Коэффициент К2, учитывающий изменение транспортного средства и состав работ
Коэффициент п / состава с учетом размера К5-АТФ и количества технически совместимых групп
td1 = 0,74 ・ 1,1 ・ 1,15 = 0,851, чел.
Исправление диагностической сложности на элемент. Коррекция выполняется согласно следующему уравнению:
td2 = td2n ・ K2 ・ K5, человек
Где: td2n-нормативная сложность D-2
Коэффициент К2, учитывающий изменение транспортного средства и состав работ
Коэффициент п / состава с учетом размера К5-АТФ и количества технически совместимых групп
td2 = 1,67 ・ 1,1 ・ 1,15 = 1,920 человек
Исправление удельных трудозатрат на текущий ремонт. Коррекция выполняется согласно следующему уравнению:
ttr = ttrn, K1, K2, K3, K4sr, K5, чел.ч / 1000 км
Где: ттрн-нормативно-специфическая трудоемкость ТР
К1-5-поправочный коэффициент.
K4av =
Где А1, А2, Ан — количество автомобилей в пределах пробега. Коэффициент К4
K4sr = ttr = 6,5, 1,1, 1,1, 1,3, 1,15 = 11,76 человек / 1000 км
Средний пробег до капитального ремонта
Поскольку пробег отличается от времени старта всех автомобилей ATP, средневзвешенный показатель пробега определяется по следующей формуле.
Lcr = км
Где: Ау — количество автомобилей, которые не прошли капитальный ремонт.
И ″ u-количество автомобилей, которые прошли капитальный ремонт.
A’u и A»u принимают фактический пробег (см. Задание)
Lcr = Lcrn ・ k1 ・ k2 ・ k3
Lcr = 125000 ・ 0,8 ・ 1 ・ 0,9 = 90 000 км
Lcrs =
Калькулятор годового парка
Исправление некоторых простоев при обслуживании и ремонте.
Коррекция выполняется согласно следующему уравнению.
dTOR = dTORN ・ K4sr, дней / 1000 км
Где: dТОР — согласованные конкретные сроки технического обслуживания и ремонта.
dTORN-Стандарт специфического обслуживания и ремонта.
K´4av-средний оценочный поправочный коэффициент.
Здесь A1, A.2 и An — количество транспортных средств в пределах диапазона пробега, а значение коэффициента K4 равно:
K’14, K’n4-Коэффициент коррекции с учетом пробега от начала эксплуатации dTOP = 0,35 ± 1,2 / 1000 = 0,4343
Расчет коэффициента технической подготовки.
Расчет коэффициента технического резерва осуществляется по формуле.
αt = De / (De + Dtor + Dcr),
Где αt — расчетный коэффициент технической подготовки.
Количество рабочих дней в Де-цикле.
Dtor-Количество дней бездействия в цикле технического обслуживания и ремонта.
День, когда автомобиль не присутствует в ATP из-за Dcr-cap. Ремонт.
Рабочие дни в цикле рассчитываются по следующей формуле:
Dae = Lcrs / 1cc,
Где 1SS — среднесуточный пробег.
Время простоя обслуживания и ремонта рассчитывается по следующей формуле:
DTOR = dtop ・ LKp / l 000
День, когда автомобиль не существует в СПС из-за капитального ремонта:
Dcr = dKp + dtran,
Здесь день, когда дКп-вагон проходил специальный ремонт. АРЗ;
Транспортные дни для автомобилей с дтран-колпаками. Ремонт.
дтранс = (0,15 … 0,20) дКп
дтран = 0,1520 = 3
Dcr = 18 + 2,7 = 20,7
DTOR = 0,434390 / 1000 = 39,087
Дэ = 77700/194 = 401
αt = 401 / (401 + 39,087 + 21,6) = 0,87
Расчет коэффициента выбросов автомобиля.
Коэффициент для производства автомобилей рассчитывается по следующей формуле:
αw = Drg ・ αt ・ Ci / 365,
Где αв-коэффициент производства автомобиля;
Drg-1 День работы с одной машиной в год.
Ki-фактор простоя.
αв = 256 ・ 0,87 ・ 0,95 / 365 = 0,58
Расчет годового пробега марки автомобиля производится по следующей формуле:
Lг = 365 ∙ Аи ・ 1сс ・ αв, км
Где Au — номер списка автомобилей.
1кк-1 день, средний пробег, км
αв-Коэффициент выпуска автомобиля
Lg = 365 66194,58 = 2710606 км
Расчет производственной программы и выбор метода производства для обслуживания автомобиля.
Расчет объема работ по очистке и очистке (UMR).
Количество ежедневных услуг рассчитывается на машине.
Neo = Lg / 1cc
Нео = 2710606/194 = 13972
Количество лет уборки и работы по уборке не совпадает с количеством лет ежедневного обслуживания.
Сумма SID за этот год должна быть рассчитана по следующей формуле:
Numr = (1,10 -: — 1,15) ∙ Neo
Число = 1,15 ∙ 13972 = 16067
Взаимозаменяемые программы очистки и очистки.
Для расчета сменной программы рекомендуется использовать следующую формулу:
Номер = номер / (Drgu / SMS)
Где: Рабочие дни в году для зоны Drgu-UMR. (Необходимо попросить учесть рабочие дни машины на линии на один год).
SMS-количество рабочих смен в день в зонах уборки и мойки.
Число = 16067 / (256 · 1) = 62,8
Годовая сумма ЧР рассчитывается по следующей формуле.
НКР = Lg / Lcr
НКР = 2710606/77770 = 34,854
Годовой объем ТО-2 рассчитывается по следующей формуле.
N2 = Lг / L2р-НКР
N2 = 2710060 / 14800-34,854 = 148,3
Годовой объем ТО-1 рассчитывается по следующей формуле.
N1 = Lг / L1р-NКР-N2
N1 = 2710606 / 3700-34,854-148 = 541
Программа смен рассчитывается.
N1c = N1 / (Drt · Cst)
N1c = 541 / (2531) = 2,11
N2c = N2 / (Drt · Cst))
N2c = 148,3 / (2531) = 0,6
Поскольку TO1 меньше 6, а TO2 меньше 2, работа на универсальных постах может быть организована без использования производственных линий.
Расчет годового количества сезонных услуг выполняется по формуле.
Nco = 2
NCO = 2,66 = 132
Расчет рабочей программы на постатейном диагностическом посту.
Nd2 = 1,2N2
Nd2 = 1,2148,3 = 177,9
Изменить программу постом D-2
Nd2s = Nd2 / (Drd ・ Ssd)
Здесь количество рабочих дней в году для Drd-Post D-2.
Количество смен в день для сообщений Ssd-D-2.
Nd2s = 177,9 / 2531 = 0,7
Расчет рабочих программ на общих диагностических постах.
Ежегодные услуги на посту Д-1
Nd1 = 1,1N1 + N2 (1,38)
Nd1 = 1,1 ・ 541 + 148,3 = 743
Изменить программу в посте D-1
Nd1s = Nd1 / (Drd · Ssd),
Nd1s = 733 / (256-1) = 8,97,
Расчет сложности работ по обслуживанию автомобиля.
Сложность работы при использовании механизации рассчитывается по формуле.
tumr = teo ・ Pr, чел. (1.40)
опухоль = 0,3 ± 0,23 = 0,069
Годовая сложность очистки и операций по очистке рассчитывается по следующей формуле:
Тумр = опухоль / нвмр, чел-ч
Тумр = 0,069 ・ 16067 = 1108,6
Годовая сложность общего диагноза рассчитывается по следующей формуле:
TD1 = td1, Nd1, человек
TD1 = 2,53,918 = 2322,54 чел.
ч
Годовая сложность поэлементной диагностики рассчитывается по следующей формуле:
TD2 = td2 ・ Nd2, человек
TD2 = 3,08 ・ 250 = 770 чел.ч
Годовая сложность ТО-1 рассчитывается по следующей формуле.
T1 = t1 / N1, человеко-час (1,45)
T1 = 6,67 ・ 645 = 4302,15 чел.ч
Годовая сложность ТО-2 рассчитывается по следующей формуле.
T2 = t2 ・ N2, человеко-час (1,46)
Т2 = 27,6208 = 5740,8 чел.ч
Сложность дополнительных сезонных работ по техническому обслуживанию рассчитывается по следующей формуле:
tco = ССО ・ t2 чел.ч
Где сложность дополнительного сезонного технического обслуживания.
Процент дополнительных сезонных работ по техобслуживанию из-за сложности ССО-ТО-2
tco = 0,2 ・ 27,6 = 5,52 чел.ч
Tso = TCO ・ Nco, человек
Tso = 5,52108 = 596,16 чел.ч
Годовая сложность текущего ремонта рассчитывается по следующей формуле:
Ttr = ttrLg / 1000, человек
TTR = 11,4.
2415500 / 1000 = 27536,7 чел.ч
Распределение сложности обслуживания по производственным площадям фирм.
Сложность работы в зоне EO (ΣTEO) такая же, как и сложность UMR
Сложность работы в диагностической зоне равна
ΣТд = Тд1 + Тд2, чел. Ч
ΣTd = 2322,54 + 770 = 3092,54 ч
Сложность работы в зоне ТО-1 рассчитывается по следующей формуле:
ΣТ1З = s ・ Т1 + Тсоп1, чел. Ч
Коэффициент, учитывающий, как организовать работу в зоне с-TO-1.
Сложность одновременного обслуживания выполняется в зоне Цоп1-ТО-1.
Цоп1 = 0,10 ТТО1, чел.
Tsop1 = 0,104302,15 = 430,22 чел.ч
ΣТ1З = 1 ・ 4302,15 + 430,22 = 4732,37
Сложность работы в зоне ТО-2 рассчитывается по следующей формуле:
ΣТ2З = s ・ (Т2 + ТСО) + Тсоп2, чел.
Здесь коэффициент, учитывающий метод организации работ в зоне c-TO-2.
Сложность параллельного обслуживания, выполняемого в зоне Цоп2-ТО-2.
Tsop2 = 0,20 TTO2, Cerci
Tsop2 = 0,20,5740,8 = 1148,16 Cerci
ΣТ2З = 1 · (5740,8 + 596,16) + 1148,16 = 7485,12 Cerci
Сложность годовой работы в зоне TR рассчитывается по следующей формуле:
ΣТтрз = С3 ・ Ттр-Цоп1-Цоп2, чел.
Где сложность годовой работы в зоне TTR-TR.
ΣТтрз = 1 ・ 27536.7-430.22-1148.16 = 25958.32
Общая сложность технического обслуживания автомобиля определяется по следующей формуле:
ΣТг = ΣТЭО + ΣТд + ΣТ1 + ΣТ2 + ΣТтр + ΣТСО, человек
ΣТг = 3337,6 + 3092,54 + 4302,15 + 5740,8 + 27536,7 + 596,16 = 44605,95
Расчет численности производственных рабочих
Видимое количество работников (количество рабочих мест).
Ry = Tg / Fn
Здесь Tg — годовой объем работ (трудозатраты).
Fn-Номинальный годовой фонд за рабочее время.
Fn = Dr · tcm. -Дв ・ (цм.-тп),
Где д-р рабочие дни в плановом году;
tcm-нормальная продолжительность смены h;
Дв-количество праздников и праздников в плановом году.
сменный период в выходные и праздничные дни, ч
Fn = 2070 ч
Сзади = 44605,95 / 2070 = 22
Номер списка исполнителей.
Rsp = Tg / Fd
Здесь Tg — годовой объем работ (трудозатраты).
Фактическое ежегодное финансирование штатных работников.
Фактическое финансирование рабочего времени определяется по формуле
Фд = (Фн-до ・ тсм.) ・ Ηр
Где To — количество дней отпуска.
ηр-коэффициент, учитывающий отсутствие по уважительным причинам, принимая ηр = 0,95.
Fd = (2070-28,7) 0,95 = 1780
Rsp = 44605,95 / 1780 = 25
Поскольку труд медной работы составляет 3% от труда всей работы, рассчитайте годовой труд медной работы и количество производственных рабочих на этом участке.
Trt.uch = 27536,7 ∙ 0,03 = 826,1 чел.ч
Tg.uch. = 826,1 чел.ч
Rsp = 826,1 / 1780 = 0,46
Он принимает одного работника на работу в Медницком районе, но только 46% работников в Медницком районе будут нанимать его на работу в консервном отделении.
Организация выполнения работ по обслуживанию и хранению подвижного состава
Корпоративная организация. Блок-схема
Следующая схема техпроцесса производства в основном относится к автомобильным транспортным компаниям.
Действующие «Правила технического обслуживания и ремонта автомобилей» допускают отклонения плановых интервалов технического обслуживания на + -10% от нормы.
Планирование автомобиля, который должен быть установлен на ТО-1 при диагностике, производится OOAI или инженерами производственного и инженерного отдела в принципе в соответствии с действующими правилами, указанными на лицевой карте автомобиля. На основании данных личной карточки автомобиля, рассчитанная ежедневная программа OOAI TO-1 с поправкой на нормативную периодичность, «отчет о планировании технического обслуживания» был создан в нескольких экземплярах, и автомобиль находился на месте. Оно будет отправлено механизму подстанции или автопарка по крайней мере за один день до помещения в диспетчер TO-1, TO-1, до начала смены, в транспортную секцию дежурного водителя контрольно-пропускного пункта.
На основании полученного отчета о плане технического обслуживания, механик КТП предупредит водителя о запланированном ТО-1 перед тем, как покинуть линию, проконтролирует готовность водителя к ТО-1 после возвращения автомобиля в парк.
| Как только зона ТО-1 будет введена в эксплуатацию, водитель-дистиллятор доставит автомобиль на рабочую станцию для работы в соответствии с применяемой технологией. |
- Обеспечение качества.
- Контроль, чтобы настроить автомобиль для особых ожиданий с удобным выходом.
- Мониторинг отсутствия противотуманных фар и запоров на автомобиле.
В процессе выполнения планового технического обслуживания ТО-1 руководитель группы заполняет диагностическую карту, а после ее завершения отмечает план технического обслуживания и подписывает диагностическую карту.
Выбор, как организовать услуги с ATP
Планирование системы обслуживания является одной из наиболее важных задач, выполняемых ATP Technical Services.
Основными документами планирования являются годовые, квартальные и ежемесячные планы технического обслуживания транспортных средств, основанные на расчетах. В качестве исходных данных плана используется расчетное значение частоты обслуживания Lo: количество автомобилей Nci в день, прибывающих в первый тип обслуживания Nci, определяющее количество автомобилей, прибывающих ежедневно в соответствии с установленным планом обслуживания Количество постов (рабочих) и другие данные, которые позволяют. Планы обслуживания автомобилей могут быть организованы по календарю для каждой группы (ряда) автомобилей для каждого автомобиля, а также для каждого типа технического обслуживания и ремонта.
План ремонта узлов, механизмов и запасных частей для вспомогательного производства (площадки) составляется на месяц, а также количество и марка узлов и механизмов, подлежащих ремонту.
Специальный бригадный метод — это форма организации производства, при которой каждый вид работ по техническому обслуживанию и ТР выполняется командой специализированных работников.
Такая организация работы обеспечивает техническое единообразие каждого участка, облегчает работу людей, инструментов и оборудования в нем, а также упрощает управление и учет количества выполняемых технических эффектов.
Недостатками данной конструкции и организации работ являются низкое качество технического обслуживания автомобилей и ненадежная сборка.
Интегрированный бригадный метод характеризуется тем, что каждое подразделение большой АТП имеет свою собственную интегрированную бригаду.
В этих организациях ответственность за качество обслуживания неадекватна, и объем работы ТР остается широко распространенным, но ограниченным группами.
Это усложняет и неэффективно использует оперативные организации по техническому обслуживанию транспортных средств (запасные части, оборудование), но преимуществом является ответственность команды за качество работы.
Закон о коллективных территориях состоит в том, что все работы по техническому обслуживанию и ремонту автомобилей ATP распределяются между производственными площадками, которые несут полную ответственность за качество и результаты работ.
Обеспечивает тщательный учет всех элементов производственного процесса и расхода запасных частей и материалов. Очевидным недостатком является то, что он нарушает принцип работы всей машины.
Выбор: среди других методов организации технического обслуживания и ремонта производства, наиболее прогрессивный метод основан на формировании технологических базирующихся производственных единиц (агрегированный локальный метод), и вводится централизованное управление производством (MCC.).
Системный подход к управлению ATP требует, чтобы система управления качеством TOI TR рассматривалась как неотъемлемая часть управления. В частности, вам необходимо обеспечить: Четкая цель для технических услуг. Связь между общей эффективностью СПС и показателями и стандартами эффективности технического обслуживания. Прогрессивное улучшение и улучшение целей по мере продвижения от верхних и нижних уровней управления. Специфика и простота стандарта, четкое понимание непосредственным исполнителем, связь между системой морального и материального стимулирования персонала и достижением или превышением стандартов качества.
Связь показателей качества TR и TR с показателями эксплуатационной надежности автомобиля. Наличие объективной и своевременной информации для сопровождения и принятия решений по улучшению производства ТР. Присвоение стандартов качества с учетом уровня достижений, условий работы СПС, имеющихся ресурсов и т. д.
Реализация этих требований представляет собой интегрированную систему управления качеством для обслуживания и безопасности, с широким использованием компьютерных технологий, коммуникаций и сложных рабочих процессов. Материальные и трудовые затраты.
Интегрированная система управления качеством To и TR очень практична и важна, но поскольку такие системы не используются широко, научно обоснованные и проверенные практики, всеобъемлющие и Он не может быть предоставлен организациям и приложениям. В то же время невозможно не предоставить данные об имеющемся в отрасли опыте перевода. Это демонстрирует способность решать проблемы качества обслуживания ATP и управления TR.
Типичная система управления качеством состоит из ряда управленческих, технических, социальных и других целевых мер, которые обеспечивают определенный уровень фактора технической готовности.![]()
Организация работы производственного подразделения
Основная задача Медницкого участка — убедиться, что компоненты и узлы машины, изготовленные из своевременных и ремонтопригодных медных сплавов (радиаторы, системы охлаждения и т. д.), находятся в хорошем состоянии. Работа Медницкого является важной частью всех ремонтных работ, но своевременное их выполнение может предотвратить непредвиденные последствия, такие как отсутствие ремонта радиатора в системе охлаждения.
Некоторое техническое оборудование необходимо для организации работы Медницкого участка.
Сайт занимается пайкой и ремонтом деталей, изготовленных из меди и ее сплавов с помощью ненадежных сборок автомобилей.
Выбор технического оборудования
В большинстве случаев они используются на регулярной основе, поэтому оборудование и оборудование, необходимые для выполнения работы отделов технического обслуживания, ремонта и ремонта, подбираются в соответствии с техническими потребностями.
Компоновка оборудования соответствует требованиям технологического процесса и позволяет выполнять свою работу, одновременно используя энергию, за наименьшее количество времени, в то же время обеспечивая безопасность работы и надлежащую производственную культуру.![]() |
Расчет производственных площадей для проектирования объектов
Ремонт запасных участков и диагностических постов производственных помещений в зоне технического обслуживания рассчитывается по площади для самого большого автомобиля по следующей формуле:
F = Fob K, м2 (1,49)
Где: F: Расчетная площадь мастерской (площадки).
ФОБ-оборудование зоны.
K — коэффициент рабочей зоны.
F = 2.84.5.5 = 16 м2
Меры предосторожности при работе на Медницком участке:
- Соответствующим образом квалифицированные лица в возрасте 18 лет и старше, которые получили вводную информацию об охране труда, прошли обучение по безопасным методам работы и которые прошли проверку знаний по охране труда, могут работать самостоятельно.
- При поступлении на работу работники секции установки шин должны пройти предварительный медицинский осмотр, а затем регулярные осмотры в соответствии с графиком Минздрава России.

- Запрещается использование оборудования и инструментов без обучения работе с секцией монтажа шин.
- Перед началом работ шинный рабочий должен сделать следующее: Носить средства индивидуальной защиты. Исследуйте и подготовьте свое рабочее место и удалите все ненужные предметы, не загромождая проходы. Проверьте состояние пола на работе.
- Во время вождения рабочие в секции монтажа шин должны сделать следующее: Работает только с исправным оборудованием и инструментами.
- Сообщите своему непосредственному руководителю о любых недостатках, обнаруженных во время работы.
Блок-схема ремонта радиатора системы охлаждения
В курсовом проекте разработано оперативно-техническое обслуживание. Он указывает последовательность и стоимость рабочего времени для каждой операции, а также оборудование, оборудование, оборудование, инструменты и используемые материалы.
Вы научились рассчитывать основные параметры, необходимые для вашей компании, в данном случае ATP.
Результаты, полученные из этих расчетов, могут быть отражены для нас. Результаты также могут быть использованы для определения того, работает ли компания стабильно и выгодно ли поддерживать необходимое количество машин.
Заключение
Расчеты показывают, что компания работает хорошо в отношении количества постов. При этом, согласно расчетам, занял один пост. В результате его можно использовать как универсальный тупиковый пост, где удерживаются TO-1, TO-2, D-1, D-2 и TR. Хотя его экономические показатели являются средними уровнями, возраст транспортных средств не превысил эксплуатационные показатели, но парк нуждается в более современных технологиях. В большинстве случаев требуется техническое обслуживание, диагностика и ТР.
Также в ходе курса я приобрела навыки проектирования ремонтных компаний и выбора технического оборудования для них. Основные цели, представленные до достижения проекта.
Радиаторы — Медь/латунь Материал радиатора
Результаты 1–25 из 255
99″> $452,99
Ориентировочная дата отгрузки в США: 2 января 2023 г. Расчетная дата международной отправки: Сегодня
$334,99
Ориентировочная дата отгрузки в США: 12 декабря 2022 г. Расчетная дата международной отправки: Сегодня
99″> $353,99
Ориентировочная дата отгрузки в США: 2 января 2023 г. Расчетная дата международной отправки: Сегодня
$343,99
Ориентировочная дата отгрузки в США: 2 января 2023 г. Расчетная дата международной отправки: Сегодня
99″> $320,99
Ориентировочная дата отгрузки в США: 3 января 2023 г. Расчетная дата международной отправки: Сегодня
$376,99
Ориентировочная дата отгрузки в США: 5 января 2023 г. Расчетная дата международной отправки: Сегодня
99″> $377,99
Ориентировочная дата отгрузки в США: 28 ноября 2022 г. Расчетная дата международной отправки: 29 нояб. 2022 г. если заказать сегодня
$473,99
Ориентировочная дата отгрузки в США: 2 января 2023 г. Расчетная дата международной отправки: Сегодня
99″> $281,99
Ориентировочная дата отгрузки в США: 14 декабря 2022 г. Расчетная дата международной отправки: Сегодня
308,95 долларов США
Ориентировочная дата отгрузки в США: 12 декабря 2022 г. Расчетная дата международной отправки: Сегодня
99″> 515,99 долларов США
Ориентировочная дата отгрузки в США: 2 января 2023 г. Расчетная дата международной отправки: Сегодня
$557,99
Ориентировочная дата отгрузки в США: 2 января 2023 г. Расчетная дата международной отправки: 12 января 2023 г.
$351,99
Ориентировочная дата отгрузки в США: 29 нояб. 2022 г. Расчетная дата международной отправки: Сегодня
$329,99
Ориентировочная дата отгрузки в США: 2 января 2023 г. Расчетная дата международной отправки: Сегодня
99″> $341,99
Ориентировочная дата отгрузки в США: 2 января 2023 г. Расчетная дата международной отправки: Сегодня
426,99 долларов США
Ориентировочная дата отгрузки в США: 2 января 2023 г. Расчетная дата международной отправки: 3 января 2023 г.
$344,99
Ориентировочная дата отгрузки в США: 2 января 2023 г. Расчетная дата международной отправки: Сегодня
$375,99
Ориентировочная дата отгрузки в США: 22 декабря 2022 г. Расчетная дата международной отправки: Сегодня
99″> $318,99
Ориентировочная дата отгрузки в США: 2 января 2023 г. Расчетная дата международной отправки: 3 января 2023 г.
$353,99
Ориентировочная дата отгрузки в США: 2 января 2023 г. Расчетная дата международной отправки: 12 января 2023 г.
318,95 долларов США
Ориентировочная дата отгрузки в США: 12 декабря 2022 г. Расчетная дата международной отправки: Сегодня
$312,99
Ориентировочная дата отгрузки в США: 2 января 2023 г. Расчетная дата международной отправки: Сегодня
99″> 400,99 долларов США
Ориентировочная дата отгрузки в США: 28 ноября 2022 г. Расчетная дата международной отправки: Сегодня
$464,99
Ориентировочная дата отгрузки в США: 29 нояб. 2022 г. Расчетная дата международной отправки: Сегодня

На два
рабочих места
03.2020