Технологическое проектирование автотранспортных предприятий как средство повышения безопасности дорожного движения Текст научной статьи по специальности «Экономика и бизнес»
Технологическое проектирование автотранспортных предприятий как средство повышения безопасности дорожного движения
Н. И. Веревкин,
канд. техн. наук, профессор кафедры технической эксплуатации транспортных средств (ТЭТС) Санкт-Петербургского государственного архитектурно-строительного университета (СПбГАСУ)
И. О. Черняев,
канд. техн. наук, доцент, заведующий кафедрой ТЭТС СПбГАСУ
Е. В. Лаврентьев,
канд. техн. наук, ассистент кафедры ТЭТС СПбГАСУ
За последние годы в России отмечен значительный рост числа дорожно-транспортных происшествий (ДТП) из-за эксплуатации неисправных автотранспортных средств (АТС).![]()
Согласно федеральному закону «О безопасности дорожного движения» (БДД), обеспечение БДД определяется как деятельность, направленная на предупреждение причин ДТП и снижение тяжести их последствий. Это означает, что, не найдя причин ДТП, невозможно организовать целенаправленные действия по их предупреждению. Выход из такой ситуации — или мириться с действующей практикой, в которой доминирует небрежность, необязательность, а нередко и отсутствие требуемой квалификации,
или тщательно исследовать механизмы производственной деятельности в АТП, обнаружить все множество факторов, влияющих на уровень обеспечиваемой БДД, и причин несоблюдения требуемых норм и правил, начав с технологического проектирования АТП.
Уровень дорожной аварийности по фактору технического состояния АТС показывает следующее [1]: в 2013 г. по причине эксплуатации АТС с техническими неисправностями число ДТП по сравнению с показателями 2012 г. выросло на 49,9 %. Общая численность таких
ДТП составила 1541, в них погибли 359 и ранены 2230 человек. Если предположить, что основной причиной данного факта является увеличение общего количества технически неисправных АТС, что вполне вероятно, то формально необходимо выделить способствующие этому факторы.
Прежде всего следует проанализировать парк АТС юридических лиц, поскольку любое ДТП с их участием приводит как к ухудшению общей транспортной ситуации и возможным человеческим жертвам, так и к снижению эффективности функционирования АТП в целом, росту общих затрат на перевозки и повышению себестоимости производимой продукции или услуг.![]()
Росту числа эксплуатируемых технически неисправных АТС, находящихся в собственности у юридических лиц, способствуют следующие факторы:
• фактор технологического проектирования АТП, связанный с несоответствием спроектированных производственно-технических баз АТП требованиям специфики конструкции применяемых АТС;
• фактор масштабности АТП, увеличивающий нерентабельность применения современных средств технического диагностирования на малых и средних предприятиях;
• фактор отсутствия доступной производственной инфраструктуры по контролю технического состояния АТС для малых и средних АТП;
• фактор отсутствия контроля со второны государства за техническим состоянием АТС.
Анализ негативных факторов
В сегодняшней практике в статусе средств обеспечения БДД фактор технологического проектирования АТП
не исследовался, однако основания для такого исследования есть [2, 3].
За годы реформирования хозяйственного уклада в Российской Федерации произошли распад крупных АТП и формирование множества небольших АТП. Среднее число автомобилей, приходящееся на одно АТП в России, не превышает 30 единиц. В частности, по Санкт-Петербургу и Ленинградской области структура АТП по группам и количеству единиц подвижного состава показана в табл. 1 [4].
Разработка оптимальных технологических решений и организационных условий, обеспечивающих выпуск
Таблица 1. Число эксплуатируемых транспортных средств в отдельных группах АТП
Регион Численность парка транспортных средств, ед. Менее 10 11-50 51-100 101-300 Более 300
Санкт-Петербург 15962 1784 250 120 63
Ленинградская область 6272 906 103 23 3
Всего 22234 2690 353 143 66
технически исправных АТС на линию в плановые сроки при минимальном расходе ресурсов, обеспечивается, как известно, технологическим проектированием АТП [5].
На данный момент в России технологический проект (расчет) разрабатывается преимущественно по детерминированному цикловому методу для большинства АТП. Расчеты по этому методу основываются на предположении о постоянных среднесуточном пробеге, времени простоя на техническом обслуживании и текущем ремонте и т. д., хотя большинство этих параметров имеют случайный характер [5, 6]. Как показывает практика, значительное фактическое рассеивание расчетных параметров приводит к невозможности организации планово-предупредительной системы технического обслуживания и контроля технического состояния АТС в АТП. Это подтверждает и наука, объясняющая причину данного фактора: согласно закону больших чисел теории вероятностей [7], при увеличении количества независимых опытов среднее арифметическое значение случайной величины сходится по вероятности к ее математическому ожиданию, а дисперсия (среднее рассеивание на один опыт) стремится к нулю. Практикой доказано, что детерминированный метод начинает работать от 300 единиц подвижного состава в АТП, если технологически совместимых групп АТС не более трех [5].
В АТП, эксплуатирующем 300 автомобилей трех технологически совместимых групп, среднесуточный пробег (Zcc) составляет 200 км с рассеиванием (P), равным 90 км. Количество экспериментальных опытов (N) примем равным 10. Тогда по заданной дисперсии случайной величины среднесуточного пробега (D = P/N определится соответствующее среднеквадратическое отклонение (ст/cc):
а, =VZ> =3
(км),
что составляет 1,5 % от среднесуточного
пробега автомобилей в АТП, а суммарная ошибка расчета — 3а = 4,5 %. Величина такой ошибки допустима для инженерных расчетов (критическое значение погрешности составляет 5 %).
В развитых странах преобладают крупные АТП, поэтому цикловой метод там эффективно функционирует. В России же большая часть АТП (даже в наиболее развитых регионах — см. табл. 1) имеет численность подвижного состава менее 300 автомобилей. Этого недостаточно для применения метода с постоянными расчетными параметрами.
В капитализированном обществе основная цель функционирования любого хозяйствующего субъекта, в том числе АТП — получение прибыли. Между тем деятельность АТП при этом предусматривает обеспечение требований БДД, гарантированное соответствие технического состояния используемого подвижного состава действующим нормативам. Это условие определено законодательством многих стран и жестко ими контролируется.
В России за годы реформирования хозяйственного уклада государство фактически ушло от нормирования процесса функционирования и развития АТП.
Оно отменило обязательные виды сертификации производственно-технических баз предприятий по установленным требованиям. Действующая нормативная документация регламентирует только те параметры, отклонение которых от нормативов влечет за собой снижение уровня БДД. Все остальные факторы остаются в ведении собственников АТП. В нормативной документации — техническом регламенте «О безопасности колесных транспортных средств», ГОСТ Р 51709-2001 и Правилах дорожного движения — обозначены только те неисправности, с которыми выпуск транспортных средств на линию запрещен.
Однако даже при наличии современных средств технического диагностирования, способных выявлять обозначенные неисправности, нет системы их контроля. Это значит, что гарантий обеспечения БДД по фактору техни-
ческого состояния АТС подавляющая часть АТП дать не может. В автопарках такие средства практически не используются. Во-первых, они дорого стоят и требуют привлечения соответствующего квалифицированного персонала, что является нерентабельным для малых и средних предприятий.
По данным причинам обозначенный фактор масштабности привел к тому, что внутри малых и средних АТП творится хаос. Предприятия не имеют ни инженерной, ни технологической, ни информационной базы для обучения персонала. Как следствие, у них нет возможности соблюдения нормативов в области обеспечения БДД. Действующая практика подтверждает: представленные первые два фактора являются основополагающими в росте числа ДТП с участием технически неисправных АТС, эксплуатируемых в АТП.
Малые АТП, опираясь на опыт западных стран, принципиально могли бы проводить подобные работы по договорам аутсорсинга. Однако подобной инфраструктуры, дающей возможность контроля технического состояния транспортных средств по приемлемым ценам для таких предприятий, в России нет. В этом проявляется фактор отсутствия доступной инфраструктуры для контроля технического состояния АТС.
Предпосылки для создания подобного механизма в России были подготовлены в период функционирования системы обязательного Государственного технического осмотра (ГТО) (1996— 2011 гг.). На территории Санкт-Петербурга и Ленинградской области система ГТО накопила около 130 современных линий диагностирования, сформировала новые элементы технической культуры, побудила крупные АТП создавать собственные производственно-технические базы с использованием стендового контроля, объединенные в специализированный модуль региональных организаций соответствующего эффективно действующего некоммерческого партнерства.
С введением в 2011 г. федерального закона «О техосмотре транспортных средств» развитие системы остановилось и в значительной мере разрушилось под действием мгновенно возникшего мощного коррупционного элемента. Это явилось дополнительным фактором в росте числа ДТП из-за экс-
плуатации технически неисправных транспортных средств.
В результате введения в действие этого закона страховые компании получили «государственное» разрешение проводить дистанционную, обезличенную аккредитацию хозяйствующих субъектов на право проводить технический осмотр транспортных средств. Сам федеральный закон оперирует далекими от обеспечения БДД терминами, такими как «финансовые и страховые рынки», «рыночная услуга» (при допуске транспортного средства к эксплуатации) и др. [8]. Он позволил участвовать в контроле состояния транспортных средств практически любым хозяйствующим субъектам, в том числе тем, которые не имеют представления об обязательности производственной дисциплины, субъектам с произвольным профессиональным образованием и даже не использующим диагностический инструментарий в строго регламентированных процедурах допуска АТС к эксплуатации. В этой ситуации коррупционная мотивация неизбежна. Федеральный закон «О техосмотре» увел государственную систему обеспечения БДД в область коммерческих приоритетов, а процедура контроля технического состояния автомобилей стала формальной, обезличенной операцией без возможности обратной связи с госорганами.
Это явилось фактором практически полной неконтролируемости государством технического состояния АТС, усиливающим рост числа ДТП из-за эксплуатации технически неисправных транспортных средств.
Вследствие обозначенных факторов квалифицированный контроль параметров технического состояния автомобилей, которого требуют названные выше нормативные документы по обеспечению БДД, либо невозможен, либо намеренно не выполняется ответственными лицами в различных АТП. Бесконтрольный выход технически неисправных АТС на линию не мог не привести к значительному росту числа ДТП, цифры которых представлены в начале статьи. Крайним в этой ситуации при несчастных случаях остается владелец транспортных средств, на которого возлагается вся ответственность за несоблюдение несовершенного законодательства.
Расчеты для обеспечения БДД
Сложившиеся в стране обстоятельства побуждают разработать и пред-
ложить собственникам АТП механизм, способствующий обеспечению безопасной эксплуатации используемых ими АТС и соблюдению нормативных требований по БДД.
Для разработки такого механизма вернемся к основополагающим факторам роста числа ДТП с участием технически неисправных АТС. Если увеличение количества различных АТП до минимально необходимого условия применения детерминированного метода является невыполнимой задачей, то переработка основ существующих технологических проектов остается единственным приемом решения поставленной проблемы силами владельцев АТП.
Ранее отмечалось, что главным недостатком детерминированного метода является использование постоянных исходных данных для технологического расчета АТП, несмотря на то что большинство из них имеют случайный характер. То есть решение поставленной задачи упирается в необходимость применения вероятностного метода расчета АТП. В этом случае учет непостоянства исходных данных позволит адаптировать ремонтно-обслуживающий комплекс АТП к технологическим параметрам эксплуатируемых АТС и сконцентрировать внимание на контроле их технического состояния.
Задача требует использования методов теории вероятности при известных заранее законах распределения вводимых исходных величин технологического расчета АТП.
Для технологического расчета АТП используется множество случайных исходных данных, но наибольшим рассеиванием обладают параметры интенсивности эксплуатации (среднесуточный пробег) и интенсивности устранения неисправностей (время простоя на техническом обслуживании и текущем ремонте). Факторы, влияющие на надежность подвижного состава, подразделяются на технологические, нагрузочные, климатические, дорожные и эксплуатационные [9]. Все обозначенные факторы в разной мере оказывают влияние на ресурс автомобиля и на интенсивность его эксплуатации, которые, в свою очередь, влияют на основной показатель эффективности работы АТП — коэффициент технической готовности (КТГ).
Согласно центральной предельной теореме теории вероятности [5], закон распределения суммы трех и более независимых случайных величин сколь
Таблица 2.
Определения квантиля нормированного нормального распределения и в зависимости от заданной доверительной вероятности а
а 0,999 0,99 0,95 м,90 о,85 0,8 0,75 0,7 0,65 0,5
иа 3,2905 2,5758 1,960 1,645 1,440 1,282 1,1503 1,0364 0,9346 0,00
рый является двухпараметрическим. Поэтому для расчета всех параметров проектируемого предприятия с заданной вероятностью необходимо, чтобы исходные величины технологического расчета, имеющие случайный характер, были заданы двумя параметрами: математическим ожиданием (шх) и среднеквадратическим отклонением (ах). Оба этих параметра распределения можно выявить при наличии статистических данных по предприятию. Исследования показывают, что среднесуточный пробег и время простоя в ТО и ТР являются случайными величинами, подчиняющиеся нормальному закону распределения [3, 4]. В отсутствие статистических данных по предприятию можно использовать соотношение параметров нормального закона распределения, для которого среднек-вадратическое отклонение от математического ожидания находится в диапазоне 0,25-0,33.
где Т — среднее значение годового объема работ по ТО и ТР;
ап — среднеквадратическое отклонение годового объема работ;
V — квантиль нормированного нормального распределения, соответствующий заданной вероятности а, определяемый по табл. 2.
Дальнейшее применение методики распределения объемов работ ТО и ТР [3] позволяет провести адаптацию полученных значений объемов работ к сложившейся структуре подвижного состава с учетом организационных, технологических, экономических и законодательных норм работы предприятия.
Таким образом, технологический расчет с применением обозначенных методик способен сконцентрировать доступные средства на необходимых для повышения уровня БДД технологических процессах, в числе которых контроль технического состояния транспортных средств.
Для этого необходимо рассчитать объем диагностических работ с заранее заданной доверительной вероятностью а, равной, как минимум, 0,95. Увеличение производственных ресурсов по отдельным направлениям, обеспечивающим БДД, дает возможность соблюсти действующие законодательные нормы при минимальных затратах на производство. Кроме того, адаптивный технологический расчет позволяет с заранее заданной доверительной вероятностью рассчитать необходимые параметры проектируемого предприятия, такие как численность и квалификацию рабочего персонала, производственные площади, потребность в оборудовании и т. д., для любых размеров парка подвижного состава АТП. Следовательно, такой адаптивный вероятностный расчет относится к наи-
более перспективным для применения в существующих АТП на территории РФ с целью снижения числа ДТП, вызванных эксплуатацией технически неисправных АТС и потребностью повышения эффективности функционирования предприятий.
В заключение необходимо отметить, что сейчас наблюдается тенденция к укрупнению АТП и унификации подвижного состава путем объединения существующих средних и малых предприятий.
Можно предположить, что вновь станет актуальным цикловой детерминированный метод и исчезнет фактор масштабности предприятий, а это, соответственно, вызовет сокращение числа ДТП, связанных с эксплуатацией технически неисправных транспортных средств. □
Литература
1. Статистические сведения о показателях состояния безопасности дорожного движения Госавтоинспекции МВД России: 2013. URL: http://www.gibdd. ru/stat/.
2. Лаврентьев Е. В. Расчет производственной программы автотранспортных предприятий с учетом случайных факторов работы производства // Наука и бизнес: пути развития. 2013. № 6 (24). С. 30-34.
3. Лаврентьев Е. В. Рационализация распределения объемов работ технического обслуживания текущего ремонта автомобилей // Наука и бизнес: пути развития. 2013. № 3 (21). С. 41-44.
4.
Транспорт и связь в России. 2012: стат. сб. / под ред. А. Л. Кевешова, М. А. Са-бельникова. М.: Росстат, 2012. 303 с.
5. Тахтамышев Х. М. Основы технологического расчета автотранспортных предприятий. М.: Академия, 2011. 352 с.
6. Лукинский В. С. Модели и методы теории логистики: учеб. пособие. 2-е изд. СПб.: Питер, 2007. 448 с.
7. Вентцель Е. С. Теория вероятностей. М.: Физматгиз, 1962. 564 с.
8. Кравченко П. А. О нормативах качества законодательных актов, регулирующих деятельность в сфере обеспечения безопасности дорожного движения в Российской Федерации // Транспорт РФ. 2013. № 4 (47). С. 20-23.
9. Положение о техническом обслуживании и ремонте подвижного состава автомобильного транспорта / Мин-во автомобильного транспорта РСФСР.
М.: Транспорт, 1986. 72 с.
Министерство образования российской федерации
Ижевский государственный технический университет
Чайковский технологический институт
С.М. Клементьев
Технологическое проектирование автотранспортных предприятий
Методические указания к курсовому проекту по курсу
«Проектирование предприятий автомобильного транспорта» для студентов специальности 1502 «Автомобили и автомобильное хозяйство»
Издание ЧТИ ИжГТУ Чайковский, 2001
Технологическое проектирование автотранспортных предприятий
Составитель: к.т.н., доцент С.М. Клементьев
2001 г.
©
С.
М. Клементьев
Утверждено на заседании кафедры “Специальной подготовки”
Чайковского технологического института ИжГТУ
Протокол №__ от __.__.200_
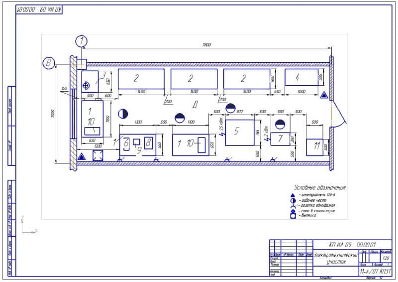
В данном методическом указании приведена методология технологического проектирования автотранспортных предприятий: выбор исходных данных, расчет производственной программы по техническому обслуживанию, расчет годового объемам и численности производственных рабочих и ИТР, расчет постов и поточных линий, определение потребности в технологическом оборудовании, расчет показателей механизации производственных процессов ТО и ТР, расчет площадей помещений, а также приводятся нормы расхода воды, электроэнергии, тепла и сжатого воздуха, рекомендации по утилизации попутных материалов и вторичных ресурсов.
В приложении дается перечень оборудования применяемого в АТП, его краткая характеристика, предприятие-изготовитель и стоимость.
Введение
Поддержание
автомобилей в технически исправном
состоянии в значительной степени зависит
от уровня развития и условия функционирования
производственно-технической базы (ПТБ)
предприятий автомобильного транспорта,
представляющей собой совокупность
зданий, сооружений, оборудования,
оснастки и инструмента, предназначенных
для технического обслуживания (ТО),
текущего ремонта (ТР) и хранения подвижного
состава (ПС).
При этом следует отметить,
что вклад ПТБ в эффективность технической
эксплуатации автомобилей достаточно
высок и оценивается в 18-19%.
В настоящее время развитие ПТБ отстает от темпов роста парка автомобилей. Опережающий темп роста численности автомобилей привел к тому, что в среднем по стране обеспеченность автотранспортных предприятий (АТП) производственными площадями составляет 50-65%, постами для ТО и ТР 60-70% от норматива, а уровень оснащенности средствами механизации процессов ТО и ТР не превышает 30%. Такое положение приводит к значительным простоям автомобилей в ожидании ТО и ТР и, как следствие, к увеличению затрат на поддержание их в исправном состоянии.
Поэтому
строительство новых, расширение,
реконструкция и техническое перевооружение
действующих АТП, баз централизованного
технического обслуживания (БЦТО),
производственно-технических комбинатов
(ПТК), централизованных специализированных
производств (ЦСП), станций технического
обслуживания (СТО), автозаправочных
станций (АЗС), пассажирских автостоянок
и автостоянок, грузовых автостанций и
терминалов, мотелей и кемпингов должны
отвечать современным требованиям
научно-технического процесса.
В основе проектирования предприятий лежат технология и организация производства ТО и ТР. Под технологическим проектированием предприятия понимается процесс, включающий:
выбор и обоснование исходных данных для расчета производственной программы;
расчет программы, объектов производства и численности производственного персонала;
выбор и обоснование метода организации ТО и ТР;
расчет числа постов и линий для ТО и постов ТР ПС;
определение потребности в технологическом оборудовании;
расчет уровня механизации производственных процессов;
расчет площадей производственных, складских и административно-бытовых помещений;
выбор, обоснование и разработку объемно-планировочных решений зон, участков и предприятия в целом;
разработку схемы генерального плана;
технико-экономическую оценку технологического проектного решения.

Проектирование АТП — Каталог книг — Каталог статей
Проектирование автотранспортных предприятий: учебно-методическое пособие / Д.А. Вахрамеев, С.Е. Селифанов, В.М. Федоров. – Ижевск: ФГОУ ВПО Ижевская ГСХА, 2006. – 75 с.
В методических указаниях представлены разъяснения по выполнению разделов курсового проекта по дисциплине «Проектирование автотранспортных предприятий». Указания рассчитаны для студентов по специальности 311300 «Механизация сельского хозяйства».
Скачать бесплатно. Проектирование автотранспортных предприятий
Технологический расчет и планировка автотранспортных предприятий: учебное пособие / Ю.Е. Глазков, Н.Е. Портнов, А.О. Хренников. — Тамбов: Изд-во Тамб. гос. техн. ун-та, 2009. — 86 с.
Рассмотрена тематика, объем, структура и последовательность выполнения курсовых проектов по технологическому расчету и планировке автотранспортных предприятий.![]()
Скачать бесплатно. Технологический расчет и планировка автотранспортных предприятий
Масуев М.А. Проектирование предприятий автомобильного транспорта : учеб. пособие для студ. высш. учеб. заведений / М.А. Масуев. — М. : Издательский центр «Академия», 2007. — 224 с.
Освещены вопросы развития производственно-технической базы, изложены принципы разработки технико-экономического обоснования строительства, реконструкции, технического перевооружения и основы технологического проектирования предприятий автомобильного транспорта, приведены порядок выполнения технологического расчета, а также методы оптимизации производственных мощностей технического обслуживания и ремонта подвижного состава.
Рассмотрены вопросы принятия архитектурно-планировочных решений при проектировании предприятия с использованием традиционных строительных материалов и современных модульных металлоконструкций.
Для студентов высших учебных заведений. Может быть полезно специалистам, занимающимся проектированием, реконструкцией и эксплуатацией предприятий автомобильного транспорта.
Скачать бесплатно. Проектирование предприятий автомобильного транспорта
Зайцев В.И. Проектирование предприятий автомобильного транспорта. Часть I. Технологическое проектирование автотранспортных предприятий: Учебно-методическое пособие к курсовому проекту для студентов специальности 280540 и 050713 /В.И.Зайцев, Д.М.Мырзабекова / ВКГТУ. – Усть-Каменогорск, 2007. — 71 с.
Цель данного учебно-методического пособия оказание помощи студентам в самостоятельной разработке курсового проекта по специальностям 280540 и 050713. Рассмотрены вопросы разработки курсового проекта по автотранспортным предприятиям. Учебно-методическое пособие разработано в соответствии и рабочей программой по указанным специальностям. Приведена тематика проектов, даны рекомендации по оформлению расчетно-пояснительной записки и графической части проекта, подробно изложена методика технологического расчета производственной программы по техническим воздействиям.
Скачать бесплатно.
Проектирование предприятий автомобильного транспорта
Проектирование предприятий автомобильного транспорта: Конспект лекций / Авт.-сост.: А. Н. Чадин; НовГУ им. Ярослава Мудрого. – Великий Новгород, 2005. – 89 с.
Изложены общие и специальные вопросы по проектированию и реконструкции предприятий автомобильного транспорта. Предназначены для студентов специальностей 190601 «Автомобили и автомобильное хозяйство».
Скачать бесплатно. Проектирование предприятий автомобильного транспорта
Корпачан А.П. Технологическое проектирование предприятий автомобильного транспорта
Методические указания по курсовому проектированию для студентов специальности «Инженерия и технология автомобильного транспорта»
Скачать бесплатно. Технологическое проектирование предприятий автомобильного транспорта
Болбас М.М. и др. Проектирование предприятий автомобильного транспорта — Мн.
: Адукацыя iвыхаванне, 2004. — 528с.
В учебнике рассмотрены вопросы технологического проектирования предприятий автомобильного транспорта, изложена методика технико-экономического обоснования исходных данных для проектирования ,технологического расчёта, вопросы планировки предприятий, даётся методика технико-экономической оценки проекта.
Учебник предназначен для студентов специальности «Эксплуатация транспортных средств», «Организация перевозок и управления на транспорте». Может быть использован работниками проектных организаций и предприятий автомобильного транспорта.
Скачать бесплатно. Проектирование предприятий автомобильного транспорта
Дехтеринский Л.В., Карагодин В.И. Проектирование авторемонтных предприятий — М.: Транспорт, 1981. — 218 с.
В учебнике изложены основные вопросы проектирования авторемонтных предприятий. Приведены методы определения потребности в ремонте автомобилей, обоснование програм, специализации и териториального размещения предприятий, расчет основных параметров производственных участков и поточных линий.
При изложении рассматриваемых вопросов большое внимание уделено приминению современных математических методов с использованием ЭВМ для обоснование проектних решений.
Скачать бесплатно. Проектирование авторемонтных предприятий
Шец С.П. Осипов И.А. Дипломное проектирование Методические указания для студентов дневной и вечерней форм обучения специальности 190601 — Автомобили и автомобильное хозяйство. Брянск БГТУ 2007г — 50 стр.
Методические указания устанавливают конкретные требования к объёму, структуре, содержанию и нормоконтролю дипломных проектов, выполняемых на кафедре «Автомобили и автомобильное хозяйство» Методические указания разработаны на основе требований ГОСТ, ЕСКД, ЕСТД, ЕСТПП, СПДС, СНиП а также СТП-БГТУ
Общие сведения.
Объём и структура дипломного проекта.
Содержание дипломного проекта.
Оформление дипломного проекта.
Вопросы стандартизации и сертефикации в документах текстовых проекта.
Нормоконтроль.
Список рекомендуемой литературы.
Приложения.
Скачать бесплатно. Дипломное проектирование
Кузнецов М.Е. Основы проектирования авторемонтных предприятий Учебное пособие / М.Е. Кузнецов. – Томск : Изд-во Том. гос. архит.-строит. ун-та, 2010. – 84 с.
В учебном пособии рассмотрены вопросы проектирования авторемонтных предприятий. Показан расчет основных показателей производственной программы, определены рабочие, рабочие места и оборудование. Кроме этого в учебном пособии изложены оптимальные планировочные решения производственных мощностей и вспомогательных сооружений, а также показаны технологические решения размещения оборудования по цехам восстановления и зонам ремонта.
Учебное пособие предназначено для студентов высших учебных заведений, обучающихся по специальности 150200 «Автомобили и автомобильное хозяйство» и по специальности 190603 «Сервис транспортных машин и оборудование» (автомобильный транспорт),
изучающих курс «Технология и организация восстановления деталей и сборочных единиц при сервисном сопровождении».
Скачать бесплатно. Основы проектирования авторемонтных предприятий
Тарасов В.В. Проектирование предприятий автомобильного транспорта: Учеб. пособие. — М. : Изд-во МГОУ, 2009.
В пособии даны теоретические основы и методика технологического расчета АТП и СТО, обоснование организационно-технологических и планировочных решений с учетом разнообразия условий фунцйионирования предприятий автомобильного транспортаю. В пособии учтены принципиальные изменения, произошедшие в технической эксплуатации автомобилей в условиях рыночной экономики.
Пособие предназначено ждя студентов всех форм обучения по специальности 190601 — «Автомобили и автомобильное хозяйство» и может быть использовано в курсовом проектировании и при работе над технологической частью дипломного проекта.
Скачать бесплатно. Проектирование предприятий автомобильного транспорта
Проектирование авторемонтных предприятий: Учеб.
пособие / Дехтеринский Л.В., Абелевич Л.А., Карагодин В.И. и д.р.; — М.: Транспорт, 1981, 218 с.
В учебнике изложены основные вопросы проектирования авторемонтных предприятий. Приведены методы определения потребности в ремонте автомобилей, обоснование программ, специализации и территориального размещения предприятий, расчета основных параметров производственных участков и поточных линий. При изложении рассматриваемых вопросов большое внимание уделено применению современных математических методов с использованием ЭВМ для обоснования проектных решений.
Скачать бесплатно. Проектирование авторемонтных предприятий
Туревский И.С. Дипломное проектирование автотранспортных предприятий Учебное пособие. — М.: Ид «Форум»: Инфра-М, 2007. — 240 с.: ил. — ISBN: 978-5-8199-0296-7, 978-5-16-002812-5 — (Профессиональное образование) — (OCR).
Рецензенты: ректор Московского института управления и сервиса, заслуженный работник высшей школы, доктор технических наук Л.
А. Каплищ, преподаватель Ноу «Отраслевой автомобильный колледж» И. А. Ильин
Редактор А. В. Волковицкая Корректор А. В. Алешина Компьютерная верстка И. В. Кондратьевой Оформление серии В. А. Купцова
Цель данного пособия — оказание помощи студентам по самостоятельной разработке дипломного проекта по специальности 1705 «Техническое обслуживание и ремонт автомобильного транспорта». Рассмотрены важ-нейшие вопросы разработки дипломного проекта по автотранспортным предприятиям. Учебное пособие выполнено в соответствии с учебной программой по данной специальности.
Приведена возможная тематика проектов, даны рекомендации по оформлению пояснительной записки и графической части проекта, подробно изложены методические рекомендации выполнения основных частей дипломного проекта.
Для студентов и преподавателей средних специальных учебных заведений, а также для всех, кто интересуется вопросами технического обслуживания автомобилей.
Методические рекомендации по разработке дипломных проектов по техническому обслуживанию и текущему ремонту автомобилей АТП.
Скачать бесплатно. Дипломное проектирование автотранспортных предприятий
Дидманидзе О.Н., Технологическое проектирование предприятий автомобильного транспорта Методические рекомендации по выполнению курсового проекта, разработаны с учетом требований Минобразования РФ по изучению дисциплины «Проектирование предприятий автомобильного транспорта» / Дидманидзе О.Н., Виноградов О.В., Митягин Г.Е., Андреев О.П., Новиков Е.В., Закарчевский О.В., Дзюба Ю.В., Журилин А.Н. 3-е издание. – М.: ООО «Спектр», 2010. – 70 с.
Даны методические рекомендации по содержанию и оформлению курсового проекта. Приведен ряд справочных данных, необходимых для выполнения курсового и дипломного проекта
Исходные данные
Корректировка нормативов ресурсного пробега и периодичности ТО
Расчет коэффициента технической готовности
Расчет годовых пробегов подвижного состава и производственной программы ТО
Корректирование нормативных значений трудоемкости ЕО, ТО,ТР
Расчет годовых объемов работ ЕО, ТО, ТР
Распределение годовых объемов работ ЕО, ТО и ТР по их видам
Расчет численности производственных рабочих
Расчет объема вспомогательных работ и численности вспомогательных рабочих
Расчет количества механизированных постов ЕО для туалетной мойки подвижного состава
Расчет количества постов ЕО, ТО, ТР и ожидания
Расчет площадей зон ЕО, ТО, ТР и производственных участков
Расчет площадей складов, вспомогательных и технических помещений
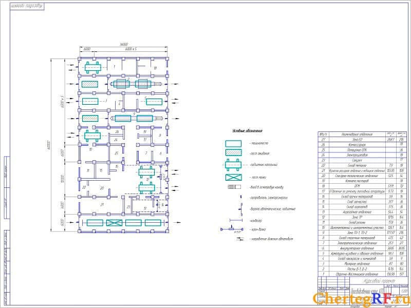
Планировка производственного корпуса АТП
Виды промышленных зданий
Объемно-планировочное решение зданий
Элементы каркаса одноэтажных промышленных зданий
Промышленные здания с применением легких несущих и ограждающих конструкций
Технологический проект производственной зоны
Технико-экономическая оценка проекта
Скачать бесплатно.
Технологическое проектирование предприятий автомобильного транспорта
Карташов В.П. Технологическое проектирование автотранспортных предприятий
Учебное пособие для учащихся автотранспортных техникумов. М., «Транспорт», 1977, 160 с.
Рассмотрены методика и приёмы технологических расчетов при проектировании новых и реконструкции действующих зон ТО и ТР автомобилей, производственных отделений и других помещений.
Скачать бесплатно. Технологическое проектирование автотранспортных предприятий
Типовые проекты рабочих мест на участке по ремонту агрегатов автомобилей в АТП
Скачать бесплатно. Типовые проекты рабочих мест на участке по ремонту агрегатов автомобилей АТП
| dc.contributor.other | Вахрамеев, Дмитрий Александрович | |
| dc.contributor.other | Селифанов, Сергей Евгеньевич | |
dc. contributor.other | Фёдоров, Владимир Михайлович | |
| dc.date.accessioned | 2019-12-28T10:36:44Z | |
| dc.date.available | 2019-12-28T10:36:44Z | |
| dc.date.issued | 2006 | |
| dc.identifier.citation | Проектирование автотранспортных предприятий : учебно-методическое пособие по выполнению курсового проекта по дисциплине «Проектирование автотранспортных предприятий» по специальности «Механизация сельского хозяйства» / Министерство сельского хозяйства Российской Федерации, Федеральное государственное образовательное учреждение высшего профессионального образования «Ижевская государственная сельскохозяйственная академия» ; составители: Д. А. Вахромеев, С. Е. Селифанов, В. М. Федоров. — Ижевск : Ижевская ГСХА, 2006. — 51 с. | ru_RU |
| dc.identifier.other | arhiv_book_10211 | |
| dc.identifier.uri | http://eanbur.unatlib.ru/handle/123456789/24284 | |
dc. description.abstract | В учебно-методическом пособии представлены разъяснения по выполнению разделов курсового проекта по дисциплине «Проектирование автотранспортных предприятий». Указания рассчитаны для студентов но специальности «Механизация сельского хозяйства». | ru_RU |
| dc.language.iso | ru | ru_RU |
| dc.publisher | ИжГСХА | ru_RU |
| dc.subject | автотранспортные предприятия | ru_RU |
| dc.subject | учебно-методические пособия | ru_RU |
| dc.subject | проектирование | ru_RU |
| dc.title | Проектирование автотранспортных предприятий | ru_RU |
| dc.type | Text | ru_RU |
СПИСОК ЛИТЕРАТУРЫ1. |
Проектирование АТП, автотранспортного предприятия, автопарка — цена Киев, Одесса, Львов, Украина
Возрастающее количество общественного и частного транспорта — причина увеличение числа АТП. Потребности в более сложном техническом обслуживании подталкивают усовершенствовать уже существующие автотранспортные предприятия. Проектирование АТП в Киеве и всей Украине осуществляет «Архитектурное Бюро Проценко».
Общие сведенья о проектировании АТП
Сложность и функциональность технологического проектирования автотранспортных предприятий определяется его назначением.
Целью может быть как простое хранение автотранспорта, так и осуществление технического обслуживания. Те предприятия, что рассчитаны на ТО и ремонт, обычно имеют сложную структуру. Здесь необходима организация складских, подсобных, технических помещений, зоны регулярного осмотра, зоны административно-бытового назначения. Проектирование АТП для автобусов или грузового АТП – это пример организации такого объекта.
Цели «Архитектурного Бюро Проценко» при проектировании АТП
При выполнении работ по проектированию предприятий автомобильного транспорта наше бюро приследует такие цели:
- Реализация в проекте новых технических подходов, отечественного и зарубежного опыта. Предприятие во времмя ввода его в эксплуатацию должно быть технически передовым и обеспечивать обслуживание, ремонт транспорта на высшем уровне.
- Высокая эффективность АТП и окупаемость вложений. Архитектурная и техническая части проекта направлены на производительность и быструю окупаемость.
- Безопасность объектов АТП.
Наши решения направлены на минимизацию негативного воздействия на окружающую среду. При проектировании мы всегда рационально используем земли, отведенные под строительство. - Готовый проект учитывает дальнейшую возможность расширения или техническое усовершенствование предприятия.
Заказать проектирование АТП (с разработкой электрического, шиномонтажного, агрегатного участка) либо узнать предварительный расчет можно по номеру (097) 365-99-66. Звоните нам.
(PDF) Улучшение структуры автопарка специализированного автотранспортного предприятия
1207
А.Н. Мельников и др. / Procedure Engineering 150 (2016) 1200–1208
[16] Дж. Грегуар, Э. Фраццоли, А. де Ла Фортель, Т. Вонгпиромсарн, Управление сигналом обратного давления с неизвестной скоростью маршрутизации, arXiv:
1401.3357v2 [cs.SY]. (2014)
[17] X. He, X. Guo, H. Liu, Модель распределения повседневного трафика на основе каналов, Транспортные исследования, Часть B.44 (2010) 597–608.
[18] B.G. Гейдекер, Цели, стимулы и обратная связь в сигнальном управлении дорожным движением, ITS Journal. 8 (2004) 63–76
[19] T-Y. Ху, Х.С. Махмассани, Повседневная эволюция сетевых потоков под управлением информации в реальном времени и реактивного сигнала, Транспорт
Research C. 5 (1997) 51–69.
[20] Т. Ле, П. Ковач, Н. Уолтон, Х. Л. Ву, Л. Х. Эндрю, С. П. Хугендорн, Децентрализованное управление сигналами для городских дорожных сетей. arXiv:
1310.0491v2 [math.OC]. (2014).
[21] Лю Р., Моделирование дорожного движения с помощью DRACULA. В Основах моделирования дорожного движения (ред. Дж. Барсело), глава 8. Springer. (2010) 295–322.
ISBN: 978-1-4419-6141-9.
[22] Р. Лю, М.Дж. Смит, Выбор маршрута и управление сигналом: исследование устойчивости и нестабильности сетей, управляемых сигналом трафика,
Транспортные исследования, часть B. 77 (2015) 123–145.
[23] Р. Лю, Д. ван Влит, Д. Уотлинг, Модели микромоделирования, учитывающие динамику спроса и предложения, Транспортные исследования.
40А
(2006) 125–150.
[24] I.I. Любимов, Показатели спроса на городской пассажирский транспорт (на примере Оренбурга), Вестник Оренбургского государственного университета.
115 (2009) 139–143.
[25] I.I. Любимов, К. Манаев, А. Мельников, В. Рассоха, Разработка алгоритма оптимизации подвижного состава и контейнерного парка
при сборе и вывозе твердых бытовых отходов, Известия Тульского государственного университета, Технические науки.4 (2011) 174–
182.
[26] И.И. Любимов, К. Манаев, А. Мельников, Н.З. Султано, Методические основы оптимизации процессов сбора и удаления твердых бытовых отходов
// Интеллект. Инновации. Инвестиции. 2 (2011) 35–40.
[27] I.I. Любимов, Н. Султанов, Е.В. Бондаренко, К теме формирования рациональной структуры городского пассажирского транспорта в
Оренбурге, Вестник Московского автомобильно-дорожного государственного технического университета (МГТУ).3 (2009) 21–25.
[28] И.И.
Любимов, Н. Султанов, Теоретические основы совершенствования транспортной системы, Вестник Оренбургского государственного университета. 10 (2014) 121–
123.
[29] I.I. Любимов, Н. Султанов, И. Ковриков, Модель транспортной сети региона (на примере Оренбургской области),
Вестник Оренбургского государственного университета. 129 (2011) 32–37.
[30] И.И. Любимов, К. Манаев, А. Мельников, Н.З. Султанов, Формирование специальной функции для оптимизации транспортно-логистической схемы
при сборе и вывозе твердых бытовых отходов, Интеллект.Инновации. Инвестиции. 3 (2011) 5–8.
[31] MJ Maher, X. Zhang, D. van Vliet, Подход к двухуровневому программированию для оценки матрицы поездок и задач управления движением с
Стохастические потоки каналов равновесия пользователей, Транспортные исследования, часть B. 35 (2001) 23 –40.
[32] М. Махер, Р. Лю, Д. Нгодуй, Оптимизация сигналов с использованием метода кросс-энтропии. Транспортные исследования, часть C.
27 (2013) 76–88.
[33] К. Менегуззер, Обзор моделей, сочетающих назначение трафика и управление сигналом, Журнал транспортной инженерии.123 (1997) 148–
155.
[34] Р. Маунс, М. Дж. Смит, Уникальность равновесия в установившихся и динамических транспортных сетях, В: Транспорт и теория движения.
(2007) 281–299.
[35] Р. Маунс, Сходимость в модели непрерывной динамической организации очередей для транспортных сетей, Транспортные исследования, часть B. 40 (2006) 779–791.
[36] Р. Маунс, Существование равновесия в модели непрерывной динамической организации очередей для транспортных сетей с чувствительным управлением сигналами.Proc. Из
18-й Международный симпозиум по транспорту и теории движения. (2009) 327–344,
[37] Р. Маунс, М. Кэри, Обмен маршрутами в динамических транспортных сетях, Транспортные исследования, Часть B. 45 (2011) 102–111.
[38] Ю. Нестеров, А. де Пальма, Стационарные динамические решения в перегруженных транспортных сетях, Сети и пространственная экономика.
3 (2003)
371–395.
[39] Y. Nie, Класс алгоритмов на основе кустов для задачи распределения трафика, Транспортные исследования, Часть B.44 (2010) 73–89.
[40] Труды симпозиума по системам управления дорожным движением, Беркли, Том 2А, 11-32; Управление движением и управление. 21 (1980) 298–302.
[41] С. Смейл, Обменные процессы с корректировкой цен, Математика. Экон. 3 (1976) 211–226.
[42] М.Дж. Смит, Политика местного управления движением, которая автоматически максимизирует общую пропускную способность городской дорожной сети, 1979.
[43] М.Дж. Смит, Управление движением и выбор маршрута; простой пример: Транспортные исследования.13B (1979) 289–294.
[44] М. Дж. Смит, Алгоритм спуска для решения разнообразных задач монотонного равновесия. Труды девятого международного симпозиума
по транспорту и теории движения (редакторы: Волмюллер Дж., Хамерслаг Р.). (1984) 273–297.
[45] М.Дж. Смит, Управление трафиком и назначение трафика в сети, управляемой сигналом, с организацией очередей.
Материалы 10-го Международного симпозиума
по транспорту и теории дорожного движения (Редакторы: Gartner, N.Х., Уилсон, Н. Х. М.), Elsevier. (1987) 61–68.
[46] M.J. Smith ,. Интеллектуальное управление сетью: использование модели управления назначением для разработки сигналов фиксированного времени, новые разработки в
Транспортное планирование — достижения в динамическом назначении трафика (редакторы: К. Тампере, Ф. Вити, Л. Иммерс), Эдвард Элгар. (2010) 57–72.
[47] М.Дж. Смит, Управление сигналом светофора и выбор маршрута: новая модель назначения и управления, которая определяет время сигнала. Транспорт
Исследования, часть C.(2015)
[48] M.J. Smith, M.O. Гали, Динамика распределения трафика и управления движением; теоретическое исследование, Transpn. Res. Часть B. 24 (1990) 409–422.
[49] М.Дж. Смит, Р. Маунс, Модель скорости разделения перенаправления трафика и управления движением, Транспортные исследования, часть B. (2011) 1389–1409.![]()
[50] М.Дж. Смит, Т. ван Вурен, Равновесие движения с гибким управлением движением, Транспортная наука. 27 (1993) 118–132.
[51] М.Дж. Смит, Т.Ван Вурен, Д. Ван Влит, Б.Г. Гейдекер, Взаимодействие между политиками управления сигналами и выбором маршрута, Труды
Десятого международного симпозиума по транспорту и теории движения. (1987) 319–338.
[52] М.Дж. Смит, Существование, уникальность и стабильность транспортных равновесий, Транспортные исследования, Часть B. 13 (1979) 295–304.
Проектирование для управления транспортом и эксплуатации: Введение — Глава 1. Проектирование для эксплуатации
1.1 Введение в проектирование для эксплуатации
Транспортные агентства США ищут способы обеспечить безопасное, эффективное и надежное путешествие по
режимы и юрисдикции в условиях все более ограниченных фискальных условий. Общественность, руководители бизнеса и выборные должностные лица
хотите надежное движение товаров, своевременную и точную информацию о путешественниках, безопасное и быстрое устранение инцидентов и многое другое
варианты видов транспорта, маршрутов и услуг.
Чтобы удовлетворить потребность в мобильности, безопасности и защищенности, многие транспортные
агентства интегрировали управление и операции в свой набор решений.Стратегии управления и операций
часто может значительно улучшить производительность транспортной системы и быть развернутым быстрее и с меньшими затратами.
чем традиционные проекты расширения мощностей. Стратегии управления и операционной деятельности (M&O) нацелены на получение максимальной отдачи
эффективное и безопасное использование существующей или планируемой инфраструктуры посредством таких действий, как управление дорожными происшествиями,
распространение информации о путешественниках, координация сигналов светофора и управление рабочей зоной.Финансируются стратегии M&O
и реализованы как отдельные проекты или в сочетании с более крупными проектами, такими как реконструкция шоссе.
Рис. 1. Расположение знаков с переменными сообщениями следует выбирать для максимальной эффективности, например, в районах с частыми опасными погодными условиями или дорожными происшествиями, а также до момента принятия решения путешественником. (Источник: Министерство транспорта штата Невада) |
Для эффективного управления и эксплуатации транспортной системы часто требуется традиционная инфраструктура (например,g., дороги и другая гражданская инфраструктура), которые будут спроектированы для поддержки стратегий M&O. Это включает проектирование проезжей части для автострад и магистралей, проектирование транспортных систем, а также стратегическую интеграцию интеллектуальных транспортных систем (ИТС) на автострадах и железнодорожных системах. Например, для автобуса на обочине необходим сегмент шоссе с большим объемом движения и обочины, достаточной для поддержки движения, — стратегия M&O, при которой только общественные автобусы могут использовать обочину, чтобы минимизировать задержку в периоды пиковой загруженности.Кроме того, установка знаков с переменными сообщениями (VMS) в местах до важных маршрутов или точек принятия решения для путешественников или в местах общих инцидентов поддерживает актуальную, действенную информацию о путешественниках для общественности.
Другие примеры обработки проезжей части, которые важны для улучшения управления и эксплуатации объекта, включают:
- Срединные переходы, которые позволяют аварийным службам быстро добраться до противоположной стороны дороги;
- сайтов расследования аварий, которые снижают воздействие, связанное со сбором информации об инцидентах;
- Снежные ограждения, уменьшающие метель и заносы на дороге; и
- Аварийный доступ между развязками, сокращающий время реакции на инциденты; и
- Стрелочные переводы для автобусов, облегчающие артериальную перегрузку.
Однако критические аспекты M&O, которые поддерживают широкий спектр стратегий, перечисленных в Разделе 1.2, часто рассматриваются в специальной манере или получают недостаточное внимание во время разработки проекта. Это означает, что операционные потребности системы либо недостаточно удовлетворены, либо агентства должны модернизировать дороги после их строительства или реконструкции. Этот последний подход обычно менее эффективен и более дорог с точки зрения затрат на строительство, пользователей и полосы отвода, чем включение эксплуатационных потребностей в исходный проект.Иногда переоборудование проезжей части для эксплуатации вызывает необходимость в конструктивных исключениях, которые могут вызвать проблемы с безопасностью. Это проблемы, которые обычно можно устранить, если рассматривать операции на этапах проектирования и предварительного проектирования. Рис. 2. Примером проектной обработки для улучшения работы проезжей части дороги являются снежные ограждения, которые уменьшают метель и заносы на дороге. Показаны простое руководство по проектированию и изображение соответствующей реализации в Миннесоте. (Источник фото: Дэн Галликсон, MnDOT, Источник диаграммы: MnDOT) |
Этот учебник ориентирован на проектирование для эксплуатации; то есть совместное и систематическое рассмотрение управления и операций во время проектирования и разработки транспортных проектов. Эффективное проектирование для эксплуатации включает в себя разработку и применение политик, процедур и стратегий проектирования, поддерживающих управление транспортировкой и операциями. Учет эксплуатационных потребностей в процессе проектирования требует, чтобы профессионалы в области транспортного проектирования работали в тесном контакте с теми, кто обладает опытом в области транспортных операций, интеллектуального транспорта и транспортных технологий.Специалисты по проектированию также должны предвидеть работу со специалистами-практиками из отделов планирования, транзита, перевозки грузов и TIM, а также с персоналом из других агентств, чтобы полностью определить, расставить приоритеты и включить операционные потребности в проект инфраструктуры.
Есть несколько точек входа для интеграции стратегий M&O в традиционный процесс разработки проекта, как описано в этом учебнике. Проектирование для эксплуатации обычно выражается в расширении или формализации сотрудничества между проектировщиками и операторами, а также в разработке руководящих принципов и процедур проектирования, которые отражают широкий спектр эксплуатационных соображений.
Успешная интеграция соображений M&O в процесс проектирования означает, что:
- Инфраструктура дорожной и транспортной системы предназначена для облегчения повседневного управления системой и ее эксплуатации, а также для достижения целевых показателей производительности транспортной системы в отношении эффективности, надежности, возможностей передвижения и безопасности. Развертывания
- ITS спроектированы с использованием системного проектирования, а существующие и будущие эксплуатационные применения ITS включены в проектирование транспортных средств.
- Операционные стратегии рассматриваются как надежные альтернативы расширению инфраструктуры во время разработки проекта.
Относительно недорогие, эффективные и гибкие (т.е. масштабируемые в соответствии с меняющимися требованиями) стратегии M&O делают их привлекательными вариантами развертывания.
В Соединенных Штатах есть регионы и штаты, которые продвигаются вперед с включением операционных потребностей в разработку проекта, потому что они признают преимущества с точки зрения экономии затрат и производительности системы.Например, опубликованные политики и процедуры Региональной транспортной комиссии (RTC) Южной Невады требуют, чтобы все проекты разрабатывались в соответствии со стандартами архитектуры региональных интеллектуальных транспортных систем, принятыми RTC. 1 Кроме того, копии всех планов проекта должны быть предоставлены в организацию по автострадам и транспортным магистралям (FAST) для ознакомления. Политика и процедуры также требуют учета приподнятых медиан, чтобы уменьшить количество конфликтов при левом повороте и укрытие пешеходов во время разработки проекта.Кроме того, при строительстве проекта следует рассмотреть возможность установки кабелепровода, если в будущем ожидается появление светофоров.
Другой пример — из Министерства транспорта штата Делавэр, где проводится анализ требований M&O на каждой стадии проектирования каждого проекта транспортировки капиталовложений.
Процесс управления перегрузкой (CMP) также послужил мотиватором для проектирования операций. Например, Комиссия по региональному планированию долины Делавэр (DVRPC) требует в рамках своей CMP, чтобы любой проект, который увеличивает пропускную способность для одноместных транспортных средств (SOV), включал дополнительные стратегии для уменьшения заторов и получения максимальной отдачи от инвестиций в инфраструктуру.Окончательный инжиниринг для крупного проекта увеличения пропускной способности SOV должен включать список дополнительных стратегий, которые должны быть включены в программу улучшения транспорта (TIP) для финансирования. Эти дополнительные стратегии, такие как улучшение сигналов светофора, упреждение сигналов для аварийных ситуаций, парковки и переезды, а также инженерные стратегии для улучшения циркуляции трафика, работают для улучшения общего управления и эксплуатации объекта.
2
Другие примеры проектирования для операционных практик можно найти в Разделе 1.5.
| Рис. 3. Экспресс-полосы с высокой загруженностью / платными полосами с переменной ценой — это стратегия M&O, которая все чаще используется в Соединенных Штатах. (Источник: SAIC) |
1.2 Обзор управления и операций
Систематическое рассмотрение стратегий M&O во время процесс проектирования лежит в основе проектирования для операций. Управление транспортными системами и операции определены законодательством «Двигаясь вперед к прогрессу в 21 веке» (MAP-21) как использование «интегрированных стратегий». для оптимизации производительности существующей инфраструктуры за счет реализации мультимодальных и интермодальные, кросс-юрисдикционные системы, услуг и проектов, направленных на сохранение емкость и повысить безопасность, безопасность, и надежность транспортной системы.» 3 Стратегии M&O охватывают множество видов деятельности, например:
- Управление дорожно-транспортными происшествиями.
- Обнаружение и наблюдение за дорожным движением.
- Управление коридорами, автострадами и артериями.
- Активный транспорт и управление спросом.
- Управление рабочей зоной.
- Управление погодой на дорогах.
- Управление чрезвычайными ситуациями.
- Служба информации для путешественников
- Стоимость перегрузки.
- Управление парковкой.
- Автоматизированное исполнение.
- Управление движением.
- Эксплуатация грузовых автомобилей.
- Управление перевозками.
- Координация автомобильных, железнодорожных, транзитных, велосипедных и пешеходных перевозок.
Применение концепций проектирования для операций согласованным и стандартизованным образом снижает долгосрочные затраты, экономит рабочее время по контракту и персоналу и может улучшить эксплуатационные характеристики транспортной системы.Например:
|
Управление и операции также включают региональную координацию, необходимую для реализации операционных инвестиций, таких как сети связи и управление дорожными происшествиями, интегрированным или совместимым образом.
Успешные практики M&O положительно влияют на мобильность, доступность, безопасность, надежность, общественную жизнь, экономическую жизнеспособность и качество окружающей среды, а также помогают транспортным агентствам удовлетворять потребности своих клиентов. Кроме того, многие агентства обнаружили, что преимущества стратегий M&O могут значительно перевешивать затраты (по сравнению с традиционными стратегиями).Упреждающее управление транспортными системами в режиме реального времени и в любое время дня не только представляет будущее операций, но и имеет важное значение для эффективного реагирования на изменяющиеся условия движения, вызванные такими событиями, как инциденты, рабочие зоны и погодные эффекты.
| Рис. 4. Входные двери в шумозащитных стенах, подобные этой, на трассе 267 штата Вирджиния, могут сократить время реагирования на инциденты. (Источник: SAIC) |
1.3 Зачем интегрировать операции в дизайн?
Для обеспечения максимальной безопасности, надежности и эффективности транспортной системы крайне важно, чтобы дороги, мосты и транзитная инфраструктура должны быть спроектированы для лучшего управления спросом и реагирования инцидентам и другим событиям. Оперативное проектирование улучшает интеграцию операционных соображения на протяжении всего жизненного цикла разработки транспортного проекта, в результате в лучшем использовании ресурсов, улучшенных методах обслуживания и управления активами за счет расширенное сотрудничество, а также эффективно разработанные и внедренные улучшения инфраструктуры.Некоторые преимущества включения операций в традиционные процессы проектирования включают:
- Увеличение выгод от инвестиций в инфраструктуру.
- Проектирование более безопасного объекта для пользователей, аварийно-спасательных служб, обслуживающего персонала и других операторов.
- Дизайн для будущих рабочих зон, чтобы участники дорожного движения меньше отвлекались.
- Снижение затрат на будущее развертывание операционных систем и ИТС.
- Уменьшение заторов и повышение надежности времени в пути.
1.4 Краткое руководство Аудитория и обзор
Букварь написан для нескольких основных аудиторий:
|
Этот учебник знакомит с концепцией проектирования для операций, описывает инструменты и институциональные подходы для оказания помощи транспортных агентств при рассмотрении операций в своих процедурах проектирования и указывает на некоторые конкретные соображения при проектировании для различных операционных стратегий.Инструменты и подходы для помощи в проектировании операций могут включать контрольные списки для разработчиков, чтобы сослаться на эксплуатационные соображения, формирование технического консультативного комитета с операциями экспертные знания или политики агентства, которые инструктируют дизайнеров о том, как включить операционные элементы в проект процесс развития. Это принесет пользу нескольким группам специалистов, включая специалистов по планированию, проектировщиков, инженеров по определению объема работ, менеджеры по техническому обслуживанию и трафику, а также персонал по разработке договоров.
Праймер разделен на четыре части:
Глава 1. Проектирование для операций (текущая глава) — В этой главе вводится термин «проектирование для операций» и объясняется его значение и цель. Он ориентирует читателя на этот учебник и предоставляет примеры успешного проектирования для операционная практика, внедренная государственными департаментами транспорта (DOT) и столичными плановыми организациями (МПО). Наконец, он определяет ограничения в текущих методах проектирования, которые необходимо преодолеть, чтобы эффективное проектирование для операций.
Глава 2. Практическое применение — Политика и процедуры — В этой главе определены ключевые действия, которые агентства могут предпринять, чтобы лучше учесть операционные соображения в процессе проектирования. Он определяет возможности для реализации политик и процедур, а также для поощрения взаимодействия и сотрудничества между дисциплинами эксплуатации, проектирования и планирования. Он также предоставляет агентствам общие подходы к включению операций в процесс проектирования транспортных средств.
Глава 3. Соображения по проектированию для конкретных типов операционных стратегий — В этой главе представлен набор инструментов по разработке для поддержки стратегий M&O.
Глава 4. Путь вперед — Эта глава связывает воедино основные темы учебника и дает читателю краткое изложение основных уроков.
Кому следует прочитать этот документ и почему?
|
1.5 Примеры эффективного проектирования для производственной практики
В США есть несколько агентств. которые приняли эффективные подходы к интеграция операционных соображений в проектирование транспортной инфраструктуры. Примеры, выделенные ниже, иллюстрируют ряд практик, исходя из соображений операционных улучшений в рамках проекта дизайн до программирования проекта, чтобы использование руководств и руководств по проектированию ИТС.Несколько примеров демонстрируют сотрудничество между проектировщиками, экспертами по эксплуатации и профессионалы с другими областями знаний для обеспечения того, чтобы при разработке проекта учитывались широкий спектр потребностей.
Департамент транспорта Калифорнии (Caltrans) и его местные партнеры развивают Планы управления системой коридоров (CSMP) для те коридоры, которые сильно перегружены.Благодаря этим усилиям стратегии M&O обычно идентифицируются и включаются в пакет улучшений для коридора. 4 CSMP определяет узкие места, которые определяется как «локализованные участки шоссе где движение испытывает пониженную скорость и задержки из-за повторяющихся условий эксплуатации или не повторяющиеся события, влияющие на трафик «, и ищет возможности решить узкие места.Стратегии сокращения узких мест включают несколько стратегий M&O, таких как перенастройка сигнала светофора, управление доступом, и предоставление информации об изменении направления движения. В рамках этих усилий Caltrans может проводить локализованный аудит по сокращению узких мест обзор традиционного масштабного коридора исследования с целью выявления возможностей для развертывания недорогих стратегий сокращения узких мест в рамках пакета улучшений.
В 2012 году метро Портленда, город Портленд, Государственный университет Портленда и региональный партнеры разработали Мультимодальные перевозки в Портленде Региональная концепция управления производительностью артерий транспортных операций (RCTO) в предоставить региональное руководство по сбору автоматизированных мультимодальные мероприятия по артериальной проезжей части. 5 RCTO — следующий шаг в Портленде в развитии транспорта, ориентированного на производительность планирование и принятие инвестиционных решений.В руководство включает варианты технологии детектора, соображения дизайна для установки технология сбора данных и пересечение диаграммы, показывающие, где необходимо обнаружение. RCTO рекомендует обновления для штата Орегон. Стандарты дизайна DOT и местных агентств. В виде возникают новые проекты, Metro поощряет установка необходимого полевого оборудования и сообщения для сбора всех подходящих показатели эффективности в заданных местах.
| Рис. 5. Диаграмма из Портленда
Мультимодальное управление производительностью артерий
Руководство по внедрению с изображением типичного
места для сбора мультимодальных артериальных
данные. 6 |
Транспортные системы Департамента транспорта Флориды Программа управления и операций (TSM&O) 7 является ярким примером программы, которая формализует проектирование операционных практик через сотрудничество с заинтересованными сторонами.Программа TSM&O реализуется во всех отделах, включая дизайн, где эксплуатационные аспекты объекта должны быть спроектированы и построены во время строительства для облегчения длительной эксплуатации и обслуживание объекта. 8 Программа ориентирована на измерение производительности, активное управление мультимодальными перевозками сети, обеспечивая положительную безопасность и результаты мобильности для путешествующих людей.Для этого TSM&O полагается на совместную отношения между партнерами. TSM & O партнеры — это общественный транспорт агентства, которые работают вместе как единое целое организация для принятия рентабельных инвестиционных решений. Эта сплоченность способствует улучшению коммуникации, координация и сотрудничество между транспортными партнеры с разными взглядами, ведущие к большему количеству проектов, которые учитывают операции.
Округ DOT 4 Флориды создал структура разработки и управления проектом который формально включает в себя информацию от оперативных агентства, такие как отделы связи и транзита. Цель состоит в том, чтобы отразить операционные элементы в разработке проектов и операционных стратегиях которые соответствуют текущим и запланированным инфраструктура. Общий процесс делает Району ясно, как он работает требования отражаются в проекте разработка.
DOT штата Вашингтон (WSDOT) сформировал Комитет по системным операциям и управлению (SOM), который состоит из сквозной группы руководителей программ из регионов DOT и штаб. В настоящее время группа работая над формированием процесса проектирования, чтобы он более гибкий для реализации творческих операционных решения. Каждый член представляет интерес такие области, как операции, производительность системы, проектирование, планирование, толлинг, управление программами, мультимодальные, коммерческие автомобили и путешествия Информация.Перед группой поставлена задача определить и решение многих возникающих проблем, которые возникают по мере того, как агентство движется к большему сосредоточены на операциях. Конечная цель — повысить пропускную способность и надежность путешествия без традиционных уровней инфраструктуры инвестиции. WSDOT также предоставляет рекомендации по дизайну для небольших проектов по улучшению операционной деятельности (недорогие улучшения, предназначенные для улучшения безопасность и эффективность системы автомобильных дорог) в Руководстве по проектированию WSDOT, Minor Operational Проекты усовершенствования (Глава 1110). 9 Эти проекты рассматриваются как альтернативы к более крупным и дорогостоящим традиционным проектам. Важная характеристика этих проектов это умение быстро разрабатывать и внедрять их без обременительного процесса утверждения. Для этого разработайте политики и руководящие принципы применяются при разработке и процессы утверждения аналогичным образом с каждым проектом.Этот подход является частью Незначительное улучшение операционной деятельности Департамента транспорта штата Программа проектов (именуемая «Программа Q»), которая является одной из четырех основных программ (т. е. улучшение, обслуживание, сохранение и трафик операций) в пределах шоссе WSDOT Системный план. Элементы в программе Q включают: управление программой движения транспорта, операции программы управления дорожным движением, и специальные передовые технологические проекты. 10
Департамент транспорта Пенсильвании интегрировал соображения в серии руководств по дизайну и разработала интеллектуальную транспортную систему . Руководство по проектированию систем , в котором выбор стратегии, переменные дизайна, сайт соображения выбора, системная инженерия соображения и соображения по дизайну сайта. Подробная информация о том, какие устройства подходит в зависимости от дорожных условий, так как а также как должны быть развернуты элементы ITS в рамках существующих ограничений, таких как стоимость подключения к коммуникациям и питанию инженерные сети, безопасный доступ обслуживающего персонала, и доступная полоса отвода.Это руководство предоставляет уровень детализации, позволяющий не практикующим ИТС внедрять элементы дизайна ИТС в проекты сплоченным и последовательным образом. 11
Важно отметить, что в примере методы и программы, указанные выше, являются основными в повседневную деловую практику агентств. В руководстве по дизайну WSDOT есть раздел, посвященный в программу Q, а Департамент транспорта Флориды переместил вперед со стратегическим планом и бизнесом план по внедрению TSM&O в существующие политики и процедуры ТОЧКА.Департамент транспорта штата Миссури установил использование основных команд в качестве предпочтительной практики, так как упоминается в Руководстве по технической политике . 12 Caltrans способствует сокращению локальных узких мест аудиты на районном уровне для выявления улучшений связанные с узкими местами. Эти программы способствуют развитию тип необходимых сквозных стратегий для проектирования для эксплуатации.
1.6 Ограничения в текущей практике проектирования
Некоторые транспортные агентства размещают больший упор на операции во время процесс проектирования; однако методы применения эта практика непоследовательна из-за пробелов которые существуют в рамках текущего развития проекта процессы и отсутствие достаточной коммуникации между дизайнерами и операторами.
Многие агентства в государственных, региональных и на местном уровне внедрили практику M&O и использование ЕГО.Развертывание DOT ITS в США Данные отслеживания указывают на постоянное расширение национальная инфраструктура ИТС и эксплуатационная практики. 13 Значительное количество государств и регионов руководствуются формальными M&O или стратегическими ИТС планы и архитектуры и прогрессируют при планировании операций.
Несмотря на этот прогресс, все еще существует разрыв между проектированием инфраструктуры и операциями во многих транспортных агентствах.Текущие процессы для разработки проекта проезжей части или моста планы обычно включают в себя выполнение набора критерии дизайна, такие как рекомендации для конкретных агентств или опубликованные в Американской ассоциации государственных служащих автомобильных дорог и транспорта » (AASHTO) Политика в отношении геометрического дизайна автомобильных дорог и улиц . 14 Эти критерии требуют от дорожных инженеров определить элементы управления дизайном, некоторые из которых предопределенный (например,г., местность, городское или сельское, классификация дороги), а другие зависят от проекта. Федеральная трасса Администрация (FHWA) и AASHTO отмечают что основа геометрических критериев должна включать дополнительные факторы, такие как стоимость, ремонтопригодность, безопасность и дорожные операции. 15 Причины несоответствия дизайна и операции включают отсутствие политики которые поддерживают интеграцию соображений M&O в дизайн как рутинный способ ведения бизнеса и отсутствие вовлечения внутренних и внешние операторы объекта во время проекта процесс развития.Перспективы оператора объекта важны не только для определения необходимых производственной инфраструктуры, но для обеспечения вклад в проектные решения, которые влияют текущее обслуживание и поддержка развернутых инфраструктура и способ, которым инфраструктура будет использоваться повседневно основание. Например, агентство по управлению трафиком оперативный персонал может дать рекомендации по размещению и ориентации движения оборудование наблюдения для обеспечения данных собранные соответствуют оперативным целям и для облегчения доступа к оборудованию для будущее обслуживание.
В некоторых транспортных агентствах проезжая часть дизайнеры могут работать в настройках, где есть ограниченное сотрудничество с оперативным персоналом, так что итоговый процесс реализации проекта не увеличивает возможность включения элементы операций. Последствия этого отключенный процесс часто длится больше времени и деньги идут на модернизацию инфраструктуры для расширенных операций или что транспортировка система не работает на своем потенциальном уровне службы.
1.6.1 Институциональные проблемы
В связи с большими затратами на предоставление новых мощностей, агентства начали сосредотачиваться на операциях как инструмент для максимальной эффективности перевозки сети. Но даже когда операции начинаются держать повышенный статус, операции и дизайн все еще слишком часто отключается в транспортные агентства. При транспортировке выполняются операции, планирование и проектирование проезжей части в отдельных подразделениях внутри организации или регион, осведомленность и понимание необходимость проектирования для операций среди агентств персонал и менеджмент ограничены, а возможности для максимизации производительности инфраструктуры инвестиции потеряны.Интегрируя эти миры, преимущества производительности системы и экономия затрат на эксплуатационные улучшения могут быть использованы. Когда акцент смещается с строительство новых дорожных сооружений для максимального увеличения операции на существующих дорогах, агентства создают механизмы межведомственного сотрудничество. Сквозные рабочие группы например, управление дорожными происшествиями (TIM) команды и многопрофильная разработка проектов команды улучшили координацию между заинтересованные стороны.
| Успешное систематическое рассмотрение операций в процессе проектирования обычно происходит в рамках организационной структуры в которых операции считаются справедливыми столь же важны, как дизайн, конструкция и техническое обслуживание. Агентства, практикующие проектирование для операций хорошо часто есть формальные политика, связанная с этими темами или в широком смысле, поддержка на высоком уровне внутри агентства.Ответственность за включение операций в дизайн не может падать только на дизайнеров; это должен быть подход, основанный на ведомстве. |
Ключ к интеграции планирования, дизайна, и операции для всех вовлеченных игроков чтобы понять их соответствующие уровни внимания и разработать инструменты и механизмы для общения. Открытое и регулярное общение между ядром члены команды разработчиков проекта и агентства руководство устанавливает, как операционные методы будут учтены в процессе проектирования.Поддержка на высоком уровне внутри агентства и совместный подход к инфраструктуре нужный. Персонал, обслуживающий проезжую часть операции включают в себя как транспортное агентство персонал и сторонние заинтересованные стороны, такие как транзитные операторы, аварийно-спасательные службы, грузовые операторы, и операторы специальных событий. Обнимая вклад внешних заинтересованных сторон, транспорт агентство может спроектировать объект, который позволяет управление и операции, тем самым повышая безопасность и общий опыт перевозки.
В дополнение к функциональным силосам внутри агентство или регион, другие институциональные проблемы которые ограничивают объединение операций в проектирование проезжей части включают отсутствие политики или стандарты проектирования, которые требуют разработки проекта сотрудники и дизайнеры для учета M&O стратегии в инфраструктурных проектах. Это Важно отметить, что проектный персонал в государственных и местных DOT обычно не действуют самостоятельно, без политики агентства или управления направление.Это усиливает важность общеорганизационных политик и управленческой поддержки в опережающем проектировании эксплуатации. В кроме того, решения относительно целей проекта, объем и бюджетные ограничения часто задолго до того, как проект перейдет в дизайн, так что персонал по разработке проекта или поддержка подрядчики также должны быть активно вовлечены в работе по интеграции операционных соображений в проекты с момента их создания.
1.6.2 Финансовые последствия проектирования для операций
Еще одно препятствие для рассмотрения операций в дизайне заключается в том, что когда стратегии M&O предлагаются для включения в проезжую часть проектирование инфраструктуры, дополнительные расходы это может быть истолковано как необоснованное «аксессуар». Когда стоимость проекта превышает установленные бюджеты, особенности операций, такие как ИТС и средства аварийно-спасательной службы могут быть сокращены, потому что они считаются несущественными или низкий приоритет.Однако не полностью учёт для операций в дизайне часто приводит в более высоких долгосрочных затратах. Это особенно верно в тех случаях, когда в будущем оперативное развертывание планируются. Например, намного больше рентабельно разместить водовод вдоль коридора где будущие сигнальные улучшения перекрестков планируются или строят плечи на полную глубину для возможного расширения или смены полосы движения, чем установить эти процедуры после основные дорожные работы завершены.Как сообщается в недавнем письме правительства США Счетная палата относительно «Dig Once» Распоряжение, установка кабелепровода и оптоволокна как отдельный проект может стоить от 15 до 33 на процент больше, чем при включении в проезжую часть строительный проект. 16
Чтобы получить максимальную отдачу от инфраструктуры инвестиции, транспортные агентства должны учитывать полный спектр альтернатив и полный жизненный цикл финансовые последствия, а затем реализовать наиболее практическое решение.Срок службы и текущий затраты на обслуживание инвестиций должны быть добавлены к стоимости проекта, а также факторинг затраты на участников дорожного движения и окружающую среду. Привлекая операторы в процессе проектирования, дизайн проектов будет лучше учитывать операции агентства ресурсы и ожидания по обслуживанию. В зависимости от капитала агентства и операций уровни финансирования и приверженность к оборудованию для встреч потребности в обслуживании и замене, дизайн процедуры для операций могут быть настроены с соответствующей степенью «застывания» или надежность.В конечном итоге дизайн должен максимизировать соотношение выгод и затрат с течением времени, и это, вероятно, будет включать стратегии M&O при их невысокой стоимости и высокой стоимости.
1.6.3 Понимание управления и операций Потребности
Обычно дизайнеры и разработчики проектов иметь полное представление о проекте процесс разработки, но были ограничены к эксплуатационным нуждам.Без опыта в практическое применение стратегий M&O, у дизайнеров нет фундаментального понимания о том, как их конструкция может повлиять на работу проезжей части. Как рекомендовалось ранее, создание возможностей для операций, планирования, разработки проектов, и дизайнерский персонал для регулярного сотрудничества путем удаления функциональных разрозненных структур в организациях поможет расширить это понимание.
Кроме того, необходимо руководство по проектированию. Через итеративный процесс проектирования, дизайнеры применяют соответствующие стандарты дизайна агентства, политика, и практики в зависимости от стадии, на которой планы претворяются в жизнь. Практика дизайна обычно уравновешивают потребности инфраструктуры с стоимость проекта и учитывать конечные элементы дизайна связанные с установленными в Политике AASHTO по геометрическому проектированию автомобильных дорог и улиц и Руководство по проектированию обочин . 17 На сегодняшний день авторитетный голос по вопросам эксплуатации элементы, которые необходимо учитывать при проектировании процесс не был установлен или распространен, что является проблемой для продвижения широко распространенных рассмотрение стратегий M&O в дизайне.
| Не можете найти искомую аббревиатуру? Дайте нам знать.Скорее всего, если вы его ищете, то и кто-то другой тоже. Для получения дополнительной информации о сокращениях транспортных средств, ознакомьтесь с руководством Федерального бюро транспортной статистики. Справочник сокращений | |
| AAAE | A merican A ассоциация A irport E xecutives |
| AADT | A годовой A средний D aily T raffic |
| AAG | A ssistant A ttorney G eneral |
| AAMVA | A merican A ассоциация M или V автомобиль A dministrators |
| AAR | A ассоциация A merican R ailroads |
| AASHTO | A merican A объединение S tate H шоссе и T транспортировка O официальные лица |
| А / В | A ble B нечетное |
| ACHP | A dvisory C Совет на H istoric P резервирование |
| ACI | A merican C oncrete I nstitute |
| ACP | A сфальт C бетон P движение |
| ACS | A daptive C ontrol S oftware |
| ADA | A мериканов с возможностью D A ct |
| АЦП | A автоматическая D ata C коллекция |
| ADT | A средний D aily T raffic |
| AGC | A связанный G общий C приемники |
| AIA | A merican I институт A rchitects |
| AIDA | A dvanced I ncident D etection A l алгоритм |
| ВОЗДУХА | A автоматическое I nfrared R внешнее S консервное |
| AISC | A merican I институт S teel C на стройке |
| ALP | A irport L ayout P lan |
| ALPR | A автоматический L icense P поздний R eader |
| драм | A сфальт M ix D дизайн |
| AMTRAK | N ational R ail P assembly C orporation |
| ANSI | A merican N ational S tandards I nstitute |
| AOCI | A irport O perators C ouncil I nternational |
| АОПА | A ircraft O wners and P ilots A ssociation |
| APAW | A сфальт P aving A ассоциация W ashington |
| APD | A irport P lanning D istrict |
| АПТА | A merican P ublic T ransit A ssociation |
| APWA | A merican P ublic W orks A ssociation |
| AQCR | A ir Q uality C ontrol R equirements OR A ir Q uality C ontrol R egulations |
| ARA | A ssistant R egional A dministrator |
| АРБ | A gency R equest B udget |
| РУЧКА | A c накоплением R oute M пробег |
| ARRA | A merican R ecovery и R einvestment A ct |
| АРТБА | A merican R oad и T ransportation B uilders A ssociation |
| ARTCC | A ir R oute T raffic C ontrol C enter |
| ASA | A ggregate S ource A pproval |
| ASCE | A merican S ociety C ivil E ngineers |
| ASCII | A merican S стандартный C ode для I информация I обмен |
| ASR | A lkali- S ilica R eactivity |
| ASTM | A merican S ociety для T esting и M aterials |
| ATA | A irline T ransport A ssociation также A merican T rucking A ssociation |
| Банкоматы | A автоматическая T дождь M обвязка S система |
| ATR | A годовой T raffic R eport |
| AVA | A ir V oid A анализатор |
| АВМТ | A годовой V автомобиль M iles T Rveled |
| AWC | A ассоциация W ashington C ити |
| AWDT | A средний W eekday T raffic |
| AWDVTE | A verage W eekday V ehicle T rip E nds |
| AWS | A merican W elding S ociety |
| AWV | A laskan W ay V iaduct |
| верх | |
| БАС | B id A анализ и S статистика S система |
| B / C | B enefit C ost |
| BEIST | B гребень E разработка I информация S система |
| BIA | B ureau I ndian A ярмарок (U.С.) |
| BLM | B карбамид L и M обвязка |
| BM | B ench M ark |
| BM | B карбамид из M ines (США) |
| BMP | B начало M ile P ost |
| BMP | B est M anagement P ractice |
| BOD | B asis o f D esign |
| BOE | B asis o f E стимулировать |
| BPA | B onneville P ower A dministration |
| BST | B ituminous S urface T reatment |
| БТА | B ребро T техническое A dvisor |
| BTS | B карбамид T транспортировка S татистика (U.С.) |
| верх | |
| CA | C сертификация A прием |
| КАБИНА | C ivil A eronautics B oard |
| CAC | C столкновение A анализ C orridor |
| CACHS | C itizens ‘ A dvisory C ommittee on H ighway S afety |
| CAD | C компьютер A ided D рафтинг |
| CADD | C компьютер A ided D рафтинг и D дизайн |
| CAE | C компьютер A автоматизированный E разработка |
| CAL | C столкновение A анализ L ocation |
| КРЫШКА | C ivil A ir P atrol |
| КОЛПАК | C ontract A dministration и P ayment S ystem |
| CAT | C рабочий A автоматический T транспортировка |
| CBD | C entral B usiness D istrict |
| CBRT | C комитет для B alanced R egional T транспортировка |
| CCA | C весло C бетон A заполнители |
| CCI | C инструкция C ost I ndex |
| CCIS | C инструкция C работа I информация S система |
| К-Д | C ollector- D istributor R oad |
| CDC | C введите для D isease C контроль и предотвращение |
| CDF | C под контролем D Ensity F ill |
| CE — NEPA | C атегорический E включение (U.С.) |
| CE — SEPA | C статистический E xemption |
| CESCL | C сертифицировано E rosion и S ediment C ontrol L ead |
| CEQ | C Совет по E экология Q Уличность |
| CFR | C ode of F ederal R egulations |
| CICAS | C операция I пересечение C столкновение A аннулирование S системы |
| КЛАСС | C ollision L ocation и A nalysis S ystem |
| CLB | C текущий L aw B udget |
| CLCF | C ounty L ocation C oding F orm |
| CMAQ | C ongestion M itigation / A ir Q uality |
| CMAR | C ontext и M odal A ccommodation R eport |
| CMD | C бетон M ix D дизайн |
| CMP | C orridor M anagement P lan |
| CN | C инструкция |
| CO | C арбон M оноксид |
| CO2 | C арбон D диоксид |
| CO2E | C арбон D диоксид E квиваленты |
| COE | C orps o f E ngineers (U.С.) |
| CPMS | C apital P rogram M anagement S ystem |
| CPDM | C apital P rogram D evelopment & M anagement |
| КРАБ | C ounty R oad A dministration B oard |
| АВАРИЯ | C столкновение R eporting и S tatistical H istory |
| CRGC | C olumbia R iver G orge C ommission |
| CS | C управление S ection |
| CSBC | C срочно S urfacing B ase C ourse |
| CSG | C соединение S tate G надмены |
| CSTC | C срочно S urfacing T op C ourse |
| CTA | C ounty T ransportation A uthority |
| CTR | C ommute T rip R eduction |
| CVE | C коммерческое V транспортное средство E усиление |
| CVISN | C коммерческое V транспортное средство I информация S ystems & N etworks |
| CVPS | C коммерческий V автомобиль P зад S система |
| верх | |
| D | D Директива |
| DAHP | D отдел археологии A и исторический H P резервация |
| DART | D ays A way, R estricted Duty, or Job T ransfer |
| дБ | D ecibels |
| DBE | D выгодно B пригодность E предприятие |
| DBR | D iscretionary B гребень R замена |
| DDHV | D направленный D дизайн H наш V olume |
| DEIS | D плот E экологический I mpact S tatement |
| DHRD | D ivision H uman R esource D evelopment |
| DHV | D дизайн H наш V olume |
| DIS | D Отделение I Информация S Службы |
| DMI | D istance M easuring I nstrument |
| DNR | D отделение N atural R esources |
| DNS | D удаление N на S учет |
| DOA | D отсек o для A rmy (U.С.) |
| DOE | D отделение o f E cology (штат Вашингтон) |
| DOH | Штат Вашингтон D отдел H ealth |
| Прямой | D отсек o f L icensing |
| DOP | D отсек o f P ersonnel |
| ТОЧКА | D отсек o f T транспортировка |
| DP | D ata P rocessing |
| DSHS | D Отделение S ocial и H ealth S service |
| DVMT | D aily V ehicle M iles T raveled |
| верх | |
| EA | E экологическая A оценка |
| EB | E ast b ound |
| ECS | E экологическая C классификация S ummary |
| EAA | E xperimental A ircraft A ssociation |
| EBASE | E стимулировать B id A nalysis S ystems (заменяет BASS) |
| ЕСМ | E lectronic C ontent M anagement |
| ECR | E внешняя C ivil R ights Branch, подразделение Управления равных возможностей |
| ECS | E экологическая C классификация S ummary |
| EDM | E lectronic D istance M easurers |
| EDWMS | E lectronic D ocument W orkflow M anagement S ystem |
| EEO | E qual E mployment O pportunity |
| EIS | E экологическая I mpact S tatement |
| ELT | E lectronic L ocator T передатчики |
| ЭМИ | E конец M ile P ost |
| EOB | E nd o f B год |
| EOC | E mergency O perations C enter |
| EOR | E ngineer o f R ecord |
| EPA | E экология P защита A gency |
| ESD | E mployment S ecurity D epartment (штат Вашингтон) |
| ESD | E ducational S ervices D istrict |
| ESA | E под угрозой исчезновения S чел. A ct |
| ESAL | E quivalent S ingle A xle L oad |
| ETC | E mployee T транспортировка C координатор |
| верх | |
| FA | F ederal A id |
| FAA | F ederal A viation A dministration |
| FAI | F ederal A id I nterstate |
| FAME | F reeway и A rterial M anagement E ffort |
| ФАП | F ederal A id P край |
| FAPG | F ederal A id P olicy G uide |
| ФАРС | F atality A nalysis R eporting S ystem |
| FAS | F ederal A id S вторичный |
| FASP | F ederal A id S afety P rogram |
| БЫСТРЫЙ коридор | F reight A ction S trategy для Everett-Seattle- T acoma Corridor |
| FAU | F ederal A id U rban |
| FAUS | F ederal A id U rban S система |
| F&B | F inance и B udget Management Division |
| FBP | F erry B oat P rogram (финансируется через MAP-21) |
| FC | F необязательный C классификация |
| FCA | F ine C бетон A заполнители |
| FEA | F inal E nvironmental A ssessment |
| FEIS | F inal E nvironmental I mpact S tatement |
| FEMA | F ederal E mergency M anagement A gency |
| FERC | F ederal E nergy R egulatory C ommission |
| FFY | F ederal F iscal Y ухо |
| ФГТС | F reight и G oods T ransportation S ystem |
| FHPM | F ederal-Aid H шоссе P программа M год |
| FHWA | F ederal H igh w ay A dministration |
| FIC | F свет I nstructor C linic |
| FLB | F действий и L легкость B вес |
| FMAC | F reight M obility A dvisory C комитет |
| FMCSA | F ederal M otor C arrier S afety A dministration |
| FMSIB | F reight M obility S trategic I nvestment B oard |
| ФОНСИ | F inding o f N o S воспламеняющийся I mpact |
| FRA | F ederal R ailroad A dministration |
| FRAP | F reight R ail A ssistance P rogram |
| FRIB | F reight R ail I nvestment B ank |
| ФС | F orest S сервис |
| ФСС | F свет S сервис S tation |
| FTA | F ederal T ransit A dministration |
| FTE | F ull T время E эквивалент |
| FY | F iscal Y ухо |
| 4-R | Шоссе R строительство, R строительство, R эстуар и R восстановление |
| верх | |
| GA | G eneral A администрация, отделение |
| GAMA | G общий A viation M производители A ssociation |
| ГАЗБ | G внешний A счет S стандарт B oard |
| GCOM | G общий C на тягаче / C в эксплуатации M anagement |
| ПГ | G reen h ouse G ase s |
| ГИС | G eographic I информация S ystems |
| GMA | G рядная M обвязка A ct |
| GMAP | G overnment M anagement, A ccountability и P erformance |
| GNB | G луч N otebook |
| GOIA | G overnor O ffice of I ndian A ffairs |
| GP | G eneral P urpose |
| GPS | G лобовой P установка S система |
| GRDO | G IS и R oadway D ata O ffice |
| GSP | G eneral S pecial P rovision |
| GTEC | G рядка и T транспортировка E fficiency C введите |
| Полная масса | G ross V автомобиль W восемь |
| верх | |
| HAR | H шоссе A dvisory R adio |
| ШАПКИ | H шоссе A городки T стеллажи S система |
| HCM | H шоссе C вместимость M год |
| HCTS | H igh C емкость T транспортировка S tudy |
| HMA | H ot M ix A сфальт (также известный как ACP) |
| ГОРЯЧЕЕ | H igh O вместимость T oll |
| HOV | H igh O вместимость V автомобилей |
| HPA | H ydraulic P roject A pproval |
| HPMS | H шоссе P производительность M отслеживание S система |
| HSIG | H шоссе S безопасность I ssues G roup |
| HSIP | H шоссе S безопасность I mprovement P программа |
| HSM | H шоссе S безопасность M год |
| HQ | H ead q uarters |
| HSF | H шоссе S безопасность F и (состояние) |
| HSIS | H шоссе S безопасность I информация S система |
| HSP | Штат H шоссе S система P lan |
| HSRC | H шоссе S безопасность R esearch C введите |
| HSS | H шоссе S tatewide S ignificance |
| HTF | H шоссе T ржавчина F и (U.С.) |
| ОВК | H питание, V entilation и A ir C on Conditioning |
| верх | |
| Я | I межгосударственный (маршрут) |
| IAC | I nter- A gency C комитет для отдыха на природе |
| К / К | I nter c hange |
| МКК | I nterstate C ommerce C ommission (U.С.) |
| IDC | I ntra- D отдел C связь |
| рупий | I nspector’s D aily R eport |
| IDT | I nter d isciplinary T eam |
| IGGA | I nternational G ровница и G оклейка A ассоциация |
| IFR | I прибор F свет R улес |
| IHSDM | I nteractive H ighway S afety D esign M odel |
| IL | I инструкция L etter |
| шек. | I инструмент L anding S ystem |
| ILT | I ncident L ocation T ool |
| IMS | I ntermodal M anagement S ystem |
| ИК | I ncident R esponse |
| IRD | I nternational R oadway D динамика |
| IRI | I nternational R oughness I ndex |
| ISTEA | I ntermodal S urface T ransportation E fficiency A ct, см. Также SAFETEA-LU , который обновляет этот Закон |
| ITE | И институт Т транспортировка Е инженеры |
| ЕГО | I ntelligent T транспортировка S система |
| ИВХС | I ntelligent V автомобиль H шоссе S система |
| верх | |
| JLARC | J мазь L egislative A udit и R eview C ommittee |
| СОЕДИНЕНИЙ | J мазь O перации P olicy S tatement |
| JTC | J мазь T транспортировка C комитет |
| верх | |
| КМ | K nowledge M anagement |
| KIPS | 1000 фунтов. |
| верх | |
| LBC | L egislative B udget C ommittee |
| LEAP | L egislative E оценка и A ccountability P программа |
| L&I | L abor и I ndustries |
| LLCC | L owest L ife C ycle C ost |
| СПГ | L iquefied N atural G as |
| LMS | L доход M передача S система |
| LMY | L ane M ile Y ушки |
| ЛОС | L evel o f S ervice |
| LOUPA | L etter O f U nderstand P roject A ward |
| LRFD | L oad и R esistance F act D esign |
| LTAP | L ocal T echnical A ssistance P rogram |
| ЛТПП | L ong T erm P движение P erformance |
| LTC | L egislative T ransportation C ommittee |
| верх | |
| MAISA | M ulti A gency I nterdisciplinary S takeholder A dvisory |
| КАРТА | M обслуживание A количество P процесс |
| MAP-21 | M овинг A головка для P rogress в 21 -й век |
| МАПО | M etropolitan A rea P lanning O rganization |
| МАРАД | мар время Ad обслуживание (U.С.) |
| MBE | M inority B usiness E nterprise |
| MEF | M aximum E xtent F easyible |
| МЕТРО | Управление общественного транспорта округа Кинг |
| МСФО | M пробег и F возможности R eporting S ystem |
| MIC | M производственный и I промышленный C ввод |
| MIRE | M inimum I инвентарь R oadway E lements |
| MIS | M обвязка I информация S системы |
| MLMP | M ain l ine M ile p ost |
| MMIS | M anpower M anagement I nformation S ystems |
| MMT | M illion M etric T ons |
| MMUCC | M odel M inimum U niform C сыпь C riteria |
| MOA | M emoranda o f A greement |
| МоВ | M emorandum o f U nderstanding |
| MP | M aster P lan |
| MP | M ile p ost |
| МПО | M etropolitan P lanning O организация |
| MQPR | M id- Q uarter P rogress R eport |
| MRSC | M unicipal R esearch и S ervices C enter of W ashington |
| MSD | M этрополитен S сервис D район |
| MSR | M erit S ystem R ules |
| MTIP | M etropolitan T транспортировка I mprovement P программа |
| MTP | M материалы T стеллажи P программа |
| MTCO 2 e | M etric T на основе C арбона D диоксид E эквивалент |
| MUTCD | M годовой на U niform T raffic C ontrol D Evices |
| M / V | M или V essel |
| МВЭТ | M или V автомобиль E xcise T ax |
| MVF | M или V автомобиль F и |
| МВМТ | M illion V автомобиль M iles T raveled |
| MWBE | M inority и W omen’s B usiness E nterprise |
| MSVWBE | M inority, S mall, V eteran, или W omen B usiness E nterprise |
| верх | |
| NAAQS | N ational A mbient A ir Q uality S tandards |
| НАРУК | N ational A ssociation of R egulatory U tility C ommissioners |
| NAS | N aval A ir S tation |
| НАСАО | N ational A ssociation S tate A viation O fficial |
| NB | N orth b ound |
| NBAA | N ational B usiness A viation A ssociation |
| НЧРП | N условный C рабочий H шоссе R esearch P программа |
| NCPP | N условный C вход для P движение P резерв |
| NEC | N условное E электрическое C ode |
| NEMA | N условное E электрическое M производственное A ассоциация |
| NEPA | N условное E экологическое P olicy A ct |
| NGS | США N ational G eodetic S urvey |
| NGVD | N ational G eodetic V ertical D atum (1929) |
| NHCA | N условное H колошение C резервирование A ассоциация |
| NHPA | N ational H istoric P бронирование A ct |
| НГЭС | N условное H шоссе P производительность P программа |
| NHS | N условное H шоссе S система |
| NHTSA | N ational H шоссе T raffic S afety A dministration |
| NIOSH | N условный I институт O профессиональный S безопасность и H здоровье |
| NOAA | N условный O цеановый и A атмосферный A административный |
| НПИАС | N ational P lan of I ntegrated A irport S ystems |
| NPDES | N ational P ollutant D ischarge E limit S ystem |
| NPRM | N otice of P roposed R ule M aking |
| NPS | N вспомогательный P ark S service |
| NMFS | N условный M arine F isheries S service |
| NRCC | N atural R esource C oordinating C ommittee |
| NRCS | N atural R esources C onservation S service |
| NRHP | N ational R Пример H istoric P шнурки |
| NSC | N ational S afety C ouncil |
| NSC | N orth S pokane C orridor |
| NTEP | N ational T транспортировка P roduct E оценка P программа |
| NTSB | N ational T транспортировка S безопасность B oard |
| NTU | N эфелометрический T урбидность U нит |
| верх | |
| OAHP | O офис A археология и H исторический P резерв |
| O-D | O буровая установка- D месторасположение (съемка или зона) |
| OEO | O ffice of E qual O pportunity |
| OFM | O офис F финансовый M управление |
| OIG | O камера I nspector G eneral (U.С.) |
| O&M | O операций и M обслуживание |
| OMB | O зажим M и B зажим |
| OMWBE | O ffice из M inority и W omen B usiness E nterports |
| ORIA | O ffice of R egulatory I nnovation и A ssistance |
| ORV | O ff- R oad V автомобиль |
| ОС | O обычный S eaman |
| ОС | O perating S ystem |
| OSC | O lympia S service C ввод |
| OSHA | O рабочая S безопасность и H здоровье A администрация |
| OUM | O офис U rban M obility |
| ОКСИНГ | O Веркросс ing |
| верх | |
| PACE | P olitical A ction for C oncerved E mployees |
| ПАО | P ublic A ffairs O ffice |
| ПК | P мазь C urvature |
| PCC | P alouse River и C oulee C ity |
| PCCP | P ortland C ement C oncrete P avement |
| PCI | P движение C ondition I ndex |
| PCI | P восстановленный / предварительно напряженный C бетонный I институт |
| PDE | P roject D evelopment E ngineer |
| PDO | P roject D evelopment O ffice |
| PDR | P ublic D isclosure R equest |
| PE | P вторичный E инженерный |
| PE | P roject E ngineer |
| PE | P профессиональный E инженер |
| PEF | P повторно E существующий F unds |
| PHD | P дополнительный H гидравлический D проект |
| ЛИО | P ublic I nformation O ffice (or Officer) |
| PM | P roject M anager |
| PMBOK | P roject M anagement B ody o f K nowledge |
| PMRS | P roject M anagement R eporting S ystem |
| PMTS | P rofessional M embership T стеллажи S ystem |
| ПОГ | P права o f G overnment |
| СИЗ | P личное P защитное E оборудование |
| PR&PT | P lanning, R esearch и P ublic T ransportation Division |
| PRIIA | P Assenger R ail I nvestment и I mprovement A ct |
| PSCCA | P uget S ound C apitol C инструкция по эксплуатации A ccount (паромы) |
| PSCOG | P uget S ound C ouncil o f G overnments |
| PS&E | P lans, S pecifications и E стимуляция |
| PSFOA | P uget S ound F erry O perations A ccount |
| PSRC | P uget S ound R egional C ouncil |
| PT | П мазь Т угловая |
| PTBA | P ublic T транспортировка B enefit A rea |
| PTE | P профессиональные и T технические E сотрудники |
| ПТФ | P ublic T ransfer F acility |
| верх | |
| ОК / КК | Q uality A ssurance / Q uality C ontrol |
| QPL | Q ualified P roducts L ist |
| QPR | Q исходно P roject R eport |
| QR | Q uality R esponse |
| QR | Q uick R esponse |
| верх | |
| RA | R региональный A dministrator |
| RAM | R equest для A pproval M материалов |
| ПДП | R Урал A Ртериал P Программа |
| РАП / РАН | R ecycled A sphalt P avement / R ecycled A sphalt S петли |
| РАПКОН | R adar Ap proach Con тележка |
| RATA | R урал A rterial T ржавчина A кол-во |
| RCFB | R создание и C резервирование F до B oard |
| RCO | Штат Вашингтон R ecreation и C onservation O ffice |
| RCR | R эциклированный C бетонный R убл |
| RCW | R evised C ode of W ashington |
| RDP | R out D evelopment P lan |
| Запрос предложений | R equest f или P roposal |
| RIR | R ecordable I ncident R ate |
| RMIS | R ecords M anagement I maging S ervices |
| ШТОК | R ecord o f D ecision |
| об / мин | R aised / R ecessed P Маркер движения M ain maintenance |
| RR | R Ail R Oad |
| RRR (3R) | R удаление поверхности, R эсторация и R восстановление |
| RSL | R emaining S service L ife |
| RTA | R средний T ransit A uthority |
| RTIP | R региональный T транспортировка I mprovement P программа |
| RTPO | R региональный T транспортировка P lanning O организация |
| RV | R для отдыха V для автомобилей |
| R / W | R рейс W ay |
| верх | |
| SA | S tate A id |
| SAFETEA-LU | S afe, A ccountable, F lexible, E fficient T transportation E quity A ct — A L egacy для U sers; см. также MAP-21, который обновляет этот Закон |
| SAM | S статистический A анализ M материалов |
| SAO | S tate A uditor’s O ffice |
| SAR | S earch a nd R escue |
| SB | S исходящий |
| SBE | S торговый центр B usiness E nterprise |
| SCIP | S tate C apital I mprovement P rogram |
| SD | S конструктивно D эффективный |
| SEIS | S дополнительный E экологический I mpact S tatement |
| SEPA | S tate E экологический P olicy A ct |
| ШПО | S tate H istoric P бронирование O fficer |
| ШСП | S tate H ighway S ystem P lan, также известный как HSP |
| МСБ | S ubject M atter E xpert |
| SOV | S ingle O вместимость V автомобиль |
| SPCC | S таблетка P восстановление, C контроль и C план контрмер |
| SPHA | S tate P atrol H ighway A ccount |
| SR | S tate R oute |
| SRP | S вторичная R нагрузка P LAN |
| SSP | S торможение S ите P канал |
| ул.Помощь | St ел Помощь |
| STCDO | S tatewide T ravel & C ollision D ata O ffice (ранее известный как Управление транспортной информации) |
| СТИП | S tatewide T ransportation I mprovement P rogram |
| STP | S urface T ransportation P rogram (финансируется через ISTEA ) |
| SWPPP | S torm w ater P ollution P revention P lan |
| верх | |
| ТАС | T технический A dvisory C комитет |
| TCP | T raffic C ontrol P lan |
| TDM | T транспортировка D emand M anagement |
| TDM | T равв D emand M обвязка |
| TDO | T транспортировка D ata O ffice (см. STCDO ) |
| ЧАЙ-21 | T ransportation E quity A ct для 21 -го века 1998 года |
| ТЭФ | T транспортировка E комплект поставки F и |
| TEIS | T транспортировка E xecutive I информация S ystem |
| THPO | T ribal H istoric P резервация O fficer |
| TIA | T транспортировка I mprovement A ccount |
| TIB | T транспортировка I mprovement B oard |
| ТИГР | T транспортировка I nvestment G enerating E conomic R ecovery |
| НАКОНЕЧНИК | T транспортировка I mprovement P программа |
| TNB | T acoma N стрелки B ребро |
| ТЕМЫ | Urban T raffic O perations P rograms to I mprove C apacity and S afety |
| TPA | T транспортировка P artnership A ccount |
| TPO | T транспортировка P lanning O ffice |
| TRAC | Штат Вашингтон Tra nsportation C enter |
| TRB | T транспортировка R esearch B oard |
| TRIS | T транспортировка R поиск I информация S услуги |
| TSC | T raffic S afety C ommission |
| TSM | T транспортировка S система M связь |
| TTAP | T ribal T echnical A ssistance P rogram |
| TWLTL | T wo- W ay L eft- T урна L ane |
| верх | |
| UAB | U rban A rterial B oard |
| УАТА | U rban A rterial T ржавчина A счет |
| UBC | U форма B uilding C ode |
| УФАС | U niform F ederal A ccessibility S tandards |
| UMTA | U rban M ass T транспортировка A dministration (U.С.) |
| UPC | U униформа P пояс C ode |
| UORR | U tility O bject R elocation R ecord |
| США | U nited S tates (маршрут) |
| USBR | U nited S tates B ureau of R eclamation |
| USC | U nited S tates C ode |
| USCG | U nited S tates C oast G uard |
| USDOE | U nited S tates D отсек o f E nergy |
| USDOT | U nited S tates D отсек o f T транспортировка |
| Б / У | U nited S tates E ngineering D отделение (Инженерный корпус, Управление армии) |
| USFS | U nited S tates F orest S service (U.S. Департамент сельского хозяйства) |
| USFWS | U nited S tates F ish и W ildlife S service |
| USGS | U nited S tates G eological S urvey |
| USEPA | U nited S tates E nvironmental P rotection A gency |
| UTC | U и T транспортировка C пропуск |
| УТЛ | U nable t o L ocate |
| U’XING | U ndercross ing |
| верх | |
| VMT | V автомобиль M iles T raveled |
| VPH | V автомобили P er H наши |
| верх | |
| WAA | W ashington A viation A ssociation |
| WAC | W ashington A административный C ode |
| WACO | W ashington A ассоциация C ounty O официальные лица |
| WAMA | W ashington A irport M anagement A ssociation |
| ВАПА | W ashington A sphalt P aving A ssociation |
| WAQTC | W ashington A альянс для Q uality T транспортировка C инструкция |
| WASHTO | W estern A объединение S tate H шоссе и T транспортировка O служебные |
| WB | W est b ound |
| WBE | W предзнаменование B пригодность E предприятие |
| WDFD | W estern D irect F ederal D ivision ( FHWA ) |
| WDFW | W ashington S tate D отсек для F ish и W ildlife |
| WDNR | W ashington S tate D отделение N atural R esources |
| WFF | W ashington F лежа F armers |
| WITS | W ashington I ncident T стеллажи S система |
| WOA | W ork O rder A uthorization |
| ВПА | W ashington P ilots A ssociation |
| WPCP | W после P ollution C ontrol P lan |
| WPEA | W ashington P ublic E mployees A ssociation |
| WPPSS | W ashington P ublic P Система подачи воды |
| WDFW | W ashington D отделение F ish и W ildlife |
| WSASP | W ashington S tate A irport S ystem P lan |
| WSDOT | W ashington S tate D отсек o f T транспортировка |
| WSECU | W ashington S tate E mployees ‘ C redit U nion |
| WSF | W ashington S tate F erries |
| WSP | W ashington S tate P atrol |
| WSTA | W ashington S tate T ransit A ssociation |
| WSTC | W ashington S tate T транспортировка C ommission |
| WSTP | W ashington S tate T ransportation P lan |
| WTP | W ashington’s T ransportation P lan |
| WTSC | W ashington T raffic S afety C ommission |
| WUCC | W ashington U tility C oordination C ouncil |
| верх | |
| Нет в списке | |
| верх | |
| с начала года | Y ухо к D съело |
| верх | |
| Нет в списке | |
| Вопросы или комментарии по справочнику по акронимам? Свяжитесь с библиотекой WSDOT HQ по адресу mailto: Library @ wsdot.wa.gov или (360) 705-7750 | |
Бесплатные логотипы для автотранспорта: автомобиль, велосипед, грузовик
Где я могу найти лучшие дизайны логотипов автомобильного магазина для вдохновения?
Некоторые из лучших источников вдохновения для создания логотипов автомагазина включают просмотр портфолио известных дизайнеров логотипов в Интернете, базы данных дизайна логотипов и бесплатные инструменты для создания логотипов в Интернете.
В этих хранилищах есть тысячи и тысячи шаблонов логотипов автомехаников или концепций всех типов, независимо от того, ищете ли вы автомобильные запчасти, автомастерскую или бесплатный дизайн логотипа для автомобилей .
Так как большинство из них — от дизайнеров из всех слоев общества, они помогут вам дать вам идей логотипа автомагазина , а также вдохновение для разработки вашего собственного логотипа.
Нужно ли использовать символы автомобилей в логотипах автомобилей?
Абсолютно нет. Некоторые из известных автомобильных логотипов в мире представляют собой абстрактные формы или символы, такие как логотип переплетающихся кругов AUDI и Toyota, изображения блестящих звезд на Subaru, символы животных, таких как ягуар и лошади, как в логотипах Jaguar и Ferrari соответственно.
При выборе символа для логотипа автомобильной компании важно помнить, как он отражается на истории, видении и миссии вашего бренда.
Каковы важные элементы дизайна транспортного логотипа?
При разработке логотипа транспортной компании необходимо учитывать три основных элемента:
Выбор правильного символа : Выберите изображение транспортного логотипа , которое соответствует вашему бренду, целевой аудитории и миссии компании.Не следует выбирать автобус с обозначением , когда вы разрабатываете транспортный контейнер и фирменный стиль сервиса.
Выберите правильный цвет : Большинство отраслей используют цвета, которые воспринимаются как положительные и находят отклик у их клиентов. Следовательно, яркие цвета хорошо подходят для логотипов туристических автобусов, в то время как трезвый синий или темно-зеленый хорошо сочетаются с логотипом транспортной компании PNG .
Выберите правильный шрифт : Как символы имеют значение, так и выбор правильного типа шрифта.Игривый шрифт произведет несерьезное впечатление, в то время как трезвый шрифт, такой как шрифт с засечками или даже профессиональный шрифт без засечек, лучше всего подойдет для вашего шрифта транспортного логотипа .
Как проходит процесс создания логотипов гаража?
Разработка логотипа гаража для вашего клиента или для вашего собственного бизнеса — это не ракетостроение, но требует некоторого внимания.
Первый шаг — выбрать ваш символ. Например, если вы хотите, чтобы разработал собственный логотип гаража , который специализируется на двигателях мотоциклов, выберите символ мотоцикла, соответствующий вашей нише. С другой стороны, если вы специализируетесь на буксировке и ремонте случайно попавших в аварию автомобилей, то некоторые логотипы эвакуаторов здесь могут дать вам идеи.
После этого залейте те цвета, которые больше всего подходят для вашего бренда.Если ваш гараж специализируется на старинных автомобилях, хорошей идеей будет дизайн логотипа с ретро-эффектом. Кроме того, вы можете выбрать ультрасовременный неоновый или ярко-красный цвет, чтобы продемонстрировать свое мастерство.
Наконец, выберите шрифт для написания названия вашей компании и слогана. Мы предлагаем добавить слоган, который определит вашу специализацию, чтобы ваши клиенты не запутались, когда они посмотрят на ваш логотип для гаража .
После этапов проектирования последняя и самая важная часть — убедиться, что вы получаете файлы с высоким разрешением с логотипом вашего гаража, такие как.PNG, PDF и / или .EPS, чтобы вы могли легко использовать их в брендинге.
Какие логотипы транспортных компаний чаще всего используют профессионалы?
Когда разрабатывает транспортные логотипы , профессионалы часто ищут тип и нишу, в которой находится судоходная компания. Например, если компания специализируется на международных перевозках товаров, то изображения, относящиеся к торговле и логистике, будут работать хорошо.
С другой стороны, если ваша судоходная компания занимается исключительно морскими перевозками, то изображения якоря, колеса корабля, компаса, логотипа корабля будут работать лучше.
Наконец, также возможно, что дизайнер в конце концов вынесет решение и может просто согласиться на дизайн логотипа с буквенным знаком вместо фирменного стиля транспортной компании .
Транспортники: рабочее время и отдых в неделю
Последняя проверка: 15.04.2021
Коронавирус: рекомендации по транспортировке по секторам
Еженедельное рабочее время
Если вы нанимаете работников, занятых автомобильным транспортом, вы должны убедиться, что они соблюдают среднее рабочее время в неделю, составляющее 48 часов .При необходимости вы можете продлить его до 60 часов, но только если ваш персонал работает в среднем 48 часов в неделю в течение 4-месячного периода.
Сотрудник считается транспортным работником, если он:
- осуществляет автотранспортную деятельность (вождение, погрузка и разгрузка, помощь пассажирам в посадке и выходе из транспортного средства, уборка и техническое обслуживание, контроль погрузки и разгрузки, административные формальности) У
- нет свободного времени, и они должны ждать на своем рабочем месте / транспортном средстве, например.г. в периоды погрузки или разгрузки
Предупреждение
Если вы являетесь самозанятым водителем , вы можете учитывать рабочее время, когда вам необходимо находиться на своем рабочем месте / транспортном средстве, в распоряжении клиента или заниматься транспортной деятельностью
Как работодатель помните, что ваш персонал может только водить машину максимум 9 часов в день . В исключительных случаях — два раза в неделю — вашим сотрудникам разрешается водить до 10 часов в день.Они не могут водить более 56 часов в неделю, а их общее время вождения за две недели не может превышать 90 часов.
Пример рассказа
Вы нанимаете водителя для перевозки грузов в другую страну ЕС. В течение одной недели он водит 56 часов и 4 часа проводит техническое обслуживание автомобиля — всего 60 часов. Для соблюдения законодательства ЕС он должен работать менее 48 часов в другую неделю, чтобы получить компенсацию, потому что в течение четырехмесячного отчетного периода он должен соблюдать среднее рабочее время в неделю, равное 48 часам.
Перерывы в рабочий день
Ваш персонал не должен работать более 6 часов подряд без перерыва . Если ваши сотрудники работают от 6 до 9 часов, они должны сделать перерыв не менее 30 минут. Если они работают более 9 часов, они должны прекратить работу как минимум на 45 минут.
После 4,5 часов вождения ваши водители должны сделать непрерывный перерыв продолжительностью не менее 45 минут , если они не берут перерыв на отдых.Если они предпочитают, ваши сотрудники могут разделить этот длинный перерыв на два: первый продолжительностью не менее 15 минут, а затем второй перерыв продолжительностью не менее 30 минут.
Периоды отдыха
Вы должны гарантировать своим сотрудникам ежедневный период отдыха продолжительностью не менее 11 часов подряд , который вы можете сократить до 9 часов максимум 3 раза в неделю. Ежедневный отдых можно разделить на две части: первая должна быть не менее 3 часов, вторая — не менее 9 часов. Если вы разделите ежедневный период отдыха, сумма двух периодов должна быть не менее 12 часов.
У ваших сотрудников должен быть период непрерывного отдыха продолжительностью 45 часов в неделю , который вы можете сократить до 24 часов каждую вторую неделю. Если вы сокращаете еженедельный период отдыха, вы должны согласовать компенсацию с вашим персоналом.
Ваши работники должны взять еженедельный отдых после 6 рабочих дней подряд . Если водители вашего автобуса время от времени перевозят пассажиров и едут не менее 24 часов подряд в другой стране ЕС или стране, не входящей в ЕС, они могут отложить свой еженедельный отдых.Они могут ждать до 12 дней, начиная с конца последнего периода еженедельного отдыха.
Пример рассказа
Вы владеете туристической компанией в Словении и хотите организовать 10-дневную поездку на автобусе в Португалию с остановками в других странах ЕС. Поездка начнется 11 апреля и завершится 21 апреля. Ваш водитель автобуса отдыхает в течение 48 часов в выходные, 9 и 10 апреля, и начинает движение 11 апреля. В соответствии с правилами периодов отдыха ему разрешается начинать еженедельный отдых после окончания поездки.Однако его период отдыха должен начаться не позднее, чем через 12 дней после 11 апреля, то есть не позднее 23 апреля.
Ночная работа
Если ваш персонал выполняет какую-либо деятельность между полуночью и 7 часами утра , они считаются ночными работниками . Если они работают в ночное время, ваши сотрудники могут работать максимум 10 часов (включая часы ночной смены) в каждый 24-часовой период.
Логистика и транспортная промышленность | SelectUSA.gov
Логистические услуги: Этот подсектор включает управление входящими и исходящими перевозками, управление парком, складирование, обработку материалов, выполнение заказов, проектирование логистической сети, управление запасами, планирование спроса и предложения, управление логистикой третьих сторон и другие вспомогательные услуги.Логистические службы задействованы на всех уровнях в планировании и выполнении движения товаров.
Авиа и экспресс-доставка (EDS): Фирмы предлагают ускоренные, срочные и сквозные услуги для документов, небольших посылок и дорогостоящих товаров. Компании EDS — это отрасль в США с оборотом 87 миллиардов долларов. Они также обеспечивают экспортную инфраструктуру для многих экспортеров, особенно для малых и средних предприятий, которые не могут позволить себе управлять собственной цепочкой поставок.Недавний рост индустрии ЭЦП был вызван расширением использования электронной коммерции предприятиями и потребителями.
Грузовая железная дорога: Большие объемы тяжелых грузов и продуктов перевозятся на большие расстояния по всей территории Соединенных Штатов по железнодорожной сети. Ежедневно эта система протяженностью 140 000 миль доставляет в среднем 5 миллионов тонн товаров и обслуживает почти все промышленные, оптовые, розничные и ресурсные секторы экономики. В 2017 году по грузовой железной дороге перевозится более 70 процентов угля в стране, около 58 процентов необработанных металлических руд1.6 миллионов вагонов с пшеницей, кукурузой и другой сельскохозяйственной продукцией и 13,7 миллиона интермодальных контейнеров и трейлеров для перевозки потребительских товаров.
Морское судоходство: Этот подсектор включает перевозчиков, морские порты, терминалы и рабочую силу, задействованную в перевозке грузов и пассажиров по воде. Водный транспорт перевозит почти 70 процентов всей международной торговли товарами США, в том числе 72 процента экспорта США по тоннажу.
Автомобильные перевозки: Перевозка грузов автомобильным транспортом осуществляется автомобильным транспортом на короткие и средние расстояния.По данным Американской ассоциации грузовиков, выручка от грузовых перевозок в 2017 году составила 700 миллиардов долларов. В том году грузовики перевезли почти 11 миллиардов тонн грузов.
Inderscience Publishers — связывающие научные круги, бизнес и промышленность посредством исследований
Улучшенные отчеты о цитировании Clarivate и импакт-факторы для журналов Inderscience
16 июля 2021 г.
Редакция Inderscience рада сообщить, что в отчетах о цитировании журналов от Clarivate Analytics за 2021 г. во многих журналах Inderscience, включая European Journal of Industrial Engineering, European Journal of International Management, International Journal of Bio-Inspired Computing, International Journal of Exergy, International Journal of Global Warming, International Journal of Mobile Communications, International Journal of Нефть, газ и угольные технологии, Международный журнал судоходства и транспортной логистики, Международный журнал исследований поверхности и инженерии, Международный журнал по управлению технологиями, Международный журнал веб- и сетевых служб и Прогресс в вычислительной гидродинамике cs.
Редакция хотела бы поздравить и поблагодарить всех участвующих редакторов, членов правления, авторов и рецензентов и рада видеть, что их усилия были вознаграждены в этих последних отчетах о цитировании.
Европейский журнал международного менеджмента отмечает достижения в области индексации
29 июня 2021 г.
Мы рады сообщить, что Европейский журнал международного менеджмента недавно улучшил свои показатели индексации по нескольким направлениям, переместившись в рейтинг 2 в рейтинге. Chartered ABS Academic Journals Guide, улучшенный рейтинг Scopus CiteScore 3.7 (с 2,7), а индекс Scimago H подскочил до 25 (с 22). EJIM Главный редактор и заместитель главного редактора , проф. Илан Алон и проф. Włodzimierz, благодарят своих редакторов, старших редакторов, редакционный и рецензионный совет, рецензентов и авторов за помощь журналу в достижении столь значительных успехов.
Член правления Inderscience профессор Мохан Мунасингх выиграл премию Blue Planet
17 июня 2021 г.
Inderscience рада сообщить, что профессор Мохан Мунасингхе, член редакционной коллегии Международного журнала глобальных экологических проблем и Международного журнала глобальных Warming была удостоена премии Blue Planet 2021 года.В этом году отмечается 30-я присуждение премии Blue Planet Prize, международной экологической премии, спонсируемой фондом Asahi Glass Foundation под председательством Такуя Шимамура. Ежегодно Фонд выбирает двух победителей — физических лиц или организации, которые внесли значительный вклад в решение глобальных экологических проблем.
Профессор Мунасингхе сделал следующее заявление:
«Я глубоко признателен и для меня большая честь получить премию Blue Planet Prize 2021 года, главную награду за экологическую устойчивость, которая символизирует выдающуюся приверженность японского фонда Asahi Glass Foundation лучшему будущему. .Я также в долгу перед многими, кто внесли щедрый вклад в мое интеллектуальное развитие и эмоциональный интеллект, включая учителей, наставников, коллег, семью и друзей. Социальные связи были неоценимы, чтобы пережить давление COVID-19.
Приятно узнать, что комитет по присуждению награды особо признал несколько ключевых концепций, которые я разработал, и их практическое применение во всем мире в течение почти пяти десятилетий, включая концепцию устойчивого развития, треугольник устойчивого развития (экономика, окружающая среда, общество), сбалансированный, инклюзивный зеленый рост. (BIGG) и Цели потребления тысячелетия (MCG).
Мои исследовательские интересы расширились от базовых дисциплин, таких как инженерия, физика и экономика, до прикладных секторов, таких как энергия, вода, транспорт, ИКТ и экологические ресурсы, и, наконец, до многопрофильных тем, таких как бедность, бедствия, изменение климата и устойчивое развитие. Этот эклектичный опыт помог мне разработать Sustainomics как интегративную междисциплинарную методологию. Опираясь на свою прошлую работу и глобальную платформу, предоставленную престижной премией Blue Planet Prize, я буду продолжать свои скромные усилия, чтобы сделать нашу планету более устойчивой для всех.»
РедакцияInderscience искренне поздравляет профессора Мунасингхе с этим выдающимся и значительным достижением.
Международный журнал устойчивого управления сельским хозяйством и информатики, индексируемый Clarivate Analytics ‘Emerging Sources Citation Index
22 мая 2021 г.
Inderscience is рад сообщить, что Международный журнал устойчивого управления сельским хозяйством и информатики был проиндексирован Clarivate Analytics ‘Emerging Sources Citation Index.
Профессор Бэзил Манос, главный редактор журнала, говорит: «Попадание IJSAMI в Индекс цитирования новых источников — результат наших настойчивых и методичных усилий по обеспечению высочайшего качества статей, привлечению компетентных рецензентов и быстрый обмен электронной почтой с нашими авторами и рецензентами. Я очень рад и рад этому признанию нашей работы, и я по-прежнему привержен обеспечению международного научного сообщества журналом высочайшего качества ».
Международный журнал гидромехатроники проиндексирован Clarivate Analytics ‘Emerging Sources Citation Index
20 мая 2021 г.
Inderscience рада сообщить, что Международный журнал гидромехатроники был проиндексирован Clarivate Analytics’ Emerging Sources Citation Index.
Профессор Иминь Шао, главный редактор журнала, говорит: «Я очень рад, что IJHM был включен в Индекс цитирования новых источников. Это признание академических достижений и редакционной работы журнала. Я бы хотел хотел бы выразить нашу искреннюю благодарность всем, кто внес свой вклад в этот журнал.


contributor.other
description.abstract
Васюкова, А.Т. Проектирование предприятий общественного питания: Практикум / А.Т. Васюкова. — М.: Дашков и К, 2016. — 144 c.
С. Дипломное проектирование автотранспортных предприятий: Учебное пособие / И.С. Туревский. — М.: Форум, 2018. — 152 c.
Наши решения направлены на минимизацию негативного воздействия на окружающую среду. При проектировании мы всегда рационально используем земли, отведенные под строительство.
Показаны простое руководство по проектированию и изображение соответствующей реализации в Миннесоте.
Относительно недорогие, эффективные и гибкие (т.е. масштабируемые в соответствии с меняющимися требованиями) стратегии M&O делают их привлекательными вариантами развертывания.