пособие как сделать своими руками вентиляцию в гараже для покраски авто
Покрасочная камера – специально оборудованное помещение, предназначенное для покраски металлических изделий, автомобилей. Покраска – сложный технологический процесс, и для получения качественного покрытия изделий бокс проектируется с учетом важных параметров. Одним из основных показателей, обеспечивающих нормальное функционирование всей системы, является вентиляция в покрасочной камере.
Основной проблемой покрасочных камер является выделение большого количества опасных для организма человека и окружающей среды паров растворителей и окрасочного тумана. Поэтому организация правильной вентиляции рабочего пространства помещения – важнейшая задача, требующая проведения точных расчетов. Вентиляция должна быть приточно-вытяжной общеобменной, а в нижней части камеры, т. е. в полу, необходимо установить вытяжку с фильтрующими элементами.
Часто нижняя вытяжка представляет собой утопленный пол с решетчатым основанием, установленным на 10-15 сантиметров выше пола.
Между полом и решеткой в этой конструкции расположены вентиляционные вытяжные сопла с фильтрами.
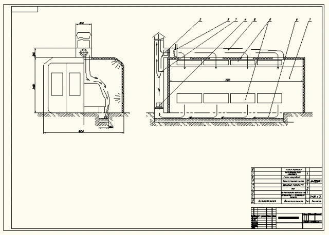
Принцип работы поста
С точки зрения вентиляции камера для покраски является сложной системой. Для равномерного нанесения краски на изделия, отсутствия разводов и предупреждения других дефектов покраски в боксе должны быть созданы правильно рассчитанные потоки воздуха. Поэтому вентиляция и фильтрация выброса краски – важные элементы каждой покрасочной камеры.
Их использование обеспечивает очистку нагнетаемого извне воздуха и воздуха в рабочем помещении, а также осаждение и вывод наружу окрасочного тумана. Принцип работы покрасочной камеры в режиме окрашивания заключается в одновременном выполнении определенных действий:
- Подача в рабочее помещение воздуха при температуре до 30 градусов;
- Забор отработанного воздуха из рабочего помещения и чистого воздуха с улицы;
- Выброс отработанного и очищенного воздуха из камеры.
Поступающий снаружи воздух очищается от пыли, проходя через пылезадерживающие фильтры, а отсасываемый из камеры отработанный воздух перед выбросом наружу очищается от частиц краски и паров растворителей, для чего используются краскозадерживающие фильтры.
При этом кратность воздухообмена в покрасочном боксе, т. е. отношение удаляемого или подаваемого в помещение воздуха за один час к внутреннему объему рабочего помещения, может доходить до 130-200 раз в час.
Получается, что воздух в рабочем пространстве может циркулировать, выбрасываться или подаваться прямотоком.
Виды систем вентиляции для покраски авто
Вентиляция в покрасочной камере может быть одномоторной, двухмоторной и приточно-вытяжной. Кроме того, существуют варианты помещения с проходящим воздушным потоком, с повышенным давлением и с разрежением.
В одномоторных камерах воздух поступает в помещение сверху, в рабочем помещении создается давление и красочный туман опускается вниз и выводится наружу через специально предназначенные для этого отверстия в полу. В двухмоторных камерах воздух поступает также сверху. Дополнительно в них установлен и нижний мотор, отсасывающей воздух из рабочего помещения на улицу.
В таких боксах вентиляция более эффективна, но с экономической точки зрения использование двухмоторной камеры не всегда целесообразно. Например, при небольших объемах покрасочных работ, малых потоках машин часто выгоднее может быть установка одномоторной камеры. Приточно-вытяжная система вентиляции покрасочной камеры работает в трех основных режимах:
- Режим активной циркуляции воздуха с непрерывной фильтрацией, очисткой его от пыли перед началом работы
- Режим забора воздуха снаружи с последующей его фильтрацией, нагревом до 30 градусов, подачей в рабочее пространство и выводом наружу без фильтрации через отверстия в полу (т. е. режим, поддерживающий постоянную температуру в камере во время работы)
- Режим закачки отфильтрованного и нагретого до 60 градусов воздуха из камеры (т. е. сушка изделий после окрашивания)
Приточно-вытяжная вентиляция рассчитывается таким образом, чтобы в рабочем помещении не появлялись «мертвые зоны», в которых не обеспечена достаточная циркуляция воздуха, и после распыления краски ее мелкодисперсная пыль не выводится наружу, а зависает в воздухе.
Наиболее распространены камеры с повышенным давлением, в которых работает два вентилятора – нагнетающий и высасывающий. При этом производительность нагнетающего – больше, и образующийся в результате разности производительности вентиляторов излишек воздуха создает в камере повышенное давление. Внешняя пыль в рабочее пространство попасть не может вследствие того, что она вытесняется воздухом.
В камерах с проходящим потоком воздуха установлено два вентилятора с одинаковой производительностью, в результате чего давление снаружи равно внутреннему давлению в рабочем помещении. В отличие от бокса с повышенным давлением, такая камера должна быть максимально герметизированной во избежание попадания пыли внутрь. А в помещениях с разрежением имеются два вентилятора с разной производительностью: высасывающий воздух из камеры вентилятор имеет большую производительность.
Расчет системы вентиляции
Для правильного функционирования и безопасной работы важно произвести правильный расчет вентиляции внутри помещения, где производится окрашивание.
Это поможет эффективно решить вопросы скопления окрасочной пыли и ядовитых паров в помещении, безопасности оператора камеры, а также обеспечит высокое качество покраски автомобиля. Кроме того, правильный расчет вентиляции необходим и с точки зрения предупреждения возникновения пожара и даже взрыва.
Расчет усложняется тем, что расход воздуха для окрашивания изделий зависит от их размеров. Например, для окрашивания небольших изделий кратность воздухообмена должна составлять примерно 5 раз в час, а для покраски автомобиля уже необходима большая кратность воздухообмена – до 100 и больше раз в час, но не менее 40. Получается, что для больших покрасочных камер окраска небольших изделий не выгодна с экономической точки зрения.
В то же время большая кратность воздухообмена необходима для сохранности здоровья маляра, так как при этом в помещении устанавливается оптимальная циркуляция воздуха, и вредные примеси в рабочем пространстве не накапливаются. Поэтому в современных камерах часто рабочие процессы автоматизированы, и вред для здоровья операторов исключен.
Схема вентиляции покрасочной камеры любого типа практически одинакова и заключается в основных режимах воздухообмена в рабочем помещении – подача воздуха в камеру, выброс его наружу и рециркуляция. Воздухообмен всегда осуществляется с применением двух вентиляторов определенной мощности. Расчет системы вентиляции заключается в правильном подборе параметров вентиляторов в соответствии с требуемым воздухообменом в помещении.
Расчет воздухообмена и производительности вентиляторов
В среднем, стандартная покрасочная камера характеризуется производительностью воздухообмена, равной приблизительно 20 тысячам кубических метров в час. Такая производительность одновременно гарантирует выполнение двух важнейших условий:
- Высокое качество покраски изделий
- Безопасные условия для работы человека
Для каждого конкретного рабочего помещения номинальный воздушный поток можно рассчитать индивидуально. Для этого необходимо знать объем помещения и среднее рекомендуемое значение кратности воздухообмена (не менее 40 раз в час).
Перемножив два этих параметра, можно получить величину номинального воздушного потока для камеры.
Как уже говорилось, радиальный вентилятор для помещения окраски необходим не один, а два – приточного и вытяжного типов. Для каждого из них необходимо знать производительность и давление. Падение давления приточного вентилятора рассчитывается в соответствии с площадью потолочного фильтра, а давление падения вытяжного вентилятора – в соответствии с площадью напольного фильтра.
Требуемую для нормальной работы всей системы производительность вентиляторов выбирать необходимо по графикам зависимости давления от величины производительности воздухообмена в рабочем помещении камеры. Обычно такие графики предоставляют производители вентиляторов.
Вентиляция в полу покрасочной камеры – важный элемент
Пол окрасочного отсека также является одним из элементов ее системы вентиляции. Для удаления отработанного воздуха в полу делают траншеи, которые потом закрываются металлическими решетками.
В самодельной траншеи устанавливают вытяжной вентилятор и фильтры для очистки воздуха. Также можно вместо траншей выполнить поднятие пола на 15–20 сантиметров.
Для этого можно использовать готовый рифлено-дырчатый пол из стальных листов.
В образовавшееся в результате поднятия пола пространство устанавливают вытяжной вентилятор и фильтры для очистки отработанного воздуха от паров растворителя и мелких частиц краски.
Вытяжные отверстия должны быть расположены так, чтобы в помещении не образовывались «мертвые зоны». Помимо этого, важно обеспечить быстрый и простой доступ к напольным фильтрам для их своевременной замены.
Как сделать своими руками вентиляционную систему в гараже?
При самостоятельном сооружении покрасочного бокса установку основных элементов вентиляционной системы начинают после того, как в помещении правильно обшиты стены и установлены осветительные элементы. Стены обычно обшиваются пластиковой вагонкой, металлическими листами.
В качестве осветительных приборов рекомендуется использовать светодиодные или люминесцентные лампы. Поток света при этом должен быть не менее шестисот люмен. После этого в пол гаража устанавливают вытяжку, изготовленную на основе вентиляторов улиток. А с помощью нескольких тэнов под потолком устанавливают воздухозабор с тепловой пушкой.
Воздух с помощью воздуховодов разводится из тепловой пушки по периметру рабочего помещения к центру. Тепловая пушка представляет собой вентилятор, который прогоняет воздух через разогретые спирали. При самостоятельном изготовлении тепловой пушки вместо спирали можно использовать нихромовую проволоку. Можно соорудить тепловую пушку и другим способом. Он заключается в проведении гофры от вентиляторов.
Тэнов необходимо установить шесть или восемь. Это электронагревательные приборы, выполненные в виде металлических трубок, которые заполнены электрическим теплопроводящим изолятором. В центре трубки вставлена токопроводящая нить в виде нихромовой проволоки.
Эта нить имеет определенное электрическое сопротивление и необходима для передачи требуемой удельной мощности на поверхность тэна. Можно также использовать вместо тэна теплогенератор, который работает на солярке.
Однако тэны считаются более безопасными, поэтому предпочтительнее все-таки устанавливать именно их. Так осуществляется достаточный воздухообмен в покрасочном боксе, изготовленном самостоятельно.
Безопасность вентиляционной системы
Точный расчет и разработка эффективной схемы установки элементов вентиляции необходимы не только для получения отличного качества покраски автомобиля и других изделий, но и для обеспечения безопасной работы операторов камеры. Безопасность рекуперативной вентиляционной системы покрасочного бокса можно обеспечить тремя способами:
- Установка обратных взрывозащищенных клапанов на воздуховодах;
- Учет вида примесей, выделяемых в процессе работы;
- Установка дополнительных местных вытяжных устройств в определенных местах.

Так, если в результате работы выделяются примеси, пары которых легче воздуха, то вентиляция проектируется так, чтобы одна треть воздуха выводилась из нижней камеры, остальной воздух – из верхней. Обратный порядок воздухообмена необходим в том случае, когда пары примесей тяжелее воздуха и, соответственно, их большее количество оседает внизу.
Взрывобезопасные местные вытяжки могут понадобиться в таких местах, где расположены установки струйной и порошковой окраски, окрасочные столы и стенды, окрасочные ванны. Расчет вентиляционной системы покрасочной камеры – ответственная и непростая задача, от грамотного выполнения которой зависит нормальное функционирование самой системы, а также сохранность здоровья людей.
Полезное видео
Рекомендуем посмотреть видео о конструкции вентиляции для покраски авто в гараже:
Предыдущая
Что собой представляет покрасочная камера для автомобилей: анализ параметров помещения
Следующая
Самодельная малярная камера для покраски автомобиля в гараже
Вентиляция покрасочной камеры своими руками
Эффективная вентиляция необходима и в служебных, и в подсобных помещениях.
Иногда ее можно организовать самостоятельно, как например, в случае покрасочной камеры. Вентиляция же мусоросборной проектируется и возводится профессионалами.
Содержание
- Вентиляция покрасочной камеры
- Типы систем вентиляции в покрасочной
- Кратность воздухообмена в покрасочной камере
- Пол покрасочной камеры
- Вентиляция покрасочной своими руками
- Обеспечение безопасности
- Вентиляция мусоросборной камеры
Вентиляция покрасочной камеры
покрасочная камераПокрасочная камера – это отдельное помещение с оборудованием для покраски металлических деталей. В процессе работы в воздух выделяются мельчайшие капли красок (окрасочного тумана) и растворителей. Для обеспечения безопасности персонала в покрасочной камере обязательно должна быть вентиляция.
В покрасочных организовывается приточно-вытяжная система вентиляции, усиленная дополнительной вытяжкой в нижней части помещения.
Удобно организовать нижний отвод воздуха, приподняв решетчатый пол на 15-20 см выше основного уровня.
Под решеткой устанавливаются воздухозаборники с фильтрами.
Расчет вентиляции в покрасочной камере достаточно сложен, так как слишком интенсивное движение воздуха может нарушить технологический процесс. Недостаточное же подвергает опасности здоровье персонала. Потоки воздуха при расчете приточно-вытяжной вентиляции покрасочной камеры рассчитываются профессионалом. В обязательном порядке предусматривается фильтрация отводимого наружу воздуха.
направление потоков воздуха в покрасочной камереВентиляция покрасочной камеры выполняет следующие задачи:
- отток отработанного воздуха из помещения;
- подача в помещение чистого уличного воздуха с температурой не выше 25 градусов;
- выброс очищенного отработанного воздуха на улицу.
Приточный уличный воздух предварительно очищается пыли. Одновременно с этим отработанный воздух фильтруется от частичек химических веществ специальными краскоулавливающими фильтрами.
Кратность воздухообмена в камере может достигать 200 раз!
Типы систем вентиляции в покрасочной
вентиляция – это организованное движение воздухаДля покрасочной камеры можно рассчитать и организовать приточно-вытяжную, двухмоторную или одномоторную систему вентиляции.
При одномоторной вентиляционной камере воздух подается сверху, обеспечивая осаждение окрасочного тумана вниз, к вытяжным соплам.
Двухмоторная вентиляционная покрасочная камера оснащена дополнительным мотором, удаляющим отработанный воздух из рабочей зоны наружу. Это более действенная система, однако, ее установка не всегда экономически оправдана. Так, в покрасочных камерах с малым оборотом целесообразнее оборудовать своими руками одномоторную вентиляцию.
Приточно-вытяжная вентиляция функционирует в 3 режимах:
- Интенсивное движение воздуха с фильтрацией;
- Приток воздуха с улицы с фильтрацией, доведением температуры до 30 градусов и отток через сопла в полу. Этот режим обеспечивает постоянные климатические условия;
- Подача очищенного и прогретого до 60 градусов воздуха для просушивания окрашенных деталей.
При расчете приточно-вытяжной вентиляции покрасочной камеры необходимо избегать «мертвых зон», где застаивается воздух вместе со всеми вредными примесями.
Наиболее распространенный вариант для покрасочной это повышенное давление при работе двух вентиляторов: приточного и вытяжного. Нагнетающий вентилятор мощнее, за счет чего и обеспечивается повышенное давление. Одновременно с этим пыль из помещения вытесняется, а не засасывается из вне. Для создания разрежения воздуха мощность вытяжного вентилятора выше мощности приточного.
В камере с циркулирующим воздушным потоком следует обеспечить герметичность. Так как воздух двигается за счет работы двух вентиляторов и давление внутри равно давлению снаружи.
Кратность воздухообмена в покрасочной камере
расположение вытяжки в покрасочнойКачественная и безопасная работа покрасочной камеры гарантируется только при грамотном расчете вентиляции. Правильный воздухообмен обеспечит отличный результат окраски, здоровье персонала и предотвратит пожары или взрывы.
Сложность расчета вентиляции покрасочной камеры в том, что необходимо учитывать размер окрашиваемой детали.
Например, при работе с небольшой площадью воздухообмен должен быть пятикратным. Если же окрашивается кузов легковушки, кратность повышается до 40 – 100. Таким образом, в крупных цехах невыгодно красить мелкие детали. При этом, чем интенсивнее воздухообмен, тем меньше нагрузка на организм людей. Потому, чтобы снизить риск для людей покрасочные максимально автоматизируют.
Стандартная схема вентиляции покрасочной камеры сочетает приток воздуха в камеру, отвод его на улицу и рециркуляцию воздуха. Перемещают воздух 2 вентилятора рассчитанной мощности. Основная задача при расчете вентиляции покрасочной камеры – подбор параметров вентиляторов в зависимости от необходимого воздухообмена.
В среднем покрасочная камера имеет производительность около 20 000 кубометров воздуха в час. Она обеспечивает отличное качество обработки деталей и безопасность для персонала.
Чтобы рассчитать воздушный поток для камеры, необходимо умножить кратность воздухообмена на объем камеры.
Для расчета приточно-вытяжной вентиляции покрасочной камеры нужно знать давление и производительность вентиляторов. Величина падения давления находится в зависимости от площади фильтров: приточного – от потолочного, а вытяжного от напольного.
Производительность вентилятора подбирают по таблицам, предоставленным в инструкции к вентилятору.
Пол покрасочной камеры
пол покрасочной для грузовых машинОдним из важнейших компонентов системы вентиляции покрасочной камеры является пол. Отток отработанного воздуха происходит через траншеи в полу, прикрытые решетками или пол приподнимают за счет пандуса на 20 см. В полученное пространство устанавливают фильтры и вытяжные трубы.
Для организации вентилируемого пола удобно использовать готовый металлический дырчатый пол.
Сопла вытяжных труб распределяют так, чтобы не осталось неохваченного пространства, где может застаиваться воздух. Кроме этого необходимо предусмотреть замену или очистку фильтров.
Вентиляция покрасочной своими руками
Если покрасочное помещение сооружается самостоятельно, монтаж элементов вентиляции начинают после обшивки стен и подключения освещения.
Сначала устанавливают вытяжку в полу, сделанную из вытяжных вентиляторов. Из тэнов и вентиляторов под потолком сооружают тепловую пушку для воздухозабора. Отсюда воздух по трубам поступает в центр помещения. Можно в качестве нагревательной спирали установить нихромовую проволоку.
Тэны более безопасны, чем теплогенераторы на жидком топливе.
Нагревательных тэнов понадобится 6 или 8, они представляют собой токопроводящую нить, спрятанную в металлические трубки. Трубки заполняются изолирующим, проводящим тепло материалом. Нихромовая нить передает на поверхность необходимую удельную мощность.
Обеспечение безопасности
металлический пол покрасочнойДля безопасной работы системы вентиляции покрасочной камеры используются три приема:
- взрывозащищенные обратные клапана на вентканалах;
- мониторинг примесей в воздухе камеры;
- дополнительные вытяжные сопла возле основных источников загрязнения.
Например, когда во время окрашивания выделяются вещества легче воздуха, из нижнего яруса отводится 30% воздуха, а 70% из-под потолка.
Если примеси тяжелее воздуха, они быстро оседают. Поэтому отводятся снизу. Взрывозащищенные отводы необходимы над окрасочными стеллажами, ванными, струйными установками.
Тщательно рассчитав, можно оборудовать качественную вентиляцию покрасочной камеры своими руками, сэкономив на услугах дорогостоящих специалистов.
Вентиляция мусоросборной камеры
мусоросборная камераМусоросборная камера оснащается естественной (иногда принудительной) вентиляцией, обеспечивающей соблюдение санитарно-гигиенических норм. В качестве воздуховода используется ствол мусоропровода. А узел вентиляции мусоросборной камеры находится выше ствола мусоропровода.
Система вентиляции мусоросборной камеры состоит из следующих элементов:
- вентиляционный канал;
- шибер, перекрывающий воздуховод во время чисток и дезинфекции ствола мусоропровода;
- вытяжной вентилятор или дефлектор;
- уплотняющие кольца для вывода вентканала через кровлю.
Вентканал устанавливается вертикально, по центру ствола мусоропровода.
Стандартный диаметр канала 300 мм. При необходимости разрешается отклонение канала не более чем на 30 градусов к вертикали.
Отрезки вентканала крепятся между собой металлическими переходниками.
Внутренние стенки выполняются гладкими и из невоспламеняющихся материалов. Следует утеплить отрезок канала, проходящий через не отапливаемый чердак. Проход воздуховода через крышу герметизируется металлическим фартуком и гильзой.
Чтобы предотвратить обратную тягу в вентиляции мусоропровода параллельно ему устанавливается еще один воздуховод, который вверху соединяется с основным. Место соединения можно перекрыть заслонкой с автоматическим или ручным управлением.
В современных высотных комплексах мусоросборные камеры герметичны, а ствол мусоропровода оснащен мойкой. Естественная тяга в летнее время в нем почти не функционирует, поэтому камеры оборудуются принудительной вытяжной вентиляцией.
com/embed/FVvDdEY2sXk?wmode=transparent&fs=1&hl=en&modestbranding=1&iv_load_policy=3&showsearch=0&rel=1&theme=dark» frameborder=»0″ allowfullscreen=»»/>как сделать вентиляцию в гараже своими руками
Покраска автомобиля стоит больших денег. Некоторые автолюбители пытаются выполнить эту процедуру в условиях гаража. Иные обращаются в те места, где оборудовано специальное помещение. Качество нанесения нового покрытия на кузов авто зависит от правильности монтажа вытяжки для покрасочной камеры. Она влияет не только на меры безопасности работников, но и на создание правильного микроклимата для сушки покрытия.
Содержание
- 1 Виды вентиляции в гараже для покраски авто
- 1.1 Естественная
- 1.2 Механическая
- 1.3 Комбинированная
- 2 Требования
- 3 Основные функции
- 3.1 Очистка воздуха в помещении и фильтрация
- 3.2 Обеспечение безопасности
- 3.3 Быстрая сушка
- 4 Установка вентиляции своими руками
- 5 Расчет
- 6 Меры безопасности
Виды вентиляции в гараже для покраски авто
Любой гараж можно переоборудовать под покрасочную камеру.
Согласно требованиям к этому помещению, там обязательно должна быть вытяжка. Различают три типа вентилирования помещения: естественное, механическое и комбинированное.
Естественная
Простейший вариант, когда воздух, через специальное отверстие, попадает внутрь помещения, и через другое покидает его. Монтируется в уже выстроенных гаражах, когда нет возможности сделать отверстия на потолке и под полом. Состоит из приточного и вытяжного окошек, расположенных под потолком и у пола соответственно.
Самодельная естественная вентиляция допустима только при разовой покраске небольших деталей. Она не может обеспечить необходимую скорость смены воздуха и защитить работника от паров краски, создать комфортные условия для сушки.
Механическая
Воздухообмен происходит за счет работы специального оборудования. Вентилятор используется для нагнетания в помещение воздуха.
- одномоторные – работает один вентилятор на подаче воздуха;
- двухмоторные – используются два вентилятора: один – для подачи воздуха и один – для его вытяжки их помещения.
Это наиболее оптимальная система для покрасочного бокса. С ее помощью можно менять микроклимат в помещении для режимов покраски, сушки, работать с крупными кузовами и отдельными деталями. При правильном расчете в помещении будут отсутствовать слепые зоны, и не станет застаиваться воздух.
Комбинированная
Для вентилирования используется один вентилятор – для удаления воздуха из гаража. Приток осуществляется естественным путем, за счет разницы давления внутри и снаружи помещения.
Такой вариант является бюджетным способом установить вентиляцию. Если грамотно подойти к вопросу ее организации, правильно подсчитать мощность и схему размещения оборудования, то гараж станет пригодным местом для работы с лакокрасочными материалами.
Требования
От того, какие созданы условия в покрасочной камере, зависит качество выполненных работ и безопасность работников. Требования по обустройству гаражного помещения к вытяжке, как основной части помещения, предъявляются следующие:
- поддержка температурного режима. Производители краски указывают оптимальную температуру – 22-24 °С, поэтому в систему встраивают нагревающий элемент, если на улице воздух более холодный;
- равномерное и направленное движение воздуха. В идеале вентиляция работает вертикально, сверху вниз;
- поддержка уровня влажности от 50 до 70 %, чтобы предотвратить чрезмерно быстрое высыхание краски;
- воздухообмен. В зависимости от типа выполняемых работ, воздух в помещении должен полностью меняться за определенное время.
Если гараж просторный, хорошо освещен по всему периметру, в нем нет никакого оборудования и стеллажей, он утеплен снаружи и изнутри, то организовать вентиляцию, отвечающую всем требованиям, не сложно.
Основные функции
Влажность, температура, чистота воздуха и скорость его движения влияют на качество окраски. Вентиляционная система призвана обеспечить комфортные условия при работе с красками, лаками, растворителями и другими подобными веществами.
Очистка воздуха в помещении и фильтрация
Гараж – это пыльное помещение. Если частички пыли не удалить с деталей во время покраски, то они налипнут на новое покрытие, испортив его качество. Воздухообмен в помещении предотвращает «летучесть» пыли, прижимая ее к полу. Установка фильтров на входе предотвратит попадание песка и других частичек внутрь помещения.
Внимание! Фильтр должен быть и в выходном канале, чтобы частички краски не попадали в атмосферу и не оседали на близлежащей территории, машинах, стоящих снаружи гаража.
Обеспечение свежим кислородом помещения гаража создаст комфортные условия для работы мастеров по покраске. Это уменьшит время на полировку, если изначально на покрытие не осядут инородные вкрапления.
Обеспечение безопасности
В процессе покраски в воздух попадают пары и газы от растворителей и лакокрасочных материалов. Они токсичны, и представляют опасность для человека. Длительное пребывание в помещении без вентиляции приведет к отравлению работников парами.
Также эти газы взрыво- и пожароопасны. С помощью вентиляции предотвращается их скопление и снижается пожарная опасность покрасочной камеры.
Быстрая сушка
В режиме сушки в камеру подается горячий (до 80 °С) воздух, и обеспечивается быстрое высыхание покрытия.
Установка вентиляции своими руками
На этапе проектирования гаража предусматривают возможность установки вентиляции. Если гараж уже построен, необходимо воспользоваться перфоратором для создания системы.
Сверху разводят вентиляционные каналы с фильтрами. Снаружи устанавливают блок, нагнетающий воздух. При необходимости в вентканал монтируют нагревательный элемент.
Монтируют два фильтра: крупный – для устранения больших механических частиц и мелкий – для забора пыли.
Фильтры должны быть съемными, и периодически меняться.
На полу монтируют зону для забора воздуха. Для этого роют пару траншей по центру помещения. Сверху прикрывают их металлической решеткой. В канале также встраивают фильтры для очистки выходящего наружу воздуха. В канал монтируют второй вытяжной вентилятор. Точка выхода воздуха должна находиться на крыше гаража.
Места забора воздуха должны регулярно проверяться, чтобы они ничем не были закрыты. Если покрасочная камера строится для регулярного оказания услуг, то на вентиляции не экономят. При создании вентиляции «для себя» можно упростить схему, взяв часть оборудования в аренду на время покраски.
Расчет
Наиболее важная часть создания вентиляции – проведение расчетов. Грамотно составленная схема не оставит мертвых зон и обеспечит достаточный приток свежего воздуха. Важно рассчитать два параметра: площадь отверстий и воздухообмен – объем воздуха, нагнетаемого в помещение в час.
Воздухообмен считают по формуле:
Р = Ширина*Длина*Высота* (температура внутри – температура снаружи)*0,36, где габариты – это размер покрасочной камеры, а 0,36 – поправочный коэффициент.
При расчете разницы температуры делают поправку на сезонность. Считается, что внутри должна поддерживаться температура +22 °С. А снаружи определяют максимум и минимум и считают 2 разницы. Потом берется среднее.
Пример! Есть бокс 4Х6Х2,8 метра, температура снаружи +10 °С. Тогда воздухообмен: Р=4*6*2,8*(22-10)*0,36 = 290,304 метров кубических в час. Значит, за час в помещении объемом 67 метров кубических воздух должен полностью смениться примерно 4 раза. На время сушки этот параметр увеличивается.
Габариты вентканала считают из соотношения: на 1 квадратный метр должно приходиться 1,5 сантиметра отверстия. Если площадь потолка 6х4 метра – 24 метра квадратных, то площадь вентиляции – 0,36 метра. При монтаже можно разделить одно отверстие на несколько дырок меньшего размера, например, на пару – по 0,18 метра. Если помещение активно используется, то обязательно ставят вентилятор.
Меры безопасности
Главная цель монтажа системы вентиляции – обеспечить безопасность работы маляров.
Сотрудники также должны пользоваться средствами защиты:
- респиратор;
- перчатки;
- защитная одежда;
- маска и очки;
- обувь закрытого типа.
Помещение обязательно следует отделать огнеупорными материалами, не должно быть источников открытого огня; проводка тщательно изолируется.
Из покрасочной камеры убирают шкафы, оборудование, любые другие предметы, чтобы на них не скапливалась пыль, и они не препятствовали проветриванию.
Покрасочная камера для хобби своими руками — Vent Works
Создайте свою собственную покрасочную камеру
Если вы умеете делать все самостоятельно или просто хотите получить высококачественную покрасочную камеру, создание покрасочной камеры самостоятельно может быть для вас правильным путем.
Все, что вам нужно, это базовые инструменты, обычные материалы и хотя бы несколько часов.
Недавно мы создали собственную окрасочную камеру для хобби, и она нам очень понравилась, поэтому мы создали эту статью, чтобы показать вам, как мы это сделали. Выберите тип дерева, который вы предпочитаете, следуйте инструкциям и приступайте к сборке покрасочной камеры прямо сейчас.
Ниже мы выделили некоторые преимущества созданной нами покрасочной камеры для хобби.
Технические характеристики покрасочной камеры Hobby
- Вытяжной вентилятор 265 CFM, 115 В, 1,9 А, 1500 об/мин.
- Кабель питания с заземлением длиной 7 футов.
- Монтажная панель из оцинкованной стали толщиной 24 мм для воздуходувки.
- Стеллаж для фильтров из оцинкованной стали 24 калибра, для использования со стандартным сменным фильтром печи. 12″ х 24″ х 1″
- Круглый выпускной патрубок диаметром 4 дюйма для легкой вентиляции (стандартная вентиляция осушителя)
- Фанера толщиной 1/2 дюйма для нижней, боковых, задней и передней панелей.

- Оргстекло толщиной 1/4 дюйма для верхней панели.
Выбор воздуходувки для кабинки для брызг. Мы выбрали этот воздуходув Dayton, потому что он тихий и мощный. Мы провели сравнительные тесты множества различных нагнетателей и вентиляторов, Dayton 6FHX9был самым тихим, он лучше всех выдерживал статическое давление и добился наилучших общих характеристик среди всех других воздуходувок аналогичной мощности (265 кубических футов в минуту). Кроме того, мы получили положительные отзывы о воздуходувке от многих читателей, которые использовали ее в своем стенде.
Мы знаем, что розничные цены Grainger могут быть довольно высокими, поэтому мы предлагаем вам присмотреться к ценам, если вас беспокоит цена. Если вы решите использовать другой вентилятор, а длина вытяжного канала превышает 8 футов, убедитесь, что он выдерживает статическое давление, как воздуходувка Dayton.
Убедитесь, что важные характеристики соответствуют изображению ниже.
Подключение воздуходувки
Эти типы воздуходувок не поставляются со шнуром питания, поэтому вам придется приобрести кабель питания с заземлением и подключить его самостоятельно. Этот процесс чрезвычайно прост, это буквально всего 3 провода; 1 положительный, 1 отрицательный и 1 земля. Не беспокойтесь, вам не потребуется никакого предыдущего опыта или знаний об электричестве, чтобы подключить воздуходувку.
Монтажная панель вентилятора
Мы использовали оцинкованную сталь 24 калибра для монтажной панели вентилятора, чтобы можно было производить выброс воздуха сверху или снизу, просто переворачивая панель. Мы установили воздуходувку снаружи, чтобы обмотки двигателя не повреждались вредной краской и растворителями.
Узнайте больше о монтажной панели для вентилятора
Переходник для вентилятора с квадратного на круглый
Когда мы построили нашу покрасочную камеру, мы создали собственный переходник с квадратного на круглый.
Люди начали спрашивать нас, где взять адаптер, поэтому мы начали искать адаптер, который будет работать. После долгих исследований мы пришли к выводу, что в продаже не было адаптеров, которые правильно переходили бы с квадратного фланца воздуходувки на выпускное отверстие круглого воздуховода. Именно тогда мы поняли, что можем повысить ценность, если сделаем этот адаптер коммерчески доступным.
Этот продукт позволяет вентилировать воздуходувку Dayton 6FHX9 с помощью стандартного круглого воздуховода диаметром 4 дюйма. Этот адаптер можно использовать с жесткими, полужесткими или гибкими воздуховодами.
Примечание. корпуса воздуходувки для правильной сборки адаптера.
Предупреждение. Он может не подходить к другим воздуходувкам, поскольку размеры фланцев и расположение болтов различаются.0043
Стойка для фильтров
Когда мы создавали стеллаж для фильтров для нашей покрасочной камеры, мы использовали оцинкованную сталь 24 калибра, мы понимаем, что большинство людей не смогут использовать этот материал.
Стойку для фильтра можно сделать из дерева, это может быть та же фанера, из которой построена будка. См. ниже, если вы хотите купить стальную фильтровальную стойку Vent Works.
Примечание:
Дешевые стандартные печные фильтры работают лучше всего, если вы используете дорогой фильтр от аллергенов, например фильтровать фильтр печи, это будет ограничивать поток и вызывать неадекватную вентиляцию.
Узнать больше о стойке для фильтров
Освещение
Мы решили не включать внутреннее освещение в саму кабину, вместо этого мы использовали оргстекло в качестве верхней панели. Таким образом, свет легко попадал бы в кабину, и мы могли бы быстро регулировать свет в зависимости от того, где мы находимся и чем занимаемся. Мы рекомендуем плексиглас размером от 1/8 до 1/4 дюйма, но вы можете использовать любой полупрозрачный материал.
В местных хозяйственных магазинах должно быть что-то пригодное для использования, но толщина, размер и материалы могут различаться. Мы использовали настольную пилу для резки материала, но подойдет и циркулярная пила. Обязательно установите глубину пильного диска так, чтобы он просто очищал материал, иначе материал может расколоться, треснуть или отколоться.
Альтернатива дереву
Покрасочная камера, используемая в этой статье, была построена с использованием стойки фильтра Vent Works и монтажной панели вентилятора, но при желании вы можете изготовить эти детали самостоятельно из дерева. Если вы используете древесину для панели крепления вентилятора, вам нужно будет создать панель, вырезать отверстие, просверлить направляющие отверстия в панели и в вентиляторе, получить надлежащее оборудование и герметик.
Ниже представлены изображения кабины, изготовленной из той же фанеры, что и будка, каркас фильтра, панель крепления вентилятора и верхняя панель (вместо плексигласа).
Часто задаваемые вопросы
- ▼
Является ли эта покрасочная камера взрывозащищенной?
.Нет, для классификации взрывозащищенного двигателя необходимо использовать паронепроницаемый двигатель и переключатели. Взрывозащищенные компоненты очень дороги и сделали бы эту кабину непомерно высокой. Однако для того, чтобы произошел взрыв, концентрация легковоспламеняющихся паров должна быть на уровне или выше нижнего предела взрываемости (НПВ). В большинстве случаев, если вентилятор работает до того, как будет введен пар, концентрация пара будет разбавлена и меньше его нижнего предела взрываемости. - ◄
Требуется ли обслуживание покрасочной камеры?
Да, периодически следует заменять фильтры и проверять воздуховоды на наличие препятствий. Это обеспечит надлежащий поток воздуха, который уменьшит риск накопления пара. 
- ◄
Как далеко я могу проложить вытяжной канал?
Вытяжной воздуховод добавляет трение (сопротивление воздушному потоку), поэтому будку следует располагать как можно ближе к выходу выхлопа. Vent Works рекомендует не более 15 футов вытяжной трубы, когда это возможно. - ◄
Где купить вытяжную вентиляционную трубу?
.Покрасочная камера для хобби, которую мы создали, имеет 4-дюймовое круглое выпускное отверстие, которое можно вентилировать с помощью стандартного вентиляционного канала сушилки, который легко доступен в большинстве хозяйственных магазинов и магазинов товаров для дома. - ◄
Не повредит ли отработанный воздух из покрасочной камеры растительность возле выпускного отверстия?
Нет, если фильтр кабины установлен и правильно обслуживается, избыточное распыление и частицы будут удалены без ущерба для жизни растений. 
Список вырезов и сборка
Скачать список вырезок и инструкции по сборке ниже
Инструкции по сборке покрасочной камеры для хобби и перечень материалов
Если вам понравилась эта статья, пожалуйста, поделитесь ею с друзьями и другими людьми, которым она может быть полезна. Кнопки ниже делают это чрезвычайно простым, поэтому, пожалуйста, найдите минутку, чтобы поделиться, это очень много значит для нас.
Спасибо
Вентиляционные работы
Включите JavaScript для просмотра комментариев, созданных с помощью Disqus.
Также в блоге о вентиляции
Vent Works только что представила 6-дюймовый вентиляционный клапан!
С момента выпуска нашей оригинальной оконной сушилки мы постоянно получали отзывы с просьбами о 6-дюймовой версии.
Как компания, которая гордится тем, что прислушивается к нашим клиентам, мы хотим, чтобы вы знали, что мы вас услышали.
Продолжить чтение
Вытяжка из покрасочной камеры своими руками с эффектом Вентури — часть 2
Покрасочная камера, которую я переделал из старого шкафа для телевизора, готова. Я остановился на добавлении и вытяжке в верхней части шкафа. Следующим шагом будет вентиляция шкафа и установка какой-либо вытяжки в покрасочной камере. Я провел небольшое исследование. Вариантов было много. Коробчатые вентиляторы, компьютерные вентиляторы и вентиляторы с беличьей клеткой — вот лишь некоторые из вариантов, с которыми я столкнулся.
Я только что купил небольшой специальный пылесос для своего пескоструйного кабинета. Имея это в виду, я решил выяснить, могу ли я каким-то образом использовать сторону вентилятора для вентиляции распылительного шкафа. Я хотел сохранить расходы на низком уровне, поэтому, если бы я мог придумать систему, которая использовала бы обе стороны вакуума (всасывание для камеры дробеструйной очистки и выдув воздуха для покрасочной камеры), это было бы идеальным решением для покрасочной камеры.
выхлоп.
Эффект Вентури
Я решил сконструировать выхлопной двигатель из ПВХ, который будет использовать эффект Вентури для создания вакуума. вакуум вытянет воздух из вентиляционного отверстия в шкафу. Эффект Вентури — это физический принцип, при котором сжатый поток (воздуха или воды) создает область низкого давления непосредственно за собой. Сужение вызывает увеличение скорости среды, вызывая снижение давления среды. Это также приводит к принципу Бернулли. Эффект Бернулли утверждает, что увеличение скорости приводит к уменьшению давления. Они оба работают рука об руку. Вместо того, чтобы пытаться дать вам полное объяснение физики, стоящей за этим, вот несколько ссылок, которые, если вы хотите, вы можете изучить дальше:
- Эффект Вентури WikiQuick
- Объяснение эффекта Вентури и принципа Бурнелли
Вытяжка кабины для боли
Конструкция, которую я придумал, была простой и относительно недорогой. Я использовал 4-дюймовую секцию из ПВХ сортамента 80 и несколько 1,5-дюймовых ПВХ-фитингов и угловых фитингов.
Используя меньший ПВХ и фитинги, я планировал ввести мощность пылесоса в четырехдюймовый ПВХ и с прямоугольным фитингом. Это направит поток воздуха к выходной стороне трубы. Вот анимированная иллюстрация того, что я планировал сделать.
На анимации слева синие стрелки представляют выход вакуума. Это выходит из меньшей трубы из ПВХ внутри. Поток этого воздуха (синие стрелки) создает за собой вакуум, втягивая воздух за большую трубу (красные стрелки). Вот хорошее видео о том, как можно создать вакуум потоком сжатого воздуха на ютубе.
Вакуум с эффектом Вентури
Сборка выхлопной трубы покрасочной камеры
После того, как я собрал все необходимые материалы (большинство из них осталось от прошлых проектов), я начал с открытия отверстия в четырехдюймовом ПВХ. Отверстие должно точно подходить для 1,5-дюймового ПВХ. В итоге я использовал дремель, чтобы вырезать отверстие, так как коронки, которые у меня были, были либо слишком большими, либо слишком маленькими.
Вырезание отверстия в трубе из ПВХ Тестовая установка трубы из ПВХ
После пробной подгонки размера отверстия я использовал фен, чтобы выровнять область вокруг него. Мои мысли были таковы, что я хотел получить герметичную посадку. Выравнивание области позволило бы мне приклеить ПВХ на место.
Когда ПВХ становится достаточно горячим, он становится гибким. Я также использовал кусок 2 × 4, придавив область, оставив мне плоское место, где я также мог закрепить фитинги.
Термопистолет Создание ровного места в ПВХСборка выхлопной трубы покрасочной камеры
Затем мне пришлось обрезать фитинги до нужного размера, чтобы они аккуратно входили в трубу. Я использовал фитинги под прямым углом, один снаружи, к которому будет крепиться воздуходувка пылесоса. Второй для внутренней части, где выход создаст вакуум в большой трубе. Изображение ниже является хорошей иллюстрацией того, как я наконец соберу выхлопную систему Вентури.
Сборка системы довольно проста.
Сначала я склеил три внутренние детали. Начав с небольшого куска длиной 1,5 дюйма (который пронзил четырехдюймовую стенку из ПВХ. Я приклеил его к прямому углу, а затем приклеил 18-дюймовый кусок ПВХ толщиной 1,5 дюйма к другой стороне прямого угла. Для верхней стороны я просто приклеил 3-дюймовый отрезок ПВХ во второй прямой угол.0003
Выхлопная труба Вентури в покрасочной камере склеена
После того, как обе эти секции были собраны вместе, я вставил внутреннюю часть в четырехдюймовую трубу из ПВХ и протолкнул меньшую трубу через отверстие, которое я ранее прорезал в трубе из ПВХ. После этого осталось просто склеить верхнюю и нижнюю части вместе.
Вид изнутри выхлопной трубы ВентуриВнутри покрасочной камеры
Окончательная сборка сама по себе довольно проста. Одной областью, которой я не хотел пренебрегать, был воздухозаборник внутри покрасочной камеры. Я уже использовал напольный воздуховод HVAC для открытия. Добавил решетку с фильтром. Моя цель — улавливать любые крупные частицы краски до того, как они попадут в вакуумную систему Вентури.
Фильтр вырезается из большой полосы фильтрующего материала HVAC, продаваемого в местных магазинах товаров для дома. Я приклеил небольшую деревянную полоску к задней части шкафа, чтобы прикрепить крышку к вентиляционному отверстию. Сама крышка не подходила точно, поэтому я приклеил ее скотчем, чтобы держать на месте.
Выхлопная крышка покрасочной камеры Вентури и фильтр Выпускной канал покрасочной камеры
Собираем все вместе
Установка выхлопной трубы Вентури завершенаПоследние шаги по сборке всего этого заключались в подключении выхода пылесоса к внешнему порту на трубе Вентури. трубу и присоединение трубки к вытяжному каналу на шкафу. Я использовал расширяемый воздуховод осушителя, чтобы сделать это соединение, а также использовал его, чтобы взять выход из системы Вентури и выпустить наружу при ее использовании. Это позволяет легко открыть дверь гаража и вывести воздуховод, когда мне нужно использовать покрасочную камеру.
Заключительное слово
Одна вещь, в отношении которой я проявляю осторожность, это следить за тем, чтобы летучие химические пары не попадали в систему.
Я подозреваю, что существует большое количество статического электричества, создаваемого движущимся воздухом. Статический разряд может привести к воспламенению и воспламенению паров. Я, вероятно, установлю полосу заземления в будущем, чтобы решить эту потенциальную проблему.
Теперь, когда я завершил эту часть проекта, у меня есть покрасочная камера приличных размеров с вентиляцией. Обязательно посмотрите первую часть того, как сделана покрасочная камера.
Сборка покрасочной камеры своими руками из тумбы под телевизор — часть 1
Покрасочная камера своими руками — опилки 2 стежка
Проблема:
Единственное, чего мне не хватает в моем магазине, так это покрасочной камеры. В прошлом я использовал несколько раскладывающихся палаток и нашел изящное маленькое крепление для спортивных навесов… но мне все же хотелось чего-то более удобного в использовании.
Решение: Покрасочная камера своими руками
Мое главное требование при проектировании зоны распыления заключалось в том, чтобы она была легко доступна, но не занимала много места.
Я решил создать сверхмощный разделитель, чтобы обеспечить некоторую защиту остальной части моего магазина от брызг. Вот что у меня получилось:
Я решил, что лучше всего использовать длинные прочные шторы, которые можно открывать, когда они используются, и закрывать, когда они не используются. После долгих исследований я решил, что лучше всего использовать карнизы и тряпки IKEA.
| Предлагаемые инструменты: | Используемые материалы: |
| Рулетка | Карнизы для штор ИКЕА |
| Дрель | Вспомогательные крючки |
| Лестница | Зажимы для штор |
| Салфетки | |
| Брезент |
* Это один из тех проектов, которые я просто покажу вам в общих чертах, что я сделал. Каждое пространство будет отличаться и требует разных размеров. Для этого урока мои потолки 10 футов, а «покрасочная камера» примерно 13 на 13 футов.
Установка крючков для покрасочной камеры
Сначала я определил, насколько большой должна быть моя покрасочная камера. Затем я отметил эти размеры на потолке. Мой потолок имеет открытые фермы, которые сделали этот процесс очень простым! Я использовал фермы, чтобы закрепить крюки. Я понимаю, что это, вероятно, не так в большинстве гаражей/магазинов. Потребуется немного работы, чтобы наметить, где у вас есть свободные фермы и/или потолочные балки.
После определения точек крепления используйте сверло 1/4″, чтобы предварительно просверлить места для крюков.
После того, как отверстия будут просверлены, вручную закрепите крючки. (Я использовал крючки с резиновым покрытием, чтобы карниз не скользил.)
Я использовал 1-дюймовые карнизы от IKEA, чтобы они были более жесткими. Поэкспериментировав с их силой, я решил, что одного крючка каждые 5 футов будет более чем достаточно.
Подготовка штор для покрасочной камеры
При подготовке к этому проекту я экспериментировал с несколькими вариантами.
Лидерами были брезент и тряпки. Брезент был дешевле, но он был очень легким и дул повсюду. Я попытался добавить немного веса на дно гудрона, используя несколько разных методов, но в конечном итоге решил, что хлопоты не стоят того, чтобы сэкономить несколько долларов. Я пошел с салфетками.
Преимущество тканевых салфеток в том, что они очень тяжелые, доступны по цене и бывают самых разных размеров! В итоге я использовал (x4) 12’x15’. (Я не подшивал свои, но если вы хотите сделать их более индивидуальными для вашего пространства, подшивка всегда является вариантом.) Если вы хотите узнать больше о том, как подшивать, ознакомьтесь с этим уроком здесь: Подшивка штор.
Для простоты я использовал кольца для штор. Есть плюсы и минусы их использования; да, карман для стержня пришить дешевле… но с помощью колец шторы будут скользить без усилий. Я заказал большие упаковки зажимов на Amazon и разместил кольцо примерно через каждые 8 дюймов. (Как я уже сказал, эти тряпки тяжелые, и им потребуется поддержка.
)
Чтобы кольца не соскальзывали с конца, я использовал наконечники стержней IKEA, также известные как наконечники. (Все они были из соответствующего черного цвета, поэтому подойдет серый.)
Повесьте их!
Я просто повесил стержни и могу легко вытащить их, когда они используются, и убрать их, когда они не нужны.
Во время использования у меня есть брезент, который я кладу на пол. В этом нет ничего необычного, но это дешево и делает свое дело.
Вентиляция
Как я уже говорил, это всего лишь краткий обзор концепции, которую можно легко адаптировать к любому пространству. В моем магазине есть промышленный вентилятор, который находится прямо над покрасочной камерой. Я просто включаю его, и он высасывает пары краски вверх и вниз. (Да, мой потолок открыт, и со временем на нем будет скапливаться краска.) Это не стерильная среда, но это уменьшит количество избыточного распыления, которое попадает в мой магазин во время покраски.
Другим предложением было бы стратегически расположить покрасочную камеру перед окном, прорезать отверстие в ткани, чтобы вместить окно, и поместить в окно вентилятор с воздушным фильтром.



Под решеткой устанавливаются воздухозаборники с фильтрами.

Стандартный диаметр канала 300 мм. При необходимости разрешается отклонение канала не более чем на 30 градусов к вертикали.
Фильтры должны быть съемными, и периодически меняться.

