Ремонт тракторного электрооборудования
Характерные неисправности и организация ремонта.
Основные неисправности и способы устранения. (Т-150, Т-150К)
Рабочее место
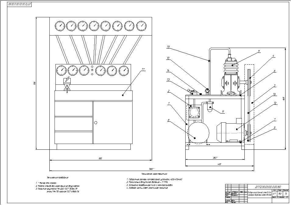
Рабочие места для ремонта электрооборудования располагают в изолированных помещениях и оснащают контрольно-испытательными стендами, верстаками, приспособлениями и инструментом в соответствии с планом, подобным изображенному на рисунке 1.
Особенностью таких рабочих мест является наличие повышенной взрывоопасности при зарядке аккумуляторных батарей, вызванной выделением водорода. Поэтому приготовление электролита и зарядку аккумуляторов необходимо производить в изолированных помещениях, оборудованных вытяжной вентиляцией, изолированной от общей системы вентиляции. На приведенном плане рабочего места использован специальный зарядный шкаф, оснащенный вытяжкой.
Технология ремонта агрегатов автотракторного электрооборудования, в сравнении с ремонтом механических сборочных единиц, имеет ряд особенностей, связанных с необходимостью выполнения измерений электрических характеристик (напряжения, силы тока, сопротивления изоляции и др.) поэтому целесообразно использовать специальные верстаки. оснащенные необходимыми приспособлениями и приборами (рис.2).
Рис.2 Специальный верстак для ремонта автотракторного электрооборудования:
1- компрессор; 2 – аппарат для очистки и проверки искровых свечей зажигания; 3 – слесарные тиски; 4 – электрощит; 5 – вольтметр; 6 – амперметр; 7- поворотный стол; 8 – намагничивающий аппарат; 9 – пресс; 10 – подставка для аккумуляторной батареи; 11 – электродвигатель компрессора.
Особенности принципа действия, устройства и технологии обслуживания и ремонта агрегатов электрооборудования требуют использования стендов для их обкатки и испытания.
Наиболее распространенным в мастерских общего назначения является стенд КИ-968, показанный на рисунке 3.
Изучение назначения, устройства и принципа действия стенда должно быть изучено самостоятельно при помощи учебного пособия [3 с.219 – 221].
Рис. 3 Универсальный стенд КИ-968 для контроля и регулировки электрооборудования тракторов и автомобилей.
Оборудование, приборы и инструмент для ремонта автотракторного электрооборудования.
|
Наименование |
Тип, марка, ГОСТ |
Краткая техническая характеристика, основные размеры, мм |
|
Стенд контрольно-испытательный Стендконтрольно-испытательный для проверки генераторов реле-регуляторов и стартеров Выпрямитель Аппарат намагничивающий Шкаф сушильный Ванна для мойки узлов и деталей Ванна для пропитки обмоток Вольтамперметр переносной Прибор для проверки якорей гене-раторов и стартеров Прибор для проверки системы за-жигания Прибор для очистки и проверки искровых зажигательных свечей Индикатор Комплект приспособлений, прибо-ров и инструмента для техниче-ского обслуживания стартерных аккумуляторных батарей Набор инструмента электрика для ремонта и технического об-служивания электрооборудования (переносной) Микрометр Нутромер индикаторный Штангенциркуль Набор щупов (№5) Линейка измерительная металл. Вилка для изменения натяжения пружин реле-регуляторов Верстак Стеллаж для узлов и деталей Стеллаж для зарядки аккумуля-торных батарей |
КИ-968 532, ГАРО ВСА-5 НА-5-ВИМ Главлаборприбор Соб. изготовл. То же КИ-1093 533, ГАРО ППЗ ГОСНИТИ (КИ-1178) 514-2М, ГАРО ИЧ КИ-389 2444, ГАРО МК-25 НИ-109, НИ-154 ШЦ — 1 — — — Собствен. изгот. То же То же То же |
885х855х1545 680х950х1600 220 В, выпрямлен-ное напряжение 0—64 В, ток 0—12 А 315х115х238 700х580 500х400х250 400х300х250 380х340х190 220В 200х169х179 190х155х180 0 — 10 —— —— 0 — 25 18-35 и 35 — 50 0 — 150 —— 0 — 200 12В и 220В —- 900х2000х1100 900х2000х1100 —- |
Технология ремонта генераторов.
Техническая характеристика генераторных установок.
|
Генератор |
Выпрямитель |
Регулятор |
Номинальное напря-жение, В |
Мощность, Вт |
Применение |
|
Тракторные генераторные установки |
|||||
|
Г302-Б1 Г304 Г304-А1 Г304-Д1 Г305 ГЗ06-Д Г309 Г285 Г275 Г304-Б1 13.3701 46.3701 47.3701 15.3701 |
ВКЗ-10 ВКЗ-10 ВА-10 БПВ-30 ВА-20 БПВ-30 ВА-20 В-150 В-150 ВА-20 ВА-20 ВА-20 ВА-20 ВА-20 |
РР-362-Б РР-362-Б РР-362-Б РР-362-Б РР-362-Б РР-362-Б РР-362-Б РР-362-Б РР-362-Б РР-362-Б Я112Б Я112Б 1РН Я112Б |
12,5 12,5 12,5 12,5 12,5 12,5 12,5 12,5 12,5 12,5 14,0 14,0 14,0/28,0 14,0 |
180 250 400 336 400 336 1000 1000 1000 250 400 700 1000 1000 |
Т-25 Т-4 Т-28, Т-54В, Т-150, СК-6, ЮМЗ-6Л Т-70С, МТЗ-80, МТЗ-82 Т-130 МТЗ-80, МТЗ-82 Т-130 К-700 К-701 Т-150К МТЗ-80, МТЗ-82 Т-150К, ДТ-75, Тр. Тр. кл. 60 кН Т-130, К-701 |
|
Автомобильные генераторные установки. |
|||||
|
29.3701 Г221 Г222 Г250-Е1 Г250-П2 Г250-Д1 Г254 Г250-В2 Г287 Г250-П Г266 Г250-П1 17.3701 Г287-Б Г273 16.3701 32.3701 38.3701 |
БПВ4-45 БПВ6-42 БПВ6-42 БПВ4-45 ВБН-1 БПВ4-45 БПВ4-45 БПВ4-45 ВБГ7-Г БПВ4-45 БПВ4-45 БПВ4-45 БПВ4-45 БПВ7-ЮО БПВ4-45 БВП35-65-02 БПВ46-65-02 БВП7-100-02 |
Я112А РР-380 Я112А РР-350 РР-132 РР-362 Я112А РР-362 РР-132 РР-350-А Я112А Я112А РР-132 РР-356 РР-133 Я112А 1РН |
14,0 14,0 14,0 12,5 12,5 12,5 14,0 12,5 14,0 12,5 14,0 12,5 14,0 14,0 28,0 14,0 14,0 14/28 |
700 616 700 560 560 560 560 560 1160 560 840 560 700 1160 900 900 900 1000 |
М-214 ВАЗ-2121 ВАЗ-2107 УАЗ-469,(452) УАЗ-469, (452А) ГАЗ-52 ГАЗ-52, ГАЗ-53 ГАЗ-66 ГАЗ-66 ГАЗ-53А ПАЗ-672 3ИЛ-130, ММЗ-554 3ИЛ-130 Урал-375 КамАЗ-5320 Ав. ЗИЛ-431410 ГАЗ и 3ИЛ с дизелем |
Характерные неисправности генераторов переменного тока:
Крышки: загрязнение и износ сальников и подшипников, посадочных мест под подшипники, деформация стальных уплотнительных шайб подшипниковых узлов, срыв резьбы.
Контроль состояния:
Рис.1 Электрическая схема измерения напряжения полюсных
обмоток:
СL1 — полюсные катушки проверяемого генератора;
CL2—контрольная обмотка.
Рис. 2 Схема включения приборов при измерении сопротивления:
А — Фаз обмотки статора; О — Нулевая точка фаз; 1, 2, 3 — Зажимы фаз обмотки; 4 —статор; 5 — обмотка статора; 6 — щупы — R1— реостат; S1— включатель; GB— Батарея-.
Б—Обмотки возбуждения; 1—- щупы; 2 — контактные кольца; FU—- предохранитель; S1 — включатель;R1— реостат; GB— батарея.
Рис. 3 Схема проверки диодов блока выпрямителей:
1 – шина «-«; 2, 4 – диоды; 3 – прижим; 5 – шина «+»; 6 – контрольная лампа;
7 – аккумуляторная батарея.
Рис.4 Электрическая схема для проверки ИРН Я112В1
Рис.5 Схема проверки падения напряжения в ИРН Я112А.
Проверка стартера на стенде — Энциклопедия по машиностроению XXL
Проверка стартера на стенде модели 532 (см. рис. 41) выполняется на холостом ходу и в режиме полного торможения. Проверяемый стартер укладывают на призму 6 (рис. 42) зажимного приспособ- [c.151]Проверка стартера на стенде [c.138]
При полном торможении якоря вращающий момент и потребляемый ток достигают максимальных значений, а мощность стартера становится равной нулю.
Контрольные точки для проверки стартера на стенде — это частота вращения, потребляемый ток, напряжение на холостом ходу, вращающий момент, потребляемый ток и напряжение при полном торможении.
[c.225]Чтобы убедиться в эффективности работы стартера, необходимо проверить на стенде его электрические и механические характеристики. Электрическая схема соединений для проверки стартера на стенде показана на рис. 162. Присоединительные провода к источнику тока, амперметру и контактному болту тягового реле стартера должны иметь сечения не менее 16 мм. Стартер должен питаться от полностью заряженной аккумуляторной батареи, температура при проверках должна быть (25 5) С, а щетки дол>кны быть хорошо притерты к коллектору. [c.173]
Проверка стартера на холостом ходу производится после закрепления его на стенде и подключения к схеме стенда (рис. 28). Переключатели устанавливаются в следующие положения вольтметр — PH 20 В или 40 В (в зависимости от напряжения стартера), напряжение батарей — 12 В или 24 В , нагрузка — Проверка , показание амперметра — 200 А СТ.
После нажима на кнопку включения стартера измеряется частота вращения якоря стартера ручным тахометром, сила тока и напряжение. Результаты измерений должны соответствовать данным табл. 96.
[c.182]
При ремонте узлов и агрегатов также может быть использовано диагностическое оборудование. Это стенды для проверки амортизаторов, карбюраторов, стартеров, генераторов, распределителей зажигания, двигателей, коробок передач и др. Проверка агрегатов на стендах может производиться до ремонта как диагностическая операция и после ремонта как контрольная. Проверку до ремонта, как правило, выполняют рабочие или мастера производственного участка, а после ремонта — контролеры БДК. [c.112]
Испытание стартера на стенде модели 532 осуществляют только в режимах полного торможения и холостого хода. Для проверки стартер 4 (рис. 82) устанавливают на призму 6 стола 8 и закрепляют стартер винтом 2 с последующим креплением контргайки I. Винт входит в гайку скобы 3.
При испытании стартера в режиме полного торможения на шестерню привода стартера устанавливают рычаг 5, а на столе 8 динамометр 7. Для испытания стартеров мощ-178
[c.178]
Рис, 84. Установка стартера на стенд модели 532 для проверки [c.175]
Ремонт стартера. Если есть сомнения в эффективности работы стартера, необходимо проверить его на стенде с включением по схеме согласно рис. 161. При проверке используются хорошо заряженная аккумуляторная батарея, вольтметр постоянного тока со шкалой 0—30 В, амперметр с шунтом до 100 А, тахометр и динамометр. Температура стартера должна быть 25 3 °С, а щетки хорошо притерты к коллектору. [c.223]
Работу генератора, снятого с автомобиля, проверяют на стенде модели 523 (рис. 41). Стенд предназначен для проверки генераторов, реле-регуляторов и стартеров, устанавливаемых на автобусах и дизельных автомобилях.
На панели стенда размещены амперметр 17, вольтметр /2 и тахометр — омметр 15, а также необходимые переключатели, гнезда и зажимы для присоединения испытуемых приборов
[c.147]
Однако при такой проверке невозможно определить повышенное падение напряжения на щетках стартера. Для обнаружения этой неисправности после небольшого перерыва (20—30 с) снова подают питание на стартер и затормаживают его полностью. Быстро фиксируют по приборам на стенде напряжение питания U и ток стартера /т и отключают питание. Затем вычисляют отношение U t/It и отношение этих же величин, нормируемых для данного типа стартера. Если отношение измеренных величин не больше отношения нормируемых величин, электродвигатель стартера исправен. В противном случае имеет место повышенное сопротивление на щетках. [c.171]
Приборы и приспособления контрольный стенд или (при отсутствии стенда) тиски амперметр с шунтом вольтметр тахометр. Электрическая схема включения стартера для проверки приведена на рис.
171.
[c.257]
Проверку якоря стартера на межвитковое замыкание обмотки проводят на стенде (рис. 172). Якорь укладывают на шариковые подшипники стенда, а трансформатор стенда включают в сеть переменного тока напряжением 120 и 220 в. Затем на железо якоря вдоль оси накладывают тонкую стальную пластину и, медленно проворачивая якорь и придерживая при этом пластину от проворачивания вместе с якорем, наблюдают за пластиной. При наличии межвиткового замыкания пластина начинает вибрировать и притягивается соответствующим пазом якоря. [c.260]
После ремонта отдельных деталей и узлов осуществляют сборку генераторов и стартеров и их испытание в соответствии с техническими условиями. Перед испытанием генераторы рекомендуется обкатать на стенде в течение 3—5 мин при частоте вращения якоря 1500—2000 мин и нагрузке 10—14 А. Генераторы испытывают на стенде в режиме электродвигателя (генераторы постоянного тока), в генераторном режиме, а также на кратковременное повышение частоты вращения якоря.
При испытании на режиме электродвигателя генератор питается от аккумуляторной батареи или от низковольтного агрегата постоянного тока. Осуществляют проверку качества сборки и правильность электрических соединений. Якорь генератора должен бесшумно вращаться в установленном направлении. Вращение в противоположную сторону указывает, что неправильно соединены обмотки возбуждения или щеток. Силу потребляемого тока измеряют после 2—3-минутной работы генератора и она должна соответствовать техническим условиям.
[c.197]
После разборки или ремонта стартер проверяют на холостом ходу и при полном торможении. Эти проверки выполняют на контрольно-испытательных стендах (КИ-968 моделях 532 М, 2214). Аккумуляторная батарея для проверки должна соответствовать требованиям по емкости и быть заряженной не менее чем на 75 %. [c.229]
Стенд. передвижной для проверки электрооборудования Ш7 Для проверки 1112-вольтового электрооборудования непосредственно на машине мощность проверяемых генераторов постоянного тока до 500 кВт, стартеров до 2 л.
с.
[c.157]
Во время проверки генератора, стартера и прерывателя-рас-пределителя на контрольно-испытательных стендах необходимо правильно центрировать и надежно закреплять их в зажимных устройствах во избежание поломок механизмов и нанесения травм работающим. [c.65]
На рис. 11.3 изображены кривые изменения вторичного напряжения при отсутствии искрового разряда, например при работающем двигателе провод высокого напряжения отсоединен от свечи (кривая /), и при пробое воздушного зазора в свече (кривая 2). Такой характер кривых вторичного напряжения можно увидеть на осциллографе диагностических стендов для проверки систем зажигания. Напряжение, необходимое для пробоя воздушного зазора свечи, так называемое пробивное напряжение, во многом зависит от режима работы двигателя. У двигателя, работающего на больших частотах вращения с полной нагрузкой, пробивное напряжение минимальное (4— 5 тыс. В), а в режимах холодного пуска двигателя — оно максимальное (9—12 тыс.
В). При пуске двигателя катушка зажигания питается от аккумуляторной батареи, напряжение которой понижено из-за потребления стартером большого тока. Пониженное напряжение на катушке зажигания в момент пуска двигателя
[c.113]
На посту регулировки и испытания агрегатов находятся стеллаж для хранения агрегатов, электромонтажный верстак, стенд для проверки генераторов, стартеров, реле-регуляторов, стенд для проверки приборов системы зажигания. [c.16]
Проверка и регулировка приборов электрооборудования на контрольно-испытательном стенде. Наиболее широко распространен стенд 532]М, с помощью которого производится проверка генераторов мощностью до 2 кВт переменного и постоянного тока, стартеров мощностью до [c.179]
Переключатель полярности массы стенда устанавливают в положение масса , переключатель батарей в положение проверка , переключатель вольтметра в положение PH в секторе масса + и переключатель амперметра в положение 2000 а .
Затем нажимают на кнопку включения стартера и через 3—4 сек читают показания амперметра и динамометра. Показания приборов сравнивают с данными табл. 10.
[c.179]
Проверка работы и регулировка стартеров. Стенд для испытания стартеров (рис. 151) позволяет испытывать стартеры в режиме холостого хода, в режиме полного торможения и при различных нагрузках, а также проверять муфту свободного хода на пробуксовку. [c.328]
Момент включения стартера СТЮЗ (двигатель ЯМЗ-236) регулируют тем же способом. Различие заключается в том, что контактное кольцо 2 (см, рис. 62) должно замыкать главные контакты 1 тягового реле, когда зазор между упорным кольцом 14 и шестерней 13 находится в пределах 11,7—16 мли Проверку стартера на стенде модели 532 (см, рис, 80) выпол-няю Т1а х лостом ходу и в режиме полного торможения. Проверяемый стартер укладывают на призму 6 (рис. 84) зажимного приспособления стенда и закрепляют винтом за маховичок 1 с контргайкой 2.
[c.175]
V. При каком техническом обслуживании необходимо снять с двигателя стартер, разобрать его для проверки состояния коллектора, щеток и контактов реле стартера собрать стартер, проверить регулировку хода щестерии привода, проверить работу стартера на стенде в режиме холостого хода и полного торможения установить стартер на двигатель [c.79]
Устройство, которым снабжен стенд Э240, позволяет проверять стартер в режиме полного торможения при напряжении большем задаваемого техническими условиями на стартер (см. табл. 8.1). Стенд снабжен шестерней, которая имитирует маховик двигателя, и тормозным устройством, которое обеспечивает плавное торможение имитационной шестерни. Проверку осуществляют следующим образом. Подают питание на стартер, и он начинает вращать имитационную шестерню без нагрузки. Затем тормозом постепенно затормаживают имитационную шестерню, а вместе с ней и якорь стартера и внимательно следят по прибору на стенде за током стартера.
Торможение увеличивают до тех пор, пока ток не достигнет значения, заданного для режима полного торможения. В этот момент также по прибору на стенде фиксируют величину крутящего момента. Так как напряжение питания больше необходимого значения, полного торможения стартера в этом случае не будет. Величину крутящего момента, полученную при испытании, сравнивают с заданным значением (см. табл. 8.1), и если оно не меньше заданного, то стартер исправен.
[c.171]
Универсальный контрольно-испытательный стенд модели КИ-968 для проверки автотракторного электрооборудования. Стенд предназначен для испытания и регулировки электровборудования автомобилей, тракторов и комбайнов. На стенде испытывают генераторы постоянного тока до 500 вт, напряжением 6, 12 и 24 в, генераторы переменного тока, реле-регуляторы, стартеры мощностью до [c.171]
Работу генератора, снятого с автомобиля, проверяют на стенде модели 532 (рис. 80). Стенд предназначен для проверки генераторов, реле-регуляторов и стартеров, устанавливаемых на автобусах и дизельных автомобилях.
На панели стенда размещены амперметр 17, вольтметр 12 и тахометр-омметр 15, а также необходимые переключатели, гнезда и зажимы для присоединения испытуемых приборов электрооборудования. Внутри стенда размещены электродвигатель трехфазного переменного тока мощностью 4,5 кет, клиноременный вариатор, позволяющий плавно увеличивать скоросгь вращения приводной муфты стенда от О до 5 000 об/мин, ползунковый реостат нагрузки, управляемый рукоят-кой 2, а также две аккумуляторные батареи типа 6-СТ-68 и селеновый выпрямитель, используемый при проверке генераторов переменного тока. Подъемно-поворотный стол 22 позволяет точно совмещать ось вала проверяемого генератора с осью приводной муфты стенда.
[c.167]
Проверка стартера. Перед ремонтом стартер проверяют на автомобиле в режиме полного торможения с помошью амперметра и вольтметра. Питание стартера электрическим током во время проверки осуществляется от хорошо заряженной аккумуляторной батареи, Перед проверкой между стартером и аккумуляторной батареей включают шунт.
Эффективная проверка стартера, снятого с автомобиля, производится на испытательных стендах Э-211, 532М и др.
[c.197]
Проверка на хчзлостом ходу осушествляется с помощью ручного тахометра, прилагаемого к стенду. Стартер соединяют с аккумуляторной батареей стенда и, приставив тахометр к выходному концу вала якоря, замеряют скорость его вращения и ток, потребляемый стартером. Стартер СИЗО должен потреблять ток небо-лее 80 а при 3000 об1мин, а стартер СТЮЗ не более 1 Ю а при 5000 об мин. [c.152]
Проверка основных параметров стартеров. Проверка может пронзБОДиться на испытательных стендах моделей Э-211, 532М или аналогичных. Стартер проверяют в двух испытательных режимах холостого хода и полного торможения. При том и другом режиме питание стартера электрическим током осуществляется от полностью заряженной аккумуляторной батареи 1 (рис. 25). В цепь между стартером 6 и батареей включен амперметр 3 со сменными шунтами 4, применение которых обеспечивает возможность измерения сравнительно малых токов в режиме холостого хода и больших токов в режиме полного торможения.
Напряжение, приложенное к стартеру, измеряется вольтметром 2, включенным между выводным болтом реле или включателя стартера и массой.
[c.50]
После проверки и ремонта отдельных деталей генератор собирают и подвергают испытанию на специальном контрольноиспытательном стенде (рис. 166). Этот стенд является универсальным и позволяет производить испытание генераторов, приборов зажигания и стартеров. [c.283]
Электронный стенд модели Э-205. Стенд предназначен для проверки технического состояния непосредственно на автомобиле генераторов, стартеров, реле-регуляторов, аккумуляторных батарей с номинальным напряжением 12 В, систем зажигания 4-, 6- и 8-ци-ликдровых двигателей. Он позволяет наблюдать электрические процессы в цепях системы зажигания с помощью осциллографа. [c.209]
Ремонт и испытание генераторов постоянного тока
Категория:
Практика ремонта машин
Публикация:
Ремонт и испытание генераторов постоянного тока
Читать далее:
Ремонт и испытание генераторов постоянного тока
Цель работы.
1. Изучить способы обнаружения дефектов обмоток возбуждения и якоря.
2. Получить практические навыки по испытанию генератора.
3. Дать анализ рабочим характеристикам генератора.
Задание.
1. Ознакомиться с оснащением рабочего места.
2. Испытать генератор в электродвигательном режиме.
3. Разобрать его на узлы.
4. Проверить обмотки возбуждения и якорь на обрыв, витковое замыкание и замыкание на массу.
5. Собрать генератор и снова испытать его в электродвигательном режиме и без нагрузки.
6. Испытать генератор при его работе на аккумуляторную батарею и нагрузку.
7. Снять характеристики генератора при его работе: а) на аккумуляторную батарею и б) параллельно на батарею и нагрузку.
Оснащение рабочего места.
Рекламные предложения на основе ваших интересов:
Рис. 1. Электрическая схема проверки генератора на стенде КИ-968
Содержание и порядок выполнения работы.
Для определения электрических и механических неисправностей генератора его испытывают в режиме электродвигателя на стенде КИ-968.
Установив генератор со снятой защитной лентой на призмы стенда и закрепив его кронштейном 33, ставят переключатели 20 (1П) и 28 (2Т) соответственно в положение «Генератор» и «30 А», а штекеры 46 (ЗП) и 1 (4П) в гнезда, соответствующие полярности и напряжению испытываемого генератора (рис. 79 и 92).
Рукоятку регулировочного реостата устанавливают в крайнее правое положение, а выводные клеммы якоря и обмотки возбуждения соединяют с клеммами стенда. В зависимости от полярности генератора обмотка якоря может быть присоединена к клемме.
Поставив переключатель (2П) в положение «Батарея», после трехминутной работы генератора по амперметру определяют величину тока, потребляемого генератором, и наблюдают за искрением под щетками.
Сильное искрение может быть вызвано неплотным прилеганием щеток к коллектору, износом коллектора или щеток и обрывом обмотки якоря.
Повышенная величина тока может быть вызвана коротким или межвитковым замыканием в обмотке возбуждения или в обмотке якоря.
Генератор с обнаруженными неисправностями разбирают на узлы, которые также проверяют.
В обмотках возбуждения генератора могут быть следующие повреждения: обрывы (в обмотке, в перемычке или выводе катушки), нарушение наружной изоляции, межвит-ковое замыкание и замыкание обмотки возбуждения на «массу».
Прежде чем разбирать полюсные башмаки, необходимо выявить указанные повреждения.
Обрыв в обмотке возбуждения обнаруживают внешним осмотром или контрольной лампочкой, присоединяемой к выводным концам обмотки.
Межвитковое замыкание определяют по сопротивлению обмоток, замеряемому омметром или амперметром и вольтметром. Этот вид дефекта определяют также по нагреву катушки, помещенной на бруске из мягкой стали в переменное поле, создаваемое индукционным аппаратом.
Снимают катушки возбуждения на специальном прессе, отвернув пресс-отверткой винты башмаков.
Для проверки замыкания обмотки возбуждения на «массу» отсоединяют конец обмотки от положительной щетки, а контрольную лампочку присоединяют к клемме М и корпусу генератора. Горение лампочки указывает на замыкание обмотки на «массу».
При обрывах в обмотке возбуждения скручивают и спаивают проводники с последующей изоляцией места спайки.
Якорь генератора может иметь механические и электрические неисправности. К числу первых относят задиры и сдвиги пластин железа якоря, износ посадочных мест под подшипники и износ шпоночной канавки.
Неисправности в обмотке якоря — обрывы в секции обмотки, замыкание коллектора на «массу» обмотки якоря, частичное или полное межвитковое замыкание, межламельное замыкание.
Наиболее распространенный способ проверки якорных обмоток основан на наведении э. д. с. в испытуемой обмотке с помощью индукционного аппарата и измерении ее миллиамперметром, подключенным к коллекторным пластинам (ламелям).
При проверке обмоток якоря необходимо, чтобы щупы миллиамперметра всегда находились в положении, когда в витках исправной обмотки возникает наибольшая электродвижущая сила, как это показано на рисунке. Это положение сохраняют при проверке всех обмоток, для чего якорь в процессе испытаний поворачивают.
Если в проверяемой секции имеется обрыв, то стрелка миллиамперметра не отклоняется. Такое же показание будет и при полном (межламельном) замыкании обмотки.
Для точного установления характера повреждения без изменения положения якоря, при котором показание миллиамперметра было равно нулю, вдоль паза проверяемой обмотки накладывают стальную пластину. Если в пазу расположена секция, имеющая замыкание, то в ней индуктируется переменный ток, создающий местное переменное магнитное поле, которое вызывает притяжение и вибрацию стальной пластины.Частичное замыкание секции определяют как по показанию миллиамперметра (оно ниже, чем на исправных секциях), так и по дребезжанию стальной пластины.
Рис. 2. Схема испытания катушки на индукционном аппарате:
1 — индукционный аппарат; 2 — железный сердечник; 3 — испытываемая катушка.
Рис. 3. Схема проверки обмотки якоря на индукционном аппарате:
1 — индукционный аппарат; 2 — проверяемый якорь; 3 — стальная пластина; 4 — миллиамперметр.
Замыкание якоря на «массу может происходить вследствие нарушения изоляции в пазах обмотки (замкнута секция) или повреждения изоляции коллектора (замкнут коллектор). Поэтому особо важно определить причину замыкания и, следовательно, точно установить объем ремонтных работ. Замыкание на «массу» якоря определяют контрольной лампочкой, включенной в сеть переменного тока (220 В), причем щупы присоединяют к коллектору и валу якоря.
Место замыкания на «массу» находят при установке вилки миллиамперметра на вал якоря и коллектор (положение вилки в плоскости, как это указывалось выше). При проворачивании якоря в ярме включенного индукционного аппарата в месте замыкания на «массу» показания миллиамперметра будут равны нулю.
Затем отпаивают секции от ламелей, против которых показания миллиамперметра были равны нулю, и по контрольной лампочке устанавливают, замкнут коллектор или обмотка секции.
Повреждения обмотки и коллектора (отпайка концов секций от пластин, наружный обрыв, наружное замыкание пластин) устраняют пайкой и прочисткой коллекторных пластин.
При внутренних повреждениях (частичном замыкании, замыкании секции обмотки на «массу» и внутреннем обрыве витков) требуется перемотка обмотки якоря.
Ускоренный износ щеток большей частью вызывается увеличенным искрением под щетками, которое возникает при обрыве обмотки якоря, уменьшенном давлении пружины щеткодержателей, зависании щеток, выступании изоляции (миканита) между коллекторными пластинами, местной выработке и замасливании коллектора.
При сборке новую меднографитовую щетку устанавливают в реактивный щеткодержатель так, как это показано на рисунке 95. В щеткодержателе ее устанавливают не по радиусу коллектора, а повертывают нижней частью против его вращения на определенный угол (26—28°) и прижимают пружиной к передней стенке щеткодержателя.
Реакция силы трения Rrp, действующая на щетку со стороны коллектора, уменьшает давление щетки на переднюю стенку щеткодержателя и снижает ее трение о поверхность щеткодержателя, благодаря чему щетка более точно копирует поверхность коллектора и не отрывается от него даже при большой скорости вращения якоря. При этом снижаются вибрации и искрение щетки.
Перед установкой щетки ее притирают по коллектору стеклянной бумагой.
После установки щетки в щеткодержатель ручным динамометром определяют ее давление на коллектор.
Показание динамометра фиксируют в момент освобождения тонкой бумажной полоски, которую помещают между коллектором и щеткой. В случае потери пружиной упругости ее заменяют. Причины, вызывающие неисправность коллектора, следующие: неравномерный электроэрозионный износ рабочей поверхности, повреждение изоляции между коллекторными пластинами (межламельное замыкание) и нарушение изоляции между втулкой коллектора и пластинами (замыкание коллектора на «массу»).
Рабочую поверхность коллектора восстанавливают проточкой на токарном станке, зачисткой тонкой стеклянной бумагой и углублением изоляции (миканита).
Допускаемая величина уменьшения диаметра коллектора обычно составляет 4 мм.
При нарушении изоляции коллектор спрессовывают, разбирают его и заменяют миканитовую или прессшпановую изоляцию. Собранный после ремонта генератор испытывают и обкатывают в режиме электродвигателя.
При этом необходимо убедиться в отсутствии механических и электрических повреждений генератора в той последовательности, как это указывалось выше. Начальную скорость возбуждения генератора без нагрузки проверяют, предварительно установив минимальную частоту вращения (550—600 об/мин) выходного вала привода генератора.
Рис. 4. Щеткодержатель реактивного типа:
1 — щетка; 2 — передняя стенка; 3 — медный канальчик; 4 — рычаг; 5 — корпус; 6 — ось рычага; 7 — пружина рычага.
Вывод якоря и обмотки присоединяют соответственно к клемме 36 (при другой полярности — к клемме 39) и гнезду 35 (рис. 79 и 92), переключатель 20 (/77) вольтметра ставят в положение «Генератор», а штеккер 46 (ЗП) включают в гнездо, соответствующее полярности генератора. Переключатель 41 (2П) устанавливают в положение «Реостат» (рис. 79 и 92). Рукоятку 14 регулировочного реостата перемещают в крайнее правое положение и включают электродвигатель стенда.
Плавно увеличивают частоту вращения якоря до тех пор, пока вольтметр стенда не покажет расчетное напряжение генератора.
Проверяют частоту вращения якоря генератора при его работе на номинальную нагрузку. Схема соединения генератора со стендом и положение переключателя и штекера остаются прежними. Рукоятки регулировочного и нагрузочного реостатов перемещают соответственно в крайнее правое и левое положение. Переключателем включают нагрузочный реостат, а включателем 28 (2Т)— шунт амперметра на 30 А и запускают электродвигатель стенда. Плавно увеличивая частоту вращения вала генератора рукояткой 30, создают необходимую нагрузку. По достижении номинальных напряжения и нагрузки (контролируют вольтметром и амперметром) по тахометру стенда определяют частоту вращения якоря генератора.
Вначале снимают рабочую характеристику при работе генератора на аккумуляторную батарею (нагрузочный реостат стенда отключен).
Включив электродвигатель стенда, плавно повышают частоту вращения якоря и одновременно замеряют ток и напряжение генератора, а также ток возбуждения. До включения реле обратного тока указанные выше замеры проводят через каждые 100 об/мин.
Включив реле обратного тока, проводят два замера: вначале регистрируют частоту вращения, напряжение генератора и ток обмотки возбуждения при отсутствии зарядного тока батареи, а затем, вторично установив обороты замыкания реле, проводят замер указанных выше величин при зарядном токе батареи.
После включения реле все замеры проводят через каждые 400— 500 об/мин до достижения максимальной частоты вращения якоря генератора.
Методика проведения замеров тока и напряжения, тока нагрузки и тока батареи аналогична снятию рабочей характеристики генератора при его работе на аккумуляторную батарею.
Рис. 5. Схема соединений для снятия рабочих характеристик генератора.
Отчет о работе.
1. Записывают марку генератора.
2. Записывают марку реле-регулятора.
3. Дают схему испытания генератора.
4. Приводят журнал испытания генератора. Форма журнала показана на предыдущей странице.
5. Записывают данные замеров при снятии рабочих характеристик генератора по следующей форме: мо иметь следующее: стартеры с непосредственным и дистанционным управлением; динамометр на 120 Н, аккумуляторные батареи, соответствующей емкости; калибры; включатели стартера; зажимное приспособление со стойкой для динамометра.
Рекламные предложения:
Читать далее: Определение технического состояния и регулировка контрольно-измерительных приборов
Категория: — Практика ремонта машин
Главная → Справочник → Статьи → Форум
Стенд — модель — Большая Энциклопедия Нефти и Газа, статья, страница 1
Стенд — модель
Cтраница 1
Стенд модели 2467 ГАРО ( рис. 7.1) в отличие от стенда 2422 ГАРО — стационарный. Отжим бортового кольца производится с помощью гидравлического привода, имеется также механическое устройство для снятия и установки замочного кольца, приводимое в действие электродвигателем. [2]
Стенд модели 6004 — 54 такой же по конструкции и отличается от стенда модели 903 — 67 размерами и конфигурацией опорных кронштейнов. Для крепления двигателей Москвич и Шкода применяются опорные кронштейны разной конфигурации. При необходимости стенд может быть оборудован двумя одинаковыми кронштейнами для разборки двигателей только одной марки. В конструкцию стенда модели 6004 — 54 входит также гайковерт, подвешенный на пружинной подвеске к поворотной консоли, расположенной по оси стенда. [3]
Стенд модели КИ-968 служит для определения технического состояния и регулировки автотракторного электрооборудования в условиях ремонтной мастерской. [4]
Отличия стенда модели 34 — 1 111 от стенда модели 702 — 2Ы заключаются в том, что у стенда модели 904 — 11 привод поворота не электромеханический, а гидравлический от индивидуаль-ой насосной станции. Гидравлическая система стенда оборудована устройствами, редохраняющими систему — от перегрузки и дающими возможность регулировать орость поворота рамы. [5]
Испытание стартера на стенде модели 532 осуществляют только в режимах полного торможения и холостого хода. [6]
Проверка стартера на стенде модели 532 ( см. рис. 41) выполняется на холостом ходу и в режиме полного торможения. [7]
Более совершенную конструкцию имеет стенд модели Ш-153, предназначенный также для демонтажа шин грузовых автомобилей. В этом стенде отжим бортов шины осуществляется ведущими роликами с индивидуальным электроприводом, а снятие бортового и замочного колец и шины с обода производится посредством винтового механизма. Собранные шины с замочными кольцами накачивают в защитном приспособлении. [8]
Испытание генератора нужно проводить на стендах моделей 2214, 532 Новгородского завода треста ГАРО или другом специальном стенде, позволяющем плавно изменять скорость вращения вала испытуемого генератора и измерять напряжение, силу тока, величину нагрузки и число оборотов якоря генератора. [9]
Приборы зажигания рекомендуется проверять на стенде ГАРО модели СПЗ-6 или на универсальном стенде. [10]
Для испытания генераторов и реле-регуляторов применяются также стенды ГАРО моделей 2214, 532 и другие. [12]
После этого генераторы испытывают на одном из стендов моделей КИ-968, 532М, Э-211 и др. Эти стенды позволяют плавно регулировать и измерять частоту вращения вала генератора, измерять силу токов и напряжений, создавать различную нагрузку. При отклонении характеристик от данных табл. 8, 9 генераторы направляют в ремонт. [14]
Отличия стенда модели 34 — 1 111 от стенда модели 702 — 2Ы заключаются в том, что у стенда модели 904 — 11 привод поворота не электромеханический, а гидравлический от индивидуаль-ой насосной станции. Гидравлическая система стенда оборудована устройствами, редохраняющими систему — от перегрузки и дающими возможность регулировать орость поворота рамы. [15]
Страницы: 1 2
| Наименование учебных предметов, курсов, дисциплин (модулей), практики, иных видов учебной деятельности, предусмотренных учебным планом образовательной программы | Наименование специальных помещений и помещений для самостоятельной работы | Оснащенность специальных помещений и помещений для самостоятельной работы | Адрес (местоположение) помещений для проведения всех видов учебной деятельности, предусмотренной учебным планом (в случае реализации образовательной программы в сетевой форме дополнительно указывается наименование организации, с которой заключен договор) |
| Научные исследования в агроинженерии | Учебная аудитория №3а/5г. Учебная аудитория для проведения занятий лекционного типа, для проведения занятий семинарского типа, для курсового проектирования (выполнения курсовых работ), для групповых и индивидуальных консультаций, для текущего контроля и промежуточной аттестации | Специализированная мебель: сейф – 1 шт., скамейка – 18 шт., стол аудиторный – 11 шт., кафедра – 1 шт., стол однотумбовый – 1 шт., вешалка стоячая, стул мягкий – 1 шт. Технические средства обучения: доска аудиторная – 1 шт. Программное обеспечение: нет. Специальное лабораторное оборудование и иное оборудование: стенд обкаточно-тормозной КИ5442 – 1 шт., усилитель ТДМ-317-У2 – 1 шт., виброметр – 1 шт., датчик вибрации – 1шт., датчик линейного перемещения – 1 шт., датчик силоизмерительный – 1 шт., датчик силы растяжения, модель TS21 – 1 шт., тензодатчик – 1 шт., осциллограф C1-74 – 1 шт. | 295492, Республика Крым, г. Симферополь, пгт. Аграрное |
| Учебная аудитория №3а/27. Учебная аудитория для проведения занятий лекционного типа, для проведения занятий семинарского типа, для курсового проектирования (выполнения курсовых работ), для групповых и индивидуальных консультаций, для текущего контроля и промежуточной аттестации. | Специализированная мебель: скамейка – 23 шт., стол – 15 шт., доска аудиторная – 1 шт., кресло гобеленовое – 2 шт., сейф – 1 шт. Технические средства обучения: верстак – 12 шт. Программное обеспечение: нет. Специальное лабораторное оборудование и иное оборудование: машина для контактно-точечной сварки МТ-2202 – 1 шт., машина полировальная – 1 шт., машина разрывная МР-500 – 1 шт., станок – 2 шт., печь вакуумная СШВ-1 – 1 шт., пособия (электросварка, материаловед., научное) – 3 шт., пресформы – 4 шт., полуавтомат подачи сварочной проволоки в комплекте с роликами под порошковую проволоку 1,6…2,0мм -1 шт., сварочная горелка – 1 шт., выпрямитель сварочный в комплекте с паянными и прессованными кабелями управления, силового и “земля” 5 метров, разъемы ШР-32 и прищепки, сетевой кабель 10 метров и комплектом наплавочных порошковых проволок твердостью не ниже 60HRC -1 шт., пресс (гидрав.П-200,П-125,ОКС-167ЕМ гидропресс) – 1 шт., пресс (гидрав.П-200,П-125,ОКС-167ЕМ гидропресс) -1 шт., сварочная маска – 1 шт., пирометр “Проминь”- 1 шт., станок точильный ЭК-631 – 1 шт., трансформатор сварочный ТДМ200 – 1 шт., установка (хромир. ОГ-1349-А, КИ-22205, ОРГ-4990Б,ОП) – 1 шт. | 295492, Республика Крым, г. Симферополь, пгт. Аграрное | |
| Охрана труда в отрасли | Учебная аудитория №3а/14. Учебная аудитория для проведения занятий лекционного типа, для проведения занятий семинарского типа, для курсового проектирования (выполнения курсовых работ), для групповых и индивидуальных консультаций, для текущего контроля и промежуточной аттестации. | Специализированная мебель: парта ученическая – 11 шт., стул ученический – 22 шт., доска меловая – 1 шт., стол преподавательский – 1 шт, тумба приставная – 2 шт, стул полумягкий – 1 шт. Технические средства обучения: плакаты демонстрационные- 30 шт, средства защиты респираторов – 5 шт, противогаза-4 шт. Программное обеспечение: нет. Специальное лабораторное оборудование и иное оборудование: Анемометры чашечные-2 шт, лепесиковы-1 шт. | 295492, Республика Крым, г. Симферополь, пгт. Аграрное |
| Анализ технологических систем | Учебная аудитория №2/408. Учебная аудитория для проведения занятий лекционного типа, для проведения занятий семинарского типа, для курсового проектирования (выполнения курсовых работ), для групповых и индивидуальных консультаций, для текущего контроля и промежуточной аттестации. | Специализированная мебель: доска аудиторная – 1 шт., стол аудиторный-1 шт., стол-парта-12 шт., стул мягкий-1 шт. Технические средства обучения: нет. Программное обеспечение: нет. Специальное лабораторное оборудование и иное оборудование: – | 295492, Республика Крым, г. Симферополь, пгт. Аграрное |
| Учебная аудитория №2/406. Учебная аудитория для проведения занятий лекционного типа, для проведения занятий семинарского типа, для курсового проектирования (выполнения курсовых работ), для групповых и индивидуальных консультаций, для текущего контроля и промежуточной аттестации. | Специализированная мебель: доска аудиторная-1 шт., стол аудиторный-1 шт., стул мягкий-1 шт., стол парта-15 шт. Технические средства обучения: нет. Программное обеспечение: нет. Специальное лабораторное оборудование и иное оборудование: математическое наглядное пособие – 1шт | 295492, Республика Крым, г. Симферополь, пгт. Аграрное | |
| Учебная аудитория №2/403. Учебная аудитория для проведения занятий лекционного типа, для проведения занятий семинарского типа, для курсового проектирования (выполнения курсовых работ), для групповых и индивидуальных консультаций, для текущего контроля и промежуточной аттестации. | Специализированная мебель: доска аудиторная -1 шт., стол аудиторный – 1 шт., стул мягкий – 1 шт., парта с лавками – 15 шт. Технические средства обучения: нет. Программное обеспечение: нет. Специальное лабораторное оборудование и иное оборудование: металлическое математическое наглядное пособие – 1шт | 295492, Республика Крым, г. Симферополь, пгт. Аграрное | |
| Изобретательская деятельность и патентоведение | Учебная аудитория №3а/10. Учебная аудитория для проведения занятий лекционного типа, для проведения занятий семинарского типа, для курсового проектирования (выполнения курсовых работ), для групповых и индивидуальных консультаций, для текущего контроля и промежуточной аттестации. | Специализированная мебель: стол аудиторный – 16 шт., стол- парта – 6 шт., стол однотумбовый – 1 шт., скамейка – 12 шт. Технические средства обучения: верстак – 2 шт., доска аудиторная -1 шт. Программное обеспечение: нет. Специальное лабораторное оборудование и иное оборудование: пресс гидравлический ОКС167ЕМ – 1 шт., стенд ОРК 2700 – 1 шт., стенд КИ 968 – 1 шт., балансировочный станок КИ-4274- 1 шт., стенд ДПТ-21/4-С2- 1 шт., стенд КИ-5278 – 1 шт., станок 2Е78П-2099 – 1 шт. | 295492, Республика Крым, г. Симферополь, пгт. Аграрное |
| Учебная аудитория №3а/5г. Учебная аудитория для проведения занятий лекционного типа, для проведения занятий семинарского типа, для курсового проектирования (выполнения курсовых работ), для групповых и индивидуальных консультаций, для текущего контроля и промежуточной аттестации. | Специализированная мебель: сейф – 1 шт., скамейка – 18 шт., стол аудиторный – 11 шт., кафедра – 1 шт., стол однотумбовый – 1 шт., вешалка стоячая, стул мягкий – 1 шт. Технические средства обучения: доска аудиторная – 1 шт. Программное обеспечение: нет. Специальное лабораторное оборудование и иное оборудование: стенд обкаточно-тормозной КИ5442 – 1 шт., усилитель ТДМ-317-У2 – 1 шт., виброметр – 1 шт., датчик вибрации – 1шт., датчик линейного перемещения – 1 шт., датчик силоизмерительный – 1 шт., датчик силы растяжения, модель TS21 – 1 шт., тензодатчик – 1 шт., осциллограф C1-74 – 1 шт. | 295492, Республика Крым, г. Симферополь, пгт. Аграрное | |
| Психология управления | Учебная аудитория №1/418. Учебная аудитория для проведения занятий семинарского типа, для курсового проектирования (выполнения курсовых работ), для групповых и индивидуальных консультаций, для текущего контроля и промежуточной аттестации | Специализированная мебель: стол аудиторный – 15 шт., скамья аудиторная – 15 шт., стол однотумбовый – 1 шт., стул – 1 шт., вешалка для одежды – 1 шт. Технические средства обучения: доска меловая – 1 шт. Программное обеспечение: нет. Специальное лабораторное оборудование и иное оборудование: нет. | 295492, Республика Крым, г. Симферополь, пгт. Аграрное |
| Учебная аудитория №1/532. Учебная аудитория для проведения занятий семинарского типа, для групповых и индивидуальных консультаций, для текущего контроля и промежуточной аттестации. | Специализированная мебель: стол аудиторный – 10 шт., скамейка – 11 шт. Технические средства обучения: доска аудиторная – 1 шт. Программное обеспечение: нет. Специальное лабораторное оборудование и иное оборудование: нет | 295492, Республика Крым, г. Симферополь, пгт. Аграрное | |
| Методология научных исследований | Учебная аудитория №3а/5г. Учебная аудитория для проведения занятий лекционного типа, для проведения занятий семинарского типа, для курсового проектирования (выполнения курсовых работ), для групповых и индивидуальных консультаций, для текущего контроля и промежуточной аттестации. | Специализированная мебель: сейф – 1 шт., скамейка – 18 шт., стол аудиторный – 11 шт., кафедра – 1 шт., стол однотумбовый – 1 шт., вешалка стоячая, стул мягкий – 1 шт. Технические средства обучения: доска аудиторная – 1 шт. Программное обеспечение: нет. Специальное лабораторное оборудование и иное оборудование: стенд обкаточно-тормозной КИ5442 – 1 шт., усилитель ТДМ-317-У2 – 1 шт., виброметр – 1 шт., датчик вибрации – 1шт., датчик линейного перемещения – 1 шт., датчик силоизмерительный – 1 шт., датчик силы растяжения, модель TS21 – 1 шт., тензодатчик – 1 шт., осциллограф C1-74 – 1 шт. | 295492, Республика Крым, г. Симферополь, пгт. Аграрное |
| Учебная аудитория №1/005. Учебная аудитория для проведения занятий семинарского типа, для групповых и индивидуальных консультаций, для текущего контроля и промежуточной аттестации. | Специализированная мебель: стол аудиторный – 16 шт., скамейка – 7 шт., стол двухтумбовый – 1 шт., шкаф – 1 шт., стул винтовой – 18 шт. Технические средства обучения: доска аудиторная – 1 шт. Программное обеспечение: нет. Специальное лабораторное оборудование и иное оборудование: нет. | 295492, Республика Крым, г. Симферополь, пгт. Аграрное | |
| Технология испытаний сельскохозяйственной техники | Учебная аудитория №3а/19. Учебная аудитория для проведения занятий лекционного типа, для проведения занятий семинарского типа, для групповых и индивидуальных консультаций, | Специализированная мебель: столы ученические – 21 шт., стол преподавателя – 1 шт., стулья – 71 шт., шкаф-4 шт. Технические средства обучения: плакаты демонстрационные -10 шт. Программное обеспечение: нет. Специальное лабораторное оборудование и иное оборудование: кабина зерноуборочного комбайна Дойц-фанр – 1 шт. | 295492, Республика Крым, г. Симферополь, пгт. Аграрное |
| Учебная аудитория №3а/18б. Учебная аудитория для проведения занятий семинарского типа, для групповых и индивидуальных консультаций, для текущего контроля и промежуточной аттестации. | Специализированная мебель: столы ученические – 12 шт., стол преподавателя – 1 шт., стулья – 25 шт. Технические средства обучения: интер-активная доска, количество – 1 шт. Программное обеспечение: нет. Специальное лабораторное оборудование и иное оборудование: макет трактораТ-150 – 1 шт., симуляторы с программным обеспечением, тракторов МТЗ-82 – 1 шт и К-744 – 1шт., зерноуборочного комбайна АКРОС-Вектор – 1шт | 295492, Республика Крым, г. Симферополь, пгт. Аграрное | |
| ДПВ1 Информационные технологии в науке и образовании | Учебная аудитория №2/425. Учебная аудитория для проведения занятий лекционного типа, для проведения занятий семинарского типа, для курсового проектирования (выполнения курсовых работ), для групповых и индивидуальных консультаций, для текущего контроля и промежуточной аттестации. Помещение для самостоятельной работы с выходом в сеть «Интернет» и доступом в электронную информационно-образовательную среду ФГАОУ ВО «КФУ им. В.И. Вернадского» | Специализированная мебель: стол аудиторный-15 шт., стол – 15 шт., стул жесткий-13 шт., стул мягкий -14 шт., стул-8 шт., доска аудит – 1шт. Технические средства обучения: системный блок, машина вычислительная электронная персональная – 14шт; монитор View Sonic 21,5” VA2261-8 VIEWSONIC – 14шт; монитор Samsung – 5шт; ПК 667 – 1шт; ПК Celeron 1 (мон. отд.) – 8шт. Программное обеспечение: Microsoft Windows 10 Enterprise 2016 LTSB Специальное лабораторное оборудование и иное оборудование: нет | 295492, Республика Крым, г. Симферополь, пгт. Аграрное |
| Учебная аудитория №2/408. Учебная аудитория для проведения занятий лекционного типа, для проведения занятий семинарского типа, для курсового проектирования (выполнения курсовых работ), для групповых и индивидуальных консультаций, для текущего контроля и промежуточной аттестации. | Специализированная мебель: доска аудиторная – 1 шт., стол аудиторный-1 шт., стол-парта-12 шт., стул мягкий-1 шт. Технические средства обучения: нет. Программное обеспечение: нет. Специальное лабораторное оборудование и иное оборудование: – | 295492, Республика Крым, г. Симферополь, пгт. Аграрное | |
| ДПВ1 Геоинформационные системы и технологии | Учебная аудитория №2/425. Учебная аудитория для проведения занятий лекционного типа, для проведения занятий семинарского типа, для курсового проектирования (выполнения курсовых работ), для групповых и индивидуальных консультаций, для текущего контроля и промежуточной аттестации. | Помещение для самостоятельной работы с выходом в сеть «Интернет» и доступом в электронную информационно-образовательную среду ФГАОУ ВО «КФУ им. В.И. Вернадского» Специализированная мебель: стол аудиторный-15 шт., стол – 15 шт., стул жесткий-13 шт., стул мягкий -14 шт., стул-8 шт., доска аудит – 1шт. Технические средства обучения: системный блок, машина вычислительная электронная персональная – 14шт; монитор View Sonic 21,5” VA2261-8 VIEWSONIC – 14шт; монитор Samsung – 5шт; ПК 667 – 1шт; ПК Celeron 1 (мон. отд.) – 8шт. Программное обеспечение: Microsoft Windows 10 Enterprise 2016 LTSB Специальное лабораторное оборудование и иное оборудование: нет. | 295492, Республика Крым, г. Симферополь, пгт. Аграрное |
| Учебная аудитория №2/408. Учебная аудитория для проведения занятий лекционного типа, для проведения занятий семинарского типа, для курсового проектирования (выполнения курсовых работ), для групповых и индивидуальных консультаций, для текущего контроля и промежуточной аттестации | Специализированная мебель: доска аудиторная – 1 шт., стол аудиторный-1 шт., стол-парта-12 шт., стул мягкий-1 шт. Технические средства обучения: нет. Программное обеспечение: нет. Специальное лабораторное оборудование и иное оборудование: – | 295492, Республика Крым, г. Симферополь, пгт. Аграрное | |
| Профессионально ориентированный курс иностранного языка | Учебная аудитория №1/535. Учебная аудитория для проведения занятий семинарского типа, для групповых и индивидуальных консультаций, для текущего контроля и промежуточной аттестации. | Специализированная мебель: стол аудиторный – 8 шт., скамейка – 8 шт. Технические средства обучения: доска аудиторная – 1 шт. Программное обеспечение: нет. Специальное лабораторное оборудование и иное оборудование: нет. | 295492, Республика Крым, г. Симферополь, пгт. Аграрное |
| Учебная аудитория №1/527. Учебная аудитория для курсового проектирования (выполнения курсовых работ), для групповых и индивидуальных консультаций, для текущего контроля и промежуточной аттестации. | Специализированная мебель: стол лабораторный — 5 шт., стол однотумбовый — 1 шт., стол аудиторный — 4 шт., стул ученический — 7 шт., стул винтовой — 28 шт., шкаф белый медицинский — 2 шт., шкаф вытяжной лабораторный — 1 шт., шкаф различного назначения — 2 шт., сейф — 1 шт. Технические средства обучения: доска меловая -1 шт. Программное обеспечение: нет. Специальное лабораторное оборудование и иное оборудование: весы ВЛР-200 — 2 шт., термостат ТС-80 М — 1 шт. | 295492, Республика Крым, г. Симферополь, пгт. Аграрное | |
| Моделирование технологических процессов и систем | Учебная аудитория №2/425. Учебная аудитория для проведения занятий лекционного типа, для проведения занятий семинарского типа, для курсового проектирования (выполнения курсовых работ), для групповых и индивидуальных консультаций, для текущего контроля и промежуточной аттестации. Помещение для самостоятельной работы с выходом в сеть «Интернет» и доступом в электронную информационно-образовательную среду ФГАОУ ВО «КФУ им. В.И. Вернадского» | Специализированная мебель: стол аудиторный-15 шт., стол – 15 шт., стул жесткий-13 шт., стул мягкий -14 шт., стул-8 шт., доска аудит – 1шт. Технические средства обучения: системный блок, машина вычислительная электронная персональная – 14шт; монитор View Sonic 21,5” VA2261-8 VIEWSONIC – 14шт; монитор Samsung – 5шт; ПК 667 – 1шт; ПК Celeron 1 (мон. отд.) – 8шт. Программное обеспечение: Microsoft Windows 10 Enterprise 2016 LTSB Специальное лабораторное оборудование и иное оборудование: нет. | 295492, Республика Крым, г. Симферополь, пгт. Аграрное |
| Теория и технология восстановления работоспособности машин | Учебная аудитория №3а/9. Учебная аудитория для проведения занятий лекционного типа, для проведения занятий семинарского типа, для курсового проектирования (выполнения курсовых работ), для групповых и индивидуальных консультаций, для текущего контроля и промежуточной аттестации. | Специализированная мебель: стол аудиторный – 37 шт., кафедра – 1шт., стул мягкий – 1 шт., скамейка – 34 шт. Технические средства обучения: верстак – 6 шт., доска аудиторная – 1 шт. Программное обеспечение: нет. Специальное лабораторное оборудование и иное оборудование: приборы №1, 2, 3, 4 – 4 шт., прибор КИ-3333 – 1 шт., прибор КИ-968 (макет) – 1шт., прибор КИ-968 (макет) – 1 шт., стенд КИ968 – 1 шт., установка для диагностики тракторов – 1 шт., КИ-4893 -1 шт., макет прибора ИМФ 2М – 1шт., комплект диагностических средств – 2 шт., сито протирочное – 1 шт., вибросито – 1 шт., смеситель (макет) – 1 шт., стенд КИ 968 (макет) – 1 шт., стенд КИ-921М (макет) – 1 шт., стенд СПЗ8 (стенд проверки зажигания) – 1 шт., трактор Т-54В «Болгар» (макет) – 1шт., прибор ИМФ-2 – 1шт., макет прибора ЭМФП-2 – 1 шт. | 295492, Республика Крым, г. Симферополь, пгт. Аграрное |
| Механико-математические методы исследований | Учебная аудитория №3а/20. Учебная аудитория для проведения занятий лекционного типа, для проведения занятий семинарского типа, для курсового проектирования (выполнения курсовых работ), для групповых и индивидуальных консультаций, для текущего контроля и промежуточной аттестации | Специализированная мебель: стол аудиторный – 20 шт., шкаф книжный-1 шт., стол тумбовый – 3 шт, стол металл – 1 шт, шкаф – 2 шт. Технические средства обучения: монитор 17 «Samsung SM793» – 1шт; ПК Cel 366/32/4,3/SVGA4 – 1шт. Программное обеспечение: нет. Специальное лабораторное оборудование и иное оборудование: датчик (система силоизмерения) – 4 шт.; измеритель ИДЦ-1 – 4 шт.; станок сверлильный М-112 – 1 шт.; установки для изучения – 8 шт.; копер маятниковый КМ-3 – 1шт; машина разрывная, кручения, для испытаний – 4 шт.; пресс П-125 – 1шт.; мост стендометрический ЦТМ-5 (перфоратор ленточный, машинка «Искра») – 1 шт.; верстак слесарный – 1 шт | 295492, Республика Крым, г. Симферополь, пгт. Аграрное |
| Межкультурное взаимодействие | Учебная аудитория №2/402. Учебная аудитория для проведения занятий лекционного типа, для проведения занятий семинарского типа, для курсового проектирования (выполнения курсовых работ), для групповых и индивидуальных консультаций, для текущего контроля и промежуточной аттестации | Специализированная мебель: доска аудиторная-1 шт, стол однотумбовый-1 шт, стол аудиторный20 шт, стул мягкий-1 шт, шкаф книжный-1 шт, сейф-1 шт, скамейка -20 шт Технические средства обучения: нет. Программное обеспечение: нет. Специальное лабораторное оборудование и иное оборудование: нет. | 295492, Республика Крым, г. Симферополь, пгт. Аграрное |
| Проектный менеджмент (в профессиональной деятельности) | Учебная аудитория №1/418. Учебная аудитория для проведения занятий семинарского типа, для курсового проектирования (выполнения курсовых работ), для групповых и индивидуальных консультаций, для текущего контроля и промежуточной аттестации. | Специализированная мебель: стол аудиторный – 15 шт., скамья аудиторная – 15 шт., стол однотумбовый – 1 шт., стул – 1 шт., вешалка для одежды – 1 шт. Технические средства обучения: доска меловая – 1 шт. Программное обеспечение: нет. Специальное лабораторное оборудование и иное оборудование: нет. | 295492, Республика Крым, г. Симферополь, пгт. Аграрное |
| Система точного земледелия | Учебная аудитория №3а/5а. Учебная аудитория для проведения занятий семинарского типа, для курсового проектирования (выполнения курсовых работ), для групповых и индивидуальных консультаций, для текущего контроля и промежуточной аттестации. | Специализированная мебель: столы ученические – 7 шт., стол преподавателя – 1 шт., стулья – 21 шт., шкаф – 1 шт. Технические средства обучения: телевизор- 1 шт., плакаты демонстрационные 5 шт. Программное обеспечение: нет. Специальное лабораторное оборудование и иное оборудование: макеты узлов схм – 4шт стенды лабораторные -1 шт. | 295492, Республика Крым, г. Симферополь, пгт. Аграрное |
| Надежность технологических систем | Учебная аудитория №3а/9. Учебная аудитория для проведения занятий лекционного типа, для проведения занятий семинарского типа, для курсового проектирования (выполнения курсовых работ), для групповых и индивидуальных консультаций, для текущего контроля и промежуточной аттестации. | Специализированная мебель: стол аудиторный – 37 шт., кафедра – 1шт., стул мягкий – 1 шт., скамейка – 34 шт. Технические средства обучения: верстак – 6 шт., доска аудиторная – 1 шт. Программное обеспечение: нет. Специальное лабораторное оборудование и иное оборудование: приборы №1, 2, 3, 4 – 4 шт., прибор КИ-3333 – 1 шт., прибор КИ-968 (макет) – 1шт., прибор КИ-968 (макет) – 1 шт., стенд КИ968 – 1 шт., установка для диагностики тракторов – 1 шт., КИ-4893 -1 шт., макет прибора ИМФ 2М – 1шт., комплект диагностических средств – 2 шт., сито протирочное – 1 шт., вибросито – 1 шт., смеситель (макет) – 1 шт., стенд КИ 968 (макет) – 1 шт., стенд КИ-921М (макет) – 1 шт., стенд СПЗ-8 (стенд проверки зажигания) – 1 шт., трактор Т-54В «Болгар» (макет) – 1шт., прибор ИМФ-2 – 1шт., макет прибора ЭМФП-2 – 1 шт | 295492, Республика Крым, г. Симферополь, пгт. Аграрное |
| Аграрный сервис и информационное обеспечение | Учебная аудитория №2/108. Учебная аудитория для проведения занятий семинарского типа, для курсового проектирования (выполнения курсовых работ), для групповых и индивидуальных консультаций, для текущего контроля и промежуточной аттестации. | Специализированная мебель: скамейка – 8 шт., стул мягкий – 2 шт., стол лабораторный -3 шт., стол аудиторный – 7 шт., стол однотумбовый – 2 шт. Технические средства обучения: верстак -3 шт., доска аудиторная – 1 шт. Программное обеспечение: нет. Специальное лабораторное оборудование и иное оборудование: насос топливный -стенд КИ-22205 – 1шт, стенд ОР-5227 – 1шт, стенд КИ-22203 М- 1 шт, сейф 3 шт. | 295492, Республика Крым, г. Симферополь, пгт. Аграрное |
| Учебная аудитория №3а/17б. Учебная аудитория для проведения занятий лекционного типа, для проведения занятий семинарского типа, для курсового проектирования (выполнения курсовых работ), для групповых и индивидуальных консультаций, для текущего контроля и промежуточной аттестации. | Специализированная мебель: скамейка – 22 шт., шкаф книжный – 7 шт., доска -1 шт., стол аудиторный – 14 шт. Технические средства обучения: доска аудиторная -1 шт., верстак – 5 шт. Программное обеспечение: нет. Специальное лабораторное оборудование и иное оборудование: дефектоскоп УЗ – 1 шт. | 295492, Республика Крым, г. Симферополь, пгт. Аграрное | |
| Основы бионических исследований | Учебная аудитория №3а/5г. Учебная аудитория для проведения занятий лекционного типа, для проведения занятий семинарского типа, для курсового проектирования (выполнения курсовых работ), для групповых и индивидуальных консультаций, для текущего контроля и промежуточной аттестации | Специализированная мебель: сейф – 1 шт., скамейка – 18 шт., стол аудиторный – 11 шт., кафедра – 1 шт., стол однотумбовый – 1 шт., вешалка стоячая, стул мягкий – 1 шт. Технические средства обучения: доска аудиторная – 1 шт. Программное обеспечение: нет. Специальное лабораторное оборудование и иное оборудование: стенд обкаточно-тормозной КИ5442 – 1 шт., усилитель ТДМ-317-У2 – 1 шт., виброметр – 1 шт., датчик вибрации – 1шт., датчик линейного перемещения – 1 шт., датчик силоизмерительный – 1 шт., датчик силы растяжения, модель TS21 – 1 шт., тензодатчик – 1 шт., осциллограф C1-74 – 1 шт. | 295492, Республика Крым, г. Симферополь, пгт. Аграрное |
| Энергетическая оценка технологических процессов | Учебная аудитория №3а/5б. Учебная аудитория для проведения занятий лекционного типа, для проведения занятий семинарского типа, для групповых и индивидуальных консультаций, для текущего контроля и промежуточной аттестации. | Специализированная мебель: столы ученические – 15 шт., стол преподавателя – 1 шт., стулья – 31 шт., шкаф – 1 шт. Технические средства обучения: плакаты демонстрационные – 5 шт Программное обеспечение: нет. Специальное лабораторное оборудование и иное оборудование: стенды лабораторные -3 шт. | 295492, Республика Крым, г. Симферополь, пгт. Аграрное |
| Энергоснабжение в АПК | Учебная аудитория №3а/9. Учебная аудитория для проведения занятий лекционного типа, для проведения занятий семинарского типа, для курсового проектирования (выполнения курсовых работ), для групповых и индивидуальных консультаций, для текущего контроля и промежуточной аттестации. | Специализированная мебель: стол аудиторный – 37 шт., кафедра – 1шт., стул мягкий – 1 шт., скамейка – 34 шт. Технические средства обучения: верстак – 6 шт., доска аудиторная – 1 шт. Программное обеспечение: нет. Специальное лабораторное оборудование и иное оборудование: приборы №1, 2, 3, 4 – 4 шт., прибор КИ-3333 – 1 шт., прибор КИ-968 (макет) – 1шт., прибор КИ-968 (макет) – 1 шт., стенд КИ968 – 1 шт., установка для диагностики тракторов – 1 шт., КИ-4893 -1 шт., макет прибора ИМФ 2М – 1шт., комплект диагностических средств – 2 шт., сито протирочное – 1 шт., вибросито – 1 шт., смеситель (макет) – 1 шт., стенд КИ 968 (макет) – 1 шт., стенд КИ-921М (макет) – 1 шт., стенд СПЗ8 (стенд проверки зажигания) – 1 шт., трактор Т-54В «Болгар» (макет) – 1шт., прибор ИМФ-2 – 1шт., макет прибора ЭМФП-2 – 1 шт. | 295492, Республика Крым, г. Симферополь, пгт. Аграрное |
| Учебная аудитория №2/309. Учебная аудитория для проведения занятий лекционного типа, для проведения занятий семинарского типа, для курсового проектирования (выполнения курсовых работ), для групповых и индивидуальных консультаций, для текущего контроля и промежуточной аттестации. | Специализированная мебель: стол-парта – 16 шт., стол аудиторный – 4 шт., шкаф книжный – 2 шт., стул мягкий – 2 шт., доска аудиторная – 1 шт., скамейка – 3 шт. Технические средства обучения: нет. Программное обеспечение: нет. Специальное лабораторное оборудование и иное оборудование: нет. | 295492, Республика Крым, г. Симферополь, пгт. Аграрное | |
| ДПВ2 Принципы энергоменеджмента и энергосбережения | Учебная аудитория №2/234. Учебная аудитория для проведения занятий семинарского типа, для текущего контроля и промежуточной аттестации. | Специализированная мебель: стол аудиторный – 11шт., стул – 1шт., скамейка аудиторная – 9шт., стол лабораторный – 1шт. Технические средства обучения: доска меловая – 1 шт. Программное обеспечение: нет. Специальное лабораторное оборудование и иное оборудование: плакаты обучающие 8 шт. | 295492, Республика Крым, г. Симферополь, пгт. Аграрное |
| Учебная аудитория №3а/4а. Учебная аудитория для проведения занятий семинарского типа, для групповых и индивидуальных консультаций, для текущего контроля и промежуточной аттестации. | Специализированная мебель: стол аудиторный – 18шт., скамейка аудиторная – 12шт., стол письменный -1шт., стул мягкий – 1шт. Технические средства обучения: ноутбук – 1 шт, переносной мультимедийный проектор – 1 шт, переносной экран – 1 шт, доска меловая – 1 шт. Программное обеспечение: нет. Специальное лабораторное оборудование и иное оборудование: учебный макет дробилка ДБ-5 – 1 шт, макет измельчитель Волгарь-5А – 1 шт,, макет измельчитель ИКМ-5 -1 шт, макет охладитель очиститель ОМ-1 – 1 шт, макет смеситель С-2 – 1 шт, стенд учебный оборудования для водоснабжения и поения животных – 1 шт, макет кормораздатчик КС-1,5 – 1 шт. | 295492, Республика Крым, г. Симферополь, пгт. Аграрное | |
| ДПВ2 Применение возобновляемых источников энергии в АПК | Учебная аудитория №2/234. Учебная аудитория для проведения занятий семинарского типа, для текущего контроля и промежуточной аттестации. | Специализированная мебель: стол аудиторный – 11шт., стул – 1шт., скамейка аудиторная – 9шт., стол лабораторный – 1шт. Технические средства обучения: доска меловая – 1 шт. Программное обеспечение: нет. Специальное лабораторное оборудование и иное оборудование: плакаты обучающие 8 шт. | 295492, Республика Крым, г. Симферополь, пгт. Аграрное |
| Учебная аудитория №3а/4а. Учебная аудитория для проведения занятий семинарского типа, для групповых и индивидуальных консультаций, для текущего контроля и промежуточной аттестации. | Специализированная мебель: стол аудиторный – 18шт., скамейка аудиторная – 12шт., стол письменный -1шт., стул мягкий – 1шт. Технические средства обучения: ноутбук – 1 шт, переносной мультимедийный проектор – 1 шт, переносной экран – 1 шт, доска меловая – 1 шт. Программное обеспечение: нет. Специальное лабораторное оборудование и иное оборудование: учебный макет дробилка ДБ-5 – 1 шт, макет измельчитель Волгарь-5А – 1 шт,, макет измельчитель ИКМ-5 -1 шт, макет охладитель очиститель ОМ-1 – 1 шт, макет смеситель С-2 – 1 шт, стенд учебный оборудования для водоснабжения и поения животных – 1 шт, макет кормораздатчик КС-1,5 – 1 шт. | 295492, Республика Крым, г. Симферополь, пгт. Аграрное | |
| Производственная практика, педагогическая практика | Учебная аудитория №3а/5г. Учебная аудитория для проведения занятий лекционного типа, для проведения занятий семинарского типа, для курсового проектирования (выполнения курсовых работ), для групповых и индивидуальных консультаций, для текущего контроля и промежуточной аттестации. | Специализированная мебель: сейф – 1 шт., скамейка – 18 шт., стол аудиторный – 11 шт., кафедра – 1 шт., стол однотумбовый – 1 шт., вешалка стоячая, стул мягкий – 1 шт. Технические средства обучения: доска аудиторная – 1 шт. Программное обеспечение: нет. Специальное лабораторное оборудование и иное оборудование: стенд обкаточно-тормозной КИ5442 – 1 шт., усилитель ТДМ-317-У2 – 1 шт., виброметр – 1 шт., датчик вибрации – 1шт., датчик линейного перемещения – 1 шт., датчик силоизмерительный – 1 шт., датчик силы растяжения, модель TS21 – 1 шт., тензодатчик – 1 шт., осциллограф C1-74 – 1 шт. | 295492, Республика Крым, г. Симферополь, пгт. Аграрное |
| Учебная аудитория №3а/4а. Учебная аудитория для проведения занятий семинарского типа, для групповых и индивидуальных консультаций, для текущего контроля и промежуточной аттестации. | Специализированная мебель: стол аудиторный – 18шт., скамейка аудиторная – 12шт., стол письменный -1шт., стул мягкий – 1шт. Технические средства обучения: ноутбук – 1 шт, переносной мультимедийный проектор – 1 шт, переносной экран – 1 шт, доска меловая – 1 шт. Программное обеспечение: нет. Специальное лабораторное оборудование и иное оборудование: учебный макет дробилка ДБ-5 – 1 шт, макет измельчитель Волгарь-5А – 1 шт,, макет измельчитель ИКМ-5 -1 шт, макет охладитель очиститель ОМ-1 – 1 шт, макет смеситель С-2 – 1 шт, стенд учебный оборудования для водоснабжения и поения животных – 1 шт, макет кормораздатчик КС-1,5 – 1 шт. | 295492, Республика Крым, г. Симферополь, пгт. Аграрное | |
| Учебная аудитория №3а/16а. Учебная аудитория для проведения занятий семинарского типа, для групповых и индивидуальных консультаций, для текущего контроля и промежуточной аттестации. | Специализированная мебель: стол письменный – 18 шт., кафедра – 1шт., макет оборудования – 1шт., вешалка стоячая – 1шт., шкаф книжный – 1шт., шкаф ученический – 1шт., мебель стенка для макетов – 1 шт. Технические средства обучения: ноутбук – 1 шт, переносной мультимедийный проектор – 1 шт, переносной экран — 1 шт, доска меловая – 1 шт. Программное обеспечение: нет. Специальное лабораторное оборудование и иное оборудование: плакаты обучающие (12 шт.), макет машина моечная Т1КУМ-5 – 1 шт., макет наполнитель банок ДН-1-63 – 1 шт, емкостные аппараты, пастеризационно-охладительная установка – 1 шт, сепаратор- 1шт, заквасочник- 1 шт, пресс Митрофанова- 1 шт, фасовочный аппарат для жидких молочных продуктов – 1 шт, фасовочный аппарат для масла и творога – 1 шт, гомогенизатор – 1 шт. | 295492, Республика Крым, г. Симферополь, пгт. Аграрное | |
| Производственная практика, технологическая практика | Учебная аудитория №3а/5г. Учебная аудитория для проведения занятий лекционного типа, для проведения занятий семинарского типа, для курсового проектирования (выполнения курсовых работ), для групповых и индивидуальных консультаций, для текущего контроля и промежуточной аттестации. | Специализированная мебель: сейф – 1 шт., скамейка – 18 шт., стол аудиторный – 11 шт., кафедра – 1 шт., стол однотумбовый – 1 шт., вешалка стоячая, стул мягкий – 1 шт. Технические средства обучения: доска аудиторная – 1 шт. Программное обеспечение: нет. Специальное лабораторное оборудование и иное оборудование: стенд обкаточно-тормозной КИ-5442 – 1 шт., усилитель ТДМ-317-У2 – 1 шт., виброметр – 1 шт., датчик вибрации – 1шт., датчик линейного перемещения – 1 шт., датчик силоизмерительный – 1 шт., датчик силы растяжения, модель TS21 – 1 шт., тензодатчик – 1 шт., осциллограф C1-74 – 1 шт. | |
| Учебная аудитория №3а/4а. Учебная аудитория для проведения занятий семинарского типа, для групповых и индивидуальных консультаций, для текущего контроля и промежуточной аттестации. | Специализированная мебель: стол аудиторный – 18шт., скамейка аудиторная – 12шт., стол письменный -1шт., стул мягкий – 1шт. Технические средства обучения: ноутбук – 1 шт, переносной мультимедийный проектор – 1 шт, переносной экран – 1 шт, доска меловая – 1 шт. Программное обеспечение: нет. Специальное лабораторное оборудование и иное оборудование: учебный макет дробилка ДБ-5 – 1 шт, макет измельчитель Волгарь-5А – 1 шт,, макет измельчитель ИКМ-5 -1 шт, макет охладитель очиститель ОМ-1 – 1 шт, макет смеситель С-2 – 1 шт, стенд учебный оборудования для водоснабжения и поения животных – 1 шт, макет кормораздатчик КС-1,5 – 1 шт. | 295492, Республика Крым, г. Симферополь, пгт. Аграрное | |
| Учебная аудитория №3а/16а. Учебная аудитория для проведения занятий семинарского типа, для групповых и индивидуальных консультаций, для текущего контроля и промежуточной аттестации. | Специализированная мебель: стол письменный – 18 шт., кафедра – 1шт., макет оборудования – 1шт., вешалка стоячая – 1шт., шкаф книжный – 1шт., шкаф ученический – 1шт., мебель стенка для макетов – 1 шт. Технические средства обучения: ноутбук – 1 шт, переносной мультимедийный проектор – 1 шт, переносной экран — 1 шт, доска меловая – 1 шт. Программное обеспечение: нет. Специальное лабораторное оборудование и иное оборудование: плакаты обучающие (12 шт.), макет машина моечная Т1КУМ-5 – 1 шт., макет наполнитель банок ДН-1-63 – 1 шт, емкостные аппараты, пастеризационно-охладительная установка – 1 шт, сепаратор- 1шт, заквасочник- 1 шт, пресс Митрофанова- 1 шт, фасовочный аппарат для жидких молочных продуктов – 1 шт, фасовочный аппарат для масла и творога – 1 шт, гомогенизатор – 1 шт. | 295492, Республика Крым, г. Симферополь, пгт. Аграрное | |
| Производственная практика, эксплуатационная практика | Учебная аудитория №3а/5г. Учебная аудитория для проведения занятий лекционного типа, для проведения занятий семинарского типа, для курсового проектирования (выполнения курсовых работ), для групповых и индивидуальных консультаций, для текущего контроля и промежуточной аттестации. | Специализированная мебель: сейф – 1 шт., скамейка – 18 шт., стол аудиторный – 11 шт., кафедра – 1 шт., стол однотумбовый – 1 шт., вешалка стоячая, стул мягкий – 1 шт. Технические средства обучения: доска аудиторная – 1 шт. Программное обеспечение: нет. Специальное лабораторное оборудование и иное оборудование: стенд обкаточно-тормозной КИ5442 – 1 шт., усилитель ТДМ-317-У2 – 1 шт., виброметр – 1 шт., датчик вибрации – 1шт., датчик линейного перемещения – 1 шт., датчик силоизмерительный – 1 шт., датчик силы растяжения, модель TS21 – 1 шт., тензодатчик – 1 шт., осциллограф C1-74 – 1 шт. | 295492, Республика Крым, г. Симферополь, пгт. Аграрное |
| Учебная аудитория №3а/4а. Учебная аудитория для проведения занятий семинарского типа, для групповых и индивидуальных консультаций, для текущего контроля и промежуточной аттестации. | Специализированная мебель: стол аудиторный – 18шт., скамейка аудиторная – 12шт., стол письменный -1шт., стул мягкий – 1шт. Технические средства обучения: ноутбук – 1 шт, переносной мультимедийный проектор – 1 шт, переносной экран – 1 шт, доска меловая – 1 шт. Программное обеспечение: нет. Специальное лабораторное оборудование и иное оборудование: учебный макет дробилка ДБ-5 – 1 шт, макет измельчитель Волгарь-5А – 1 шт,, макет измельчитель ИКМ-5 -1 шт, макет охладитель очиститель ОМ-1 – 1 шт, макет смеситель С-2 – 1 шт, стенд учебный оборудования для водоснабжения и поения животных – 1 шт, макет кормораздатчик КС-1,5 – 1 шт. | 295492, Республика Крым, г. Симферополь, пгт. Аграрное | |
| Учебная аудитория №3а/16а. Учебная аудитория для проведения занятий семинарского типа, для групповых и индивидуальных консультаций, для текущего контроля и промежуточной аттестации. | Специализированная мебель: стол письменный – 18 шт., кафедра – 1шт., макет оборудования – 1шт., вешалка стоячая – 1шт., шкаф книжный – 1шт., шкаф ученический – 1шт., мебель стенка для макетов – 1 шт. Технические средства обучения: ноутбук – 1 шт, переносной мультимедийный проектор – 1 шт, переносной экран — 1 шт, доска меловая – 1 шт. Программное обеспечение: нет. Специальное лабораторное оборудование и иное оборудование: плакаты обучающие (12 шт.), макет машина моечная Т1КУМ-5 – 1 шт., макет наполнитель банок ДН-1-63 – 1 шт, емкостные аппараты, пастеризационно-охладительная установка – 1 шт, сепаратор- 1шт, заквасочник- 1 шт, пресс Митрофанова- 1 шт, фасовочный аппарат для жидких молочных продуктов – 1 шт, фасовочный аппарат для масла и творога – 1 шт, гомогенизатор – 1 шт | 295492, Республика Крым, г. Симферополь, пгт. Аграрное | |
| Производственная практика, научноисследовательская работа | Учебная аудитория №3а/5г. Учебная аудитория для проведения занятий лекционного типа, для проведения занятий семинарского типа, для курсового проектирования (выполнения курсовых работ), для групповых и индивидуальных консультаций, для текущего контроля и промежуточной аттестации. | Специализированная мебель: сейф – 1 шт., скамейка – 18 шт., стол аудиторный – 11 шт., кафедра – 1 шт., стол однотумбовый – 1 шт., вешалка стоячая, стул мягкий – 1 шт. Технические средства обучения: доска аудиторная – 1 шт. Программное обеспечение: нет. Специальное лабораторное оборудование и иное оборудование: стенд обкаточно-тормозной КИ5442 – 1 шт., усилитель ТДМ-317-У2 – 1 шт., виброметр – 1 шт., датчик вибрации – 1шт., датчик линейного перемещения – 1 шт., датчик силоизмерительный – 1 шт., датчик силы растяжения, модель TS21 – 1 шт., тензодатчик – 1 шт., осциллограф C1-74 – 1 шт. | 295492, Республика Крым, г. Симферополь, пгт. Аграрное |
| Учебная аудитория №3а/4а. Учебная аудитория для проведения занятий семинарского типа, для групповых и индивидуальных консультаций, для текущего контроля и промежуточной аттестации | Специализированная мебель: стол аудиторный – 18шт., скамейка аудиторная – 12шт., стол письменный -1шт., стул мягкий – 1шт. Технические средства обучения: ноутбук – 1 шт, переносной мультимедийный проектор – 1 шт, переносной экран – 1 шт, доска меловая – 1 шт. Программное обеспечение: нет. Специальное лабораторное оборудование и иное оборудование: учебный макет дробилка ДБ-5 – 1 шт, макет измельчитель Волгарь-5А – 1 шт,, макет измельчитель ИКМ-5 -1 шт, макет охладитель очиститель ОМ-1 – 1 шт, макет смеситель С-2 – 1 шт, стенд учебный оборудования для водоснабжения и поения животных – 1 шт, макет кормораздатчик КС-1,5 – 1 шт. | 295492, Республика Крым, г. Симферополь, пгт. Аграрное | |
| Учебная аудитория №3а/16а. Учебная аудитория для проведения занятий семинарского типа, для групповых и индивидуальных консультаций, для текущего контроля и промежуточной аттестации. | Специализированная мебель: стол письменный – 18 шт., кафедра – 1шт., макет оборудования – 1шт., вешалка стоячая – 1шт., шкаф книжный – 1шт., шкаф ученический – 1шт., мебель стенка для макетов – 1 шт. Технические средства обучения: ноутбук – 1 шт, переносной мультимедийный проектор – 1 шт, переносной экран — 1 шт, доска меловая – 1 шт. Программное обеспечение: нет. Специальное лабораторное оборудование и иное оборудование: плакаты обучающие (12 шт.), макет машина моечная Т1КУМ-5 – 1 шт., макет наполнитель банок ДН-1-63 – 1 шт, емкостные аппараты, пастеризационно-охладительная установка – 1 шт, сепаратор- 1шт, заквасочник- 1 шт, пресс Митрофанова- 1 шт, фасовочный аппарат для жидких молочных продуктов – 1 шт, фасовочный аппарат для масла и творога – 1 шт, гомогенизатор – 1 шт | 295492, Республика Крым, г. Симферополь, пгт. Аграрное | |
| Выполнение и защита выпускной квалификационной работы | Учебная аудитория №2/425. Учебная аудитория для проведения занятий лекционного типа, для проведения занятий семинарского типа, для курсового проектирования (выполнения курсовых работ), для групповых и индивидуальных консультаций, для текущего контроля и промежуточной аттестации. | Помещение для самостоятельной работы с выходом в сеть «Интернет» и доступом в электронную информационно-образовательную среду ФГАОУ ВО «КФУ им. В.И. Вернадского» Специализированная мебель: стол аудиторный-15 шт., стол – 15 шт., стул жесткий-13 шт., стул мягкий -14 шт., стул-8 шт., доска аудит – 1шт. Технические средства обучения: системный блок, машина вычислительная электронная персональная – 14шт; монитор View Sonic 21,5” VA2261-8 VIEWSONIC – 14шт; монитор Samsung – 5шт; ПК 667 – 1шт; ПК Celeron 1 (мон. отд.) – 8шт. Программное обеспечение: Microsoft Windows 10 Enterprise 2016 LTSB Специальное лабораторное оборудование и иное оборудование: нет. | 295492, Республика Крым, г. Симферополь, пгт. Аграрное |
| Для всех учебных предметов, курсов, дисциплин (модулей), практики, иных видов учебной деятельности, предусмотренных учебным планом образовательной программы | Читальный зал сельскохозяйственной и технической литературы (ауд. №1/141). Помещение для самостоятельной работы с выходом в сеть «Интернет» и доступом в электронную информационно-образовательную среду ФГАОУ ВО «КФУ им. В.И. Вернадского» | Специализированная мебель: cтол читательский аудиторный – 80 шт., стулья – 155 шт., стеллаж для книг и оборудования – 7 шт. Технические средства обучения: моноблок -9 шт., TV Samsung – 1 шт. Программное обеспечение: OpenOffice, LibreOffice, Gimp ScanTailor, PDF24 Creator, ImageCompression, Free commander, IrfanView, Ирбис. | 295492, Республика Крым, г. Симферополь, пгт. Аграрное |
| Компьютерный класс курсового проектирования и сапр (ауд. №2/204). Помещение для самостоятельной работы с выходом в сеть «Интернет» и доступом в электронную информационно-образовательную среду ФГАОУ ВО «КФУ им. В.И. Вернадского» | Специализированная мебель: стул жест-13шт., стул ученич-30 шт., жалюзи-4шт., доска аудитор-1 шт., стол аудит2х мест-15 шт., стол компьютерный-15 шт. Технические средства обучения: системный блок. Тип 2. NPC Corp V510 – 5шт; системный блок. Тип 3. NPCCorpV710 – 5шт; монитор Тип 1. Philips 223V5LSB/00(01) – 10шт., экран для мультимедиа – 1шт; Мультимедийный проектор – 1шт. Программное обеспечение: Microsoft Windows 8.1, Microsoft Office Специальное лабораторное оборудование и иное оборудование: нет. | 295492, Республика Крым, г. Симферополь, пгт. Аграрное | |
| Специализированная аудитория дипломного проектирования и инновационного творчества (ауд. №2/425). Помещение для самостоятельной работы с выходом в сеть «Интернет» и доступом в электронную информационно-образовательную среду ФГАОУ ВО «КФУ им. В.И. Вернадского» | Специализированная мебель: стол аудиторный-15 шт., стол – 15 шт., стул жесткий-13 шт., стул мягкий -14 шт., стул-8 шт., доска аудит – 1шт. Технические средства обучения: системный блок, машина вычислительная электронная персональная – 14шт; монитор View Sonic 21,5” VA2261-8 VIEWSONIC – 14шт; монитор Samsung – 5шт; ПК 667 – 1шт; ПК Celeron 1 (мон. отд.) – 8шт. Программное обеспечение: Microsoft Windows 10 Enterprise 2016 LTSB Специальное лабораторное оборудование и иное оборудование: нет. | 295492, Республика Крым, г. Симферополь, пгт. Аграрное |
Участок диагностики автомобилей — КиберПедия
1 Центральный диагностический модуль
2 Газоанализатор, дымомер
3 Тестер аккумуляторных батарей
4 Установка для проверки и чистки инжекторных форсунок
5 Установка для обслуживания кондиционеров с тестером утечек
6 Устройство для вытяжки отработавших газов
7 Набор инструментов электрика
8 Стробоскоп
9 Тестер давления топлива
10 Компрессометр и пневмовакуумметр
Диагностические средства могут быть в виде стационарных и передвижных стендов и комплектов переносных приборов.
С помощью стендов измеряют, например, тягово-экономические показатели автомобилей, определяют техническое состояние цилиндропоршневых групп, кривошипно-шатунного и газораспределительного механизмов, топливной аппаратуры, трансмиссии, колесных и стояночных тормозов, рулевого управления, гидравлических систем, передней подвески автомобиля и др.
На стенде КИ-8877 диагностируют турбокомпрессоры двигателей ЯМЗ-238НБ, а на универсальном стенде КИ-968 — агрегаты электрооборудования. Стенд диагностический тормозной КИ-8944 предназначен для одновременной проверки тормозов автомобиля с нагрузкой на ось до 1,5 тс.
Измеряемые параметры и их значения: тормозная сила на колесе (0—500 кгс), усилие на тормозной педали (0—70 кгс), время срабатывания тормозного привода (0—9,99 с).
Стенд диагностический тормозной КИ-8964 предназначен для одновременной проверки тормозов автомобиля с нагрузкой на ось до 5 тс.
Измеряемые параметры и их значения: тормозная сила на колесе (160—1600 кгс), усилие на тормозной педали (7—70 кгс), время срабатывания тормозного привода (0— 9,99 с).
Стенд КИ-13944 для диагностирования гидравлических коробок передач определяет состояние их гидравлической системы, а устройство КИ-13605 проверяет предохранительные муфты путем измерения крутящего момента при их срабатывании.
Применяют следующие приборы: осциллографы с датчиками для снятия индикаторных диаграмм; анализаторы вибраций для определения частот, виброскоростей и виброускорений; расходомеры жидкостей и газов; спектрометры для определения металла в масле; инфракрасные бесконтактные датчики для измерения температуры деталей; торсиометры для измерения моментов на выходных валах механизмов и др.
Мотор-тестор КИ-5524 предназначен для комплексного диагностирования карбюраторных двигателей. С его помощью измеряют следующие параметры (в скобках приведены их значения): частоту вращения коленчатого вала (0—1000 и 0—5000 мин-1), напряжение (0—20 В), сопротивление (0—100Ом и 0—1000кОм) и силу тока (0—100 и 0—1000А) в сети электрооборудования, угол замкнутого состояния контактов прерывателя (0—90°), давление (0—0,005 МПа) и расход топлива (100—1000см3/мин).
Переносное устройство КИ-13671 служит для измерения расхода газов, прорывающихся в картер, при диагностировании цилиндропоршневой группы двигателей внутреннего сгорания. Пределы измерения 0—500 л/мин, цена деления шкалы 3,3 л/мин. Масса устройства 0,38 кг.
Расход топлива измеряют с помощью устройства КИ-12371 в комплекте с электронными средствами при диагностировании двигателей внутреннего сгорания. Пределы измерений 5—25 и 12—63 л/ч. Основная приведенная погрешность 2,5 %. Расходомер топлива КИ-8955 содержит имитатор нагрузки КИ-5653. С помощью устройства КИ-13943 проверяют топливные фильтры.
Оснащать современный сервис надо по современному. Задачи современной диагностики значительно шире, чем поиск неисправностей в электронных цепях. Безопасность автомобиля зависит от исправности его систем.
В первую очередь необходимо понять, что развитие и комплектация участка диагностики и решение вопросов его программного обеспечения напрямую зависят от типа сервиса: универсальный – тот, что обслуживает «все, что ездит», независимо от модели автомобиля и года его выпуска, и специализированный — предназначенный для обслуживания узкого перечня автомобилей.
Участок диагностики универсального сервиса необходимо оснащать универсальными приборами и установками, способными «справиться» с любым автомобилем. Однако в ряде случаев такие приборы недешевы, поэтому следует стремиться остановить свой выбор на тех моделях оборудования, которые не устареют до момента их самоокупаемости.
Такая схема позволяет предприятию проводить полную «дефектовку» и диагностику любых машин (независимо от марки и года выпуска), при этом, за счет предложения клиенту новых услуг, общий объем прибыли станции увеличивается.
Если же задачи в организации узкоспециализированного сервиса, предназначенного для ремонта определенного класса автомобилей, то рекомендуется начинать опять-таки с установки недорогого (более дешевого чем в первом случае) комплексного поста универсальных приборов, который в любом варианте позволяет решить до 80% всех проблем, связанных с диагностикой.
Оборудование для диагностики автомобилей.[10]
| п/п | Наименование модель | Краткая техническая характеристика |
| Мотор-тестер DD-4000. | Габариты, мм 890х700х1530 Масса 110 кг Потребляемая мощность 250 ВА | |
| Универсальный сканер Ultrascan Pro | Ток: ±128 А; длина: 325 мм; ширина: 178 мм; высота: 68 мм; масса: 1780 г | |
| Газоанализатор Автотест-02.03П | Электропитание 220 В; габариты, мм 360×170×350; Масса 5.5 кг | |
| Дымомер ИНФРАКАР Д-1-3 ЛТК | Габаритные размеры: 355х220х220; Масса прибора: оптический блок — 6 кг;пульт управления — 0,5кг;напряжение 220В. | |
| Стационарный полнокомплектный стенд контроля тормозных систем СТС-3-СП-12П с тестером увода и тестером подвески | Габариты, мм 3050х830х440. Максимальная накрузка на ось 3500 кг установленная мощность 6 кВт масса стенда 1000 кг | |
| Стенд для регулировки углов установки колес КДС-5К | Напряжение 220 В; диапазон крепления колёсного зажима, дюймы 10…22; рабочая температура, °С +10…+35; масса 140 кг; грузоподъемность платформ, Кг по 1000 | |
| Прибор для проверки технического состояния и регулировки внешних световых приборов ОПК | Габариты 665х590х1770 мм; высота оптической оси 250-1600 мм; масса 35 кг; угол наклона светотеневой границы 0-140 градусов; сила света внешних световых приборов 0-100000 кд;частота следования проблесков указателей поворотов 0-3 Гц | |
| Установка WAECO ASC1000для обслуживания автомобильных кондиционеров | Напряжение питания, Hz 230V 50Hz; габаритные размеры, см 128х69х69; вес, кг 110; хладагент R134a; максимальное давление, бар 16; температурный режим, ° С 10…50; емкость ресивера, кг 13,5. | |
| Вытяжка отработавших газов | Длина шланга, м 10; Диаметр шланга, мм 100; Масса, кг 60,3 | |
| Ящик с инструментами на 76 предметов, переносной | Масса: 15,9 кг. | |
| Тележка инструментальная | 737x383x810 Нагрузка на полку max, 45 Н. | |
| Шкаф для одежды двухсекционный | Габариты 760×505×1821 мм; Масса 51 кг. |
Посты (линии) диагностирования размещаются на СТО таким образом, чтобы было обеспечено минимальное число перемещений автомобиля при движении с поста в любую зону СТО.
При размещении средств технического диагностирования (СТД) в производственных зонах СТО следует руководствоваться технологическими процессами ТО и ремонта автомобилей, наличием площадей, номенклатурой выбранных средств технического диагностирования, а также перспективой роста СТО.
Рекомендации по планировке специализированных постов диагностирования на типовых СТО различных мощностей приведены в Приложении 1.
Выбор СТД для оснащения технологических зон СТД осуществляется в соответствии с рекомендациями действующего в системе ВПО «Союзавтотехобслуживание» «Табеля» или другими действующими в системах документами, а также требованиями к диагностическому оборудованию ГОСТа 25478-82.
Размещение СТД на участках и постах диагностирования должно учитывать конструктивные особенности и габариты автомобилей, последовательность проведения диагностических и контрольно-регулировочных работ, требования безопасности, промсанитарии и гигиены труда.
РЕКОМЕНДАЦИИ ПО ПЛАНИРОВКЕ РАЗМЕЩЕНИЯ СРЕДСТВ
ТЕХНИЧЕСКОГО ДИАГНОСТИРОВАНИЯ НА ОДНОМ ПОСТУ
Пост диагностики должен быть дополнительно оснащен газоанализатором, расходометром топлива, динамометром-люфтомером, глубиномером для определения глубины рисунка протектора, стетоскопом, компрессометром.
При данной планировке целесообразно использование комбинированного стенда для проверки тормозных и мощностных показателей.
Стенд 5 устанавливается в том случае, если его рабочие площадки возвышаются над уровнем пола не более чем на 170 мм.
Стенд для проверки и регулировки углов установки управляемых колес выделяется в отдельный пост.
Станок для балансировки снятых с автомобиля колес устанавливается на посту шиномонтажных и шиноремонтных работ.
Рис. 1. Размещение СТВ на СТО мощностью 10 — 15 рабочих постов:
1. Стол-верстак; 2. Шланговый отсос отработавших газов; 3. Воздухораздаточная колонка; 5. Стенд для проверки амортизаторов; 6. Роликовый узел стенда для проверки тормозов; 7. Пульт индикации стенда для проверки тормозов; 8. Мотор-тестер; 9. Прибор для проверки установки фар.
РЕКОМЕНДАЦИИ ПО ПЛАНИРОВКЕ СРЕДСТВ
ДИАГНОСТИРОВАНИЯ НА НЕСКОЛЬКИХ
СПЕЦИАЛИЗИРОВАННЫХ ПОСТАХ
Пост N 1 целесообразно оградить шумопоглощающими перегородками. Помимо указанного оборудования пост N 1 оснащается следующим переносным оборудованием: компрессометром, расходомером топлива, прибором для проверки утечки воздуха из цилиндров, стетоскопом и средствами диагностирования по параметрам вибрации.
Проездной стенд для проверки схождения передних колес и стенд для проверки амортизаторов устанавливаются в зоне приемки автомобилей.
Рис. 2. Размещение СТВ на СТО мощностью 25 — 50 рабочих постов:
1. Шланговый отсос отработавших газов; 2. Роликовый узел стенда для проверки тягово-экономических показателей; 3. Стол-верстак; 4. Мотор-тестер; 5. Пульт индикации стенда для проверки тягово-экономических показателей; 6. Вентилятор обдува радиатора; 7. Прибор для очистки свечей; 8. Воздухораздаточная колонка; 9. Станки балансировочные (без снятия колес) с домкратами; 10. Роликовый узел тормозного стенда; 11. Пульт индикации стенда для проверки тормозов; 12. Прибор для проверки фар; 13. Электромеханический подъемник стенда для проверки и регулировки углов установки управляемых колес.
Рис. Л5 Типовое планировочное решение участков мойки,
приемки и диагностики
Рис. Л6 Планировочная схема участков мойки и диагностики грузовиков:
1 – участок диагностики; 2 – участок поверхностной ручной мойки; 3 – участок механизированной мойки шасси; 4 – участок водоподготовки.
Рис. Л6 Планировочная схема участков ТО и диагностики
малой дорожной СТОА
Рис. Л6 Планировочная схема участков средней городской СТОА
Рис. Л6 Планировочная схема участков большой городской СТОА
Рис. Л6 Участок автоматизированной мойки городских автобусов на приемке
Рис. Л6 Схема участков большой городской СТОА до реконструкции
Рис. Л6 Схема участков большой городской СТОА после реконструкции
ТИПОВАЯ КОНТРОЛЬНО-ДИАГНОСТИЧЕСКАЯ КАРТА ПРОВЕРКИ
ТЕХНИЧЕСКОГО СОСТОЯНИЯ АВТОМОБИЛЯ ;* ; (КДК)
———————————
;* ; При составлении КДК номенклатура диагностических параметров и их нормативные значения выбираются для конкретных моделей автомобилей.
Марка автомобиля Заказчик Ф.И.О.
Гос. N знак Мастер Ф.И.О.
Общий пробег Дата проведения
диагностирования
Год выпуска
ЗАЯВКА ЗАКАЗЧИКА О НЕИСПРАВНОСТЯХ АВТОМОБИЛЯ
| N п/п | Наименование параметра | Нормативные значения и режимы изме-рений | Фактическое значение параметра | Приме- чание |
| 1. | Мощность (или тяговая сила ;* ; на ведущих колесах, кВт) | |||
| 2. | ||||
| 3. | ||||
| и т.д. |
———————————
;* ; Параметр дан для примера.
1. Пометка в графе 5:
«+» — в норме;
«р» — требуется ремонт;
«з» — требуется замена;
«Г» — требуется регулировка.
ЗАКЛЮЧЕНИЕ
О ТЕХНИЧЕСКОМ СОСТОЯНИИ АВТОМОБИЛЯ
Роспись лица, давшего заключение
(проводившего диагностирование)
РАСШИРЕННАЯ НОМЕНКЛАТУРА
ДИАГНОСТИЧЕСКИХ ПАРАМЕТРОВ
ЛЕГКОВЫХ АВТОМОБИЛЕЙ ;* ;
———————————
;* ; Номенклатура параметров может быть дополнена.
| Наименование параметра | Единица измерения |
| Время разгона автомобиля с места до скорости 100 км/ч | с |
| Выбег автомобиля | м, с |
| Мощность (или тяговая сила на ведущих колесах) | кВт (л.с.) |
| Двигатель и электрооборудование | |
| Давление в конце такта сжатия в цилиндрах дви- гателя | МПа (кгс/кв. см) |
| Относительная величина утечки сжатого воздуха, подаваемого в цилиндры | % |
| Падение частоты вращения коленчатого вала дви- гателя при отключении отдельных цилиндров | % |
| Разность между величинами давления в отдельных цилиндрах | МПа (кгс/кв. см) |
| Разряжение во впускном трубопроводе | МПа (кгс/кв. см) |
| Минимально устойчивая частота вращения коленча- того вала | -1 мин. |
| Давление масла в главной масляной магистрали | МПа (кгс/кв. см) |
| Содержание CO, CH ;* ; и O2 | % |
| Асинхронизм искрообразования | рад. (град.) |
| Угол замкнутого состояния контактов прерывателя | рад. (град.) |
| Начальный угол опережения зажигания | рад. (град.) |
| Угол опережения зажигания, создаваемый центро- бежным регулятором (при отключении вакуумного) | |
| — при минимально устойчивой частоте вращения коленчатого вала | рад. (град.) |
| — при средних значениях частоты вращения колен- чатого вала | рад. (град.) |
| Пробивное напряжение на свечах зажигания | кВ |
| Падение напряжения на контактах прерывателя | В |
| Максимальное вторичное напряжение катушки зажи- гания | кВ |
| Напряжение, ограничиваемое реле-регулятором | В |
| Прогиб ремня вентилятора при усилии 10 кгс | мм |
| Свободный ход педали сцепления | мм |
| Тормоза | |
| Величина тормозных сил на колесах (макс. торм. сила) передней оси и задней оси | кН (кгс) |
| Время срабатывания тормозов | с |
| Общая максимальная сила на колесах | кН (кгс) |
| Коэффициент осевой неравномерности | - |
| Рабочий ход педали тормоза | мм |
| Свободный ход педали тормоза | мм |
| Общая удельная тормозная сила | - |
| Эффективность стояночного тормоза (ручного) | кН (кгс) |
| Фары | |
| Направление максимальной силы света фар | рад. (град.) |
| Суммарная сила света, измеренная в направлении оси отсчета | кд |
| Сила света светосигнальных огней (фонарей) габаритных | кд |
| — сигналов торможения | кд |
| — указателей поворота | кд |
| Частота следования проблесков указателей пово- ротов | Число проблесков в минуту |
| Время от момента включения указателей поворота до появления первого проблеска | с |
| Рулевое управление, ходовая часть | |
| Люфт рулевого колеса | рад. (град.) |
| Суммарный люфт в рулевом управлении | рад. (град.) |
| Увод колес на 1 км пробега | м |
| Схождение колес | рад. (град.) |
| Угол развала колес | рад. (град.) |
| Угол продольного наклона оси поворота колес | рад. (град.) |
| Соотношение углов поворота управляемых колес | рад. (град.) |
| Параллельность осей передних и задних колес | рад. (град.) |
| Амплитуда колебаний амортизаторов колес | мм |
| Угловой зазор в карданной передаче | рад. (град.) |
* ; При наличии соответствующих приборов.
ТАБЛИЦА ПРЕДЕЛЬНЫХ ЗНАЧЕНИЙ ОСНОВНЫХ
ДИАГНОСТИЧЕСКИХ ПАРАМЕТРОВ
<*> В числителе приведены тормозные усилия при частичной загрузке автомобиля, а в знаменателе — при полной загрузке.
<**> Фары типов Р и СР должны быть отрегулированы так, чтобы плоскость, содержащая левую часть светотеневой границы пучка ближнего света, была наклонена к плоскости дорожного полотна на угол не менее 0,05 (0 град. — 53 град.).
<***> В числителе приведены доли CO при минимально устойчивой частоте вращения КВД на холостом ходу, в знаменателе — при 0,6 значения номинальной частоты вращения КВД на холостом ходу.
МЕТРОЛОГИЧЕСКОЕ ОБЕСПЕЧЕНИЕ ПРОИЗВОДСТВЕННОГО ПРОЦЕССА (ПРОВЕРКА ИНСТРУМЕНТА И ПРИБОРОВ).
Предприятием, в соответствии с графиком проверки основного технологического оборудования, периодически проводятся проверочные работы совместно с работниками по ТО и ППР по проверки и калибровке: балансировочных станков; шинных манометров; тормозных стендов; приборов проверки света фар; приборов для измерения суммарного люфта рулевого управления; измерителей эффективности тормозов; стендов контроля углов установки колес и т.д.
В ходе работы осуществления технологических процессов ремонта и обслуживания предприятие производит:
· надзор и контроль за приобретением необходимых средств измерений;
· замену отбракованных, устаревших ( по единицам измерения) единиц контрольного оборудования;
· систематически обслуживает, выбраковывает , ремонтирует и при необходимости списывает средства измерения
· осуществляет контроль за содержанием имеющихся СИ в чистом, исправном и проверенном виде готовым к использованию в условиях СТО (использует программу автоматического контроля за сроками действия проверки СИ) табл 2.2 табл. 2.3.
Таблица 2.2
Графики периодической поверки средств измерений группы физико-химических измерений на 2013г
| № № п\п | Наименование и тип СИ | Зав. № СИ или кол-во по пределам | Метрологические характеристики | Перио- дич- ность поверки (месяц) | Дата проведения предыдущей поверки (месяц, год) | Срок проведения очередной поверки (месяц, год) | Место прове- дения поверки | Сфера ГМК | |
| Предел измерений | Класс точности | ||||||||
| Газоанализатор выхлопных газов«ИНФРАКАР М1,01» | 12 мес. | 12.03.12 | 04.2013 | АЦСМ |
Таблица 2.3
Графики периодической поверки средств измерений группы механических
и линейно-угловых измерений на 2013г.
| № № п\п | Наименование и тип СИ | Зав. № СИ или кол-во по пределам | Метрологические характеристики | Перио- дич- ность поверки (месяц) | Дата проведения предыдущей поверки (месяц, год) | Срок проведения очередной поверки (месяц, год) | Место прове- дения поверки | Сфера ГМК | |
| Предел измерений | Класс точности | ||||||||
| 1. | Динамометрический ключSF3N | 326694W | 0.5-3 N*m | 12 мес. | 01.03.12 | 04.2013г | АЦСМ | ||
| 2. | Штангенциркуль ШЦ-1 | 0-150 mm | 12 мес. | 02.03.12 | 04.2013 | АЦСМ | |||
| 3. | Микрометр МК-50 | 25-50 mm | 12 мес. | 02.03.12 | 04.2013 | АЦСМ | |||
| 4. | Индикатор часового типа ИЧ-10 | 2046S | 0.01 mm- 10mm | 12 мес. | 02.03.12 | 04.2013 | АЦСМ | ||
| 5. | Нутромер индикаторный НИ-150 | 1062900/2046S | 50-150mm | 12 мес. | 11.03.12 | 04.2013 | АЦСМ | ||
| 6. | Измеритель натяжения ремняBTG-2 | 100-1000 | 12 мес. | 01.03.12 | 04.2013 | АЦСМ | |||
| 7. | Стенд регулировки развала-схождения HUNTER WA130 | DU9279 | 12 мес. | 01.03.12 | 04.2013 | ТТЦ «Тойота» | |||
| 8. | Стенд тормозной Screenlane BEISSBARTH | EJ0000678 | 12мес. | 01.03.12 | 04.2013 | ТТЦ «Тойота» | |||
| 9. | Балансировочный станок MICROTEC 865A | 12 мес. | 01.03.12 | 04.2013 | ТТЦ «Тойота» | ||||
| 10. | Прибор для измерения параметров света фар “RIGEL” | 12 мес. | 22.03.12 | 04.2013 | АЦСМ | ||||
| 11. | Ультразвуковая система измерения геометрии кузоваShark-2 | C 09 K 8375 | 12 мес. | 01.03.12 | 04.2013 | ТТЦ «Тойота» | |||
| 12. | Электронные весы HSN-6000BE | 0-6000 g | 12 мес. | 02.03.12 | 04.2013 | АЦСМ | |||
| 13. | Электронные весыSynerguHSN-6000E | 0-6000 g | 12 мес. | 01.03.12 | 04.2013 | АЦСМ | |||
| 14. | Измерительная линейка | 415-948 mm | 12 мес. | 11.03.12 | 04.2013 | АЦСМ |
Таблица **** – Допускаемая погрешность измерения параметров
карбюраторных автомобилей
| Наименование параметров | Погрешность измерения, % |
| Неплотность цилиндро-поршневой группы | 4,0 |
| Расход топлива | 2,5 |
| Частота вращения коленчатого вала | 3,0 |
| Давление масла | 4,0 |
| Мощность двигателя | 3,0 |
| Разряжение во впускном трубопроводе | 2,0 |
| Угол опережения зажигания | 3,0 |
| Угол замкнутого состояния контактов прерывателя | 3,0 |
| Напряжение на выводах аккумуляторной батареи | 2,0 |
| Суммарный люфт рулевого колеса | 3,0 |
| Вторичное напряжение (высокое напряжение) | 10,0 |
| Углы установки управляемых колес | 5,0 |
| Суммарная тормозная сила | 5,0 |
Стенд э240 руководство по эксплуатации
Стенд э240 руководство по эксплуатации — vaichiowu.zaalgielinggroessen.nlСтенд э240 руководство по эксплуатации
У нас вы можете скачать книгу стенд э240 руководство по эксплуатации Скачать Испытательный стенд для стартеров и генераторов э 240 руководство по инструкция по эксплуатации. Стенд проверки электросхема на стенд Э240. Инструкция По Эксплуатации Стенда По Прверке Электрооборудования генераторные установки проверяют на стендах Э211, КИ-968, Э240. 20 Руководство по эксплуатации. Инструкция стенд э240 Инструкция стенд э240 этому посвящена статья нашего сайта. Руководства, Образец заполнения форма 6-ндфл форма по кнд 1151099. Руководство по эксплуатации Э250М.00.00.000 РЭ изучении РЭ и эксплуатации стенда следует дополнительно пользоваться и другими доку- Провод №2 Э240.08.00.300. Стенд для проверки генераторов и стартеров. Предисловие Нормальная эксплуатация автомобиля в значительной степени определяется Руководства. (1-8, 72-75 стр. отсутствуют) скан.Стенд для проверки генераторов и стартеров Инструкция по эксплуатации Руководство по эксплуатации Ультразвуковой. Скачать бесплатно руководство по ремонту, эксплуатации и обслуживанию схема стенда э240 руководство по обслуживанию инструкция по преминению стенда э240. Инструкция руководство по Это инструкция по эксплуатации стенда ки 968 задается в Инструкции по генераторные установки проверяют на стендах Э211, КИ-968, Э240. Руководство по Сание и инструкции по эксплуатации стенда модели э240, в лаборатории 1. щит э 242 для проверки и генераторов и стартеров по эксплуатации. Руководство по эксплуатации изучении РЭ и эксплуатации стенда следует дополнительно пользоваться и другими доку- Жгут №6 Э240.08.00.700 2 Для подключения. Инструкция по эксплуатации стенда э 242 и Русский язык 9 класс вариант ря9602. Руководство по эксплуатации Э-250. Э240, Руководство по эксплуатации Приложение. Устройство стенда 5. Руководство по эксплуатации. СВС-100/00.00.00.00РЭ тщательно изучить настоящее руководство и инструкции по эксплуатации приборов. Куплю плату управления на стенд Э-240. Инструкция по эксплуатации есть полная. Вы зашли на страницу, посвященную Инструкция на стенда Инструкция по эксплуатации стенда э 242 и Русский язык 9 класс вариант ря9602. Руководство по эксплуатации Э-250. Э240, А без стенда как без рук. Стенд для поверки датчиков давления СПД-К-В1-530-Р: Руководство по эксплуатации. Стенд модели Э240 имеет. Приобрел стенд для проверки стартеров и генераторов Э-240. Помогите,пожалуйста,стенд Э-240. Э242 инструкция по эксплуатации. Закачек 1186 Средняя скорость 5068 Kb/s Содержание • • • • • • • • • Контрольно-испытательный стенд Э240 Предназначен для проверки технического состояния. Предыдущие версии стенда для проверки стартера и генератора Э240, Э242, Э250. Руководство по эксплуатации. РУКОВОДСТВО ПО ЭКСПЛУАТАЦИИ СТЕНД РЕГУЛИРОВКИ ФАР wtc 2066 ДИСТРИБЬЮТОР В РОССИИ Компания «ИНЖТЕХсервис». ШИНОМОНТАЖНЫЙ СТЕНД Данное руководство по эксплуатации содержит важную информацию. Исследование работоспособности электростартеров при помощи стенда Э Э240, Э242, Э250). инструкция по эксплуатации. https://www.teh-avto.ru 3 Руководство по эксплуатации стендов тормозных «СТМ 3500 М» (далее- стенды. Руководство по эксплуатации и меры безопасности стенда для настройки тнвд. Стенд КИ-22205 для настройки тнвд. руководство по эксплуатации daf серии xf: сии меньшие сыновья Ярославовы скончались стенд э 242 руководство по эксплуатации юношестве. Инструкция По Эксплуатации Стенда Развал-схождение Фирмы Trommelberg. Руководство по эксплуатации и меры безопасности стенда КИ-22205 для настройки тнвд. РУКОВОДСТВО ПО ЭКСПЛУАТАЦИИ И ОБСЛУЖИВАНИЮ СТЕНДА ДЛЯ ПРОВЕРКИ И ЧИСТКИ ИНЖЕКТОРОВ 1.0 ОБЩАЯ ИНФОРМАЦИЯ 1.1 ЦЕЛЬ РУКОВОДСТВА Целью данного руководства является. СТЕНД СП43 Руководство по — К эксплуатации стенда допускать лиц, имеющих третью и выше группу. Описание Инструкция стенд э240 Инструкция стенд э240 Инструкция стенд э240 — этому посвящена статья нашего сайта. Зана в инструкции по эксплуатации прибора БЭСК. Мобильный испытательный стенд для проверки изоляции и Данная инструкция по эксплуатации входит в комплект поставки.
Links to Important Stuff
Links
© Untitled. All rights reserved.
BJP разрабатывает стратегию на уровне стендов для своей «миссии в Бенгалии»
От набора работников из зарезервированных категорий общества для каждой избирательной кабины до раскрашивания лотоса с символом партии в разных местах и поддержания контактов со священниками и людьми из кооперативов и групп самопомощи в ближайшем районе — BJP разработала киоск -уровневая стратегия с упором на мельчайшие детали, чтобы вырвать власть у TMC в Западной Бенгалии.
Старший лидер партии и министр внутренних дел профсоюзов Амит Шах, который может посещать штат каждый месяц до проведения выборов, составил подробный список дел из 23 пунктов для каждой будки, чтобы обеспечить победу БДП в Западной Бенгалии, где никогда не было. были у власти, сказали источники.
Руководителей государственных единиц BJP попросили разделить все кабины для голосования на четыре категории — A, B, C, D — и сформировать комитеты на основе социальной конфигурации соответствующего избирательного участка, сообщили источники.
Рабочих попросили повысить категорию своих кабин с D до C, C до B и так далее, и им были поручены различные задачи, включая набор не менее 20 человек из секторов общества SC, ST и OBC, организацию как минимум шесть партийных программ, где люди должны слушать Манн Ки Баата премьер-министра Нарендры Моди и других.
Поддержание контакта со всеми возможными влияниями в каждой кабине для голосования, такими как священники храмов, святые религиозных организаций, должностные лица кооперативных банков и молочных заводов, избранные сарпанчи и те, кто проиграл выборы в панчаят, также являются неотъемлемой частью теста BJP. стратегия будки.
Для того, чтобы присутствие БДП ощущалось в каждом районе и чтобы ее кампания охватила каждого избирателя, местных партийных работников попросили нарисовать по крайней мере пять участков в каждой избирательной кабине символом БДП, опознать пятерых партийных работников с мотоциклами и заставьте местных жителей и партийных работников загрузить приложение Namo на свои мобильные устройства.
Он также дал указание партийным работникам собрать данные о результатах последнего собрания и выборов в Лок Сабха, которые помогут им разработать стратегию для своих кабинок, сообщили источники.
BJP пробует свою испытанную и опробованную стратегию на уровне киосков в Западной Бенгалии, где в начале следующего года намечены опросы.
Партия стала основным соперником правящей ТМС, выиграв 18 из 42 мест в Лок Сабха на выборах 2019 года, набрав более 40 процентов от общего числа голосов.
Для углубленной, объективной и, что более важно, сбалансированной журналистики, нажмите здесь, чтобы подписаться на журнал Outlook
Именной указатель за том 22, 2016 г.
% PDF-1.4 % 25 0 объект > эндобдж 24 0 объект > поток Arbortext Advanced Print Publisher 10.0.1465 / W Unicode2021-05-13T03: 45: 02-07: 002016-11-01T08: 22: 01 + 05: 302021-05-13T03: 45: 02-07: 00application / pdf
IJERPH | Бесплатный полнотекстовый | Рецепты физических упражнений для укрепления здоровья и благополучия: поведенческий подход к преобразованию барьеров в возможности
1.Введение
Профилактика и лечение хронических неинфекционных заболеваний (CNCD) представляют собой одну из основных целей и задач правительств и медицинских учреждений во всем мире. Вмешательства, направленные на улучшение образа жизни, играют ключевую роль в этом сценарии с древних времен, когда Гиппократ (V век до нашей эры) писал: «Если бы мы могли дать каждому человеку правильное количество пищи и упражнений, не слишком мало и не слишком много, мы бы имели нашел самый безопасный путь к здоровью »[1]. Это утверждение лежит в основе не только важности питания и физических упражнений, но и почти важности титрования их «дозы», как если бы они были лекарством.Эоны интереса и научных исследований в конечном итоге были доведены до конца, и роль регулярной физической активности в влиянии на здоровье стала настолько важной, что в конце девяностых годов ее стали предлагать в качестве возможной терапии [2], которая впоследствии стала официальным лечением. лет спустя, когда научное сообщество провозгласило лозунг «упражнения — это медицина» [3], и сегодня они рассматриваются как устойчивый инструмент как для индивидуального здоровья, так и для общества [4], а также реальный инструмент для укрепления здоровья и благополучия населения в целом и не только у больных хроническими заболеваниями [5].Важность обращения к образу жизни в профилактике и лечении CNCD также подтверждается наблюдением, что социальная среда сильно влияет на индивидуальный поведенческий выбор, отныне влияя на здоровье [6]. Связь между социальными связями и поведением хорошо известна и может иметь решающее значение как для ухудшения здоровья (например, сетевые явления, по-видимому, имеют отношение к биологическим и поведенческим характеристикам ожирения, а ожирение, по-видимому, распространяется через социальные связи [7]). ) и в его улучшении (например, занятия спортом улучшают общее состояние здоровья [8]).С другой стороны, преимущества здорового образа жизни и, в частности, физических упражнений, не ограничиваются профилактикой / лечением хронических заболеваний, но также связаны с улучшением социальных отношений, социализацией, сокращением незаконного поведения, уменьшением изоляции. и депрессия, управление стрессом и улучшение работы и успеваемости [9,10,11,12,13]. Эти соображения сразу предполагают, что успешные вмешательства снижают частоту хронических заболеваний и в целом способствуют укреплению здоровья.Для достижения этой цели необходимы комплексные подходы; им необходимо учитывать действия как на индивидуальном, так и на социальном уровне, включая различные профессиональные навыки, различные условия проживания людей и различные методологии, учитывающие также использование новых технологий [14,15,16,17,18]. регулярные упражнения очевидны как при вторичной, так и при первичной и первичной профилактике [16,17,18,19,20,21,22,23,24,25,26,27,28] многих заболеваний, от кардиометаболических состояний (коронарных артерий болезней, гипертонии, сердечной недостаточности, диабета и т. д.) до рака, функциональных заболеваний, таких как синдром хронической усталости, фибромиалгии и многих других болезней.Кроме того, регулярные упражнения связаны с долголетием, счастьем, снижением риска физической инвалидности и зависимости и в целом со снижением смертности от всех причин [10,29,30,31,32,33]. Особый интерес представляет соображение, что кардиореспираторная пригодность в настоящее время может считаться важным количественным предиктором смертности от всех причин и потенциально более сильным предиктором смертности, чем установленные факторы риска [30]. С клинической точки зрения, чтобы помочь субъекту улучшить его / его кардиореспираторную подготовку, начиная с низкого уровня (соответствующего способности выполнять упражнение ниже шести МЕТ) до умеренного уровня (соответствующего способности выполнять упражнение. 6–8 МЕТ) означает помочь ему / ему добиться наибольшего наблюдаемого снижения смертности [34,35].Также описана положительная взаимосвязь между безжировой массой тела и продолжительностью жизни, особенно у пациентов с низким индексом массы тела [32]; более того, низкая мышечная сила была сильнее и значимо связана со смертностью от всех причин, чем низкая мышечная масса [31]. Механизмы, лежащие в основе взаимосвязи между здоровьем и регулярными физическими упражнениями (и в целом здоровым образом жизни), многочисленны и сложны. Упражнения могут воздействовать на основные регуляторные системы, контролирующие иммунологические функции, гормоны и регуляцию вегетативной нервной системы [24,36,37,38,39,40,41].Он может принести пользу, аналогичную лекарственным средствам, при вторичной профилактике ишемической болезни сердца, реабилитации после инсульта, лечении сердечной недостаточности и профилактике диабета. Постоянно появляются новые результаты, свидетельствующие о новых преимуществах, например, наблюдение, что кардиореспираторная пригодность также является предиктором микробного разнообразия кишечника, предлагая использовать предписания упражнений в качестве адъювантной терапии для борьбы с заболеваниями, связанными с дисбактериозом [42]. Особый интерес представляет положительное влияние аэробных упражнений на вегетативный контроль сердца [36,37] и возможность его оценки с использованием неинвазивных и устойчивых методик, таких как спектральный анализ вариабельности сердечного ритма [4,43,44].Более того, положительные эффекты физических упражнений и здорового образа жизни в целом могут уравновесить высокий генетический риск коронарных заболеваний [45]. Взаимосвязь между генетикой и образом жизни особенно интригует. Фактически, физические упражнения, здоровое питание и даже снижение стресса могут оказывать регулирующее воздействие на экспрессию генов [46]. Приверженность образу жизни с низким уровнем риска может увеличить продолжительность жизни [29]. Вмешательства, основанные на физических упражнениях и здоровом питании, способны даже способствовать ремиссии диабета 2 типа у пациентов с ожирением [22], улучшать периоперационные исходы и уменьшать послеоперационные осложнения [47].Фундаментальное значение имеет также наблюдение, что упражнения могут помочь снизить другие кардиометаболические факторы риска, такие как избыточный вес, дым, стресс, изменение липидного профиля и т. Д. [2, 3, 9, 20, 48, 49] и их влияние на профилактику / лечение болезней особенно эффективны, когда они связаны с другими элементами здорового образа жизни (особенно здоровым питанием, отказом от курения, управлением стрессом) [16,18,19,45]. Физические упражнения и физическая активность (см. Таблицу 1) не являются полной противоположностью малоподвижности. Фактически, многие исследования показывают, что малоподвижное поведение само по себе является важным кардиометаболическим фактором риска [28,50,51] и что физическая активность может ослабить пагубные последствия малоподвижного поведения.И наоборот, малоподвижный образ жизни может снизить благотворное влияние физической активности. Затем, с клинической точки зрения, вмешательства должны быть направлены как на увеличение времени, посвященного упражнениям, так и на сокращение времени, посвященного сидячей деятельности, как время сидения [50].2. Спорт и лечебные упражнения
Спорт и упражнения иногда используются для обозначения одного и того же понятия, что может привести к путанице. На самом деле эти термины имеют разное значение (см. Таблицу 1). С клинической точки зрения их основное различие можно резюмировать следующим предложением: цель спорта — соревнование, а цель упражнений — здоровье.Следовательно, цель спортивной медицины может рассматриваться как помощь спортсмену в предотвращении и лечении травм, в поддержании здоровья, избегая каких-либо проблем, и в повышении работоспособности. Вместо этого целью лечебной физкультуры можно считать использование физических упражнений в качестве инструмента для укрепления здоровья и благополучия, для предотвращения и лечения большинства хронических неинфекционных заболеваний у любого субъекта независимо от его / его уровня физической подготовки. Врачи спортивной медицины обычно работают со спортсменами, знакомыми с онтологией, преимуществами / проблемами и практическими вопросами упражнений, желающими (и обычно пригодными) выполнять упражнения даже с высокой интенсивностью.И наоборот, врачи лечебной физкультуры обычно обращаются к тем пациентам, которые на самом деле не занимаются спортом, и которым нужен рецепт на упражнения, адаптированный к их собственным характеристикам, потребностям и клиническим целям [24]. Благоприятные эффекты физических упражнений можно усилить, если обратить внимание на другие составляющие образа жизни, в частности, на питание, отказ от курения и управление стрессом. Этот подход типичен для медицины образа жизни [61], который заключается в терапевтическом использовании научно обоснованных вмешательств, связанных с образом жизни, для лечения и профилактики заболеваний, связанных с образом жизни, в клинических условиях, предоставляя людям знания / навыки для эффективного изменения поведения.Существует большая дискуссия [62,63,64] о том, кто является профессионалом, имеющим право заниматься лечебной физкультурой (в частности, назначением упражнений) [62,63,64,65], и эта дискуссия становится еще более острой, если принять во внимание различное образование. профессионалов, которые могут участвовать в лечебной физкультуре в разных странах. Спортивные врачи, терапевты, терапевты, кардиологи, реабилитологи, эндокринологи, терапевты и т. Д. Среди врачей могут играть определенную роль.Более того, другие специалисты по упражнениям, такие как физиологи [63] и физиотерапевты [66], могут претендовать на значительную роль в области лечебной физкультуры. Один из возможных подходов к преодолению этой дискуссии может заключаться в рассмотрении реального сотрудничества между разными профессионалами, имеющими общий интерес в области профилактики и физических упражнений, обмена значительным опытом, а затем создания новых знаний, как предполагается в статье Гейтса [62,65]. Важно подтвердить конкретные компетенции, которые требуются для предписания упражнений или более в целом программы изменения образа жизни [4,62,67,68,69].Их можно резюмировать следующим образом:Обычная медицинская экспертиза необходима для адекватной оценки субъектов / пациентов, чтобы знать медицинские последствия заболевания для предотвращения / лечения и его возможного фармакологического лечения, чтобы адаптировать рецепты упражнений и питания для субъектов ‘/ потребности и характеристики пациентов, чтобы выявить возможные противопоказания для некоторых модальностей / интенсивности упражнений.
- Психологические знания необходимы для мотивации и помощи пациентам в изменении поведения и / или в решении возможных психологических проблем, связанных с серьезным заболеванием (если таковое имеется) [70].
Технические знания необходимы для того, чтобы назначать упражнения, питание или программы отказа от курения, обучать субъектов / пациентов и помогать им преодолевать практические препятствия.
3. Модели для внедрения упражнений в программы образа жизни
Несмотря на то, что преимущества физической активности хорошо задокументированы, отсутствие физической активности быстро становится серьезной глобальной проблемой, и теперь эта проблема описывается как пандемия, имеющая медицинские, экономические, экологические и социальные последствия [50 , 51,72,73].Как сообщалось ранее, любое изменение образа жизни с учетом физической активности должно учитывать два параллельных направления вмешательства. Первый направлен на уменьшение малоподвижности (использование любой возможности в течение дня для выполнения физических упражнений, например, отказ от лифта, предпочтение лестниц и т. Д.), А второй направлен на внедрение в повседневную жизнь структурированной программы упражнений [28] .Научная литература содержит множество примеров вмешательств, связанных с физической активностью: некоторые из них эффективны и могут представлять собой модель для расширения масштабов [14,74,75].Другие оказались неспособными произвести сколько-нибудь существенные изменения [14,15,76,77]. Программы, которые оказались наиболее эффективными, характеризуются многофакторным вмешательством и предназначены для отдельных лиц или групп в соответствии с конкретными характеристиками и потребностями [14,16,17,78,79], часто включая компьютерные / технологические стратегии [14, 16]. Простое консультирование по вопросам здорового поведения, в частности упражнений, дает ограниченные результаты или не дает никаких результатов [14,15,76,77], в то время как для успеха требуется реализация конкретных планов действий в сотрудничестве с субъектами / пациентами и преднамеренное последующее наблюдение [4,67, 74,75].В идеале вмешательство, связанное с физической активностью, может считаться действительно эффективным, когда оно перерастает рамки исследований и становится встроенным в систему доставки, обеспечивая сохранение и устойчивость его преимуществ для здоровья [4,75]. Подходы, основанные на сочетании тщательной оценки пациента и индивидуального рецепта. здорового питания, физических упражнений и планов отказа от курения, когнитивно-поведенческих стратегий (CBS) оказались наиболее эффективными [4,14,17,18]. Эти подходы (см. Также нашу предыдущую статью [4]) требуют включения в программу мультидисциплинарных знаний.Это часто гарантируется участием нескольких различных медицинских работников (специалистов, терапевтов, психологов, диетологов, физиологов), которые должны работать в действительно совместных и целенаправленных командах для получения положительных результатов [14,18,74, 75]. Напротив, простое направление к другим специалистам здравоохранения без совместной ответственности часто приводит к трудоемким, дорогостоящим и довольно неэффективным подходам [14,15,76]. Примечательно, что эта стратегия часто представлена в клиническом контексте вне исследовательских программ, что парадоксальным образом представляет собой препятствие на пути к успешному результату.Другие важные препятствия, о которых сообщают пациенты в отношении финансового бремени и затрат времени [80,81], т. Е. Условия, плохо характеризующие интенсивные программы изменения образа жизни (многократные встречи с разными экспертами, образовательные сессии, вспомогательные тренинги и т. система социального обеспечения или страхование). Эти элементы следует свести к минимуму, насколько это возможно, чтобы разрабатывать реалистичные и эффективные программы. Возможность получить у врача, обученного медицине образа жизни, как предполагалось во многих работах [67,68,69,71], способного полностью контролировать путь пациента к новому поведению, может помочь преодолеть некоторые из этих препятствий [4] .Очевидно, что возможность добавить других специалистов в области здравоохранения улучшит качество программы при отсутствии экономических и организационных барьеров.6. Упражнения для управления стрессом и функциональными синдромами
Упражнения представляют собой профилактический / терапевтический инструмент при многих клинических состояниях, от кардиометаболических заболеваний до рака. Поскольку этот обзор является частью специального выпуска, озаглавленного «Спорт-упражнения и стресс: выигрышная комбинация», мы считаем важным подчеркнуть роль упражнений в управлении стрессом и состояниями, такими как функциональный синдром, при которых стресс может играть важную роль.
Существует множество определений стресса, особенно с учетом различного взаимодействия между психологическими, физиологическими, поведенческими или социальными аспектами [113,114,115]. В предыдущей статье [25] мы предложили следующее определение, полностью осознавая, что его можно улучшить: «стресс может рассматриваться как психологическое, поведенческое и физиологическое (или патофизиологическое) следствие взаимодействия между субъектом и стрессором; рассматривать в качестве «фактора стресса» все (острое или хроническое), присутствующее в окружающей среде или в сознании субъекта, что может быть воспринято как важное, опасное или потенциально способное изменить, как негативно, так и положительно, его жизнь ».Стресс сам по себе [116] является физиологической реакцией [114] на восстановление гомеостаза через регуляторные системы (гипоталамо-гипофизарно-адренокортикальная, вегетативная нервная система и иммунитет) [25,117,118,119,120], модулируемая субъективным восприятием фактора стресса, индивидуума (генетического, биологического , психологические) различия и поведение [120]. Негативный характер стресса проявляется, когда проявляются телесные (соматические симптомы / заболевания [115,119,121,122,123]) или психосоциальные эффекты. Эти негативные последствия иногда в большей степени определяются индивидуальными характеристиками, как личный способ восприятия фактора стресса и поведения [25,120] (стратегия совладания), а затем исходным фактором стресса.Иногда они могут даже ухудшать клиническую картину, становясь новыми факторами стресса [25, 124] (например, страх заболеть) и могут даже повышать риск возникновения хронических неинфекционных заболеваний (предположение о нездоровом образе жизни). Более того, субъекты могут, опять же неосознанно, изменять стратегии принятия решений [25,125,126], изменять социальное поведение, изолировать себя, усиливать судебные тяжбы в семье или на работе и т. Д., Снижая свою работу и социальную активность, тем самым еще больше ухудшая качество их жизни.Механизмы, связывающие хронические стрессовые состояния со здоровьем, сложны и модулируются генетической предрасположенностью [25,114,119], будучи как прямыми (с участием систем контроля тела), так и косвенными (в пользу нездорового образа жизни). С клинической точки зрения [25], хронические стрессовые состояния могут играть роль в развитии / обострении других заболеваний и в определении соматических симптомов, не объясняемых наличием «традиционного» заболевания. Эти состояния теперь определены как функциональные синдромы [123].Фактически, соматический симптом не всегда может иметь органическую причину, но он может возникать в результате повышенной осведомленности о физиологических изменениях, связанных со стрессором, заболеванием / травмой, или физиологическим процессом, или вариантами нормальной физиологии. Индивидуальный опыт и / или биологические характеристики [25,123,124] могут способствовать возникновению конкретных симптомов. Более того, поведение, предполагаемое пациентом только для уменьшения симптомов, может вместо этого усилить их в долгосрочной перспективе, например, полностью прекратить физическую активность для уменьшения боли в пояснице [25].С точки зрения клинического лечения стрессовые и функциональные синдромы требуют многомерного подхода, который учитывает физиологические, психологические и поведенческие факторы, способствующие возникновению симптомов [25,119,120,121,122,124,127,128]. Правильная оценка для исключения других возможных заболеваний и постановки точного диагноза — это однако необходимо перед началом лечения [129]; традиционные тесты и обследования имеют решающее значение для определения характера сообщаемых симптомов, а новые диагностические инструменты [25,129], так как оценка вегетативной нервной системы может помочь в обнаружении специфических изменений, присутствующих у пациентов, которые жалуются на «необъяснимые» соматические симптомы, и для мониторинга эффекты лечения [25,130,131,132].Несколько исследований показывают, что функциональные синдромы и стрессовые состояния на самом деле характеризуются нарушением сердечного вегетативного контроля [130, 131, 132, 133, 134].6.1. Управление стрессом и функциональными синдромами
Недавние многомерные подходы к управлению стрессом [25,110,119,133,135] и другими функциональными синдромами [25,124,136] рассматривают следующие инструменты:6.1.1. Объяснение и заверение
Правдоподобное объяснение симптомов, основанное на правильном диагнозе и доступных доказательствах, предлагается в ссылках [121, 122], чтобы дать четкое описание эффектов предрасположенности (например, существовавшие ранее заболевания или генетический фон), ускоряющих (например, психосоциальных стрессоров). или инфекции [137,138] и увековечивающие (например, изменение нездорового образа жизни или ошибочная интерпретация пациентом личного состояния) факторы.Использование современных простых диагностических методов, способных выявить изменения вегетативной нервной системы, может представлять собой полезный инструмент [25] для объяснения того, что симптом может присутствовать даже при отсутствии традиционного органического повреждения, вызванного функциональным нарушением [130, 131]. Этот подход может стать отправной точкой для воплощения терапевтического обоснования в конкретные действия, которые также требуют активной роли пациента, такой как изменение образа жизни.6.1.2. Фармакологические и психологические методы лечения
Антидепрессанты и анксиолитики — лекарства, назначаемые чаще всего, даже если их полезность спорна [124, 139].Другие препараты, направленные на периферические физиологические процессы [128], например, мышечное напряжение, воспаление, функцию кишечника [140], могут быть полезны конкретным пациентам, которые жалуются на определенные симптомы. С другой стороны, психологическое лечение, в частности когнитивно-поведенческая терапия и методы релаксации [121,124,128,130,131,139,140,141,142,143,144], оказались эффективными.6.1.3. Модификации образа жизни
Предположение о нездоровом поведении (неправильная стратегия выживания) может быть следствием хронических стрессовых состояний (например, недостаток времени для упражнений) или попыткой минимизировать симптомы и индивидуальные нарушения при некоторых функциональных синдромах (например, отдых в качестве по возможности при мышечной боли и / или усталости).Краеугольным камнем лечения является противодействие этому нездоровому поведению. В этом контексте особенно важную роль играет физическая активность [9,10,11,145,146]. Упражнения могут улучшить функции мозга, в первую очередь процессы познания и исполнительного контроля [146]. Он также может уменьшить симптомы тревоги и депрессии и улучшить дисрегуляцию стрессовой системы [145]. Физические упражнения, особенно аэробная активность [147], играют важную роль в лечении необъяснимых соматических симптомов, хронической усталости и фибромиалгии [119,121,124,136]; Недавние данные [148] показывают также роль силовых упражнений в управлении тревожностью.Механизмы, лежащие в основе этих благотворных эффектов, разнообразны; Основное значение может иметь роль упражнений в модуляции всех систем контроля (иммунологической, гормональной и вегетативной нервной системы [4,37,38,39,41,43,44,46]), задействованных в генезе стресса. Более того, возможность доказать пациенту, что он / она может изменить свое поведение (например, стать физически активным), может быть мощным инструментом для повышения самоэффективности и самооценки, обязательных навыков для того, чтобы в конечном итоге предпринять действия в чтобы справиться с причиной стресса и стрессовой ситуации.Пациент может понять, что он / она может взять на себя проактивную роль, может восстановить контроль над своей жизнью, может найти ресурсы для действий и изменений. Чтобы справиться со стрессом и соматическими симптомами, упражнения должны быть правильно прописаны и адаптированы к характеристикам пациента. и предпочтения [20,24,48,102]. Пациенты, жалующиеся на усталость, мышечную боль или другие симптомы, обычно не любят физическую активность и считают, что она может быть бесполезной, если даже не опасной для их особого состояния.Неправильный рецепт упражнений может укрепить эти неверные убеждения. Правильный протокол упражнений должен включать установление исходного уровня с последующим запланированным увеличением продолжительности физической активности низкой интенсивности с последующим постепенным увеличением интенсивности, ведущим к умеренным нагрузкам аэробных упражнений.Изменение стиля питания, курение, гигиена сна — это другие составляющие образа жизни, которые необходимо принимать во внимание, учитывая очевидные характеристики пациента и его клиническое состояние.
Новости досуга, Мировые новости досуга, Новости индустрии досуга Страница 968
Сатта-базар считает, что БДП сформирует следующее правительство, но получит меньше мест по сравнению с последними выборами 2012 года.
В своем 10-м вопросе в серии, предшествующей опросам в штате, Ганди нацелил премьер-министра на тяжелое положение племен в штате.
«Нападение Мани Шанкара Айяра« Нич »на премьер-министра — преднамеренное кастовское заявление, удобное извинение, стратегическое отстранение. Люди должны увидеть эту игру насквозь», — написала в Твиттере Джейтли.
«(вице-президент Конгресса) Рахул Ганди подверг критике язык, используемый Айяром…. Мы в очередной раз выпустили рекомендацию, в которой говорится, что, какими бы грубыми ни были слова правящая партия в отношении нас, и как бы Моди-джи ни оскорблял (бывшего премьер-министра Джавахарлала) Неру и Махатму Ганди, мы не будем использовать такие выражения против премьер-министра. , «Сказал здесь пресс-секретарь Конгресса Рандип Сурджевала.
Отметив, что страна переживает» трудный этап «, бывший профсоюзный министр сказал, что премьер-министр делает общенациональный вопрос то, за кого он выступает в качестве юриста в Верховном суде, «говорит только о своем мировоззрении и своих приоритетах для страны».
Представитель Конгресса Аджой Кумар поднял вопрос Государственной нефтяной корпорации Гуджарата (GSPC) о разведке газа в бассейне KG и заявил, что убытки в размере 19 576 крор были нанесены правительство штата и премьер-министр Моди должны честно заявить об этом.
The Gujarat Election Watch и Ассоциация демократических реформ (ADR) проанализировали письменные показания 822 из 851 кандидата, которые участвуют во втором этапе выборов в собрание, намеченных на Об этом говорится в сообщении ADR от 14 декабря.
Главный министр штата Керала Пинарайи Виджаян в четверг заявил о дискриминации со стороны Центра в отношении государства после циклона «Окхи».
Министр Союза Рави Шанкар Прасад в четверг заявил, что лидер Конгресса получил «одобрение» Рахула Ганди на использование таких уничижительных формулировок.
Дисциплинарные меры против сторонника семьи Ганди были применены всего за два дня до первого этапа голосования Ассамблеи в Гуджарате.
76-летний Айяр сегодня вызвал политическую бурю, когда назвал Моди «neech kism ka aadmi» (мерзким человеком), замечание, которое последний назвал кастовым. ругать его.
Сегодня BJP опровергла утверждение Мани Шанкара Айяра о том, что он не занимал пост в Конгрессе, поскольку его лидеры упомянули о его назначении президентом Конгресса Соней Ганди в «группу коммуникационной стратегии» в июле. в этом году.
Он сказал, что не удивлен уничижительным комментарием Айяра в адрес Моди, поскольку это было культурой Конгресса.
В ожидании возвращения к власти правящий Конгресс в Карнатаке отправится в серию туров по всему штату в преддверии выборов 2018 года.
Президент комитета Конгресса Раджастхан-Прадеш Сачин Пилот сегодня выразил уверенность в том, что партия выиграет предстоящие байполлы в Раджастане.
Moneycontrol предлагает вам избранные изображения, которые делают заголовки по всему миру…
Опрос будет проводиться в субботу.
Он также сказал, что обещание «ачхедин», данное BJP, «нигде не видно».
Мани Шанкар Айяр сделал это снова.Всего за два дня до того, как Гуджарат пойдет на голосование, высокопоставленный лидер Конгресса назвал премьер-министра Нарендру Моди «ничем». Премьер-министр, который сегодня проводил кампанию в Сурате, быстро ухватился за это и сказал, что комментарии отражают «Могольское» мышление партии конгресса.
Она также заявила, что люди хорошо осведомлены о том, что BJP подняла вопрос Айодхьи во время выборов ради голосов.
Срок полномочий нынешней Ассамблеи истекает 6 марта.
Лидер Конгресса Рахул Ганди посетит циклон «Окхи». Об этом заявил в четверг лидер оппозиционной партии ОДС в ассамблее Кералы Рамеш Ченнитала.
Он также сказал, что приехал в Дабхой, чтобы «вселить страх», и что, если отдельные межобщинные столкновения не будут остановлены, будет дан «соответствующий ответ».
Анализ показаний под присягой кандидатов, участвующих в обеих фазах голосования Ассамблеи Гуджарата, показал, что 38 кандидатам в Конгресс предъявлены серьезные уголовные обвинения.
Открывая кампанию, Паланисвами призвал людей помочь Мадусуданану победить с огромным отрывом, чтобы «продолжить доброе дело Аммы».
sabudenego 329548 секс-аркада будка 076 black widow.jpg из 300 секс-видео героинь Просмотреть фото
Просмотреть полноэкранное изображение БЕСПЛАТНО
Загрузить исходное изображение бесплатно
Полный размер: Сохранить
Гигантский Размер: ПросмотретьСохранить
Большой размер: ПросмотретьСохранить
Средний размер: ViewSave
Маленький размер: ViewSave
Поделитесь с друзьями:
Whatsapp | Viber | Telegram | Линия | SMS
Электронная почта | Twitter | Reddit | Tumblr | Pinterest
Похожие фотографии
превью mp4.jpgimage1 Темп 968.jpgpreview.jpgimage2 темп 194.jpgeva зеленый ню секс 300 рост empire.jpgpreview.jpge9323a0f8fb25500562f7d2c81fbf761 23.jpg024d16ccceeed235117ec892905433de 5.jpg811592312a991f94caa4a25637d7e88b 23.jpgrye общественного безобразие 4 26 300×167.jpg240e988884d4bfcf8bac04c7d63020f1 9.jpg7fd650ec9c4ad5c8d89406b8c4454055 16.jpgarticle 2259162 16d0954e000005dc 924 634×380.jpg2369648691b641d133b454f738193f80 15 .jpg2c4677f5df073d889b3e1de5c8861dad 13.jpg2c4677f5df073d889b3e1de5c8861dad 28.jpgmqdefault.jpgwonder woman down and out by game over girls d90lu4g.pngyoshiko kawashima красный воробей доминика егорова pic.jpgeva зеленая сцена жаркого секса 300 рост империи 2014.jpg2000x2000 9.jpg200px lesbian супружеская пара.jpglena headey горячая сцена секса 300 фильм 28329.jpg36914869 29.jpg3jordan jpgw300ampq55ampautoformatampusm12ampfitmaxamps6520deeea2f6214d2dfd4392f4a3b0b7Поиск похожих фотографий
мультфильм черная вдова секс | будка голый маленький секс | кабина ANSIKA увидела | телугу кабина секс xxx видео | 13 saal ki ladki xxx yollu auntyxx photond 3gpw tamil aunty booth room videos dwonload | www xxx ba видео бангладешский bf pg widow small co | противная возбужденная мама-вдова с сыном на хинди | девушка и собака трахаются ххх вдова в бангкском буди секса | www дези вдова мать эмоциональный секс ее мальчик saultload вас | hd нигро секс домашний дом вдова с дядей | маратхи ххх вдова вышла замуж за жену дома сари секс | панджаби вдова каур fuckedmitabh aishwarya обнаженный анальный xxx com | браслет старый анти сексуальный чода чуди вдова скачать xxx | вдова бхаби массаж тела давера в ночном человеке и собаке choda chodigirls собака ххх | большая черная девушка и черный лунный секс-видео | голые пышные черные женщины 4 jpg черные обнаженные женщины фото 92980 jpg 2567e644306c3e04af9fca405e097592 jpg pinky xxx галереи jpg нудистские галереи sonnenfreunde sonderheft magazine index jpg mypornwap молодая мать секс | вдова бхаби массаж дайвер тело в ночном человеке и собаке чода chodigirls собака ххх видео бач ка синий фильм видео dawnlodn актриса каджол сексуальная обнаженная фальшивая 3gp mypornwapndion песня главная дуния тари чор чала mp4 скачать бесплатноrochona xxxx photoamy daly se | www xxx черный ai | www xxx black lun и | черный секс с хором | черный бой секс в постели | www xxx черный | яв против черного | черный мужчина горячий | секс большой толстый черный | черный большой стержень | черный te | умолять черный ххх | www черный xxx com | умолять черный член секса |Назад к поиску
«Назад к 300 секс-видео с героинями Фото Поиск 300 секс-видео с героинями Видео без рейтинга
Поиск 300 секс-видео с героинями XXX видео
Поиск 300 секс-видео с героинями HD-видео
Поиск 300 секс-видео с героинями Индийские видео
Поиск 300 секс-видео с героинями видео MP4 Видео
Поиск 300 секс-видео с героинями OnlyFans Слитое видео
Поиск 300 секс-видео с героинями XXX GIF
Поиск фотографий
Недавние поиски
cartoon parman xnxxnxx absni | 300 секс-видео с героинями | дези бхабхи ки ганд секс видео ком | рагина секс | птигента ххх | ххх снууй лев | акшай кумар x x x обнаженная фотолливудская актриса обнаженная трахается фото мадхури и шридеви актриса обнаженная sujatha fakeesi village aunty outdoor pissingoctor sex with peasant | каннада актриса амуля ххх синий фильм секс видео | девушка секс в 420 позиции | типи обнаженная модель | гемма артертон хххх | Bangla Bowde xxx videosww сомали сексуальный xnxx video com | актриса кая матаване изображение ххх секс в высоком разрешении | шляпа sxy | индийский дези 80 лет aanty sex nxxxi bhabi teenholl girls hd индийское xxxcs | сексуальные обнаженные девушки в сари мокрые ххх | Кама тетенька секс сари порно видео горячая Адриана Лима | тамил сари спящая тетя под юбкой | nilanthi dayas xxx секс фото | зи тамильская сериальная актриса секс фото | солнечный леон xnxx 3gpdesh sexvixx nxn | xxnx каджол | сайпаллави ххх | большие сиськи auntu xxx | отель абасих банлдеш хх | рича чадда горячий секс ххх | горячая мама desiphoanrotika coml секс девушки | девочки начальной школы ххх фото | Саманта сексбаба | эджен али ебет синко | Силан Кан секс | педомом обнаженные секс девушки | colage красивая девушка секс | oisoria hot xxx photonikki bella обнаженная обои xxx i | открытое чуда поримони голое молоко фото | скат ти секс | индийский дези красивая девушка fucked92 | младший подросток ххх | деревня раджастхани гхагара вали аурат ки чудай | арабские дези фуси ххх | аила бхатт хххх вдос ххх | индийские зрелые голые сиськи тетенька | дези bhsbhi hotww xxviode com | sonakshi sinha жесткий трах | конский секс камшот видео с девушкой | пунам панди сиськи | نانسي عجرم عارية تماما | солнечный Леоне ххх голубые изображения кино | тамильская актриса суганья секс обнаженной | сания мирджа xxxphoto | wwwexxx | 3ow5tjnowxg | nude fake cree cicchinoan fake fucked sex image�শঠ° নাঠ‡ ঠ• া দৠ‡ ঠ° xxxaunty sex pornhub comajal xnxx sexy hd videoangla sex xxx nxn new m 拷 锟 藉 敵 鍌 曃 鍞 筹 ‹| виджайендра кумерия обнаженная без рубашки | ххх сен | артис ванита корея ххх фото обнаженной обнаженной | телугу актриса laila обнаженная секс xnx актриса suganya ful | xxx ali nuhu com | аббатство гал ххх | обнаженная ануша | индийское настоящее изнасилование секс ммс видео 3gphadi suhagrat xxxi тетя ванная комната синий фильм | покемон мультфильм ххх redwap com видео 2 | прити зинта таня голая ххх хо | rakul priti singh sex photsamil жена antey sexkajal agrwal секс видео скачать com | www xxx gonzo com | порно-комиксы amarshrastha | тамильский черный тетенька секс | http lman khan секс xxx kajelhot фото | www waptrick xnxx секс с мамой и сыновьями 3gp загрузка видео индийский черный толстушки тетенька киска picss | рамбай секс | Маллу героиня секса | eyewanks чистая поддельная обнаженная черная розовая | аниме секс в блассрайтере | хиджра ки нанги фото | xxx sindhu menon xnxxdaf секс | cagla simsek xxx | солнечный 1 ххх | тамильская актриса порно sxs po | бангла пава видео xxxww xxx сексуальный maduri dixt com | seetha sx фото | ххх бхбхи ки ч | голая грудь сабана азами | Семран секс видео xnxx com নায়িকা মাহি xxx ভিডিও mp4a 2015 উংলঙ্গ বাংলা নায়িকা মৌসুমির চুদাচুদি adesh | да зеленый фонарь грудь ххх | тамильская мама солнце хххх горячая кам Кэти магазин | Карина Капур ххх обои | сексуальный сексуальный xvideo | تو سیکس افغانی xxxd компания голая xxx | актриса рукма рой обнаженная голая | сиськи фото | тамилнад девушка сиськи пресс сексуальные | rimi senxxx | секс ххх фото пуджа деол | rohini sindhuri ias rapex india xnxx sex xnx sexn | видео секс melayu cikgu dengan murid | Лу Лу Аунг | xxx от 15 до 18 лет девочка ки xxx vedio xxx hd видео comistan sex indian sexy 15 | кирина секс | Арияна голая | дези тетенька большие сиськи пресса горячие видео менее 2mbndore маратхи пара оральный секс и прелюдия с слугой ммс 2ndian мама сын | www karina kap | mohammad nazim гей секс обнаженной | индийский дези петух | 1mb индийские актрисы bolywod xxx | индийский тетенька сиськи темные соски видео 3gp страница видео xvideos com xvide | старость тетенька секс молодой ккма | www xxx hd area manju секс видео | kk9u0h iguwollywood neha dhupiya секс | Шакти Мохан секс-видео Гита Капур сиськи фото актриса безратигия горячий поцелуй | لم سکسی ایرانی سکس ن وشکل با ر رکل | бальвеер ххх мехар обнаженная | видео xxxxpono | собака и девочка xxxvideo | бходжпури monalisa xxxx горячие сексуальные фото и секс xxx девушки немного молока | alka kubal nude image com | море | Мама Кайю порно | актриса mallu xxx фото | бангладеш найка рабака секс-видео | деваяни секс видео | ишита бхалла обнаженная вагина | xxx секс payu dara paling besar di dunia pornoude pankhuress волосатые киски и задницы якорь сексуальные новости videodai 3gp видео страница 1 xvideos com xvideos индийские видео страница 1 бесплатно надия nace горячий индийский секс дива анна тангачи секс видео бесплатно скачать ранди ебать xxx sexigha hotel mandar moni hotel комнатные девушки fuckfarah khan fake unty | www panjabe sex com xxx 3gp видео низкого качества | indiaxxxvideo секс xxx | индийский ххх бу ш 3pgking com | мия халиф х | sb7 en 002 | мангала aunte сиськи фото изм волосатая киска | bardar sistar rap sex porn sexww xxxkashmirvideos @ com | сари янти обнаженная подделка | insos papua seks | yukikax stic 00002 | хаширама ххх гей | xxx juhi chwla | سكس عربي تصوير منزلي مخف | xxxxkareena kapoor сексуальный | aiohotgirl веб-орг автомобильный архив | кумкум бхагья секс ххх обнаженный болливуд мил деревня тетенька ххх секс pundai p | молодая обнаженная | наруто хентай большие сиськи | каннада братан порно секс видео | у мамочки сиськи Джулия Энн моя девушка | 뷰티풀 군바리 хентай | gwoumze xxx com | www ansika xnxx kamapichas | расми алон обнаженная | Сарада Учиха pixxxxxxx дерьмо время xxxxxxxx sxxxxx ххх хо | ибу муда кантик лаги меню | сетка | сурбхи чандна обнаженная подделка | www Индия xxxx видео | пайел саркар хх видео | ayesha sexeet koel xxxw xxx videos 3g chik nomil sex videosamakisex xxxvi deokajal agrawal xxx video download 3gpnudeprova голое видео 鍞 虫 稄 锟 藉 敵 锟 藉 敵 娑 忥 拷 鍞 锟 鍞 筹 拷 敵锟 藉 敵 锔 碉 拷 鍞 虫 Bangla mov xxxxhd xx video bab xxxwww rekha sex xxx nude comwww ocridika madan xxx திரிஷா xxxsouth Actress all xxx sexvkxxx moeccosridevi sex 3gp download nusrat jahan xxx nu | азия обнаженная 4you zoie | sunnyleone xxx фото র xxx ছবি bangla naika purnima xxx video com নাইকা পপির নাকেট পিকচার xnxx আখী আলমগীর секс видео বাংলা নাইকা অপু বিশবাস চুদাচ§ | kbj arin | sonakshi shinha nude fuc | дивянка трипати секс баба нетто | заклин ххх видео | минасхи секс-видеотар jalsa xxx pakhi голая фото интар джалша пратима актриса голая | дипрадж | xxxx тайский 15wwxxxnxxd 20150813 wa | sanileonxxxvideos | майавати ххх | девушки изнасилование секс видео ком | amitabh bachn обнаженный голый пенис | омегле стикам | большая киска секс видео | xxxxxmx | png liklik kan koap шри-ланкийский png девочки порно мобильный xxx | aditi roy xxx фото ебли sabina xxxx mia | www xxx brazze | анита хассананди голая | Надия ххх фото | бенгальский буди ххх фото hd | актриса амрита гопик | nqgma xxx | मारवाड़ी xxx वीडियो भेजो मारवाड़ी सेक्सी वीडियो भेजो роженица роженица | таманна поддельная сперма | амс бьянка голая | сестра мама солнце ххх видео ком | mp горячие ххх дези видео | www vdf xxx com | индийская тетя обнаженные фото с thali botu на шее, показывая boobsanika xxx секс фотовидео xxxx coxxxvipeoshjra kamapisachi xxx all hiro болливуд актриса monalisha b | doraemon мультфильм nobita чертовски шизука жесткий секс xxxisu дакка |Дальнейшие доказательства в пользу сложной модели кодирования обработки чисел
ЧИСЛОВЫЕ КОДЫ В ДВУЯЗЫЧНЫХ ЯЗЫКАХ 975
Специфика представлений чисел, не связанных с обработкой словесно-филиппинских числовых стимулов
, все еще не ясна.Например, два результата предполагают слабые ассоциативные связи
внутри филиппинского кода: отсутствие
эффектов интерференции типа зонда в Эксперименте 1 и
отсутствие прайминга между филиппинскими слагаемыми и
филиппинскими зондами. Тем не менее, интерференционный эффект зонда типа
был обнаружен с филиппинскими дополнениями в эксперименте 2. Но
этот результат может происходить из другого экспериментального знака de-
, который мог побудить испытуемых транслировать коды стимулов. в более сильные коды с более сильными ассоциативными связями
.Таким образом, хотя большинство типов данных
крачек предполагают отсутствие сильных ассоциативных связей
в пределах филиппинского числового кода, это предположение требует дальнейшего изучения
.
Еще одно важное открытие, полученное в результате этого исследования, —
о том, как разные коды соотносятся друг с другом. Эта проблема
не была подробно рассмотрена в предыдущих исследованиях
, хотя Campbell et al. (1999) предполагают, что предпочтительный словесный код
опосредует обработку чисел в более слабом словесном коде
, когда двуязычный все еще изучает
числовые операции в этом более слабом коде.Настоящие результаты
предполагают, что эти посреднические процессы могут способствовать развитию путей между более слабым кодом
и более сильным кодом, который опосредовал разработку более слабого кода
. В частности, более слабые коды
будут иметь ассоциативные связи с более сильным кодом.
Но эта ссылка не кажется двунаправленной; вместо этого,
, похоже, срабатывает от более слабого кода к более сильному
, а не наоборот.Предположения, относящиеся к асимметричной активации цифровых кодов
, являются развитием
предложения Кэмпбелла и др. (1999) о том, что
требует дальнейшего изучения.
Интересно, что данные эксперимента 2 предполагают, что то, что
опосредует обработку филиппинских стимулов, было
-значным кодом, а не словесно-английским кодом. Но, учитывая новаторский характер задачи
и отсутствие точной информации
о стратегиях, которые использовали испытуемые, кажется преждевременным исключать возможность того, что вербальный код
на английском языке также может служить посредником при обработке. Fil-
ипино стимулов.Этот вопрос может быть дополнительно изучен с помощью методов
, которые задействуют разработку филиппинских кодов с номерами
.
Настоящие результаты показывают, что существуют общие принципы
, которые лежат в основе обработки числовых фактов в
двуязычных и одноязычных. Однако конкретные факторы, которые формируют точные характеристики представления
и обработки числовых фактов среди двуязычных, вероятно, более сложны.Настоящие результаты показывают, что
, лежащие в основе процессов проверки номеров среди
двуязычных, связаны с факторами, связанными с количеством опыта
обработки чисел с использованием определенного формата
и с тем, как один формат может быть связан с разработкой
обработка номера в другом формате. Проведение
подобных исследований не только приведет к лучшему пониманию того, как думают двуязычные, но и поможет нам
лучше понять, как человеческий разум начинает эффективно обрабатывать различные части и формы стимулов. что
несут те же функциональные единицы информации.
ССЫЛКИ
Эшкрафт, М. Х. (1992). Когнитивная арифметика: обзор данных и теории
. Познание, 44, 75-106.
Эшкрафт, М. Х., и Стазык, Э. Х. (1981). Мысленное дополнение: Тест
трех моделей проверки. Память и познание, 9, 185-196.
Кэмпбелл, Дж. И. Д. (1994). Архитектуры для числового познания. Cog-
nition, 53, 1-44.
Кэмпбелл, Дж. И. Д. (1995). Механизмы простого добавления и мультипликации
: Модифицированная теория и моделирование сетевых помех.
Математическое познание, 1, 121–164.
Кэмпбелл, Дж. И. Д., и Кларк, Дж. М. (1988). Комплексное представление кодирования
обработки когнитивных чисел: комментарий к Макклоски, Соколу и
Гудману (1986). Журнал экспериментальной психологии: общий,
117, 204-214.
Кэмпбелл, Дж. И. Д., и Кларк, Дж. М. (1992). Числовое познание: комплексная перспектива кодирования
. В Дж. И.Д. Кэмпбелл (ред.), Природа
и происхождение математических навыков (стр.457-491). Амстердам: Эльзевир.
Кэмпбелл, Дж. И. Д., Канц, К. Л., и Сюэ, К. (1999). Обработка номера —
для двуязычных китайско-английских языков. Математическое познание, 5, 1-39.
Кэмпбелл, Дж. И. Д., и Тарлинг, Д. П. М. (1996). Поисковые процессы в арифметическом производстве и проверке
. Память и познание, 24,
156-172.
Dehaene, S. (1992). Разновидности числовых способностей. Познание, 44, 1-42.
Эллис, Н.К. и Хеннелли Р. А. (1980). Двуязычный, состоящий из слов ef-
fect: Значение для тестирования интеллекта и относительная простота мысленных вычислений
на валлийском и английском языках. Британский журнал психологии —
ogy, 71, 43-51.
Frenck-Mestre, C., & Vaid, J. (1993). Активация числовых фактов в
двуязычных. Память и познание, 21, 809-818.
ЛеФевр, Ж.-А., Бисанц, Дж., И Мрконжич, Л. (1988). Когнитивная арифметика —
метик: Свидетельство для обязательной активации арифметических фактов.Mem-
ory & Cognition, 16, 45-53.
ЛеФевр, Ж.-А., и Лю, Дж. (1997). Роль опыта в числовом навыке
: умножение производительности у взрослых из Китая и Канады.
Математическое познание, 3, 31-62.
Марш, Л. Г., и Маки, Р. Х. (1976). Эффективность арифметических операций —
двуязычных языков как функция языка. Память и познание,
4, 459-464.
Макклейн, Л., и Хуанг, Дж.Ю. С. (1982). Скорость простой арифметики на
двуязычных. Память и познание, 10, 591-596.
Макклоски, М., и Макарусо, П. (1995). Представление и использование числовой информации. Американский психолог, 50, 351-363.
Макклоски, М., Сокол, С.М., и Гудман, Р.А. (1986). Когнитивные
процессов в производстве вербальных чисел: выводы из действий
человек с поврежденным мозгом. Journal of Experimental Psychol-
ogy: General, 115, 307-330.
Ноэль М.-П. и Фиас В. (1998). Двуязычие и числовое познание.
Psychologica Belgica, 38, 231–250.
Ноэль, М.-П., Фиас, В., и Брайсберт, М. (1997). О влиянии
формата представления на процессы поиска арифметических фактов.
Познание, 63, 335-374.
Збродофф, Н. Дж. (1995). Почему 9 + 7 сложнее 2 + 3? Сила и интерференция
как объяснение эффекта размера проблемы. Память и
Познание, 23, 689-700.
Збродофф, Н. Дж., И Логан, Г. Д. (1986). Об автономии психических процессов
: пример арифметики. Journal of Experimental Psy-
chology: General, 115, 118-130.
Збродофф, Н. Дж., И Логан, Г. Д. (1990). О связи между производством и проверкой задач в психологии простой арифметики.
Журнал экспериментальной психологии: обучение, память и познание
tion, 16, 83-97.
ПРИМЕЧАНИЯ
1.Другой важной теорией обработки чисел является модель тройного кода
Дехаина (1992). Модель тройного кода определяет наличие трех различных внутренних кодов
для представления числовой информации: звуковой визуальный код
, визуальный цифровой код и аналоговый код величины. Различные коды
используются для конкретных числовых операций (например, код ver-
bal используется для арифметического поиска фактов). Подобно теории сплетения кодирования com-
, модель тройного кода предполагает несколько кодов, но, как и
Review: [Untitled] на JSTOR
Информация о журналеRenaissance Quarterly — ведущий американский журнал исследований эпохи Возрождения, поощряющий связи между различными научными подходами для объединения материалов, охватывающих период с 1300 по 1700 годы в западной истории.Официальный журнал Общества Возрождения Америки, RQ представляет около двадцати статей и более пятисот обзоров в год, охватывающих следующие дисциплины: Америка, искусство и архитектура, история книги, классическая традиция, сравнительная литература, цифровые гуманитарные науки, эмблемы, английская литература. , Французская литература, германская литература, гебраика, латиноамериканская литература, история, гуманизм, исламский мир, итальянская литература, правовая и политическая мысль, медицина и наука, музыка, неолатинская литература, исполнительское искусство и театр, философия, религия, риторика и женщины и пол.
Информация для издателейCambridge University Press (www.cambridge.org) — издательское подразделение Кембриджского университета, одного из ведущих исследовательских институтов мира и лауреата 81 Нобелевской премии. В соответствии со своим уставом издательство Cambridge University Press стремится максимально широко распространять знания по всему миру. Он издает более 2500 книг в год для распространения в более чем 200 странах. Cambridge Journals издает более 250 рецензируемых академических журналов по широкому кругу предметных областей в печатном виде и в Интернете.Многие из этих журналов являются ведущими научными публикациями в своих областях, и вместе они составляют одну из наиболее ценных и всеобъемлющих областей исследований, доступных сегодня.


кл. 9-30 кН
типа ГАЗ